Omschrijving

Op een van de mooiste plekken van het geliefde Enka-terrein staat deze moderne en instapklare 2-onder-1-kapwoning uit 2018. Met een woonoppervlakte van 180 m², vijf slaapkamers, een sfeervolle woonkeuken met kookeiland, een diepe tuin op het westen mét veranda én parkeren op eigen terrein, biedt deze woning comfort, ruimte en duurzaamheid in één.

De woning is gelegen in een rustige straat op het populaire Enka-terrein. Hier woon je in een moderne wijk met karakteristieke architectuur, omringd door groen. Binnen een paar stappen sta je in het bos, ideaal voor een wandeling of hardlooprondje. Voor de dagelijkse boodschappen loop je naar winkelcentrum Spindop. En met station Ede-Wageningen op loopafstand en de A12 om de hoek ben je ook uitstekend verbonden met de rest van het land.

Wat maakt deze woning zo aantrekkelijk?
+ Energiezuinige woning met energielabel A, 17 zonnepanelen, vloerverwarming en stadsverwarming
+ Maar liefst 5 slaapkamers – ideaal voor een groot gezin of thuiswerken
+ Grote woonkamer met veel lichtinval, houtkachel en openslaande deuren
+ Luxe woonkeuken met kookeiland en veel opbergruimte
+ Tuin op het westen met veranda, houten berging en achterom
+ Gelegen op het populaire Enka-terrein, vlak bij station Ede-Wageningen en het bos

Indeling
Begane grond
De entree is uitnodigend, met een sfeervolle vloer en toegang tot het toilet. Vanuit hier loop je door naar de woonkeuken, die voorzien is van een kookeiland en veel opbergruimte, een echte leefkeuken met ruimte voor koken en samenzijn. Via de ensuite deuren kom je in de lichte woonkamer. Dankzij twee openslaande deuren naar de tuin en een groot raam aan de zijkant is het hier heerlijk licht. De houtkachel zorgt voor extra sfeer. Er is voldoende ruimte voor een eettafel én een comfortabele zithoek.

Eerste verdieping
Op deze etage bevinden zich drie slaapkamers, van circa 20m², 15m² en 10m² groot. De badkamer is uitgerust met een ligbad, inloopdouche, dubbele wastafel en vloerverwarming. Daarnaast is er een apart toilet op de overloop.

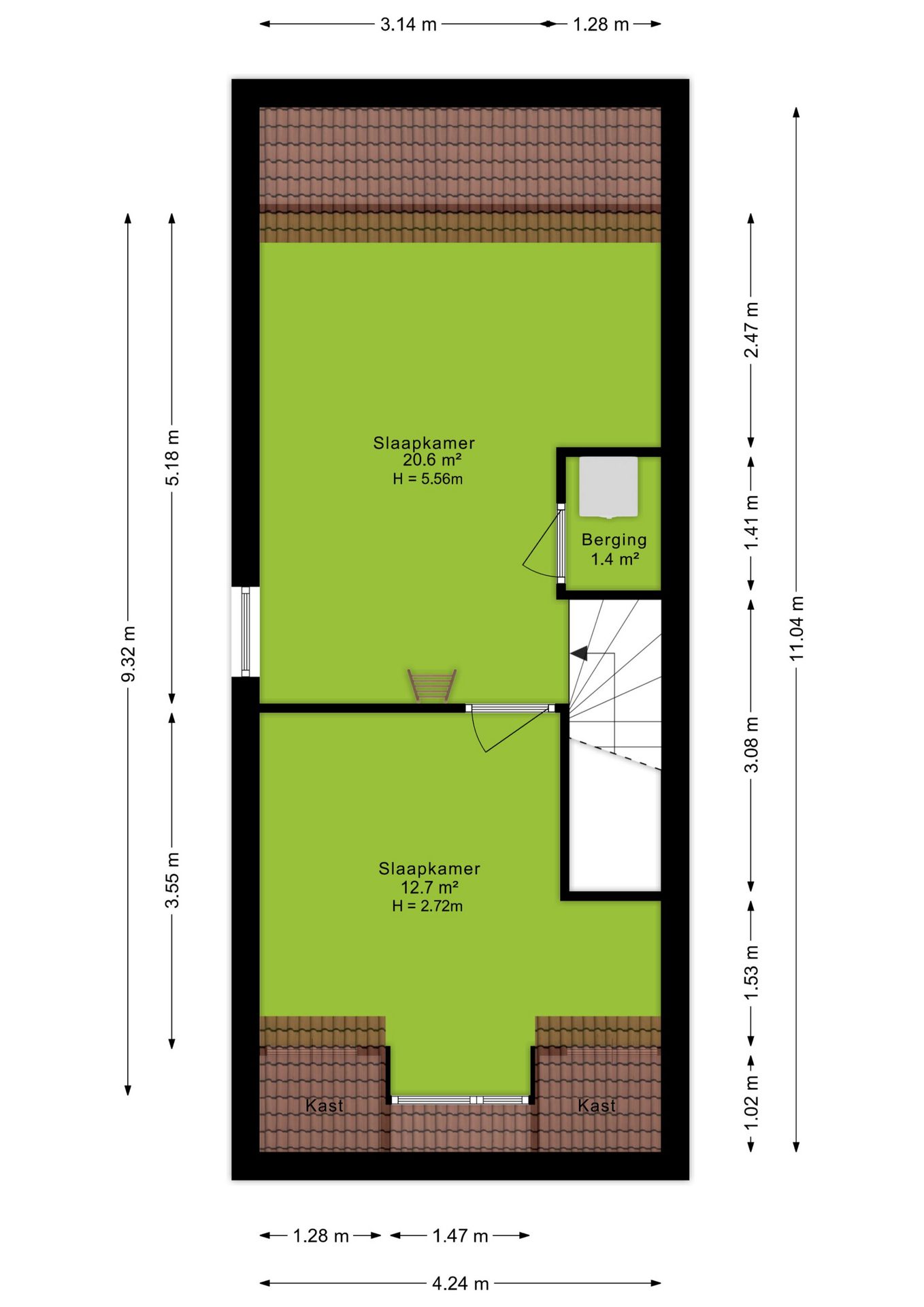
Tweede verdieping
Ook de zolderverdieping biedt volop ruimte. Hier zijn nog eens twee slaapkamers van 21m² en 13 m² groot. Verder is er een handige vliering, bergruimte achter de schotten én een aparte ruimte voor de wasmachine.

Buitenruimte
De achtertuin is gelegen op het westen, wat betekent dat je hier kunt genieten van de middag- en avondzon. Door de ligging rondom het huis is er altijd wel een plekje in de zon of schaduw te vinden. Een van de grote pluspunten is de veranda, waar je ook bij minder mooi weer buiten kunt zitten. Achterin staat een houten berging, ideaal voor fietsen of tuingereedschap. De tuin is achterom bereikbaar en aan de zijkant van het perceel is een grindpad aangelegd als parkeerplek op eigen terrein.

Koopovereenkomst:
- Bij de verkoop zal er een standaard NVM koopovereenkomst worden gehanteerd.

Koop je de woning zonder voorbehoud van financiering? Dan zullen wij een termijn hanteren van 6 weken na het opstellen van de koopovereenkomst voor het storten van de bankgarantie/waarborgsom.
+ toon meer
deze woning is Verkocht

Van den Boschlaan 125 Ede

Van den Boschlaan 125

6717 ZD, Ede
Ditters open huis: 5 april 2025 10:00 - 12:00 uur
Landelijke Open Huizen Route NVM: 5 april 2025 11:00 uur - 15:00 uur
Vanaf€ 875.000 k.k.

Schakel een aankoopmakelaar in.

Snel handelen helpt je jouw droomhuis te bemachtigen. Zo vergroot je de kans dat je er op tijd bij bent.
Ede
verkocht

Of maak vrijblijvend een zoekprofiel aan.

Vergelijkbare woningen

Hypotheken

Onafhankelijk hypotheekadvies

  • Ligt jouw droomhuis binnen handbereik?
  • Wil je jouw huidige hypotheek verhogen?
  • Is er hypotheekruimte voor verduurzaming?

Blijf op de hoogte

Ontvang als eerste updates over nieuw aanbod en mis geen enkele kans om jouw droomwoning te vinden.

Gratis waardebepaling of verkoopgesprek

Met de vrijblijvende waardecheck weet je snel waar je aan toe bent. Onze makelaars kijken naar de lokale markt en vergelijkbare woningen in jouw buurt om een goede schatting te geven.

Realiseer al jouw woondromen met Ditters

Wij zijn een team van gedreven vastgoedexperts met een passie voor het maken van verbindingen – tussen kopers en verkopers, huurders en verhuurders. Met een frisse kijk op de makelaardij combineren we expertise met creativiteit. Onze makelaars luisteren écht en nemen de tijd om jouw wensen te begrijpen.


Bij Ditters sta je er niet alleen voor. We denken met je mee, begeleiden je in elke stap en zijn altijd bereikbaar voor vragen. Neem gerust contact met ons op – we helpen je graag verder!