Omschrijving

Dit fijne appartement met twee woonlagen heeft alles wat je zoekt! Geniet van drie slaapkamers, een zonnig balkon op het zuidoosten waar je heerlijk kunt ontspannen, én een handige berging voor extra opbergruimte.

Binnen een paar minuten sta je midden in het bos voor een heerlijke wandeling in de natuur. Een ideaal startpunt voor ontspanning en recreatie. Bovendien ligt station Ede-Wageningen om de hoek. Voor vers brood hoef je niet ver: Jorisbrood verwelkomt je met de lekkerste bakkersproducten. Daarnaast ben je zo bij winkelcentrum Spindop aan de Parkweg voor al je dagelijkse boodschappen. Alles wat je nodig hebt dichtbij én in een prachtige omgeving.

Alle kenmerken op een rij:
* Fijn appartement met 2 woonlagen en 3 (slaap)kamers;
* Balkon op het zuidoosten;
* Inclusief een berging;
* Dichtbij alle voorzieningen.

Indeling
Begane grond
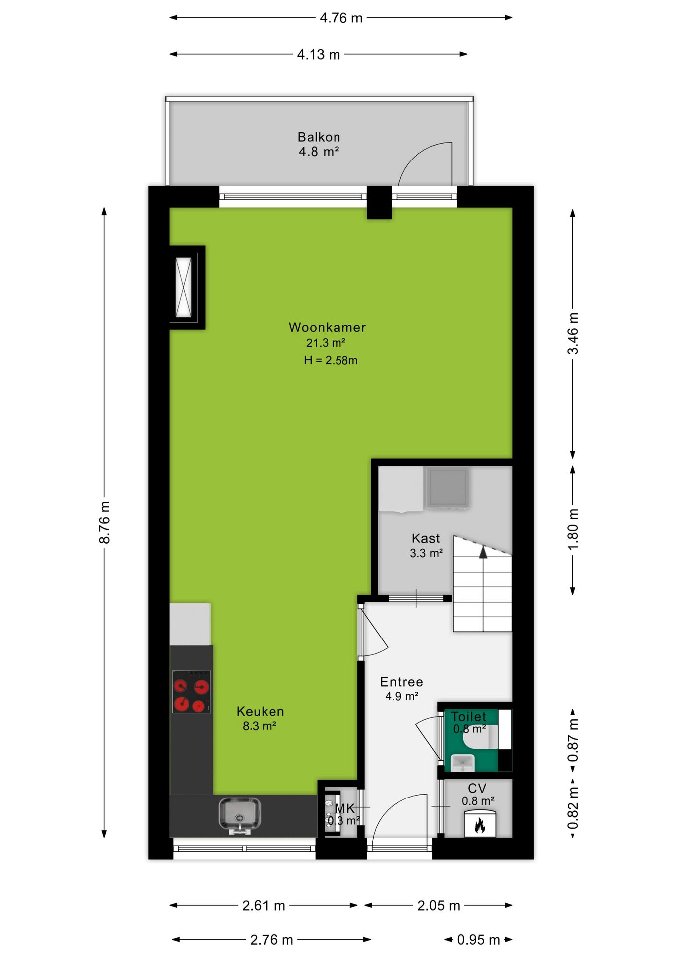
Stap binnen in de woonkamer, waar een warme, uitnodigende sfeer creëert. De gezellige houtkachel maakt dit de perfecte plek om te ontspannen. Vanuit de woonkamer heb je direct contact met diegene die in keuken staat.
De keuken is in 2021 vernieuwd en uitgerust met moderne inbouwapparatuur, waaronder een inductiekookplaat, een combi oven-magnetron en een koelkast. Hier komen comfort en gezelligheid samen.

Onder de trap, die je naar de eerste verdieping leidt, bevindt zich een handige kast. Hier vind je de wasmachineaansluiting.

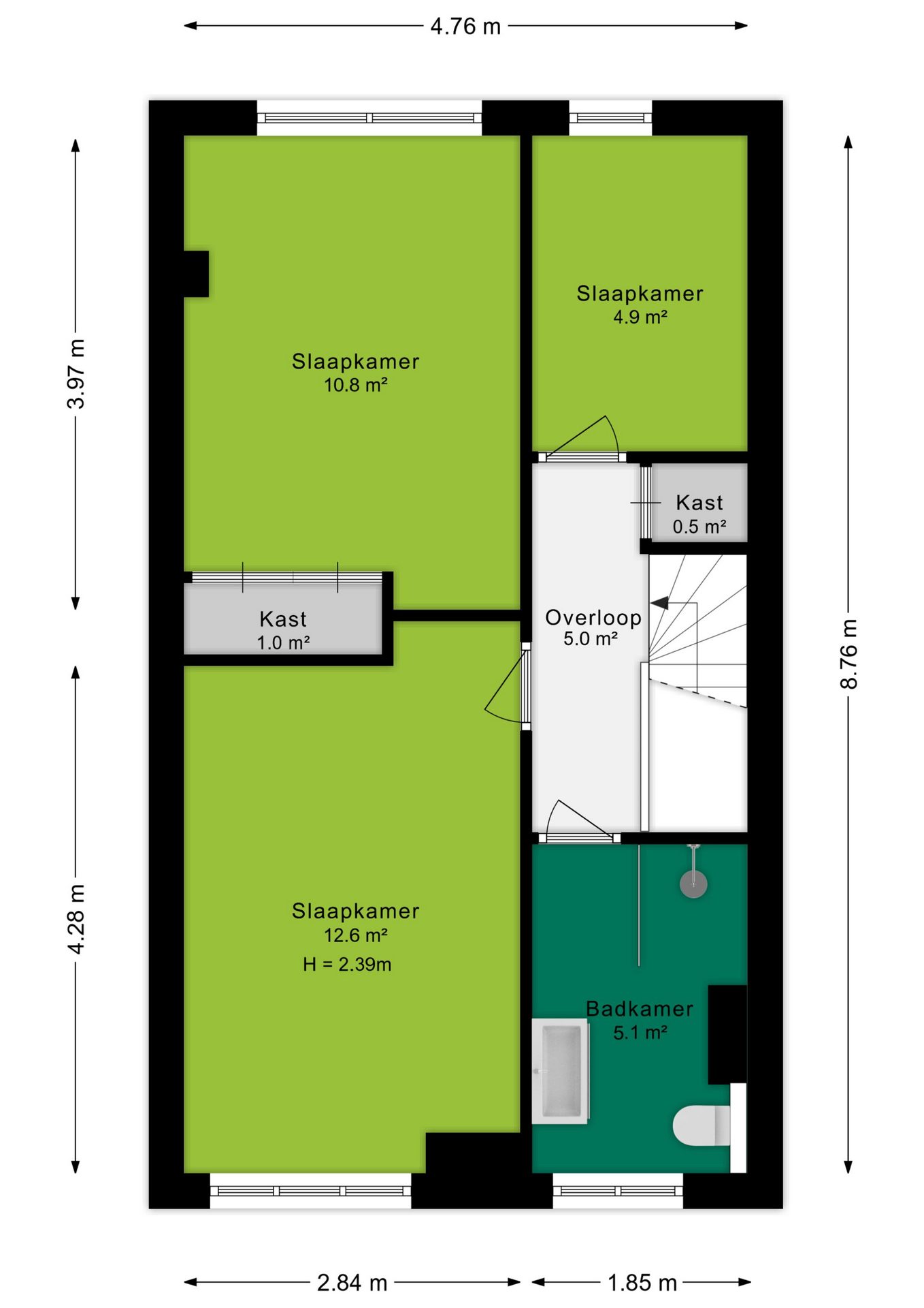
Eerste verdieping
Op de eerste verdieping word je verrast door drie fijne slaapkamers, met oppervlaktes van 13², 11 m², en 5 m². De slaapkamer aan de achterzijde biedt extra gemak dankzij de praktische inbouwkast. Daarnaast bevindt zich op deze verdieping een moderne badkamer (gerenoveerd in 2022), met een toilet, een inloopdouche en een wastafel met meubel.

Balkon
Op het zonnige balkon, gelegen op het zuidoosten, kun je heerlijk genieten van de eerste zonnestralen van de dag. Daarbij word je omringd door rust en getrakteerd op een fijn uitzicht op het groen.

Bijzonderheden
Verwarming: CV ketel, Intergas HRE 28/24A 2016;
Warm water: CV ketel, Intergas HRE 28/24A 2016;
Isolatie: Muur- en vloerisolatie, HR-glas;
Balkonligging: zuidoosten;
Aanvaarding: in overleg.

Koopovereenkomst:
Bij de verkoop zal er een standaard NVM koopovereenkomst worden gehanteerd. Bij woningen welke ouder zijn dan 20 jaar, worden de volgende clausules opgenomen in de koopovereenkomst:
- Asbestclausule;
- Ouderdomsclausule.

Koop je de woning zonder voorbehoud van financiering? Dan zullen wij een termijn hanteren van 14 dagen na het opstellen van de koopovereenkomst voor het storten van de bankgarantie/waarborgsom.

Deze informatie is door ons met de nodige zorgvuldigheid samengesteld. Onzerzijds wordt echter geen enkele aansprakelijkheid aanvaard voor enige onvolledigheid, onjuistheid of anderszins, dan wel de gevolgen daarvan. Alle opgegeven maten en oppervlakten zijn indicatief.
+ toon meer
deze woning is Verkocht

van Heutszlaan 146 Ede

van Heutszlaan 146

6711 KW, Ede
Ditters open huis: 5 april 2025 10:00 - 12:00 uur
Landelijke Open Huizen Route NVM: 5 april 2025 11:00 uur - 15:00 uur
Vanaf€ 325.000 k.k.

Schakel een aankoopmakelaar in.

Snel handelen helpt je jouw droomhuis te bemachtigen. Zo vergroot je de kans dat je er op tijd bij bent.
Ede
verkocht

Of maak vrijblijvend een zoekprofiel aan.

Vergelijkbare woningen

Hypotheken

Onafhankelijk hypotheekadvies

  • Ligt jouw droomhuis binnen handbereik?
  • Wil je jouw huidige hypotheek verhogen?
  • Is er hypotheekruimte voor verduurzaming?

Blijf op de hoogte

Ontvang als eerste updates over nieuw aanbod en mis geen enkele kans om jouw droomwoning te vinden.

Gratis waardebepaling of verkoopgesprek

Met de vrijblijvende waardecheck weet je snel waar je aan toe bent. Onze makelaars kijken naar de lokale markt en vergelijkbare woningen in jouw buurt om een goede schatting te geven.

Realiseer al jouw woondromen met Ditters

Wij zijn een team van gedreven vastgoedexperts met een passie voor het maken van verbindingen – tussen kopers en verkopers, huurders en verhuurders. Met een frisse kijk op de makelaardij combineren we expertise met creativiteit. Onze makelaars luisteren écht en nemen de tijd om jouw wensen te begrijpen.


Bij Ditters sta je er niet alleen voor. We denken met je mee, begeleiden je in elke stap en zijn altijd bereikbaar voor vragen. Neem gerust contact met ons op – we helpen je graag verder!