Omschrijving

In de rustige en groene wijk Ede-Oost ligt deze lichte en goed onderhouden maisonnette met een woonoppervlakte van 86 m². De woning beschikt over drie slaapkamers, een moderne badkamer en een balkon met uitzicht over het groen. Dankzij de ruime hal, de vele inbouwkasten en de prettige lichtinval is dit een comfortabele woning met een praktische indeling.

De woning ligt in een fijne woonwijk in Ede-Oost, uitkijkend op het groen. Voorzieningen zoals supermarkten, scholen en openbaar vervoer liggen op loopafstand. Het centrum van Ede is binnen enkele minuten fietsen bereikbaar, en ook de invalswegen A12 en A30 liggen op ongeveer zes minuten rijden. De combinatie van rust, bereikbaarheid en een groene omgeving maakt dit een aantrekkelijke plek om te wonen.

Pluspunten van deze woning

+ Fijn licht in de woonkamer dankzij raampartijen
+ Moderne badkamer met inloopdouche, wastafelmeubel en toilet
+ Drie ruime slaapkamers, alle kamers zijn voorzien van goed daglicht
+ Vier praktische inbouwkasten op de eerste verdieping
+ Balkon met uitzicht op groen, gelegen op het zuidwesten
+ Berging van circa 8 m² op de begane grond
+ Keuken vernieuwd in 2020
+ Openbare parkeergelegenheid voor de deur
+De servicekosten bedragen €169,00 per maand

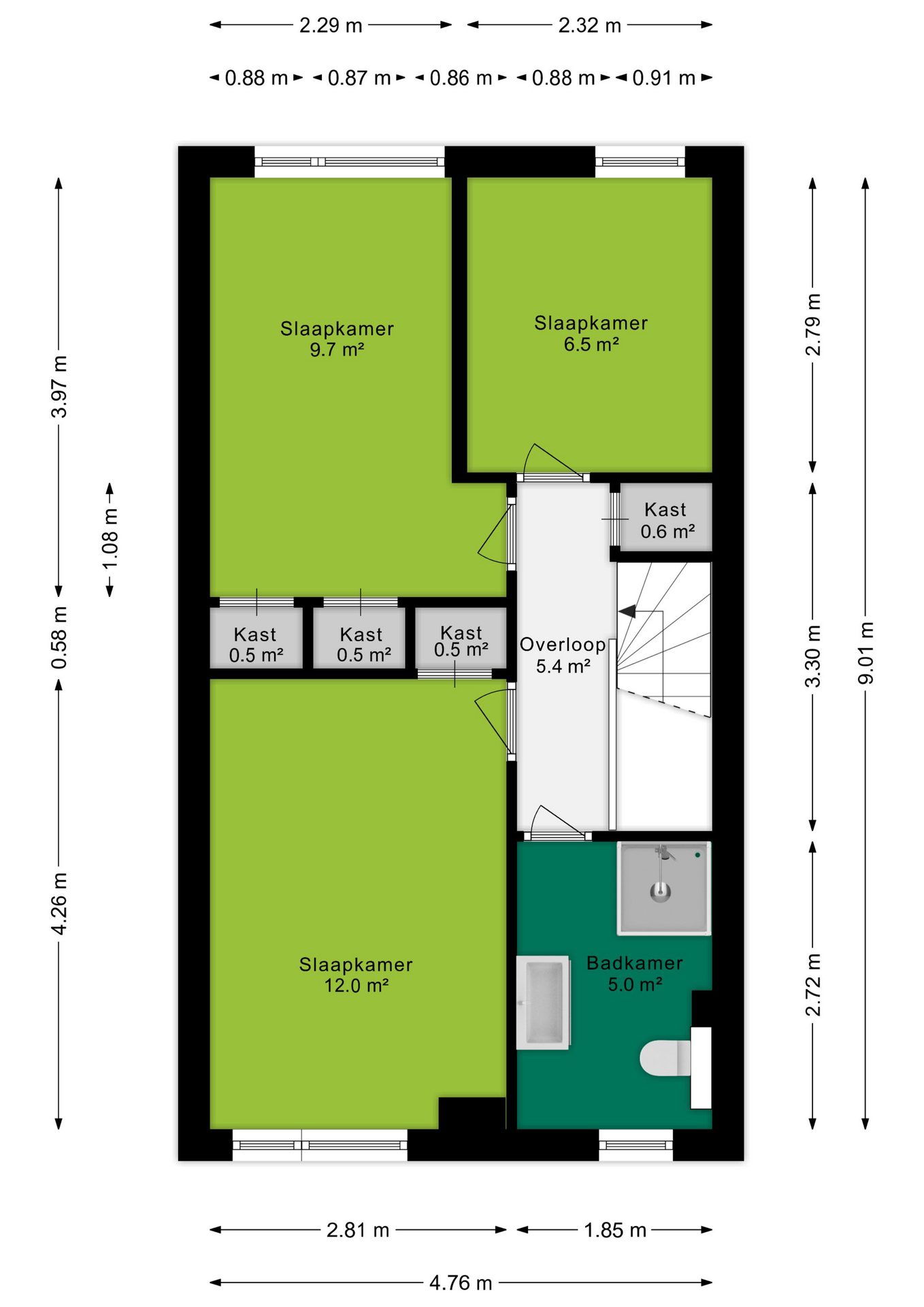
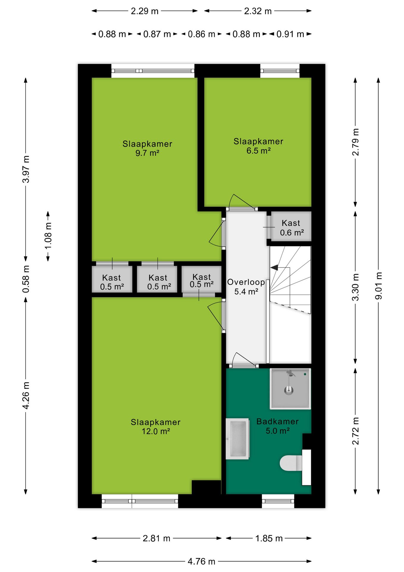
Indeling
Begane grond
De ruime hal geeft toegang tot het toilet, praktische trapkast, vaste kast en de keuken. De keuken is opgesteld in lichte kleuropstelling met bovenkasten voor een extra bergruimte. De moderne keuken is vernieuwd in 2020 en voorzien van een kookplaat, oven-combimagnetron, koelvriescombinatie en vaatwasser. Vanuit de keuken is er een open verbinding met de woonkamer, die dankzij de ramen over fijn daglicht beschikt. Via een deur in de woonkamer stap je het balkon op, dat een fijne plek biedt om van de middagzon te genieten.

Eerste verdieping
Via de vaste trap kom je op de overloop, die toegang geeft tot drie slaapkamers van 6,5 m², 9,7 m² en 12 m². Alle kamers zijn recht opgetrokken en voorzien van een nette laminaatvloer. Daarnaast zijn er op deze verdieping vier inbouwkasten aanwezig, wat zorgt voor veel opbergruimte. De badkamer aan de voorzijde heeft een moderne en rustgevende uitstraling, met een inloopdouche, wastafelmeubel en toilet.

Buitenruimte
Het balkon is bereikbaar vanuit de woonkamer en biedt een gezellige plek om te ontspannen met uitzicht over het groen. De ligging op het zuidwesten zorgt voor veel licht in de middag en vroege avond.

Samenvatting
Van Heutszlaan 4 is een lichte en goed onderhouden maisonnette met drie slaapkamers, een moderne badkamer, moderne keuken en een balkon op het zuidwesten. Dankzij de praktische indeling, de vele inbouwkasten en de rustige ligging nabij het centrum is dit een ideale woning voor wie comfortabel en centraal wil wonen in Ede.

Koopovereenkomst:
Bij de verkoop zal er een standaard NVM koopovereenkomst worden gehanteerd.
Bij woningen welke ouder zijn dan 20 jaar, worden de volgende clausules opgenomen in de koopovereenkomst:
- Asbestclausule;
- Ouderdomsclausule.

Koop je de woning zonder voorbehoud van financiering? Dan zullen wij een termijn hanteren van 6 weken na het opstellen van de koopovereenkomst voor het storten van de bankgarantie/waarborgsom.

Deze informatie is door ons met de nodige zorgvuldigheid samengesteld. Onzerzijds wordt echter geen enkele aansprakelijkheid aanvaard voor enige onvolledigheid, onjuistheid of anderszins, dan wel de gevolgen daarvan. Alle opgegeven maten en oppervlakten zijn indicatief.
+ toon meer
deze woning is Verkocht

van Heutszlaan 4 Ede

van Heutszlaan 4

6711 KN, Ede
Ditters open huis: 5 april 2025 10:00 - 12:00 uur
Landelijke Open Huizen Route NVM: 5 april 2025 11:00 uur - 15:00 uur
Vanaf€ 325.000 k.k.

Schakel een aankoopmakelaar in.

Snel handelen helpt je jouw droomhuis te bemachtigen. Zo vergroot je de kans dat je er op tijd bij bent.
Ede
verkocht

Of maak vrijblijvend een zoekprofiel aan.

Vergelijkbare woningen

Hypotheken

Onafhankelijk hypotheekadvies

  • Ligt jouw droomhuis binnen handbereik?
  • Wil je jouw huidige hypotheek verhogen?
  • Is er hypotheekruimte voor verduurzaming?

Blijf op de hoogte

Ontvang als eerste updates over nieuw aanbod en mis geen enkele kans om jouw droomwoning te vinden.

Gratis waardebepaling of verkoopgesprek

Met de vrijblijvende waardecheck weet je snel waar je aan toe bent. Onze makelaars kijken naar de lokale markt en vergelijkbare woningen in jouw buurt om een goede schatting te geven.

Realiseer al jouw woondromen met Ditters

Wij zijn een team van gedreven vastgoedexperts met een passie voor het maken van verbindingen – tussen kopers en verkopers, huurders en verhuurders. Met een frisse kijk op de makelaardij combineren we expertise met creativiteit. Onze makelaars luisteren écht en nemen de tijd om jouw wensen te begrijpen.


Bij Ditters sta je er niet alleen voor. We denken met je mee, begeleiden je in elke stap en zijn altijd bereikbaar voor vragen. Neem gerust contact met ons op – we helpen je graag verder!