Omschrijving

Deze maisonnette met berging bevindt zich aan de gewilde Van Heutszlaan. De groene omgeving, nabijheid van bossen en heide, en de fietsafstand tot het centrum maken dit een aantrekkelijke woonlocatie. Aan de zijkant van het complex zijn er verschillende parkeermogelijkheden en in de onderbouw is een berging beschikbaar. De woning ligt op de 2e en 3e verdieping. Het balkon met vrij uitzicht op de bosrijke omgeving is gelegen op het oosten waar je kunt genieten van de ochtend- en middagzon.

De woning vereist volledige modernisering en is perfect voor starters of investeerders!

De locatie is uitstekend; je wandelt eenvoudig naar het bos 'de Sysselt' en van daaruit verder naar de Ginkelse Heide. Je woont hier niet alleen omringd door natuur, maar je ervaart het ook vanuit elke hoek van de woning als je naar buiten kijkt. Vanaf de Van Heutszlaan bereik je snel (fiets- en loopafstand) het gezellige centrum van Ede van een groot aanbod aan winkels en horecagelegenheden, het Intercitystation Ede-Wageningen en NS station Ede Centrum. Daarnaast zijn er diverse basisscholen en kinderdagverblijf 'Eigenwijs' in de directe omgeving.

Globale indeling
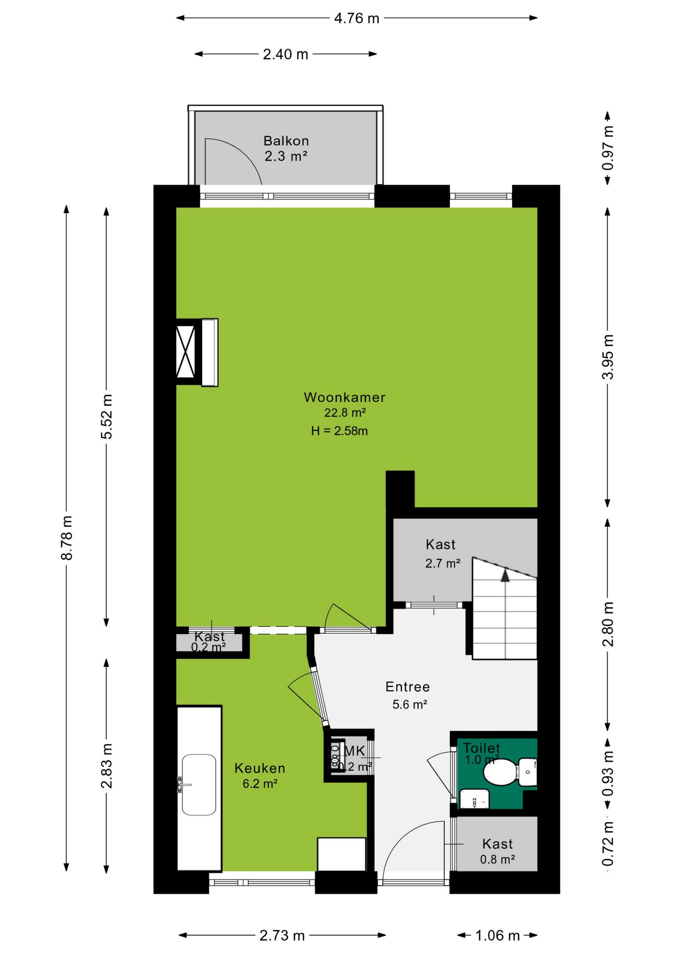
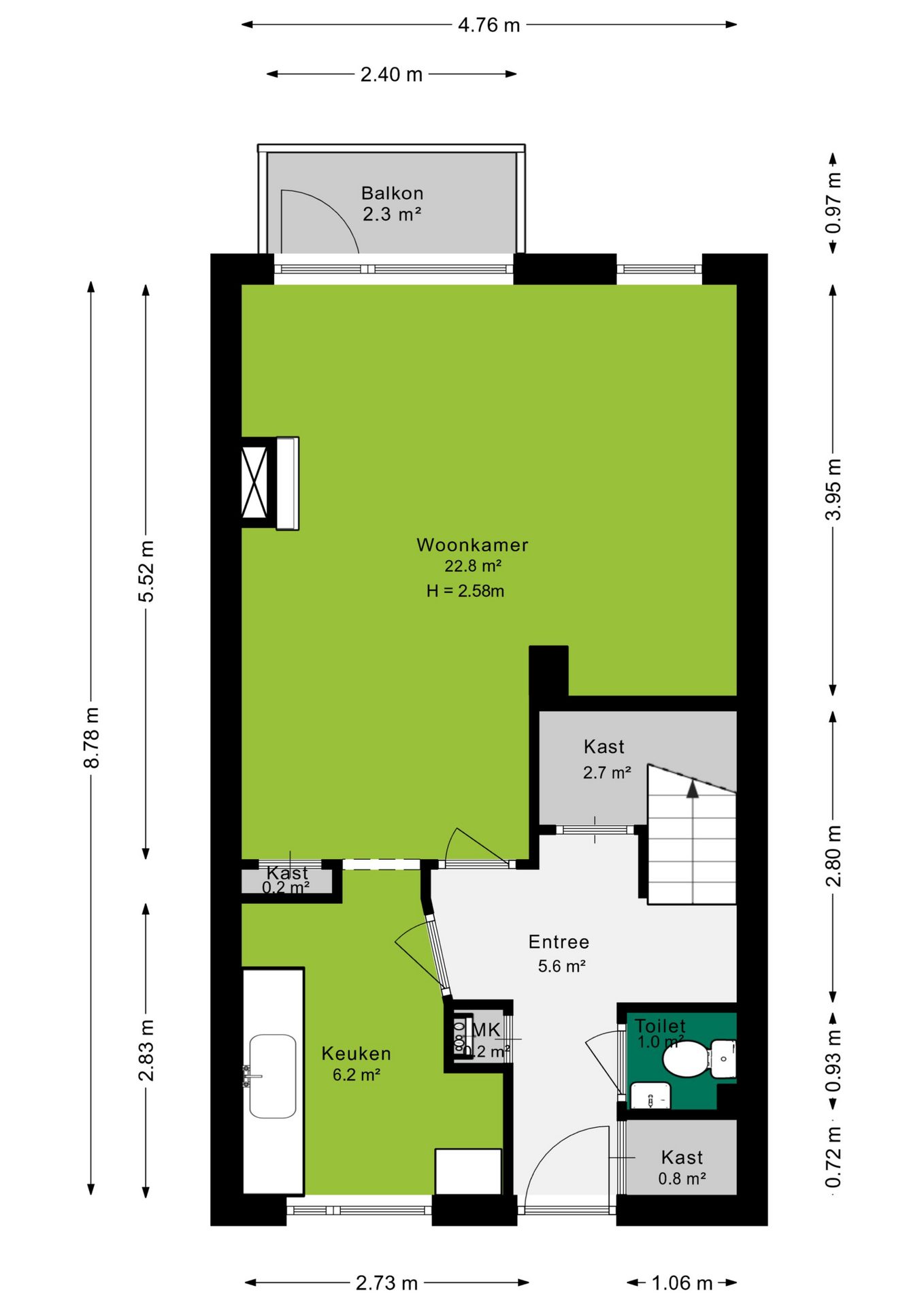
Begane grond

In dit praktisch ingedeelde appartement kom je binnen in de hal met provisiekast, meterkast, toiletruimte, bergkast, toegang tot de woonkamer, keuken en trapopgang naar de eerste verdieping.

Vanuit de hal kom je in de woonkamer. Een goed in te delen leefruimte uitgerust met een bergkast en een deur naar het balkon gelegen op het oosten waar je in alle rust kunt genieten van de bosrijke omgeving! In de afgesloten keuken is een eenvoudig keukenblok aanwezig.

Eerste verdieping
Royale overloop met toegang tot drie slaapkamers, een praktische bergkast en de badkamer. De ouderslaapkamer en de tweede slaapkamer zijn voorzien van een inbouwkast. De derde slaapkamer kan ook als studieruimte fungeren.
De eenvoudige badkamer is voorzien van een wastafel, douchehoek, 2e toilet en wasmachine aansluiting.

Woonoppervlakte 83 m²
Inhoud woning 262 m³

Bijzonderheden
Verwarming CV ketel Remeha Tzerra
Warmwater CV ketel Remeha Tzerra
Bouwjaar 1955
Isolatie Enkele beglazing, dakisolatie
Balkonligging Oosten
Aanvaarding In overleg

Kenmerken
+ Opknapper, ideaal voor de starter of belegger;
+ Voldoende parkeergelegenheid aanwezig;
+ Servicekosten € 208,51 per maand;
+ In prachtige bosrijke omgeving gelegen;
+ Kindvriendelijke woonwijk, diverse basisscholen en kinderdagverblijf op loopafstand;
+ Grote gezamenlijke tuin rondom het complex aanwezig;
+ Projectnotaris is Van Putten Van Apeldoorn Notarissen te Ede.


Koopovereenkomst:
Bij de verkoop zal er een standaard NVM koopovereenkomst worden gehanteerd. Bij woningen welke ouder zijn dan 20 jaar, worden de volgende clausules opgenomen in de koopovereenkomst:
- Asbestclausule;
- Ouderdomsclausule.

Koopt u de woning zonder voorbehoud van financiering? Dan zullen wij een termijn hanteren van 14 dagen na het opstellen van de koopovereenkomst voor het storten van de bankgarantie/waarborgsom.

Deze informatie is door ons met de nodige zorgvuldigheid samengesteld. Onzerzijds wordt echter geen enkele aansprakelijkheid aanvaard voor enige onvolledigheid, onjuistheid of anderszins, dan wel de gevolgen daarvan. Alle opgegeven maten en oppervlakten zijn indicatief.
+ toon meer
deze woning is Verkocht

van Heutszlaan 80 1 Ede

van Heutszlaan 80 1

6711 KS, Ede
Ditters open huis: 5 april 2025 10:00 - 12:00 uur
Landelijke Open Huizen Route NVM: 5 april 2025 11:00 uur - 15:00 uur
Vanaf€ 285.000 k.k.

Schakel een aankoopmakelaar in.

Snel handelen helpt je jouw droomhuis te bemachtigen. Zo vergroot je de kans dat je er op tijd bij bent.
Ede
verkocht

Of maak vrijblijvend een zoekprofiel aan.

Vergelijkbare woningen

Hypotheken

Onafhankelijk hypotheekadvies

  • Ligt jouw droomhuis binnen handbereik?
  • Wil je jouw huidige hypotheek verhogen?
  • Is er hypotheekruimte voor verduurzaming?

Blijf op de hoogte

Ontvang als eerste updates over nieuw aanbod en mis geen enkele kans om jouw droomwoning te vinden.

Gratis waardebepaling of verkoopgesprek

Met de vrijblijvende waardecheck weet je snel waar je aan toe bent. Onze makelaars kijken naar de lokale markt en vergelijkbare woningen in jouw buurt om een goede schatting te geven.

Realiseer al jouw woondromen met Ditters

Wij zijn een team van gedreven vastgoedexperts met een passie voor het maken van verbindingen – tussen kopers en verkopers, huurders en verhuurders. Met een frisse kijk op de makelaardij combineren we expertise met creativiteit. Onze makelaars luisteren écht en nemen de tijd om jouw wensen te begrijpen.


Bij Ditters sta je er niet alleen voor. We denken met je mee, begeleiden je in elke stap en zijn altijd bereikbaar voor vragen. Neem gerust contact met ons op – we helpen je graag verder!