Omschrijving

Royaal wonen in een karakteristieke jaren ’30 woning met modern comfort!

Deze vrijstaande jaren '30 woning met een woonoppervlakte van 169 m² op een perceel van 640 m² biedt alles wat je zoekt in een droomhuis. De woning beschikt over een splitlevel woonkamer met erker en grote raampartijen, een moderne keuken met hoogwaardige apparatuur, en een zonnige achtertuin met vijver en kas. Met drie riante slaapkamers en een luxe badkamer op de eerste verdieping, alsmede een zolder met sauna en hoge nok op de tweede verdieping, is er aan ruimte geen gebrek.

De Van Irhovenlaan ligt in een rustige, groene wijk van Ede, die bekendstaat om zijn vriendelijke bewoners en ruime opzet. Voorzieningen zoals supermarkten, scholen en sportfaciliteiten bevinden zich op korte afstand. De bereikbaarheid is uitstekend met diverse busverbindingen en een trein- en busstation nabij. Via de uitvalswegen A12 en A30 ben je snel in steden als Arnhem, Utrecht en Amersfoort. Kortom, een fantastische locatie voor zowel de dagelijkse boodschappen als woon-werkverkeer.

Deze woning biedt een harmonieuze mix van charme en modern comfort, op een rustige en gunstige locatie. Hier geniet je van ruimte en luxe, zowel binnen als buiten. Ben je op zoek naar een karakteristieke en ruime woning? Dan is deze woning absoluut het bekijken waard!

Enkele pluspunten van de woning:
+ Karakteristieke vrijstaande jaren ’30 woning
+ 24 Zonnepanelen aanwezig
+ Splitlevel woonkamer met grote raampartijen en openslaande tuindeuren
+ Moderne keuken met hoogwaardige apparatuur
+ Drie ruime slaapkamers met lichte afwerking
+ Luxe badkamer met vrijstaand ligbad en inloop regendouche
+ Tweede verdieping met ruime zolder en sauna
+ Grote voortuin met eigen oprit en garage
+ Riante fraaie achtertuin met vijver, kas en overkapping
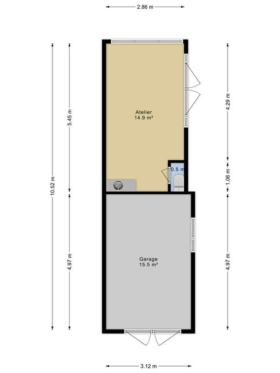
+ Ruim atelier met eigen toilet
+ Kelderruimte

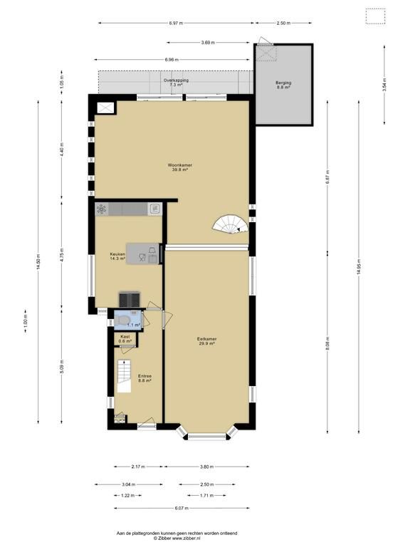
Indeling
Begane grond
Bij binnenkomst in de zeer ruime entree valt meteen de doorlopende parketvloer op. Hier vind je de meterkast, een bergkast, het toilet en de trapopgang naar de eerste verdieping. Vanuit de hal heb je toegang tot zowel de keuken als de woonkamer.

De woonkamer is verrassend ruim en licht door de grote raampartijen en erker. Dankzij de splitlevel-indeling creëer je eenvoudig een sfeervolle zit- en eethoek. Twee treden lager kom je in een tweede royale woonkamer, die tevens dienst kan doen als zitkamer. De openslaande tuindeuren bieden direct toegang tot de achtertuin. Een wenteltrap leidt naar een knus hoekje dat ideaal is voor ontspanning. De moderne en ruime keuken is van alle gemakken voorzien. Het grote keukenmeubel bestaat uit een kastenwand en een spoeleiland met ontbijtbar. Hier vind je apparatuur zoals een gasfornuis, afzuigkap, combi-oven, koel-/vriescombinatie, vaatwasser en koffiemachine. Een droomkeuken voor de kookliefhebber!

Eerste verdieping
Op de eerste verdieping brengt de doorlopende laminaatvloer je naar drie ruime slaapkamers en een luxe badkamer. De riante hoofdslaapkamer aan de achterzijde heeft een hoge nok, een ingebouwde wandkast en openslaande deuren naar het balkon. Middels een trap bereik je de tweede verdieping. De overige slaapkamers zijn eveneens ruim en beschikken over een lichte afwerking en grote raampartijen, wat zorgt voor een prettige lichtinval. De badkamer is modern en biedt alle luxe. Hier vind je een vrijstaand ligbad, een inloop regendouche, een wastafelmeubel, een designradiator en een hangend toilet. Het moderne tegelwerk zorgt voor een strakke en tijdloze uitstraling.

Tweede verdieping
Via een vaste trap bereik je de overloop met vide op de tweede verdieping. Deze verdieping is perfect als zolderruimte met nette afwerking, een hoge nok en een dakraam voor natuurlijke lichtinval. Hier bevindt zich ook de cv-installatie en heb je toegang tot een ruime sauna. Ideaal voor ontspanning na een lange dag.

Buitenruimte
Aan de voorzijde van de woning ligt een ruime voortuin met eigen oprit en voldoende parkeergelegenheid, inclusief een garage. De achtertuin is een groene oase met een fraai aangelegde tuin, vijver, kas en een ruim terras grenzend aan de woning. Door het balkon is er een overkapping waar je heerlijk van buiten kunt genieten, ongeacht het weer. Meerdere zitplekjes en een loopdeur naar de garage bieden volop mogelijkheden. Tot slot leidt de achterzijde naar een ruim en licht atelier met eigen toilet.

Afmetingen
Perceeloppervlakte: 640 m²
Inhoud woning: 793 m³
Woonoppervlakte: 169 m²

Bijzonderheden
Verwarming: Cv-installatie, ATAG blauw engel;
Warm water: Cv-installatie, ATAG blauw engel;
Isolatie: Dak-, muurisolatie, HR-glas;
Bouwjaar: 1935;
Tuinligging: Zuiden;
Aanvaarding: In overleg.

Koopovereenkomst:
Bij de verkoop zal er een standaard NVM koopovereenkomst worden gehanteerd. Bij woningen welke ouder zijn dan 20 jaar, worden de volgende clausules opgenomen in de koopovereenkomst:
- Asbestclausule;
- Ouderdomsclausule.

Koop je de woning zonder voorbehoud van financiering? Dan zullen wij een termijn hanteren van 14 dagen na het opstellen van de koopovereenkomst voor het storten van de bankgarantie/waarborgsom.

Deze informatie is door ons met de nodige zorgvuldigheid samengesteld. Onzerzijds wordt echter geen enkele aansprakelijkheid aanvaard voor enige onvolledigheid, onjuistheid of anderszins, dan wel de gevolgen daarvan. Alle opgegeven maten en oppervlakten zijn indicatief.
+ toon meer
deze woning is Verkocht

van Irhovenlaan 3 Ede

van Irhovenlaan 3

6711 MN, Ede
Ditters open huis: 5 april 2025 10:00 - 12:00 uur
Landelijke Open Huizen Route NVM: 5 april 2025 11:00 uur - 15:00 uur
Vanaf€ 995.000 k.k.

Schakel een aankoopmakelaar in.

Snel handelen helpt je jouw droomhuis te bemachtigen. Zo vergroot je de kans dat je er op tijd bij bent.
Ede
verkocht

Of maak vrijblijvend een zoekprofiel aan.

Vergelijkbare woningen

Hypotheken

Onafhankelijk hypotheekadvies

  • Ligt jouw droomhuis binnen handbereik?
  • Wil je jouw huidige hypotheek verhogen?
  • Is er hypotheekruimte voor verduurzaming?

Blijf op de hoogte

Ontvang als eerste updates over nieuw aanbod en mis geen enkele kans om jouw droomwoning te vinden.

Gratis waardebepaling of verkoopgesprek

Met de vrijblijvende waardecheck weet je snel waar je aan toe bent. Onze makelaars kijken naar de lokale markt en vergelijkbare woningen in jouw buurt om een goede schatting te geven.

Realiseer al jouw woondromen met Ditters

Wij zijn een team van gedreven vastgoedexperts met een passie voor het maken van verbindingen – tussen kopers en verkopers, huurders en verhuurders. Met een frisse kijk op de makelaardij combineren we expertise met creativiteit. Onze makelaars luisteren écht en nemen de tijd om jouw wensen te begrijpen.


Bij Ditters sta je er niet alleen voor. We denken met je mee, begeleiden je in elke stap en zijn altijd bereikbaar voor vragen. Neem gerust contact met ons op – we helpen je graag verder!