Omschrijving

Gelegen aan de Veenderweg 251, biedt deze tussenwoning een lichte woonkamer, uitgebouwde eetkamer met keuken, drie slaapkamers, een compacte badkamer en een zonnige tuin op het zuiden.

In de directe omgeving heb je alle dagelijkse gemakken binnen handbereik: het winkelcentrum 'Rozenplein' voor alle benodigdheden, het Proosdijpark ligt gelegen aan de overkant van de woning en het centrum van Ede ligt op fietsafstand. Daarnaast zijn diverse (basis)scholen, openbaar vervoer en sportfaciliteiten gemakkelijk bereikbaar, evenals de uitvalswegen A12 en A30.


Alle kenmerken op een rij:
* uitgebouwde eetkamer en keuken;
* voorzien van drie slaapkamers;
* Compacte badkamer;
* Diepe tuin op het zuiden;
* Dichtbij het centrum van Ede en de belangrijke uitvalswegen.


Begane grond
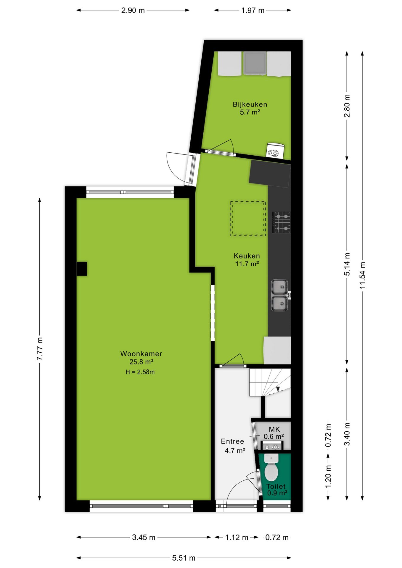
Via de entree – waar tevens het toilet, de meterkast en de trapopgang te vinden zijn – betreed je de royale woonkamer. De grote raampartij aan de voorzijde van de woning zorgt voor veel natuurlijk licht en creëert een uitnodigende sfeer. Er is voldoende ruimte voor een ruime hoekbank. Centraal gelegen bevindt zich het eetgedeelte, dat genoeg plek biedt voor een grote eettafel. Zowel het eetgedeelte als de aangrenzende keuken zijn in 2008 uitgebouwd. De ruime, halfopen keuken is uitgerust met diverse inbouwapparatuur, waaronder een fornuis, afzuigkap, oven, koelkast en vaatwasser. Bovendien zorgt het dakraam voor optimaal lichtinval. Uit de keuken is er direct toegang tot de tuin en een praktische bijkeuken, waar de aansluitingen voor wasmachine en droger zich bevinden.

Eerste verdieping
Via de vaste trap bereik je de overloop, die toegang biedt tot alle vertrekken. Er zijn drie slaapkamers, met afmetingen van 11,2 m², 7,9 m² en 4,7 m². Al deze kamers genieten van voldoende daglicht, terwijl twee van de slaapkamers tevens over een ingebouwde kledingkast beschikken. De compacte badkamer van 2,1 m² is voorzien van een wastafel, een planchet en een inloopdouche. Daarnaast zorgt een raam voor de benodigde ventilatie.

Tuin
De zonnige tuin van maar liefst 130 m², gelegen op het zuiden, biedt volop ruimte voor diverse zithoekjes en een speelhoek voor de kinderen. Een berging is eveneens aanwezig, al is deze aan vervanging toe. Bovendien is de tuin gemakkelijk bereikbaar via een achterom.

Bijzonderheden:
Verwarming: CV ketel Remeha Avanta 35C 2016;
Warm water: CV ketel Remeha Avanta 35C 2016;
Isolatie: gedeeltelijk dubbelglas en HR-++ glas;
Energielabel: E;
Bouwjaar: 1955;
Tuinligging: zuid;
Aanvaarding: in overleg.

Koopovereenkomst:
Bij de verkoop zal er een standaard NVM koopovereenkomst worden gehanteerd. Bij woningen welke ouder zijn dan 20 jaar, worden de volgende clausules opgenomen in de koopovereenkomst:
- Asbestclausule;
- Ouderdomsclausule.

Koop je de woning zonder voorbehoud van financiering? Dan zullen wij een termijn hanteren van 14 dagen na het opstellen van de koopovereenkomst voor het storten van de bankgarantie/waarborgsom.

Deze informatie is door ons met de nodige zorgvuldigheid samengesteld. Onzerzijds wordt echter geen enkele aansprakelijkheid aanvaard voor enige onvolledigheid, onjuistheid of anderszins, dan wel de gevolgen daarvan. Alle opgegeven maten en oppervlakten zijn indicatief.
+ toon meer
deze woning is Verkocht

Veenderweg 251 Ede

Veenderweg 251

6713 AH, Ede
Ditters open huis: 5 april 2025 10:00 - 12:00 uur
Landelijke Open Huizen Route NVM: 5 april 2025 11:00 uur - 15:00 uur
Vanaf€ 350.000 k.k.

Schakel een aankoopmakelaar in.

Snel handelen helpt je jouw droomhuis te bemachtigen. Zo vergroot je de kans dat je er op tijd bij bent.
Ede
verkocht

Of maak vrijblijvend een zoekprofiel aan.

Vergelijkbare woningen

Hypotheken

Onafhankelijk hypotheekadvies

  • Ligt jouw droomhuis binnen handbereik?
  • Wil je jouw huidige hypotheek verhogen?
  • Is er hypotheekruimte voor verduurzaming?

Blijf op de hoogte

Ontvang als eerste updates over nieuw aanbod en mis geen enkele kans om jouw droomwoning te vinden.

Gratis waardebepaling of verkoopgesprek

Met de vrijblijvende waardecheck weet je snel waar je aan toe bent. Onze makelaars kijken naar de lokale markt en vergelijkbare woningen in jouw buurt om een goede schatting te geven.

Realiseer al jouw woondromen met Ditters

Wij zijn een team van gedreven vastgoedexperts met een passie voor het maken van verbindingen – tussen kopers en verkopers, huurders en verhuurders. Met een frisse kijk op de makelaardij combineren we expertise met creativiteit. Onze makelaars luisteren écht en nemen de tijd om jouw wensen te begrijpen.


Bij Ditters sta je er niet alleen voor. We denken met je mee, begeleiden je in elke stap en zijn altijd bereikbaar voor vragen. Neem gerust contact met ons op – we helpen je graag verder!