Omschrijving

Op een uitstekende locatie, aan de rand van het centrum van Ede, met alle voorzieningen binnen handbereik tref je dit 2-kamer appartement met 60m² woonoppervlakte. Met een eigen parkeerplaats in de afgesloten én overdekte parkeerkelder hoef je nooit meer te zoeken naar een eigen parkeerplaats. Naast de voorzieningen in het centrum van Ede bevinden zich ook het treinstation Ede-centrum, diverse uitvalswegen, uitgestrekte bossen en de Ginkelse Heide in de nabijheid. De bushalte en supermarkt Albert Heijn zijn op loopafstand te vinden.

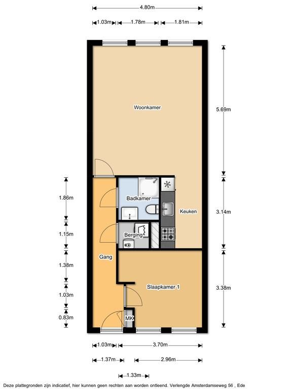
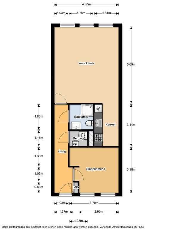
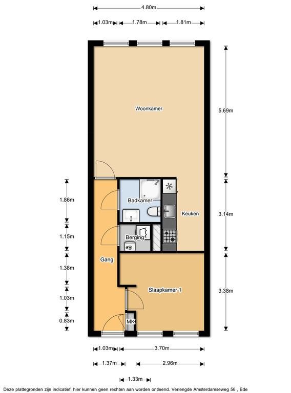
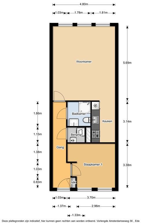
Het appartement bevindt zich op de tweede verdieping van het complex 'Nieuw Amsterdam' gelegen voorzien van een lift, intercom en een brede galerij en binnenplaats. Dankzij de raampartijen geniet het appartement van een fijn natuurlijk licht, en heb je vanaf de woonkamer uitzicht over de straat. Het appartement over een woonkamer en een half open keuken met een keuken in hoekopstelling voorzien van diverse inbouwapparatuur. De slaapkamer is gelegen aan de galerij zijde en beschikt over een vaste kast. De volledig betegelde badkamer in lichte kleurstelling is voorzien van een douchecabine, wastafel met wastafelmeubel en toilet. In de onderbouw van het complex heb je toegang tot een eigen berging van circa 4m² en een eigen parkeerplaats. Ideale ligging, vlakbij het centrum en de Edese bossen!

Alle feiten op een rij:
- 2-kamer appartement gelegen op de 2e verdieping
- Eigen parkeerplaats en berging in de afgesloten parkeerkelder
- Het complex 'Nieuw Amsterdam' is voorzien van lift, intercom en een brede galerij en binnenplaats
- Op loopafstand van het centrum van Ede
- Nabij diverse voorzieningen en uitvalswegen
- Het appartement staat momenteel leeg, de foto's geven een goede impressie en onlangs zijn alle wanden opnieuw geschilderd (m.u.v. badkamer en bergkast)
- De vereniging van eigenaren is actief en gezond, de maandelijkse bijdrage bedraagt circa € 126,-

Indeling
Via intercom-installatie is er toegang naar de lift en trappenhuis, en is het appartement vanuit de galerij te betreden.
Bij binnenkomst in de hal is er toegang naar de woonkamer, badkamer, vaste bergkast en de slaapkamer aan de galerijzijde. De lichte woonkamer (27 m2) is voorzien van een laminaatvloer en een half open keuken. De keuken is opgesteld in hoekopstelling en voorzien van diverse inbouwapparatuur.
De slaapkamer is circa 12m² groot en voorzien van een vaste kast. De badkamer beschikt over een douchecabine, toilet en wastafel. In de hal tref je de bergkast met witgoedaansluiting en de C.V. opstelling. Het appartement heeft in de parkeerkelder een eigen berging en parkeerplaats.

Koopovereenkomst:
Bij de verkoop zal er een standaard NVM koopovereenkomst met aanvullende de niet zelfbewoningsclausule worden gehanteerd. Bij woningen welke ouder zijn dan 20 jaar, worden de volgende clausules opgenomen in de koopovereenkomst:
- Asbestclausule
- Ouderdomsclausule

Koop je de woning zonder voorbehoud van financiering? Dan zullen wij een termijn hanteren van 14 dagen na het opstellen van de koopovereenkomst voor het storten van de bankgarantie/waarborgsom.

Deze informatie is door ons met de nodige zorgvuldigheid samengesteld. Onzerzijds wordt echter geen enkele aansprakelijkheid aanvaard voor enige onvolledigheid, onjuistheid of anderszins, dan wel de gevolgen daarvan. Alle opgegeven maten en oppervlakten zijn indicatief.
+ toon meer
deze woning is Verkocht

Verlengde Amsterdamseweg 56 Ede

Verlengde Amsterdamseweg 56

6711 CN, Ede
Ditters open huis: 5 april 2025 10:00 - 12:00 uur
Landelijke Open Huizen Route NVM: 5 april 2025 11:00 uur - 15:00 uur
Vanaf€ 298.000 k.k.

Schakel een aankoopmakelaar in.

Snel handelen helpt je jouw droomhuis te bemachtigen. Zo vergroot je de kans dat je er op tijd bij bent.
Ede
verkocht

Of maak vrijblijvend een zoekprofiel aan.

Vergelijkbare woningen

Hypotheken

Onafhankelijk hypotheekadvies

  • Ligt jouw droomhuis binnen handbereik?
  • Wil je jouw huidige hypotheek verhogen?
  • Is er hypotheekruimte voor verduurzaming?

Blijf op de hoogte

Ontvang als eerste updates over nieuw aanbod en mis geen enkele kans om jouw droomwoning te vinden.

Gratis waardebepaling of verkoopgesprek

Met de vrijblijvende waardecheck weet je snel waar je aan toe bent. Onze makelaars kijken naar de lokale markt en vergelijkbare woningen in jouw buurt om een goede schatting te geven.

Realiseer al jouw woondromen met Ditters

Wij zijn een team van gedreven vastgoedexperts met een passie voor het maken van verbindingen – tussen kopers en verkopers, huurders en verhuurders. Met een frisse kijk op de makelaardij combineren we expertise met creativiteit. Onze makelaars luisteren écht en nemen de tijd om jouw wensen te begrijpen.


Bij Ditters sta je er niet alleen voor. We denken met je mee, begeleiden je in elke stap en zijn altijd bereikbaar voor vragen. Neem gerust contact met ons op – we helpen je graag verder!