Omschrijving

Deze woning wordt verkocht door Woonstede. Deze woning wordt op dit moment uitsluitend verkocht aan huurders van een woningcorporatie, uit de gemeente Ede of Scherpenzeel. De verkoopperiode voor deze huurders duurt tot 20 mei 2025 12:00 uur. Biedingen van huurders moeten voor dit tijdstip binnen zijn. Vanaf 21 mei 2025 wordt de woning op de vrije markt aangeboden. Onder de woning tekst zijn de voorwaarden voor de verkoop van deze woning te vinden. Voor meer informatie: www.woonstede.nl/nieuws/huurders-krijgen-voorrang-bij-verkoop-huurwoningen/

Gezinswoning met 4 slaapkamers en een zonnige tuin op het westen waar je heerlijk van de middag en avondzon kan genieten. Deze tussenwoning, gelegen in de rustige wijk Maandereng, is er eentje met veel potentie om naar eigen wens en smaak in te richten! Met een woonoppervlakte van 132m² beschik je over genoeg leefruimte voor het gehele gezin.

De volgende kenmerken zullen je vast aanspreken; een ruime woonkamer van 28m², een open keuken, 4 slaapkamers en een ruime badkamer. De woning is aan de voorzijde gelegen in een rustig hofje. De achtertuin beschikt over een berging, achterom en is gelegen op het westen.

Voor de dagelijkse boodschappen kun je uitstekende terecht in het winkelcentrum Bellestein, het Rozenplein of bij de Albert Heijn XL. Op korte afstand vind je verder (basis)scholen, apotheek, huisarts, openbaar vervoer en sportgelegenheden. De bereikbaarheid van de woning is eveneens goed. De uitvalswegen A12 en A30 zijn gemakkelijk te bereiken, waardoor je snel en efficiënt naar andere steden en regio's kunt reizen. En heb je behoefte aan een moment in de natuur? Dan kun je een wandeling maken in het Proosdijpark of iets verderop genieten van de bossen en de Ginkelse Heide.

Indeling:
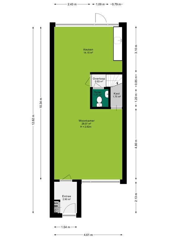
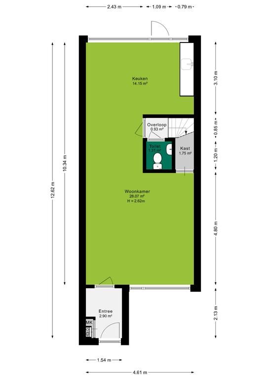
Begane grond:
Entreehal met meterkast en toegang naar de keuken en woonkamer. Aan de achterzijde tref je een eenvoudig keukenblok. Vanuit het raampartij is er in de keuken zicht naar de achtertuin. Met een keuken aan de achterzijde en een tuin op het westen beschik je over de juiste ingrediënten voor een heerlijke zomerse BBQ. De woonkamer is gesitueerd aan de voorzijde. Via de tussenhal is er toegang naar het toilet en de trapopgang naar de eerste verdieping.

Eerste verdieping:
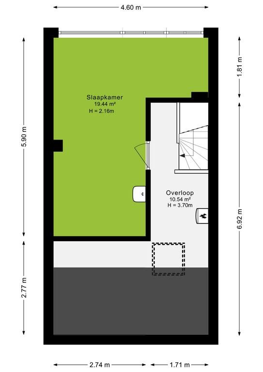
De overloop biedt toegang tot 3 slaapkamers, de badkamer en via de vaste trap is de tweede bereikbaar. De slaapkamers hebben allen een goede afmeting en zijn 16m², 11m² en 6m². De grootste slaapkamer beschikt daarnaast over een vaste bergkast. De badkamer is volledig betegeld en voorzien van een douche, wastafel en witgoed aansluiting.

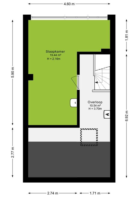
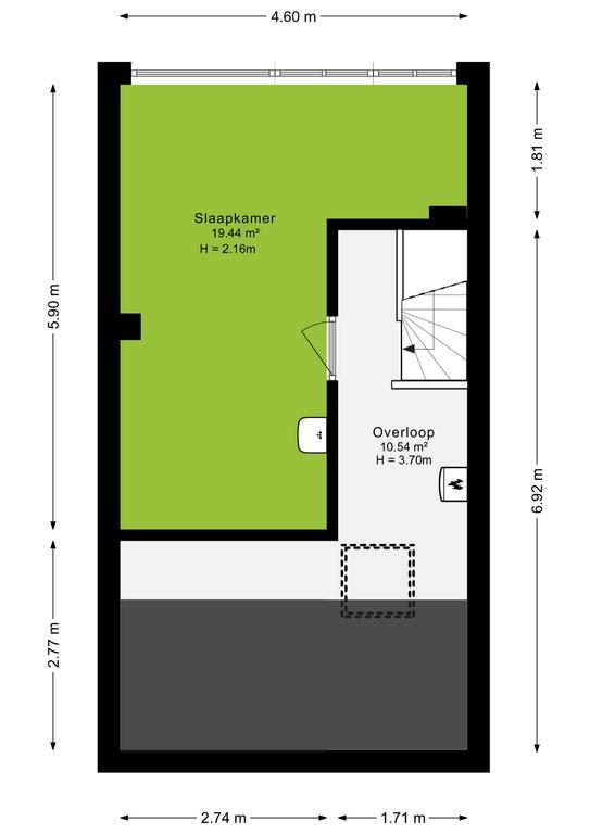
Tweede verdieping:
Hier tref je de vierde slaapkamer van 19m² met wastafel en een ruime voorzolder met bergruimte en de C.V.- opstelling.

Bijzonderheden:
- Dit is een woning die verkocht wordt door Woonstede. Deze woning wordt op dit moment uitsluitend verkocht aan huurders van een woningcorporatie, uit de gemeente Ede of Scherpenzeel.
- Er is een bouwtechnisch rapport aanwezig.

Voor de verkoop van deze woning gelden de volgende voorwaarden:
1. U bent huurder van een sociale huurwoning (van een woningcorporatie) en woonachtig in de gemeente Ede of Scherpenzeel.
2. Na koop van de woning komt uw huurwoning vrij voor verhuur.
3. De woning wordt aangeboden tegen taxatiewaarde, bieden kan vanaf dit bedrag.
4. Als er voor eerdergenoemde datum geen biedingen zijn ontvangen van huurders, dan wordt de woning opnieuw te koop aangeboden voor alle overige geïnteresseerden.

Wanneer bent u huurder van een sociale huurwoning?
1. U staat ingeschreven in de gemeente Ede of Scherpenzeel.
2. U huurt een woning of appartement van een woningcorporatie die valt binnen de huurgrenzen van sociale huur. Wilt u zeker weten of dit voor uw woning geldt, neem dan contact op met uw verhuurder.
3. Uw naam staat op het huurcontract.

Wat is het voordeel?
• U heeft als huurder vier weken de tijd om te kijken en te kopen, voordat de woning op de vrije markt komt.

Overige informatie:
• In de koopovereenkomst wordt een zelfbewoningsplicht artikel opgenomen.
• De eigendomsoverdracht zal plaatsvinden bij één van de projectnotarissen: Van Putten Van Apeldoorn Notarissen, Posthuma Schutte Notariaat of notaris.com.
• Aanvaarding: uiterlijk 10 weken na mondelinge overeenstemming.
+ toon meer
deze woning is Verkocht

Wildforster 30 Ede

Wildforster 30

6713 KB, Ede
Ditters open huis: 5 april 2025 10:00 - 12:00 uur
Landelijke Open Huizen Route NVM: 5 april 2025 11:00 uur - 15:00 uur
Vanaf€ 390.000 k.k.

Schakel een aankoopmakelaar in.

Snel handelen helpt je jouw droomhuis te bemachtigen. Zo vergroot je de kans dat je er op tijd bij bent.
Ede
verkocht

Of maak vrijblijvend een zoekprofiel aan.

Vergelijkbare woningen

Hypotheken

Onafhankelijk hypotheekadvies

  • Ligt jouw droomhuis binnen handbereik?
  • Wil je jouw huidige hypotheek verhogen?
  • Is er hypotheekruimte voor verduurzaming?

Blijf op de hoogte

Ontvang als eerste updates over nieuw aanbod en mis geen enkele kans om jouw droomwoning te vinden.

Gratis waardebepaling of verkoopgesprek

Met de vrijblijvende waardecheck weet je snel waar je aan toe bent. Onze makelaars kijken naar de lokale markt en vergelijkbare woningen in jouw buurt om een goede schatting te geven.

Realiseer al jouw woondromen met Ditters

Wij zijn een team van gedreven vastgoedexperts met een passie voor het maken van verbindingen – tussen kopers en verkopers, huurders en verhuurders. Met een frisse kijk op de makelaardij combineren we expertise met creativiteit. Onze makelaars luisteren écht en nemen de tijd om jouw wensen te begrijpen.


Bij Ditters sta je er niet alleen voor. We denken met je mee, begeleiden je in elke stap en zijn altijd bereikbaar voor vragen. Neem gerust contact met ons op – we helpen je graag verder!