Omschrijving

Ontdek je nieuwe thuis in Maarssen aan de Duivenkamp 235: een ruime tussenwoning met eigen oprit die je geheel naar eigen smaken en wensen kan moderniseren.

Ben je op zoek naar een ruim woonhuis met 4 slaapkamer en een ruimte tuin in Duivenkamp Maarssen? Zoek niet verder! Deze tussenwoning met speelse indeling is geheel te moderniseren naar jouw wensen en eisen.

Belangrijkste kenmerken:
- Tuingerichte woonkamer met ruime en brede achtertuin
- Vier comfortabele slaapkamers
- Eigen oprit
- Energielabel C
- Geheel naar eigen wensen en eisen te moderniseren

Omgeving:
Duivenkamp is een woonwijk in Maarssen, een plaats in de gemeente Stichtse Vecht in de provincie Utrecht, Nederland. Maarssen ligt ten noordwesten van de stad Utrecht en is een populaire woonplaats vanwege de nabijheid van stedelijke voorzieningen, terwijl het toch een relatief rustige en groene omgeving biedt.

Hier zijn enkele kenmerken van de wijk Duivenkamp:

1. Architectuur en Opzet: Duivenkamp bestaat voornamelijk uit een mix van eengezinswoningen en appartementen. De wijk is typisch voor de Nederlandse woonwijken die in de jaren '70 en '80 zijn ontwikkeld, met veel aandacht voor groenvoorzieningen en ruim opgezette straten.

2. Voorzieningen: In de nabijheid van Duivenkamp zijn diverse voorzieningen te vinden, zoals scholen, sportfaciliteiten, en winkels. De wijk is ook goed verbonden met het openbaar vervoer, waardoor het gemakkelijk is om naar nabijgelegen steden zoals Utrecht te reizen.

3. Groen en Recreatie: Duivenkamp en de omgeving bieden verschillende parken en groene gebieden, wat bijdraagt aan een aangename leefomgeving. Dit maakt het aantrekkelijk voor gezinnen en mensen die van een rustige woonomgeving houden.

4. Gemeenschapsgevoel: Net als veel andere woonwijken in Nederland, heeft Duivenkamp een actief gemeenschapsleven met buurtverenigingen en activiteiten die bijdragen aan een sterke sociale cohesie.

5. Bereikbaarheid: De wijk is goed bereikbaar met de auto en het openbaar vervoer. De nabijheid van belangrijke uitvalswegen maakt het gemakkelijk om naar andere delen van Nederland te reizen.


Indeling:
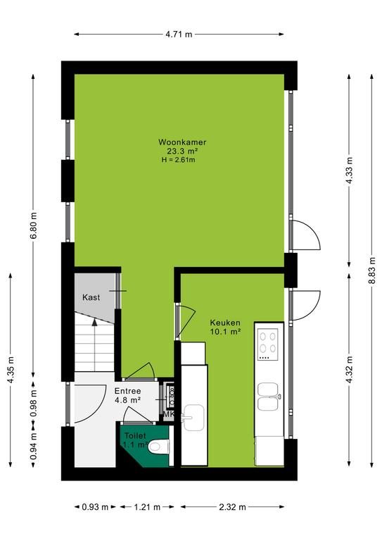
Via de eigen oprit bereik je de voordeur met daarachter de compacte hal met toegang tot de meterkast, toiletruimte en leefruimte. De woon-/eetkamer is circa 23 m² groot en beschikt middels een groot raam over veel daglichttoetreding. Vanaf de woon-eetkamer heb je uitzicht op de voorgelegen oprit en op de brede achtertuin die bereikbaar is via een loopdeur.

De gesloten keuken is gelegen aan de zij- en achterkant van de woning, beschikt naast een groot raam over een loopdeur naar de tuin en is met ruim v10 m² van een zeer prettig formaat. Wil je de keuken meer betrekken bij de woon-/eetkamer dan is dit mogelijk door de tussengelegen muur open te breken zodat er 1 geheel ontstaat. Ook vanuit de keuken is middels een loopdeur de brede achtertuin te bereiken.

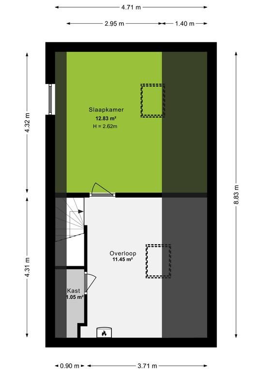
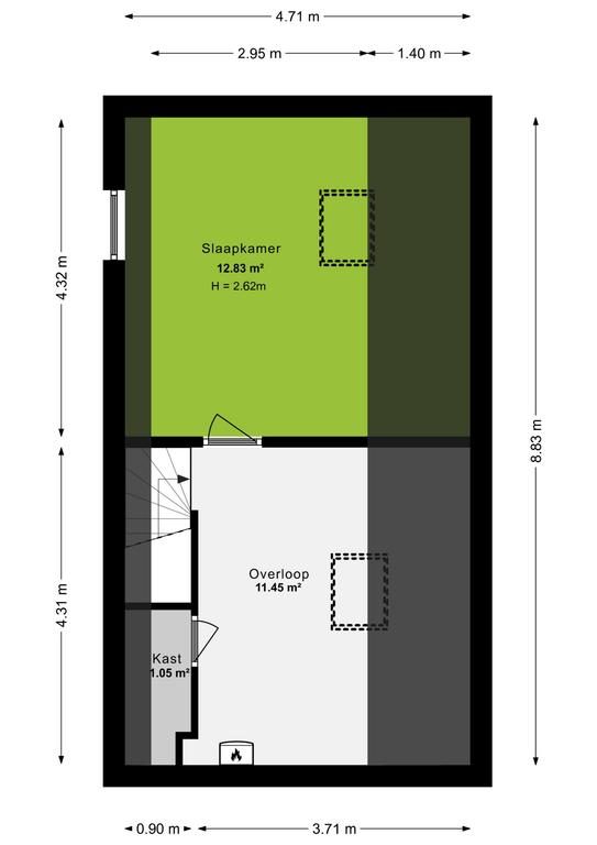
1e verdieping:
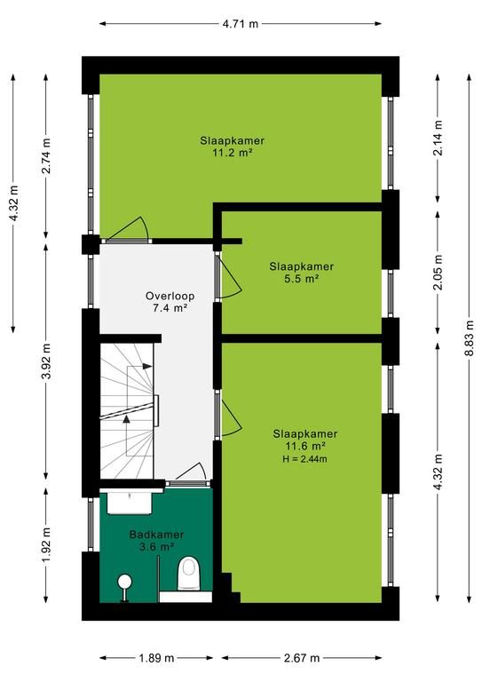
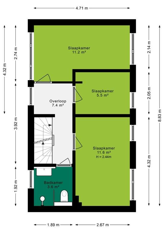
Via een vaste houten trap bereik je de 1e verdieping. Een overloop van bijna 7,5 m² geeft je toegang tot 3 slaapkamers en de badkamer. De slaapkamers hebben een oppervlakte van 11,2 m², 5,5 m² en 11,6 m². De badkamer is bijna 4 m² groot en beschikt over een inloopdouche, wastafelmeubel met enkele wastafel, designradiator, 2e toilet en een te openen raam voor de gewenste natuurlijke ventilatie.

2e verdieping:
Via een vaste houten trap bereik je de 2e verdieping. Een verdieping die is opgesplitst in een ruime voorzolder van bijna 12 m² en de 4e slaapkamer van bijna 13 m². Doordat de slaapkamer aan zowel de voorzijde als achterzijde is voorzien van een raam beschikt deze slaapkamer over veel daglichttoetreding.

Tuin:
Met bijna 9 m² is de woning zeer breed opgezet. Dit voel je ook terug in de achtertuin. Een ruime en brede tuin met een positionering op het zuidoosten. Een heerlijk tuin om te genieten van het buitenleven en de velen zonuren. Achterin de tuin staat nog een riante berging/schuur.

Kenmerken:
Verwarming: C.V-combiketel (huur)
Warm water: C.V-combiketel (huur)
Bouwjaar: 1977
Tuinligging: zuidoosten
Aanvaarding: in overleg, kan snel

Extra's:
- Ruime tussenwoning;
- Vier slaapkamers;
- Energielabel C;
- Ruime en brede achtertuin op het zuidoosten
- Parkeren op eigen oprit en op de openbare parkeerplaatsen;
- Geheel naar eigen smaken en eisen te moderniseren;
- Projectnotaris Caminada Notarissen te Rijswijk.

Koopovereenkomst:
Bij de verkoop zal er een standaard NVM koopovereenkomst worden gehanteerd. Bij woningen welke ouder zijn dan 20 jaar, worden de volgende clausules opgenomen in de koopovereenkomst:
- Asbestclausule;
- Ouderdomsclausule.

Daarnaast zullen onderstaande clausules/artikelen toegevoegd worden aan de koopovereenkomst:
- Niet zelfbewoners clausule
- Artikel ABC leveringsakte
- Artikel volmacht koper(s)

Koopt u de woning zonder voorbehoud van financiering? Dan zullen wij een termijn hanteren van 14 dagen na het opstellen van de koopovereenkomst voor het storten van de bankgarantie/waarborgsom.

Deze informatie is door ons met de nodige zorgvuldigheid samengesteld. Onzerzijds wordt echter geen enkele aansprakelijkheid aanvaard voor enige onvolledigheid, onjuistheid of anderszins, dan wel de gevolgen daarvan. Alle opgegeven maten en oppervlakten zijn indicatief.
+ toon meer
deze woning is Verkocht

Duivenkamp 235 Maarssen

Duivenkamp 235

3607 AL, Maarssen
Ditters open huis: 5 april 2025 10:00 - 12:00 uur
Landelijke Open Huizen Route NVM: 5 april 2025 11:00 uur - 15:00 uur
Vanaf€ 399.000 k.k.

Schakel een aankoopmakelaar in.

Snel handelen helpt je jouw droomhuis te bemachtigen. Zo vergroot je de kans dat je er op tijd bij bent.
Maarssen
verkocht

Of maak vrijblijvend een zoekprofiel aan.

Vergelijkbare woningen

Hypotheken

Onafhankelijk hypotheekadvies

  • Ligt jouw droomhuis binnen handbereik?
  • Wil je jouw huidige hypotheek verhogen?
  • Is er hypotheekruimte voor verduurzaming?

Blijf op de hoogte

Ontvang als eerste updates over nieuw aanbod en mis geen enkele kans om jouw droomwoning te vinden.

Gratis waardebepaling of verkoopgesprek

Met de vrijblijvende waardecheck weet je snel waar je aan toe bent. Onze makelaars kijken naar de lokale markt en vergelijkbare woningen in jouw buurt om een goede schatting te geven.

Realiseer al jouw woondromen met Ditters

Wij zijn een team van gedreven vastgoedexperts met een passie voor het maken van verbindingen – tussen kopers en verkopers, huurders en verhuurders. Met een frisse kijk op de makelaardij combineren we expertise met creativiteit. Onze makelaars luisteren écht en nemen de tijd om jouw wensen te begrijpen.


Bij Ditters sta je er niet alleen voor. We denken met je mee, begeleiden je in elke stap en zijn altijd bereikbaar voor vragen. Neem gerust contact met ons op – we helpen je graag verder!