Omschrijving

Ruime Hoekwoning met Vrijstaande Garage in het Pittoreske Otterlo.

Welkom in deze prachtige hoekwoning, een unieke kans voor wie op zoek is naar ruimte, comfort en een uitstekende ligging! Deze 6 meter brede woning, gebouwd in 1974 in eigen beheer, is tot in de puntjes verzorgd en biedt alles wat u nodig heeft voor een fijn gezinsleven. Gelegen aan een rustige straat in het charmante Otterlo, bent u hier verzekerd van een heerlijke woonomgeving met diverse voorzieningen binnen handbereik. Deze woning is volledig geïsoleerd met vloer-, muur- en dakisolatie, wat zorgt voor een energiezuinig en comfortabel leefklimaat. De vrijstaande, volledig geïsoleerde garage met pannendak biedt volop ruimte voor uw auto en extra opslag. Daarnaast is er een ruime oprit geschikt voor meerdere auto’s.

Leven in Otterlo:
Otterlo is een schilderachtig dorp gelegen op de Veluwe, bekend om zijn prachtige natuur en het beroemde Kröller-Müller Museum. Hier kunt u genieten van rust en ruimte, met de uitgestrekte bossen en heidevelden van Nationaal Park De Hoge Veluwe op steenworp afstand. Het dorp zelf biedt diverse voorzieningen zoals winkels, scholen en gezellige eetgelegenheden. Bovendien zijn steden als Arnhem en Ede gemakkelijk bereikbaar, wat Otterlo een ideale locatie maakt voor zowel natuurliefhebbers als stadswerkers.
Bent u op zoek naar een ruime, goed onderhouden woning op een toplocatie? Dan is deze hoekwoning in Otterlo precies wat u zoekt. Neem vandaag nog contact met ons op voor een bezichtiging en ontdek de vele mogelijkheden die deze woning te bieden heeft!

Begane Grond:
Via de overdekte entree kom je bij de hal met toiletruimte, trapopgang naar de eerste verdieping. Ook is de meterkast hier terug te vinden, de meterkast die is voorzien van vernieuwde elektra groepen. De sfeervolle straatgerichte woonkamer met haard biedt een warme en uitnodigende sfeer. Aan de tuinzijde bevindt zich het eettafel gedeelte met daarnaast de open keuken die is uitgerust met een inbouwkeuken in hoeksopstelling met diverse moderne apparatuur, waaronder een 5-pits gaskookplaat, RVS afzuigkap, oven, combi-magnetron en een koel-vriescombinatie.

Eerste Verdieping:
Via de vaste trap kom je bij de eerste verdieping, hier vindt je vier ruime slaapkamers en een nette badkamer. Een van de slaapkamers is ingericht als praktische waskamer met verhoogde opstelling voor wasmachine en droger en een vaste kast met schuifdeuren. De badkamer is ingericht met lichte wandtegels en antraciet vloertegels en beschikt over een ligbad (whirlpool)-douche combinatie, toilet en wastafelmeubel.

Tweede Verdieping:
De grote open zolderruimte is multifunctioneel en heeft in het verleden dienst gedaan als appartement. Met meerdere dakramen, veel bergruimte achter de knieschotten en een complete inbouwkeuken, voorzien van vaatwasser, koel-vriescombinatie, 4-pits gaskookplaat en afzuigkap, biedt deze verdieping tal van mogelijkheden.

Tuin:
Geniet van de zonsondergang in jou eigen paradijs! Een van de absolute hoogtepunten van deze prachtige hoekwoning is de op het westen gelegen achtertuin, waar je volop kunt genieten van de middag- en avondzon. Deze tuin is een waar paradijs voor zowel ontspanning als entertainment. De stijlvolle overkapping biedt een beschutte plek om te ontspannen met een goed boek of om gezellig te dineren met vrienden en familie, ongeacht het weer.

Unieke Tuinelementen:
Rachycarpus Fortuneii Palmboom: Centraal in de tuin staat een indrukwekkende Rachycarpus Fortuneii palmboom, die direct een exotische en luxe uitstraling geeft aan uw buitenruimte. Deze flinke palmboom is een echte blikvanger en zorgt voor een vakantiegevoel in eigen tuin.
Antraciet Kleurige Bestrating: De tuin is voorzien van moderne antraciet kleurige bestrating, wat niet alleen zorgt voor een strakke en eigentijdse uitstraling, maar ook praktisch is in onderhoud.
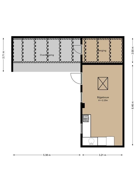
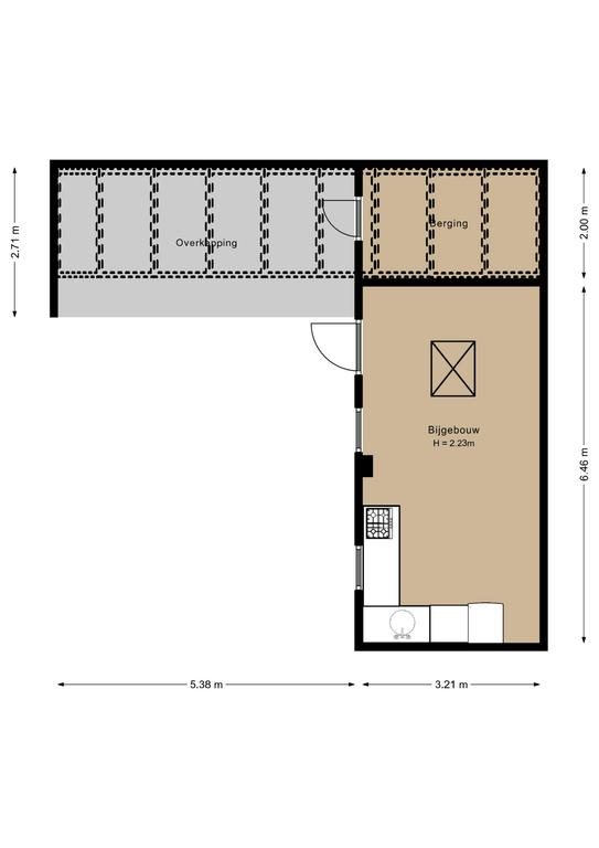
Vrijstaande Garage met Puntdak: De vrijstaande garage met puntdak biedt niet alleen ruimte voor uw auto, maar is ook voorzien van een extra keukenblok, wat ideaal is voor hobbyisten of als extra opslagruimte. Aangebouwd aan de garage vindt u een extra berging, perfect voor het opbergen van tuingereedschap of fietsen.
Deze achtertuin is de perfecte plek om te ontsnappen aan de drukte van het dagelijks leven en te genieten van uw eigen stukje rust en natuur. Of u nu groene vingers heeft en wilt tuinieren, of gewoon wilt ontspannen en genieten van de zonsondergang, deze tuin biedt het allemaal.

Bijzonderheden:
Woonoppervlakte: 132.0 m²
Perceel oppervlakte: 247.0 m²
Verwarming: Benraad Cv combiketel (2009), haardkachel
Warm water: Benraad Cv combiketel (2009)
Tuinligging: Westen
Isolatie: Dak-, vloer- en muurisolatie, grotendeels dubbel glas
Aanvaarding: In overleg

Koopovereenkomst:
Bij de verkoop zal er een standaard NVM koopovereenkomst worden gehanteerd. Bij woningen welke ouder zijn dan 20 jaar, worden de volgende clausules opgenomen in de koopovereenkomst:
- Asbestclausule;
- Ouderdomsclausule.

Koop je de woning zonder voorbehoud van financiering? Dan zullen wij een termijn hanteren van 14 dagen na het opstellen van de koopovereenkomst voor het storten van de bankgarantie/waarborgsom.

Deze informatie is door ons met de nodige zorgvuldigheid samengesteld. Onzerzijds wordt echter geen enkele aansprakelijkheid aanvaard voor enige onvolledigheid, onjuistheid of anderszins, dan wel de gevolgen daarvan. Alle opgegeven maten en oppervlakten zijn indicatief.
+ toon meer
deze woning is Verkocht

Feenstraweg 22 Otterlo

Feenstraweg 22

6731 CN, Otterlo
Ditters open huis: 5 april 2025 10:00 - 12:00 uur
Landelijke Open Huizen Route NVM: 5 april 2025 11:00 uur - 15:00 uur
Vanaf€ 550.000 k.k.

Schakel een aankoopmakelaar in.

Snel handelen helpt je jouw droomhuis te bemachtigen. Zo vergroot je de kans dat je er op tijd bij bent.
Otterlo
verkocht

Of maak vrijblijvend een zoekprofiel aan.

Vergelijkbare woningen

Hypotheken

Onafhankelijk hypotheekadvies

  • Ligt jouw droomhuis binnen handbereik?
  • Wil je jouw huidige hypotheek verhogen?
  • Is er hypotheekruimte voor verduurzaming?

Blijf op de hoogte

Ontvang als eerste updates over nieuw aanbod en mis geen enkele kans om jouw droomwoning te vinden.

Gratis waardebepaling of verkoopgesprek

Met de vrijblijvende waardecheck weet je snel waar je aan toe bent. Onze makelaars kijken naar de lokale markt en vergelijkbare woningen in jouw buurt om een goede schatting te geven.

Realiseer al jouw woondromen met Ditters

Wij zijn een team van gedreven vastgoedexperts met een passie voor het maken van verbindingen – tussen kopers en verkopers, huurders en verhuurders. Met een frisse kijk op de makelaardij combineren we expertise met creativiteit. Onze makelaars luisteren écht en nemen de tijd om jouw wensen te begrijpen.


Bij Ditters sta je er niet alleen voor. We denken met je mee, begeleiden je in elke stap en zijn altijd bereikbaar voor vragen. Neem gerust contact met ons op – we helpen je graag verder!