Omschrijving

Luxe en royale twee-onder-een-kapwoning op toplocatie in Rhenen – energielabel A, 16 zonnepanelen en volledig instapklaar!

Op een zeer geliefde en groene locatie vlak bij water, bos en het centrum van Rhenen staat deze luxueuze en instapklare twee-onder-een-kapwoning met maar liefst vier slaapkamers. De woning is in 2015 traditioneel gebouwd, uitstekend geïsoleerd en bijzonder ruim en praktisch ingedeeld. Hier geniet je van rust, ruimte én comfort.

De fraai aangelegde tuin op het zuiden zorgt voor veel zonuren en privacy, terwijl de oprit plaats biedt aan twee auto’s. Bovendien beschikt deze woning over een achterom, een unieke eigenschap in deze gewilde woonwijk. Binnen ervaar je licht, sfeer en luxe op alle verdiepingen.

De ligging is ideaal: op slechts vijf minuten fietsen van het gezellige centrum van Rhenen en op loopafstand van de bossen, de Grebbeberg, de Nederrijn en natuurgebied De Blauwe Kamer. Ook het NS-station bevindt zich op slechts 10 minuten lopen en met de A12 en A15 dichtbij ben je uitstekend verbonden met de rest van Nederland.

Bijzonderheden van de woning:
- Woonoppervlakte: ca. 158 m²;
- Inhoud: ca. 624 m³;
- Perceeloppervlakte: 263 m²;
- Energielabel A;
- Volledig geïsoleerd en voorzien van HR+++ isolerende beglazing;
- 16 zonnepanelen;
- parkeren op eigen terrein;
- Vloerverwarming op zowel de begane grond als de eerste verdieping;
- Voorzien van een laadpaal voor elektrische auto’s;
- Moderne open keuken (2015) met diverse inbouwapparatuur;
- Luxe badkamer (2015) met ligbad, inloopdouche, wandcloset en wastafelmeubel;
- Sfeervolle houtkachel in de woonkamer;
- Op loopafstand van natuurgebieden en openbaar vervoer;
- Op korte fietsafstand van het gezellige centrum van Rhenen;

Begane grond
Via de overkapping bereik je de voordeur van de woning. Je komt binnen in een ruime entreehal die toegang biedt tot de meterkast, het toilet, de trap naar de eerste verdieping en de woonkamer.

De royale woonkamer van ca. 37 m² is een fijne, open ruimte met veel daglicht. De sfeervolle open haard en openslaande deuren naar de tuin zorgen voor een gezellige en warme sfeer. De woonkamer loopt over in een open eetgedeelte met aansluitend de keuken. De keuken is praktisch ingericht en beschikt over een 3-pits gasfornuis en een combi stoomoven.

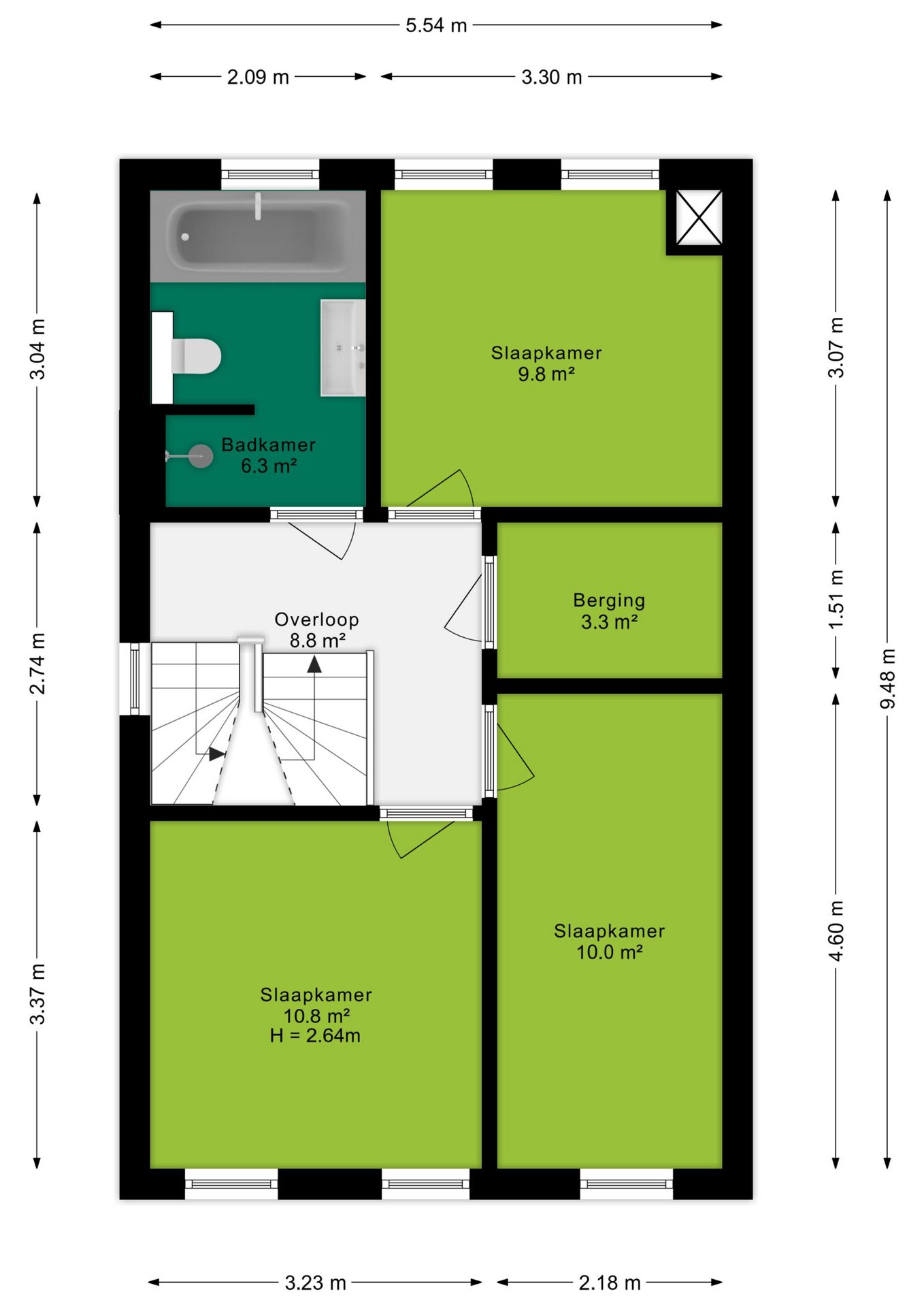
Eerste verdieping
De ruime overloop van ca. 9 m² geeft toegang tot alle vertrekken op deze verdieping. De moderne badkamer is compleet uitgerust met een inloopdouche, ligbad, wandcloset en een wastafelmeubel.

Er zijn op deze verdieping drie slaapkamers. De grootste slaapkamer (ca. 11 m²) ligt aan de voorzijde van de woning. Ook de tweede slaapkamer (ca. 10 m²) bevindt zich aan de voorzijde, terwijl de derde slaapkamer (ca. 10 m²) aan de achterzijde ligt. Daarnaast is er nog een extra kamer (ca. 3 m²) die is ingericht als inloopkast – ideaal voor het netjes opbergen van al je kleding.

Via een vaste trap bereik je de tweede verdieping.

Tweede verdieping
De zolderverdieping is verrassend ruim en biedt een vierde slaapkamer van maar liefst ca. 30 m². Deze kamer is voorzien van een nette inbouwkast, een logeergedeelte en een eigen wastafel – perfect als ouderslaapkamer, studio of werkruimte.

Verder is er op deze verdieping een praktische berging (ca. 2 m²) met de opstelplaats voor de cv-installatie en aansluitingen voor wasmachine en droger. Daarnaast is er nog een extra bergzolder, ideaal voor het opslaan van spullen die je niet dagelijks nodig hebt.

Twee dakkapellen zorgen voor extra ruimte, lichtinval en een aangename, open sfeer, waardoor deze verdieping zich uitstekend leent voor meerdere doeleinden

Tuin en berging
De royale, fraai aangelegde tuin ligt op het zuiden en biedt volop zon en privacy. Dankzij de diverse zitjes kun je op elk moment van de dag een fijne plek vinden om te ontspannen of buiten te eten.

Ook aan praktische zaken is gedacht. De woning beschikt over een ruime garage van ca. 17 m², met een achterdeur naar de tuin én directe toegang tot de woonkamer – ideaal voor dagelijks gebruik. Rondom de garage bevindt zich bovendien een extra overdekte opslagruimte, perfect voor het stallen van fietsen, tuinmeubilair of gereedschap. Deze ruimte is toegankelijk via een deur aan de voorzijde en loopt door naar de achterkant van de tuin.

Koopovereenkomst:
Bij de verkoop zal er een standaard NVM koopovereenkomst worden gehanteerd. Bij woningen welke ouder zijn dan 20 jaar, worden de volgende clausules opgenomen in de koopovereenkomst:
- Asbestclausule;
- Ouderdomsclausule.

Koop je de woning zonder voorbehoud van financiering? Dan zullen wij een termijn hanteren van 14 dagen na het opstellen van de koopovereenkomst voor het storten van de bankgarantie/waarborgsom.

Deze informatie is door ons met de nodige zorgvuldigheid samengesteld. Onzerzijds wordt echter geen enkele aansprakelijkheid aanvaard voor enige onvolledigheid, onjuistheid of anderszins, dan wel de gevolgen daarvan. Alle opgegeven maten en oppervlakten zijn indicatief.
+ toon meer
deze woning is Verkocht

Boomklever 22 Rhenen

Boomklever 22

3911 EX, Rhenen
Ditters open huis: 5 april 2025 10:00 - 12:00 uur
Landelijke Open Huizen Route NVM: 5 april 2025 11:00 uur - 15:00 uur
Vanaf€ 795.000 k.k.

Schakel een aankoopmakelaar in.

Snel handelen helpt je jouw droomhuis te bemachtigen. Zo vergroot je de kans dat je er op tijd bij bent.
Rhenen
verkocht

Of maak vrijblijvend een zoekprofiel aan.

Vergelijkbare woningen

Hypotheken

Onafhankelijk hypotheekadvies

  • Ligt jouw droomhuis binnen handbereik?
  • Wil je jouw huidige hypotheek verhogen?
  • Is er hypotheekruimte voor verduurzaming?

Blijf op de hoogte

Ontvang als eerste updates over nieuw aanbod en mis geen enkele kans om jouw droomwoning te vinden.

Gratis waardebepaling of verkoopgesprek

Met de vrijblijvende waardecheck weet je snel waar je aan toe bent. Onze makelaars kijken naar de lokale markt en vergelijkbare woningen in jouw buurt om een goede schatting te geven.

Realiseer al jouw woondromen met Ditters

Wij zijn een team van gedreven vastgoedexperts met een passie voor het maken van verbindingen – tussen kopers en verkopers, huurders en verhuurders. Met een frisse kijk op de makelaardij combineren we expertise met creativiteit. Onze makelaars luisteren écht en nemen de tijd om jouw wensen te begrijpen.


Bij Ditters sta je er niet alleen voor. We denken met je mee, begeleiden je in elke stap en zijn altijd bereikbaar voor vragen. Neem gerust contact met ons op – we helpen je graag verder!