Omschrijving

De Kleine Kampen 174, Rhenen

Gelegen aan de rand van de bosrijke omgeving van Rhenen, biedt deze smaakvol ingerichte woning aan De Kleine Kampen 174 een unieke combinatie van rust, comfort en functionaliteit. Dit huis is tot in de puntjes verzorgd en van alle gemakken voorzien waaronder bijvoorbeeld vloerverwarming op de begane grond en in de badkamer, waardoor het een instapklare woning is voor iedereen die wil genieten van een aangename leefomgeving.

De ligging tegen de bosrand zorgt ervoor dat je vanuit huis direct kunt genieten van de natuur. Of je nu houdt van wandelen, fietsen of gewoon wilt ontspannen in een groene omgeving, hier kan het allemaal. Tegelijkertijd ligt de woning op korte afstand van alle benodigde voorzieningen, waaronder scholen, winkels en sportfaciliteiten. Ook voor reizigers is de locatie ideaal, met het treinstation van Rhenen op steenworp afstand, waardoor je gemakkelijk en snel in omliggende steden kunt zijn.

Kortom, De Kleine Kampen 174 combineert een serene ligging in een groene omgeving met een uitstekende bereikbaarheid en toegang tot alle voorzieningen. Een heerlijke plek om thuis te komen!

Indeling:
Begane grond:
Bij binnenkomst via de ruime entree tref je een modern toilet, de meterkast en een trapopgang naar boven. Vanuit hier loop je de woonkamer binnen, waar de grote raampartijen direct in het oog springen en zorgen voor een overvloed aan natuurlijk licht. De woonkamer is ruim opgezet en heeft een strakke vloer van antracietkleurige tegels, die naadloos doorloopt over de gehele begane grond. Centraal tussen de woonkamer en keuken bevindt zich het eetgedeelte. Hier is meer dan voldoende ruimte voor een grote eettafel met stoelen. Een fijne plek om met familie en/of vrienden te genieten van een hapje, drankje en spelletje!
De open keuken is stijlvol en modern afgewerkt en volledig uitgerust met hoogwaardige inbouwapparatuur, waaronder een vaatwasser, kookplaat, afzuigkap, Quooker, oven en een koel-/vriescombinatie.

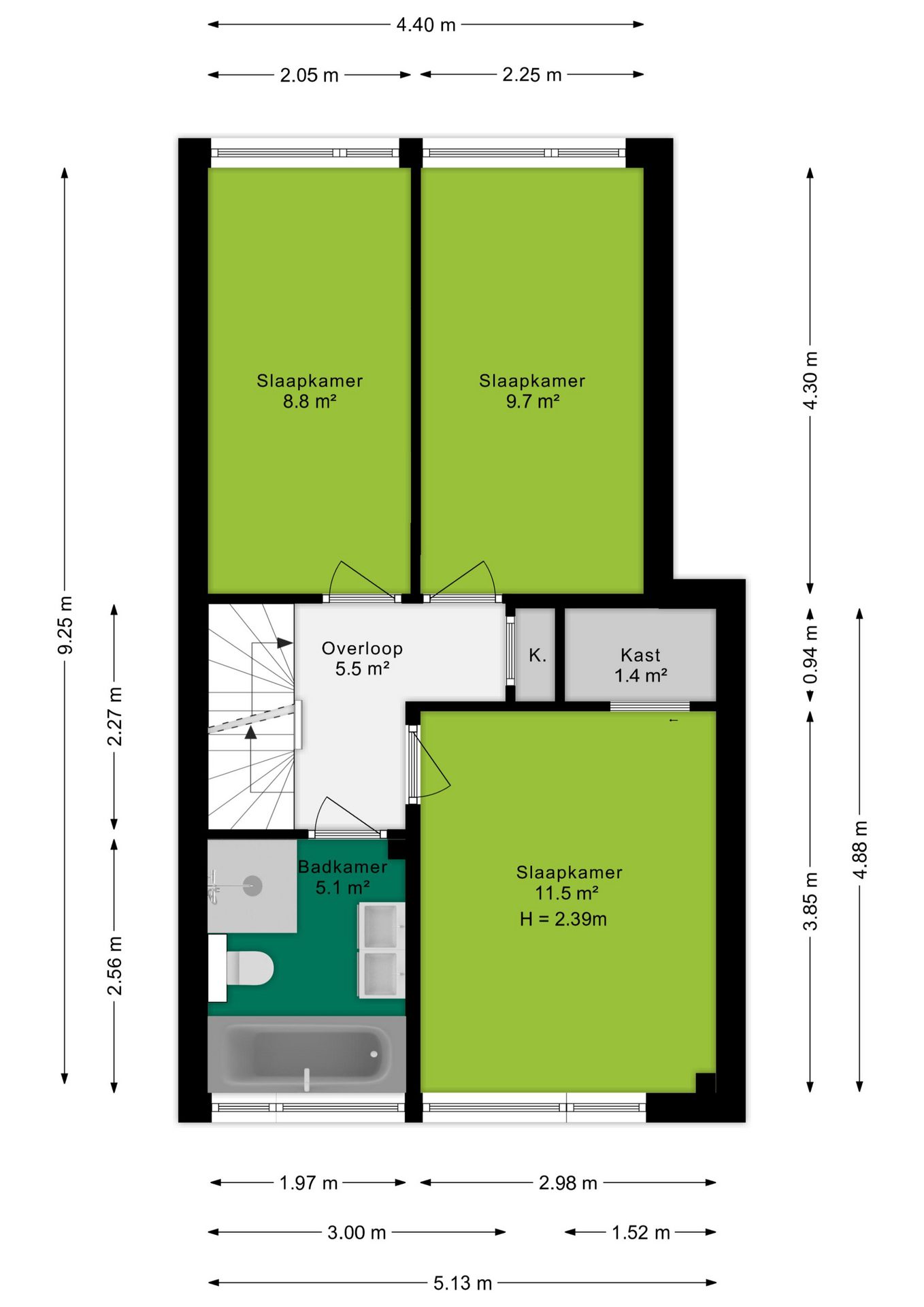
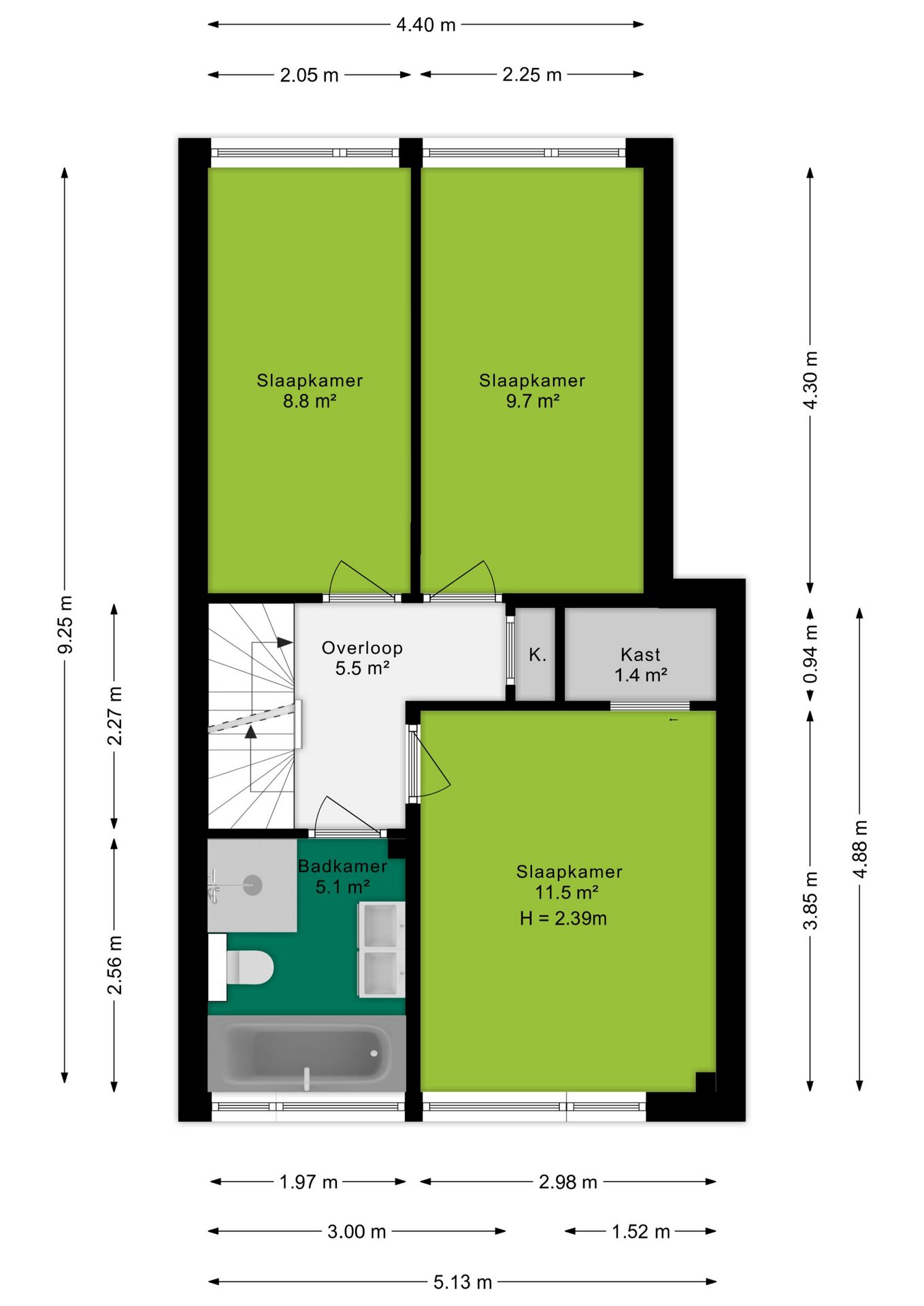
Eerste verdieping:
Op de eerste verdieping leidt de ruime overloop naar alle vertrekken. Hier bevinden zich drie slaapkamers met een oppervlakte van respectievelijk 11,6 m², 9,7 m² en 8,8 m². Alle kamers beschikken over grote ramen die veel lichtinval genereren, en één van de slaapkamers is voorzien van een praktische inbouwkast. De badkamer is modern ingericht en uitgerust met een ruim wastafelmeubel, een inloopdouche, een bad, een toilet en vloerverwarming. De antracietgrijze tegels zorgen voor een elegante uitstraling.

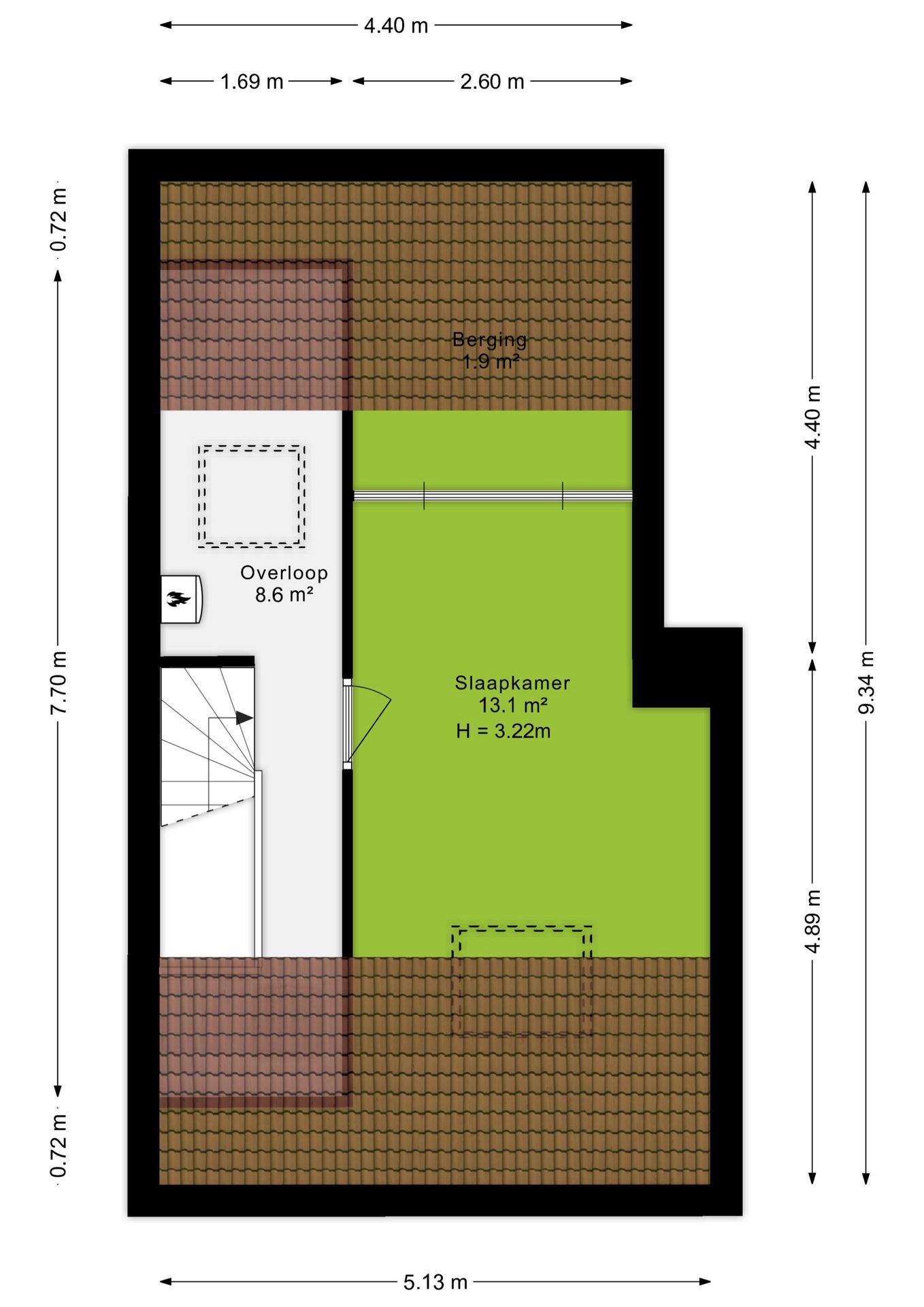
Tweede verdieping:
Via een vaste trap bereik je de tweede verdieping. Hier bevindt zich een vierde kamer van 13,1 m², ideaal te gebruiken als slaapkamer, werkkamer of sportruimte. Daarnaast biedt deze verdieping volop bergruimte en vindt je hier ook de aansluiting voor de wasmachine.

Tuin:
De zonnige, op het westen gelegen tuin biedt volop ruimte voor een stijlvolle zithoek, perfect om te ontspannen of gasten te ontvangen.
Dankzij de ligging geniet je van een prachtig uitzicht op een groene en rustige omgeving.

Afmetingen:
Woonoppervlakte: 115 m²
Inhoud: 413 m³

Bijzonderheden:
Verwarming: C.v. ketel, Remeha;
Warmwater: C.v. ketel, Remeha;
Isolatie: HR glas;
Bouwjaar: 1974;
Tuinligging: Op het westen;
Aanvaarding: In overleg.

Koopovereenkomst:
Bij de verkoop zal er een standaard NVM koopovereenkomst worden gehanteerd. Bij woningen welke ouder zijn dan 20 jaar, worden de volgende clausules opgenomen in de koopovereenkomst:
- Asbestclausule
- Ouderdomsclausule

Koopt u de woning zonder voorbehoud van financiering? Dan zullen wij een termijn hanteren van 14 dagen na het opstellen van de koopovereenkomst voor het storten van de bankgarantie/waarborgsom.

Deze informatie is door ons met de nodige zorgvuldigheid samengesteld. Onzerzijds wordt echter geen enkele aansprakelijkheid aanvaard voor enige onvolledigheid, onjuistheid of anderszins, dan wel de gevolgen daarvan. Alle opgegeven maten en oppervlakten zijn indicatief.
+ toon meer
deze woning is Verkocht

De Kleine Kampen 174 Rhenen

De Kleine Kampen 174

3911 PN, Rhenen
Ditters open huis: 5 april 2025 10:00 - 12:00 uur
Landelijke Open Huizen Route NVM: 5 april 2025 11:00 uur - 15:00 uur
Vanaf€ 445.000 k.k.

Schakel een aankoopmakelaar in.

Snel handelen helpt je jouw droomhuis te bemachtigen. Zo vergroot je de kans dat je er op tijd bij bent.
Rhenen
verkocht

Of maak vrijblijvend een zoekprofiel aan.

Vergelijkbare woningen

Hypotheken

Onafhankelijk hypotheekadvies

  • Ligt jouw droomhuis binnen handbereik?
  • Wil je jouw huidige hypotheek verhogen?
  • Is er hypotheekruimte voor verduurzaming?

Blijf op de hoogte

Ontvang als eerste updates over nieuw aanbod en mis geen enkele kans om jouw droomwoning te vinden.

Gratis waardebepaling of verkoopgesprek

Met de vrijblijvende waardecheck weet je snel waar je aan toe bent. Onze makelaars kijken naar de lokale markt en vergelijkbare woningen in jouw buurt om een goede schatting te geven.

Realiseer al jouw woondromen met Ditters

Wij zijn een team van gedreven vastgoedexperts met een passie voor het maken van verbindingen – tussen kopers en verkopers, huurders en verhuurders. Met een frisse kijk op de makelaardij combineren we expertise met creativiteit. Onze makelaars luisteren écht en nemen de tijd om jouw wensen te begrijpen.


Bij Ditters sta je er niet alleen voor. We denken met je mee, begeleiden je in elke stap en zijn altijd bereikbaar voor vragen. Neem gerust contact met ons op – we helpen je graag verder!