Omschrijving

Prima onderhouden en bijzonder speels ingedeelde splitlevel tussenwoning!

Deze moderne eengezinswoning beschikt over een berging/garage op de begane grond, en een multifunctionele kelderruimte. Daarbij heeft de woning 3 slaapkamers hetgeen zorgt voor het juiste woongenot. De woning ligt op loopafstand van winkels, uitgebreide sportfaciliteiten, zwembad, scholen en de bossen van 'De Utrechtse Heuvelrug'. De fijne achtertuin is gesitueerd op het zuiden.

Laat je verrassen en kom binnen kijken, het is meer dan de moeite waard!

Indeling
Niveau 1 en -1
Via de oprit met auto opstelplaats kom je bij de hal en entree met garderobe. De inpandige garage is voorzien van een nieuwe geïsoleerde segment roldeur, daarnaast is ook de voordeur vernieuwd. Vanuit de hal is het multifunctionele kelderruimte bereikbaar. Hier kunnen enorm veel spullen worden opgeruimd. Tevens bevindt zich op dit woonniveau een toiletruimte voorzien van een wandcloset en fonteintje. Middels een opgang vanuit de hal is de woonkamer bereikbaar. De woonkamer is tuingericht, heeft door het split-level niveau zeer hoge plafonds hetgeen zorgt voor een zeer ruimtelijk effect. In de woonkamer is een fraai en strak spanplafond aangebracht met sfeervolle inbouwverlichting. De wanden zijn strak afgewerkt en op de vloer van zowel de woonkamer, keuken ligt een laminaatvloer. Vanuit de woonkamer is de op het zuiden gelegen achtertuin bereikbaar. De achtertuin heeft eveneens een niveau verschil, direct achter de woonkamer is een fijn terras, via een trap is het lagere gedeelte van de tuin bereikbaar, achter in de tuin is een bescheiden schuurtje geplaatst, vanuit de tuin is een achtergelegen voetpad te bereiken.

Niveau 2
Vanuit de woonkamer is er een opgang naar ruime woonkeuken met een moderne inbouwkeuken voorzien van zowel onder-, als bovenkasten met houtlook fronten en zwarte accenten, de keuken is verder uitgerust met een 6-pits gaskookplaat, afzuigkap, combi magnetron/oven, koel- vrieskast combinatie en een afwasmachine.

Niveau 3
Vanuit de woonkeuken is de opgang naar het volgende etage hier bevindt zich de ouderslaapkamer. Deze slaapkamer beschikt over een kast met spiegeldeur, vanuit de slaapkamer is een op het zuiden gelegen balkon bereikbaar.

Niveau 4:
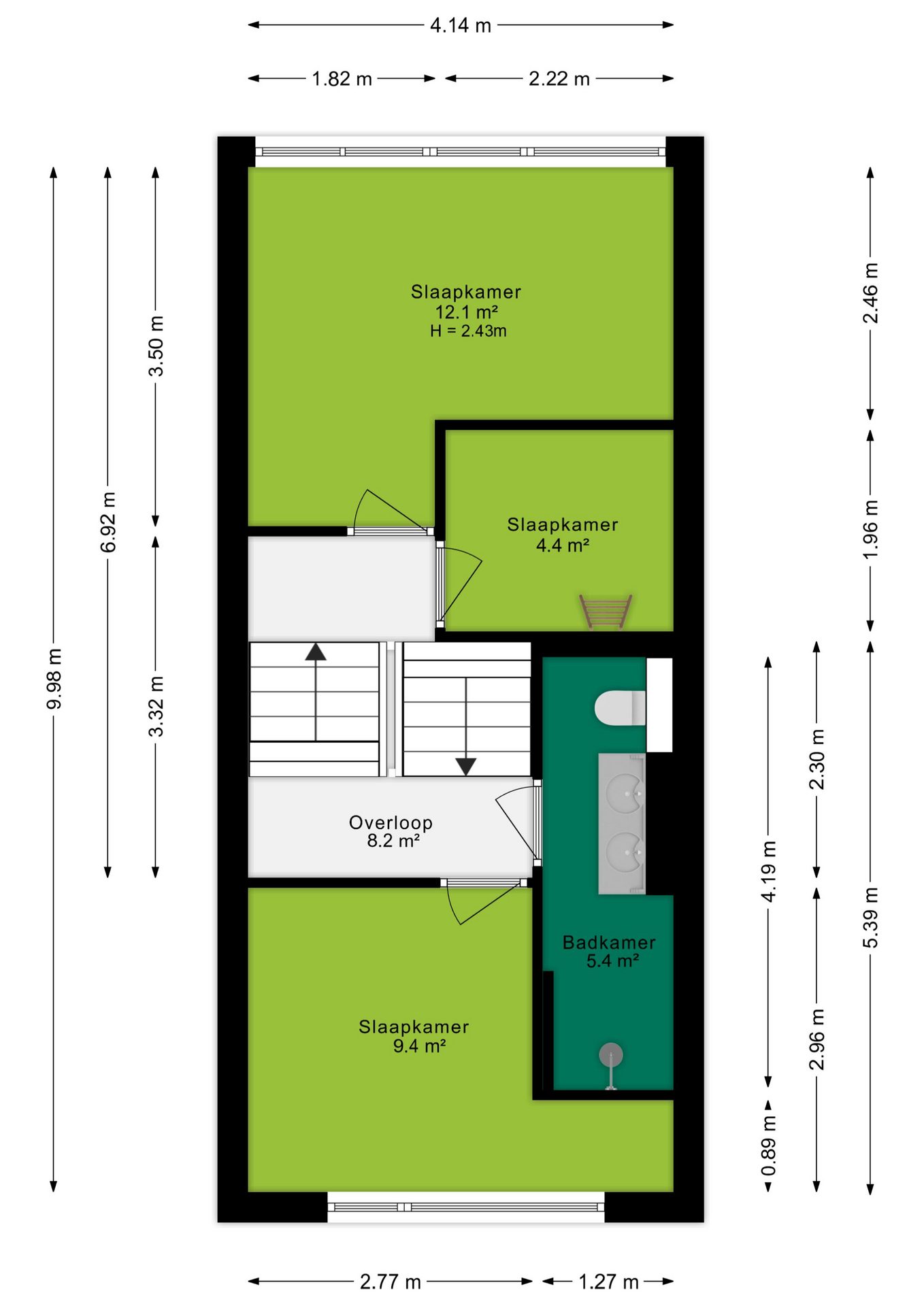
Vanaf de overloop is middels een opgang de volgende etage bereikbaar, hier bevinden zich de recent vernieuwde badkamer met fijne douchehoek, wandcloset en een fraai wastafelmeubel met twee waskommen, daarnaast is er nog een tweede slaapkamer op dit niveau.

Niveau 5:
Middels een volgende opgang is deze etage bereikbaar. Overloop met toegang een ruime slaapkamer en een praktische ruimte voor een werkplek en berging- stookruimte. In deze ruimte is de opstelling van de recent vernieuwde Cv combiketel en opstelling van de was-apparatuur.

Afmetingen;
Garage/berging 8.7 m²
Kelderruimte 6.45 x 4.13 = 26.64m2
Woonkamer 29.2 m²
Keuken 18.1 m²
Slaapkamer 1 13.6 m²
Balkon 8.5 m²
Slaapkamer 2 12.1 m²
Slaapkamer 3 9.4 m²
Badkamer 5.4 m²
Slaapkamer 3 4.54 x 2.24 = 10.17m2
Werkkamer/berging 4.4 m²
Was en stookruimte 9.7 m²

Perceel oppervlakte 149 m²
Woonoppervlakte 134 m²

Bijzonderheden:
Verwarming Nefit HR combiketel (2023)
Warmwater Nefit HR combiketel (2023)
Isolatie Geheel v.v. dubbel glas (deels HR++ glas)
Bouwjaar 1974
Tuinligging Zuiden
Aanvaarding In overleg

Extra's:
- Bijzondere split-level woning
- Inpandige berging/garage met nieuwe geïsoleerde segment roldeur
- Multifunctionele kelderruimte
- Uitstekende ligging aan een 30km zone
- Moderne inbouwkeuken voorzien van diverse inbouwapparatuur
- Deels uitgevoerd in HR++ glas en voorzien van spouwisolatie
- Nieuwe badkamer en nieuwe inbouwkeuken
- Dakbedekking overlegd met nieuwe dakbedekking

Koopovereenkomst:
Bij de verkoop zal er een standaard NVM koopovereenkomst worden gehanteerd. Bij woningen welke ouder zijn dan 20 jaar, worden de volgende clausules opgenomen in de koopovereenkomst:
- Asbestclausule;
- Ouderdomsclausule.

Koop je de woning zonder voorbehoud van financiering? Dan zullen wij een termijn hanteren van 6 weken na het opstellen van de koopovereenkomst voor het storten van de bankgarantie/waarborgsom.

Deze informatie is door ons met de nodige zorgvuldigheid samengesteld. Onzerzijds wordt echter geen enkele aansprakelijkheid aanvaard voor enige onvolledigheid, onjuistheid of anderszins, dan wel de gevolgen daarvan. Alle opgegeven maten en oppervlakten zijn indicatief.
+ toon meer
deze woning is Verkocht

Molenberg 13 Rhenen

Molenberg 13

3911 PP, Rhenen
Ditters open huis: 5 april 2025 10:00 - 12:00 uur
Landelijke Open Huizen Route NVM: 5 april 2025 11:00 uur - 15:00 uur
Vanaf€ 440.000 k.k.

Schakel een aankoopmakelaar in.

Snel handelen helpt je jouw droomhuis te bemachtigen. Zo vergroot je de kans dat je er op tijd bij bent.
Rhenen
verkocht

Of maak vrijblijvend een zoekprofiel aan.

Vergelijkbare woningen

Hypotheken

Onafhankelijk hypotheekadvies

  • Ligt jouw droomhuis binnen handbereik?
  • Wil je jouw huidige hypotheek verhogen?
  • Is er hypotheekruimte voor verduurzaming?

Blijf op de hoogte

Ontvang als eerste updates over nieuw aanbod en mis geen enkele kans om jouw droomwoning te vinden.

Gratis waardebepaling of verkoopgesprek

Met de vrijblijvende waardecheck weet je snel waar je aan toe bent. Onze makelaars kijken naar de lokale markt en vergelijkbare woningen in jouw buurt om een goede schatting te geven.

Realiseer al jouw woondromen met Ditters

Wij zijn een team van gedreven vastgoedexperts met een passie voor het maken van verbindingen – tussen kopers en verkopers, huurders en verhuurders. Met een frisse kijk op de makelaardij combineren we expertise met creativiteit. Onze makelaars luisteren écht en nemen de tijd om jouw wensen te begrijpen.


Bij Ditters sta je er niet alleen voor. We denken met je mee, begeleiden je in elke stap en zijn altijd bereikbaar voor vragen. Neem gerust contact met ons op – we helpen je graag verder!