Omschrijving

Luxe en energiezuinige uitgebouwde hoekwoning met 4 slaapkamers, 2 badkamers en parkeren op eigen terrein.

Deze moderne hoekwoning uit 2021 is een echt familiehuis met veel ruimte. Met een woonoppervlakte van 155 m², twee moderne badkamers en een zonnige tuin op het zuiden ontbreekt het je hier aan niets. Tel daar de 9 zonnepanelen, vloerverwarming door het hele huis en een eigen parkeerplaats met een aansluiting voor een laadpaal bij op, en je weet: dit is wonen met maximaal comfort.

Je woont hier aan de rand van het gezellige centrum van Veenendaal. Dat betekent dat je alle winkels, terrasjes en restaurants binnen handbereik hebt, maar ook zo de stad weer uit bent. Het NS-station Veenendaal-Centrum ligt op loopafstand en met de auto zit je binnen enkele minuten op de A12. Voor ontspanning loop je zo naar het stadspark of de sportvelden van 'de Groene Velden'. Een ideale combinatie van stedelijke gemakken en een rustige thuisbasis.

Belangrijkste kenmerken op een rij:
- Moderne uitgebouwde hoekwoning uit 2021 met 155 m² woonoppervlakte
- Vier ruime slaapkamers en twee complete badkamers
- Zeer energiezuinig (energielabel A+) met 9 zonnepanelen
- Vloerverwarming door de gehele woning
- Luxe keuken met spoeleiland
- Tuin op het zuiden met tuinhuis en berging
- Parkeren op eigen (afgesloten) terrein inclusief aansluiting voor een laadpaal
- Mogelijkheid tot het aanvragen van drie parkeervergunningen

Kortom: Een riant, instapklaar en duurzaam hoekhuis op een toplocatie bij het centrum. Zien we je bij de bezichtiging?

Binnenkijken
Begane grond
In de hal vind je de meterkast, een modern toilet en de trap naar boven. Via een stijlvolle taatsdeur stap je de uitgebouwde leefruimte binnen. De woonkamer ligt aan de voorzijde en door de hoekligging heb je hier extra zijramen, wat zorgt voor een prachtige lichtinval. Aan de achterzijde bevindt zich de royale woonkeuken. Dit is echt het hart van het huis: een modern spoeleiland met bar waar je gezellig kunt ontbijten of borrelen. De keuken is van alle gemakken voorzien, zoals een inductiekookplaat, oven/stoomoven, combi-oven, warmhoud lade, vaatwasser en een Quooker. Onder de trap vind je nog een praktische kast voor extra voorraad.

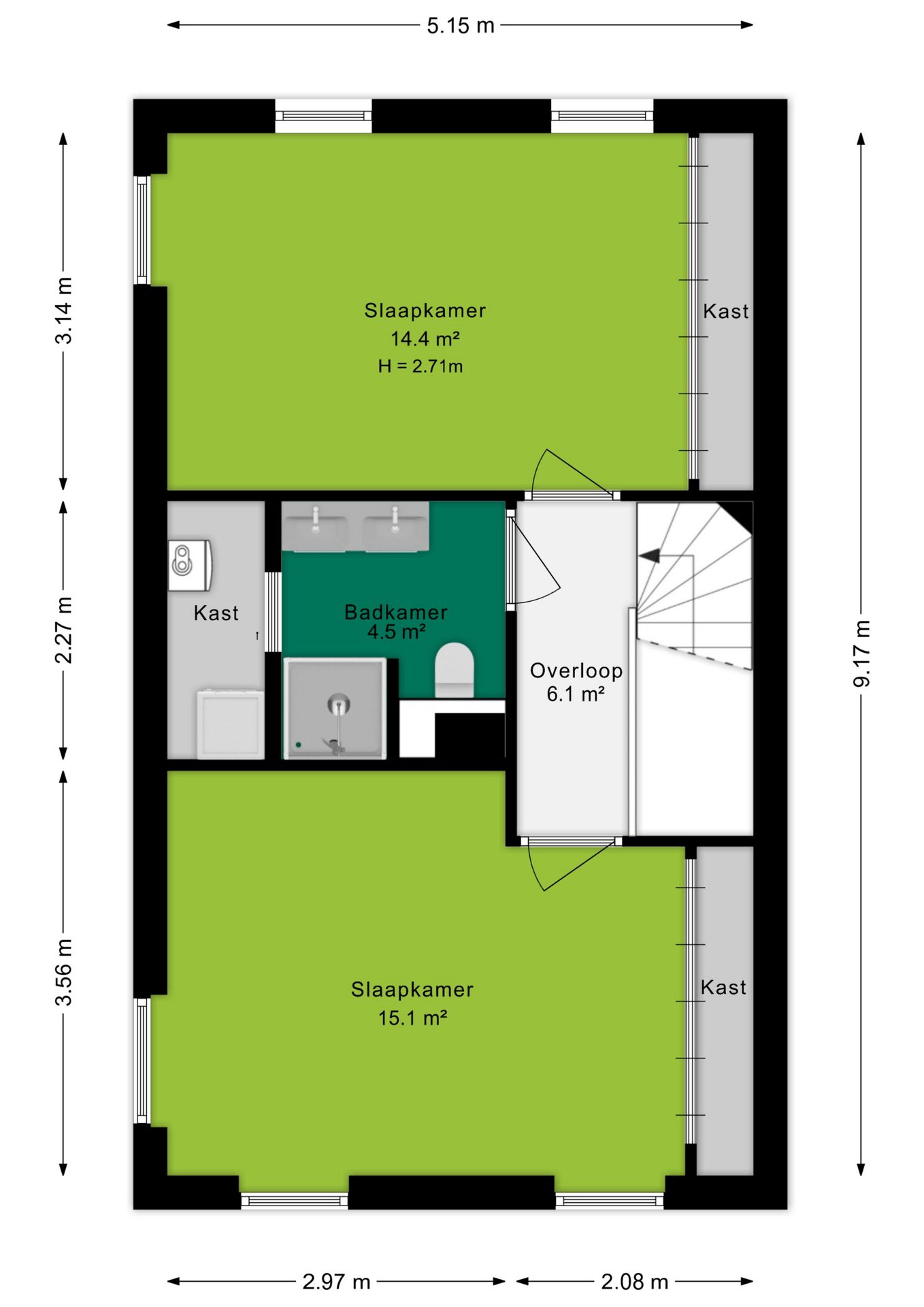
Eerste verdieping
Op de eerste verdieping zijn twee grote slaapkamers van circa 14 m² te vinden. Ook hier profiteer je weer van het extra daglicht door de hoekligging. De badkamer op deze verdieping is luxe uitgevoerd met een ligbad, een ruime inloopdouche, een dubbel wastafelmeubel en een tweede toilet.

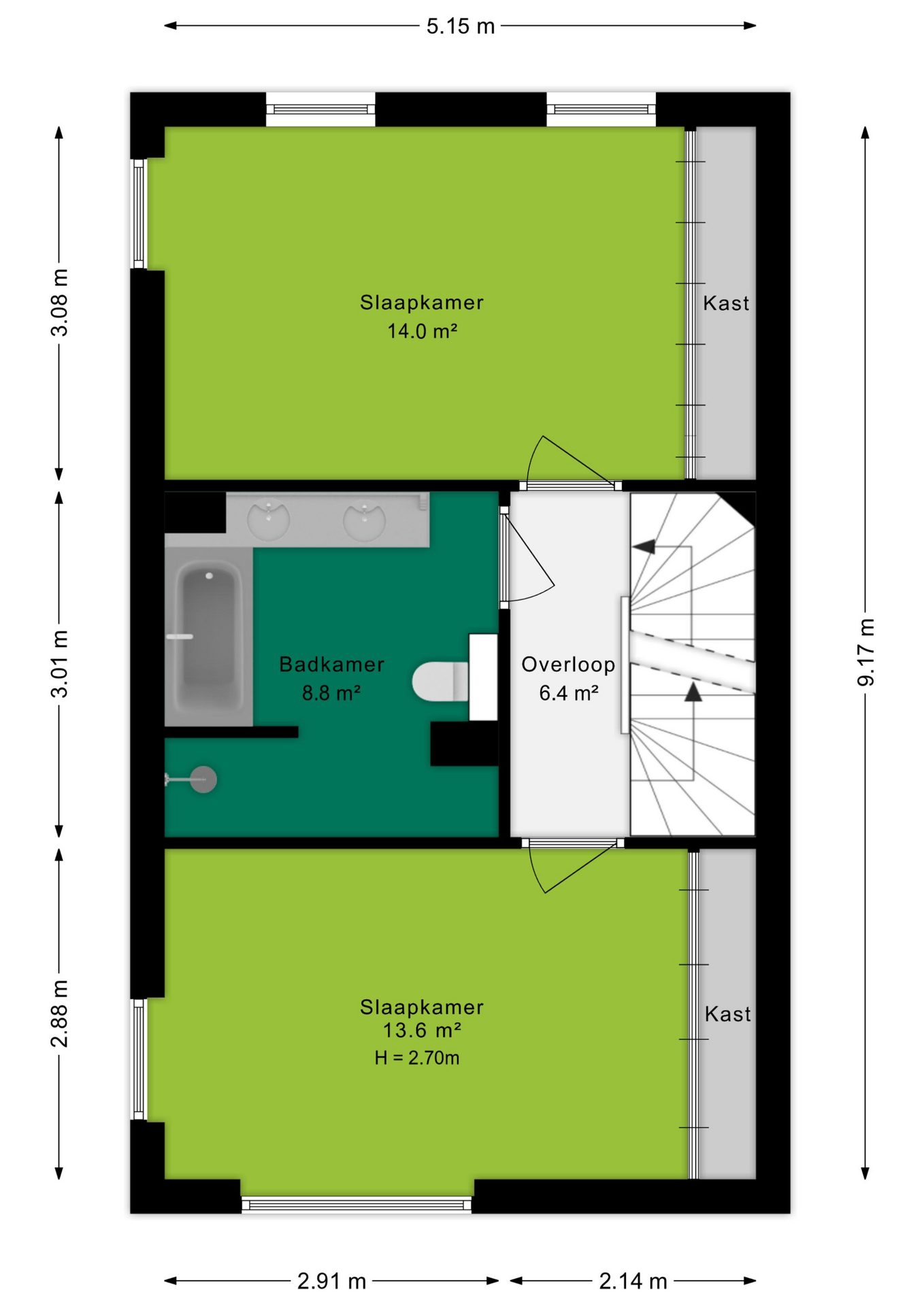
Tweede verdieping
Verrassend genoeg vind je op de tweede verdieping nog eens twee volwaardige slaapkamers (ca. 15 m² en 14 m²), ook weer voorzien van inbouwkasten. Uniek is de tweede badkamer (geplaatst in 2024), ideaal voor een groot gezin of voor gasten. Deze badkamer is uitgerust met een inloopdouche, wastafelmeubel en een derde toilet. Achter een schuifdeur vind je de technische ruimte met de CV-ketel en de aansluiting voor de wasmachine.

Tuin en parkeren
Via de dubbele openslaande deuren in de woonkeuken loop je de tuin op het zuiden in. Hier kun je de hele dag van de zon genieten.

Er is een houten berging van 8 m² voor de fietsen en een sfeervol tuinhuis waar je ook bij minder goed weer heerlijk buiten kunt zitten.

Je parkeert je auto veilig op het afgesloten eigen terrein, waar je ook de aansluiting hebt voor de laadpaal. Heb je meer auto's? Er kunnen drie parkeervergunningen worden aangevraagd.

Koopovereenkomst:
Bij de verkoop zal er een standaard NVM koopovereenkomst worden gehanteerd.

Bij aankoop zonder financieringsvoorbehoud geldt een termijn van zes weken na het opstellen van de koopovereenkomst voor het storten van de waarborgsom of bankgarantie.

Deze informatie is met zorg samengesteld. Er wordt geen aansprakelijkheid aanvaard voor eventuele onvolledigheden of onjuistheden. Alle opgegeven maten en oppervlakten zijn indicatief.
+ toon meer

Video

3901 PM, Veenendaal

Schrijverspark 10

Zaterdag 2 augustus 10:00 - 12:00 uur

€ 650.000 k.k.
ditters makelaars veenendaal
Kopen

Wat is jouw woning écht waard bij Ditters?

Waardecheck

Wij combineren lokale marktkennis met actuele data en ons grote zoekersbestand in de regio.

Je krijgt niet alleen een waarde, maar inzicht in hoe je de maximale verkoopopbrengst kunt realiseren.

Onze aanpak is strategisch, transparant en volledig afgestemd op jouw situatie.

Goed om te weten: deze waardecheck is vrijblijvend en geheel kosteloos
Onafhankelijk

Hypotheekadvies

We helpen je met het vergelijken van aanbiedingen van verschillende banken, zodat je de beste deal krijgt. 
Wij staan klaar om je te begeleiden, zodat je met vertrouwen de juiste hypotheek kunt kiezen.
Goed om te weten: dit adviesgesprek is vrijblijvend en geheel kosteloos

Wij helpen jou bij de keuze van de juiste polis.

Bij een onbezorgde toekomst horen ook goede verzekeringen die uitkeren bij bijvoorbeeld ziekte, schade of diefstal. Onze assurantieadviseurs helpen je bij de keuze van de juiste polis. In heldere taal.

Diverse verzekeringen

  • Opstalverzekering
  • Aansprakelijkheidsverzekering
  • Zorgverzekering
  • Reisverzekering

Buurtinformatie

Veenendaal, Schrijverswijk
Inwoners
Woningen
826
Inwoners
1.485
56
43
Koop / Huur
56% Huur43% Koop
Huishoudens
Eenpersoon
52.1%
Geen kinderen
23.3%
Met kinderen
23.9%
Leeftijdsopbouw in jaren
Buurt Landelijk
17.210.139.120.513.816.312.324.728.218.5

Locatie

Plattegronden

Klik op de plattegrond voor een grote weergave

Belangrijke documenten

Meetrapport

Vragenlijst c

Hier deelt de verkoper belangrijke informatie over de staat en bijzonderheden van de woning.

Vragenlijst

Hier deelt de verkoper belangrijke informatie over de staat en bijzonderheden van de woning.

Lijst van zaken

Overzicht van de zaken die achterblijven of worden meegenomen door de huidige bewoners.

Brochure

Bekijk hier alle details van de woning, compleet met foto's en beschrijvingen.

Misschien interessant voor jou

Blijf op de hoogte

Ontvang als eerste updates over nieuw aanbod en mis geen enkele kans om jouw droomwoning te vinden.

Gratis waardebepaling of verkoopgesprek

Met de vrijblijvende waardecheck weet je snel waar je aan toe bent. Onze makelaars kijken naar de lokale markt en vergelijkbare woningen in jouw buurt om een goede schatting te geven.