Omschrijving

Op een prachtige locatie in de geliefde wijk Veenendaal West staat deze fraaie eengezinswoning. De ligging is ideaal: aan de voorzijde geniet je van het uitzicht over het water. Terwijl je aan de achterzijde direct toegang hebt tot een handig en rustig parkeerhofje.

De woning is gunstig gelegen t.o.v. de belangrijke dagelijkse voorziengen. Winkelcentrum Ellekoot is op een kleine 10 minuten loopafstand en biedt een compleet aanbod aan voorzieningen voor de dagelijkse boodschappen. Ook station Veenendaal- west bevindt zich op loopafstand. Het centrum van Veenendaal en de bossen van de Utrechtse Heuvelrug liggen op circa tien minuten fietsen. Daarnaast zijn er diverse scholen, sportvelden, een dierenparkje en wandelgebieden in de directe omgeving.

De volgende aspecten zullen je vast verrassen: royale woonkamer met veel lichtinval, open keuken met diverse inbouwapparatuur, 3 slaapkamers op de eerste verdieping, complete badkamer, 1e en 2e verdieping geheel kunststof kozijnen met HR++ glas, multifunctionele 2e verdieping met praktische wasruimte en er is een heerlijke diepe tuin. Ook is de woning al helemaal klaar voor de toekomst; energielabel A, volledig geïsoleerd en 14 zonnepanelen.

Indeling:
Begane grond:
Via de hal en entree met meterkast is de woonkamer te bereiken. De woonkamer heeft een afmeting van maar liefst ca. 32m², is voorzien van heerlijk veel lichtinval, een sfeervolle hoog rendements haard en laminaatvloer. Door de ruime indeling is er plek genoeg voor een grote eettafel en ontstaat er een gezellige verbinding tussen de woonkamer en de keuken. De keuken heeft een lichte kleurstelling en beschikt over diverse inbouwapparatuur: een inductiekookplaat, afzuigkap, combi-oven/ magnetron, close-in boiler, koel-vriescombinatie en vaatwasser.

Eerste verdieping:
De overloop geeft toegang tot de 3 slaapkamers en de badkamer. De slaapkamers hebben een afmeting van ca. 12m², 9m² en 6m². De slaapkamers zijn voorzien van voldoende lichtinval en een nette afwerking. De badkamer is in 2021 vernieuwd, heeft een moderne kleurstelling en beschikt over een inloopdouche, wastafel met wastafelmeubel, toilet en een raam om extra goed te kunnen ventileren.

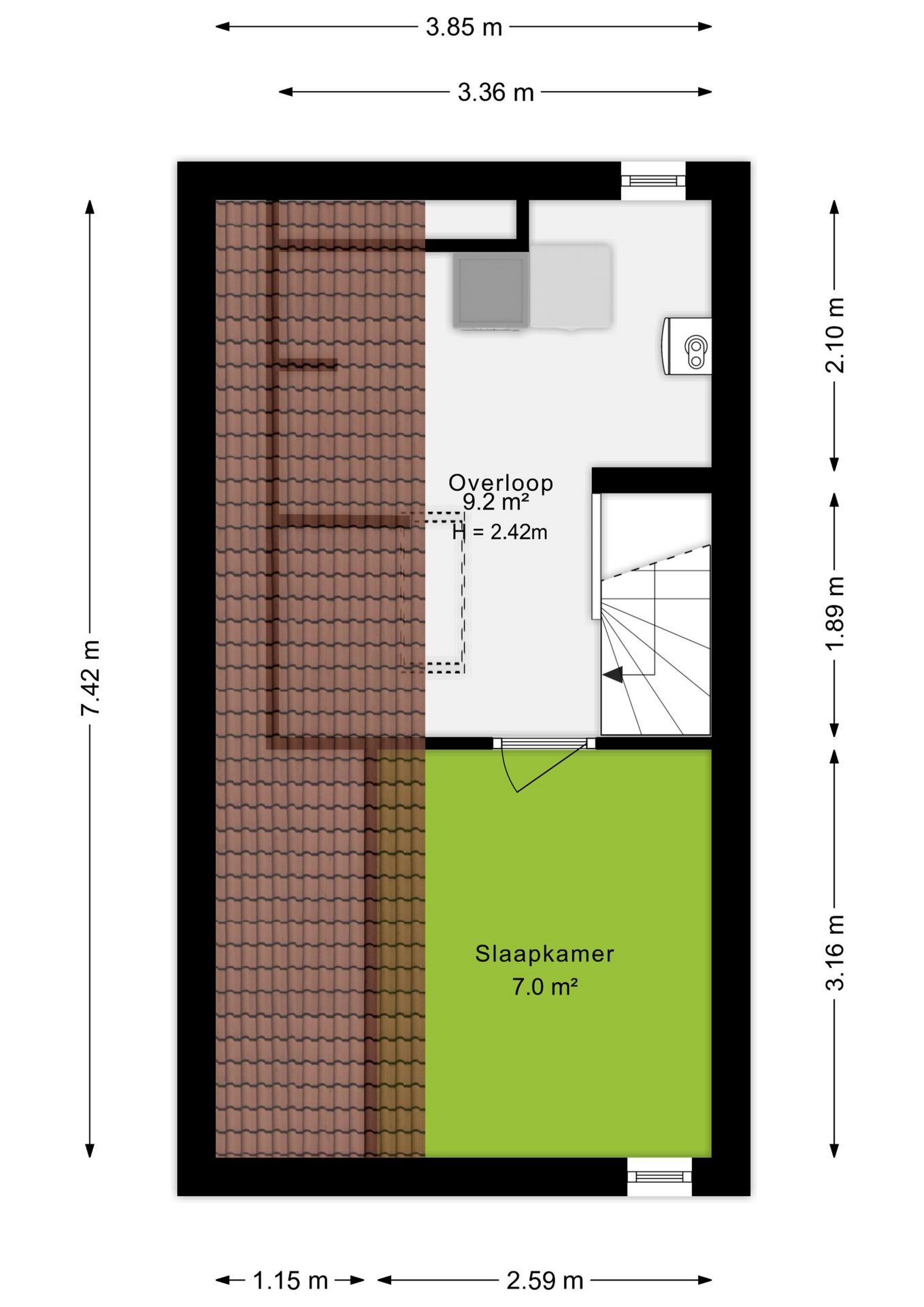
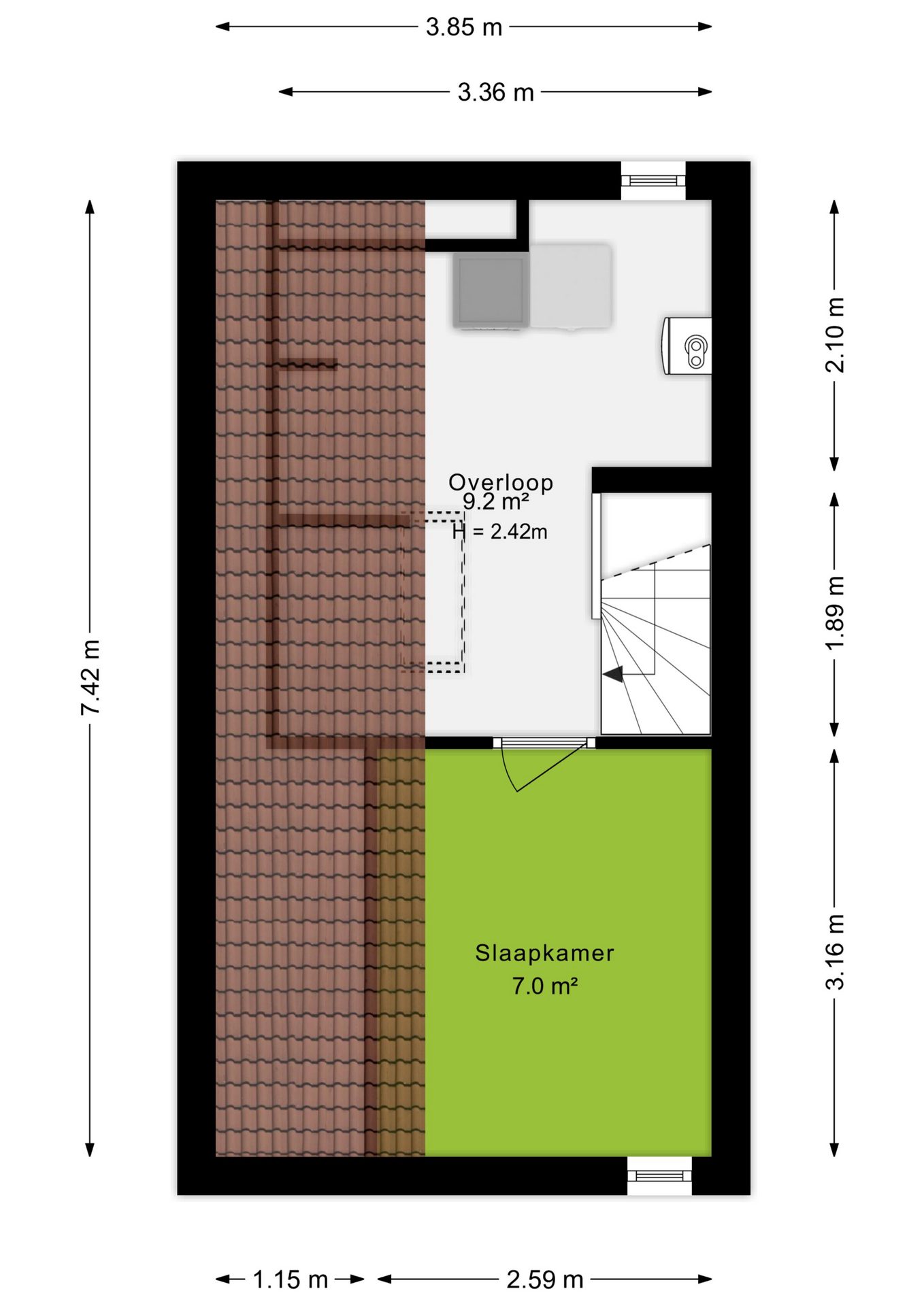
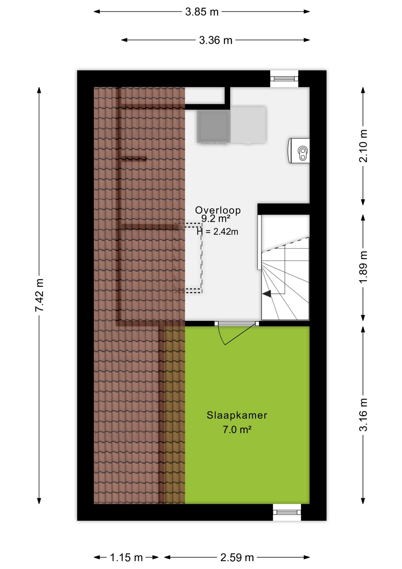
Tweede verdieping:
Via de overloop met witgoedaansluiting is de 4e (slaap)kamer te bereiken. Deze kamer heeft nog een afmeting van ca. 7m² en is multifunctioneel te gebruiken. Mede door de airco is het hier extra aangenaam.

Buitenruimte:
De tuin heeft een zeer prettige indeling en er zijn gemakkelijk meerdere terrasjes of speelplekjes te creëren. Door de goede diepte is er altijd wel een plek in de zon of de schaduw te vinden. Aan de achterzijde van de tuin bevindt zich een handig schuurtje en een achterom.

Bijzonderheden:
Verwarming: C.V.-combiketel (bouwjaar 2025)
Warm water: C.V.-combiketel (bouwjaar 2025)
Isolatie: Energielabel A en voorzien van 14 zonnepanelen
Bouwjaar: 1983
Tuinligging: noord
Aanvaarding: in overleg

Koopovereenkomst:
Bij de verkoop zal er een standaard NVM koopovereenkomst worden gehanteerd. Bij woningen welke ouder zijn dan 20 jaar, worden de volgende clausules opgenomen in de koopovereenkomst:
- Asbestclausule;
- Ouderdomsclausule.

Koopt u de woning zonder voorbehoud van financiering? Dan zullen wij een termijn hanteren van 6 weken na het opstellen van de koopovereenkomst voor het storten van de bankgarantie/waarborgsom.

Deze informatie is door ons met de nodige zorgvuldigheid samengesteld. Onzerzijds wordt echter geen enkele aansprakelijkheid aanvaard voor enige onvolledigheid, onjuistheid of anderszins, dan wel de gevolgen daarvan. Alle opgegeven maten en oppervlakten zijn indicatief.
+ toon meer

Video

3905 WE, Veenendaal

Warendorp 55

Zaterdag 2 augustus 10:00 - 12:00 uur

€ 429.500 k.k.
ditters makelaars veenendaal
Kopen

Wat is jouw woning écht waard bij Ditters?

Waardecheck

Wij combineren lokale marktkennis met actuele data en ons grote zoekersbestand in de regio.

Je krijgt niet alleen een waarde, maar inzicht in hoe je de maximale verkoopopbrengst kunt realiseren.

Onze aanpak is strategisch, transparant en volledig afgestemd op jouw situatie.

Goed om te weten: deze waardecheck is vrijblijvend en geheel kosteloos
Onafhankelijk

Hypotheekadvies

We helpen je met het vergelijken van aanbiedingen van verschillende banken, zodat je de beste deal krijgt. 
Wij staan klaar om je te begeleiden, zodat je met vertrouwen de juiste hypotheek kunt kiezen.
Goed om te weten: dit adviesgesprek is vrijblijvend en geheel kosteloos

Wij helpen jou bij de keuze van de juiste polis.

Bij een onbezorgde toekomst horen ook goede verzekeringen die uitkeren bij bijvoorbeeld ziekte, schade of diefstal. Onze assurantieadviseurs helpen je bij de keuze van de juiste polis. In heldere taal.

Diverse verzekeringen

  • Opstalverzekering
  • Aansprakelijkheidsverzekering
  • Zorgverzekering
  • Reisverzekering

Locatie

Plattegronden

Klik op de plattegrond voor een grote weergave

Belangrijke documenten

Brochure

Kadastralekaart

Vragenlijst deel B

Vragenlijst deel C

Lijst van zaken

Meetrapport

Misschien interessant voor jou

Blijf op de hoogte

Ontvang als eerste updates over nieuw aanbod en mis geen enkele kans om jouw droomwoning te vinden.

Gratis waardebepaling of verkoopgesprek

Met de vrijblijvende waardecheck weet je snel waar je aan toe bent. Onze makelaars kijken naar de lokale markt en vergelijkbare woningen in jouw buurt om een goede schatting te geven.