Omschrijving

Beeld je eens in: een zonnige ochtend in je diepe achtertuin die zich baadt in rustgevende zonnestralen van het zuidoosten, waar je geniet van de serene ochtendglans met een vers kopje koffie in de hand. Welkom in jouw toekomstige thuis: een sfeervolle en uitgebouwde eindwoning aan de Dassenlaan 12, gelegen in de kindvriendelijke en groene woonwijk Petenbos.

Belangrijke kenmerken:
- Uitgebouwde eindwoning
- Vier slaapkamers
- Royale achtertuin op het zuidoosten
- Moderne keuken, badkamer en toilet
- Uitgevoerd met een airco, veranda en rolluiken

Omgeving:
Het object is gelegen op een leuke locatie, in de populaire, jonge woonwijk “Petenbos”. Op korte afstand van de woning bevinden zich een kleinschalig buurtwinkelcentrum, een aantal basisscholen, diverse kinderspeelgelegenheden, de bossen van de “Utrechtse Heuvelrug” en de uitvalswegen richting de autosnelwegen A12, A15 en A30.

Indeling:
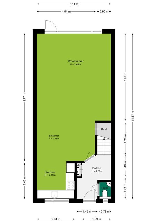
Begane grond:
Via de entree kom je bij de ruime hal welke voorzien is van de trapopgang naar de 1e verdieping, garderoberuimte, toegangsdeur naar de leefruimte en de toiletruimte met zwevend toilet, fonteintje en een te openen raam voor de natuurlijke ventilatie. Via de toegangsdeur bereik je de gezellige, tuingerichte woonkamer welke is voorzien van een grote raampartij en een tuindeur naar de achtertuin. Door de prettige indeling is er ruimte genoeg voor een grote eettafel en ontstaat er een gezellige verbinding tussen de woonkamer en de keuken. De open keuken is gelegen aan de voorzijde van de woning, geplaatst in een L-opstelling en voorzien van al het denkbare inbouwapparatuur zoals een koelkast, vaatwasser, combi-oven en een inductiekookplaat met afzuigkap. Vanuit de keuken heb je uitzicht op de autoluwe straat.

1e verdieping:
Via de vaste trap kom je bij de hal met de trapopgang naar de 2e verdieping en toegang tot de 3 slaapkamers en de badkamer. Slaapkamer I (circa 8 m²) is gelegen aan de voorzijde van de woning en beschikt over een toegangsdeur naar het balkon van circa 6 m². Slaapkamer II (ca. 12m2) en slaapkamer III (ca. 7m2) zijn gelegen aan de achterzijde van de woning en geven je een prettig uitzicht over de verzorgde achtertuin. De grootste slaapkamer is tevens voorzien van een airco. De badkamer is modern uitgevoerd en voorzien van wastafelmeubel met enkele wastafel, 2e toilet, inloopdouche en een te openen raam voor de gewenste natuurlijke ventilatie.

2e Verdieping:
Een riante voorzolder voorzien van een HR C.V.-ketel, dakramen, opbergruimte achter de knieschotten en een wasmachineaansluiting. De zolder is al voorzien van een kamerindeling waardoor je kan beschikken over een riante 4e slaapkamer van ruim 11 m².

Tuin:
De achtertuin is gelegen op het zuidoosten en een eyecatcher van de woning. Zeer verzorgd aangelegd en voorzien van fraaie beplanting. Door de ligging hoef je je geen zorgen te maken over te weinig zonuren. Omdat de achtertuin lekker diep is beschik je in de achtertuin over een fijne zitplek.

Bijzonderheden
Warm water C.V.-ketel Remeha Avanta HR (2009)
Verwarming C.V.-ketel Remeha Avanta HR (2009)
Isolatie: volledig geïsoleerd
Tuinligging: zuidoost
Aanvaarding: in overleg.

Koopovereenkomst:
Bij de verkoop zal er een standaard NVM koopovereenkomst worden gehanteerd. Bij woningen welke ouder zijn dan 20 jaar, worden de volgende clausules opgenomen in de koopovereenkomst:
- Asbestclausule
- Ouderdomsclausule

Koopt u de woning zonder voorbehoud van financiering? Dan zullen wij een termijn hanteren van 14 dagen na het opstellen van de koopovereenkomst voor het storten van de bankgarantie/waarborgsom.

Deze informatie is door ons met de nodige zorgvuldigheid samengesteld. Onzerzijds wordt echter geen enkele aansprakelijkheid aanvaard voor enige onvolledigheid, onjuistheid of anderszins, dan wel de gevolgen daarvan. Alle opgegeven maten en oppervlakten zijn indicatief.
+ toon meer
deze woning is Verkocht

Dassenlaan 12 Veenendaal

Dassenlaan 12

3903 CV, Veenendaal
Ditters open huis: 5 april 2025 10:00 - 12:00 uur
Landelijke Open Huizen Route NVM: 5 april 2025 11:00 uur - 15:00 uur
Vanaf€ 475.000 k.k.

Schakel een aankoopmakelaar in.

Snel handelen helpt je jouw droomhuis te bemachtigen. Zo vergroot je de kans dat je er op tijd bij bent.
Veenendaal
verkocht

Of maak vrijblijvend een zoekprofiel aan.

Vergelijkbare woningen

Hypotheken

Onafhankelijk hypotheekadvies

  • Ligt jouw droomhuis binnen handbereik?
  • Wil je jouw huidige hypotheek verhogen?
  • Is er hypotheekruimte voor verduurzaming?

Blijf op de hoogte

Ontvang als eerste updates over nieuw aanbod en mis geen enkele kans om jouw droomwoning te vinden.

Gratis waardebepaling of verkoopgesprek

Met de vrijblijvende waardecheck weet je snel waar je aan toe bent. Onze makelaars kijken naar de lokale markt en vergelijkbare woningen in jouw buurt om een goede schatting te geven.

Realiseer al jouw woondromen met Ditters

Wij zijn een team van gedreven vastgoedexperts met een passie voor het maken van verbindingen – tussen kopers en verkopers, huurders en verhuurders. Met een frisse kijk op de makelaardij combineren we expertise met creativiteit. Onze makelaars luisteren écht en nemen de tijd om jouw wensen te begrijpen.


Bij Ditters sta je er niet alleen voor. We denken met je mee, begeleiden je in elke stap en zijn altijd bereikbaar voor vragen. Neem gerust contact met ons op – we helpen je graag verder!