Omschrijving

In de buurt van het centrum vind je deze gezellige twee-onder-een-kapwoning met een royale achtertuin en een grote schuur. De woning ligt gunstig ten opzichte van uitvalswegen naar verschillende steden, sportfaciliteiten en scholen.

De Gortstraat, ook bekend als 'Papsteeg', in Veenendaal is een straat met historische betekenis. Deze straat ligt in een gebied dat vroeger een belangrijke rol speelde in de lokale industrie en handel. Tegenwoordig is de Gortstraat een residentiële straat die deel uitmaakt van een rustige buurt, met een mix van oudere en nieuwere woningen. De omgeving biedt gemakkelijke toegang tot lokale voorzieningen en is goed verbonden met het centrum van Veenendaal. De straat en de buurt eromheen zijn geliefd bij bewoners vanwege de combinatie van historische charme en moderne leefbaarheid.

Indeling:
Begane grond:
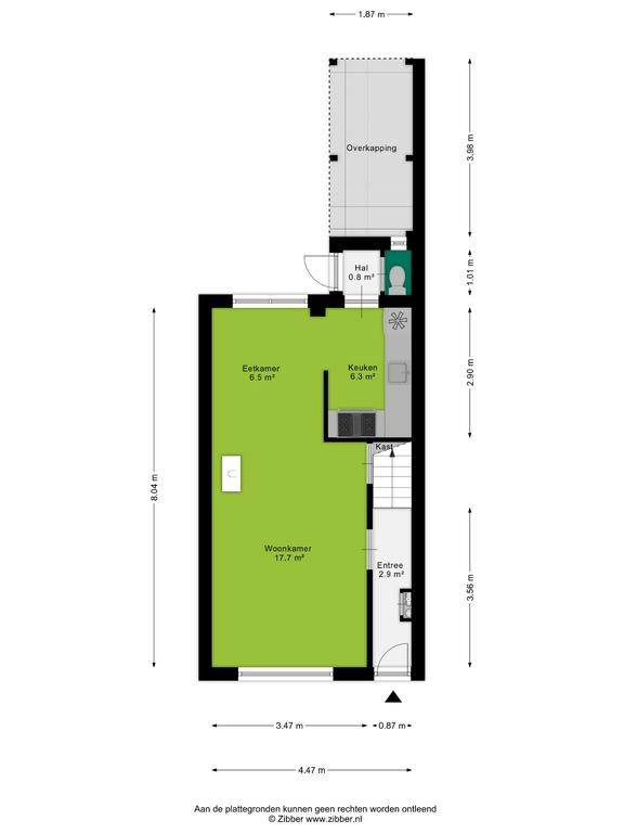
Bij binnenkomst tref je de entree met meterkast (6 groepen en 2 aardlekschakelaars, vernieuwd in 2016) en een nieuwe trap naar de eerste verdieping. De woonkamer is licht en ruim dankzij grote ramen aan zowel de voor- als achterkant en heeft gestucte wanden en een mooie laminaatvloer. Onder de trap is een handige opbergkast en de houtkachel zorgt voor extra sfeer en warmte. Het plafond op de gehele benedenverdieping is vernieuwd.

Centraal tussen de woonkamer en keuken bevindt zich het eetgedeelte. Hier is meer dan voldoende ruimte voor een grote eettafel met stoelen. Een fijne plek om met familie en/of vrienden te genieten van een hapje, drankje en spelletje!

De halfopen L-vormige keuken heeft een moderne uitstraling met roomkleurige kasten en een achterwand van metrotegels. De keuken is voorzien van een oven, 4-pits gasfornuis, vrijstaande koel-vriescombinatie en afzuigkap. In het eetgedeelte is er voldoende ruimte voor een grote eettafel. Vanuit de keuken bereik je de hal aan de achterkant van de woning, die toegang geeft tot het toilet en de tuin. De achterzijde van de woning heeft deels nieuwe kozijnen.

Eerste verdieping:
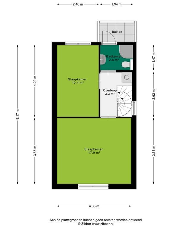
Via de trap kom je op de ruime eerste verdieping. Hier zijn twee royale slaapkamers met grote ramen en een mooie laminaatvloer. De volledig betegelde badkamer, vernieuwd in 2011, beschikt over een douchecabine, wastafel, toilet (Sanibroyeur) en designradiator. De badkamer biedt ook toegang tot het balkon aan de achterzijde van de woning, wat zorgt voor natuurlijke ventilatie.

Tweede verdieping:
Via een vaste wenteltrap bereik je de zolder, waar de kap geïsoleerd is. De zolder heeft twee Velux dakramen en veel praktische bergruimte. Hier kan eventueel een extra slaapkamer gerealiseerd worden.

Tuin:
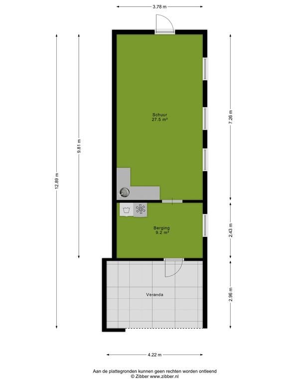
De diepe achtertuin is fraai aangelegd met vaste planten en bomen. Er is sierbestrating en een gezellige veranda aan de schuur, die een houten vloer heeft. De grote schuur (40m²) is voorzien van elektriciteit en water met afvoer. Achter de schuur ligt een achthoekig zwembad met een diameter van 3,5 meter. Deze tuin biedt veel privacy en is de perfecte plek om de hele zomer van de zon te genieten.

Afmetingen:
Woonkamer- eetkamer 24.2 m²
Keuken 6.3 m²
Slaapkamer 1 17.0 m²
Slaapkamer 2 10.4 m²
Badkamer 2.8 m²
Zolder 9.5 m²
Veranda 12.5 m²
Berging 9.2 m²
Schuur 27.5 m²

Woonoppervlakte 84.0 m²
Perceel grootte 311 m²

Kenmerken:
Verwarming: C.V. ketel (2013)
Warmwater: C.V. ketel (2013)
Bouwjaar: 1920
Tuinligging: Oost
Aanvaarding: In overleg

Pluspunten:
* Diepe achtertuin;
* Lichte keuken;
* Nabij het centrum van Veenendaal;
* Sfeervolle houtkachel;

Koopovereenkomst:
Bij de verkoop zal er een standaard NVM koopovereenkomst worden gehanteerd. Bij woningen welke ouder zijn dan 20 jaar, worden de volgende clausules opgenomen in de koopovereenkomst:
- Asbestclausule;
- Ouderdomsclausule.

Koopt u de woning zonder voorbehoud van financiering? Dan zullen wij een termijn hanteren van 14 dagen na het opstellen van de koopovereenkomst voor het storten van de bankgarantie/waarborgsom.

Deze informatie is door ons met de nodige zorgvuldigheid samengesteld. Onzerzijds wordt echter geen enkele aansprakelijkheid aanvaard voor enige onvolledigheid, onjuistheid of anderszins, dan wel de gevolgen daarvan. Alle opgegeven maten en oppervlakten zijn indicatief.
+ toon meer
deze woning is Verkocht

Gortstraat 56 Veenendaal

Gortstraat 56

3905 BG, Veenendaal
Ditters open huis: 5 april 2025 10:00 - 12:00 uur
Landelijke Open Huizen Route NVM: 5 april 2025 11:00 uur - 15:00 uur
Vanaf€ 365.000 k.k.

Schakel een aankoopmakelaar in.

Snel handelen helpt je jouw droomhuis te bemachtigen. Zo vergroot je de kans dat je er op tijd bij bent.
Veenendaal
verkocht

Of maak vrijblijvend een zoekprofiel aan.

Vergelijkbare woningen

Hypotheken

Onafhankelijk hypotheekadvies

  • Ligt jouw droomhuis binnen handbereik?
  • Wil je jouw huidige hypotheek verhogen?
  • Is er hypotheekruimte voor verduurzaming?

Blijf op de hoogte

Ontvang als eerste updates over nieuw aanbod en mis geen enkele kans om jouw droomwoning te vinden.

Gratis waardebepaling of verkoopgesprek

Met de vrijblijvende waardecheck weet je snel waar je aan toe bent. Onze makelaars kijken naar de lokale markt en vergelijkbare woningen in jouw buurt om een goede schatting te geven.

Realiseer al jouw woondromen met Ditters

Wij zijn een team van gedreven vastgoedexperts met een passie voor het maken van verbindingen – tussen kopers en verkopers, huurders en verhuurders. Met een frisse kijk op de makelaardij combineren we expertise met creativiteit. Onze makelaars luisteren écht en nemen de tijd om jouw wensen te begrijpen.


Bij Ditters sta je er niet alleen voor. We denken met je mee, begeleiden je in elke stap en zijn altijd bereikbaar voor vragen. Neem gerust contact met ons op – we helpen je graag verder!