Omschrijving

Groenplaats 8, Veenendaal-Oost

Gelegen in het gewilde en kindvriendelijke Veenendaal-Oost en nabij het centrum van Veenendaal bevindt zich deze moderne en goed afgewerkte tussenwoning. De woning is voorzien van een sfeervolle en speelse keukenindeling waarbij de keuken is gelegen aan de voorzijde van de woning. Centraal een hal met toilet en trapopgang naar de 1e verdieping en aan de achterzijde de woon-/eetkamer met openslaande tuindeuren. Op de verdiepingen bevinden zich twee tot drie comfortabele slaapkamers, de badkamer en een superhandige wasruimte. Verder beschikt de woning over een onderhoudsvriendelijke tuin gelegen op het noordoosten en een vrijstaande houten berging achterin de tuin. Aangrenzend aan de tuin is er meer dan voldoende openbare parkeergelegenheid.

Dagelijkse voorzieningen, zoals supermarkten en sportfaciliteiten, bevinden zich op loopafstand en het centrum van Veenendaal is eenvoudig per fiets bereikbaar. Daarnaast liggen er in de directe omgeving prachtige wandelgebieden, ideaal voor de natuurliefhebber.

Deze woning biedt een perfecte mix van modern wooncomfort, praktische voorzieningen en een rustige, natuurrijke omgeving.

Indeling:
Begane grond:
Zoals vermeld is de indeling speels, want bij binnenkomst via de voordeur stap je direct binnen in de moderne (leef)keuken. De keuken is uitgerust met betonlook grijze kastjes en een strak antracietgrijs werkblad. Uiteraard is de keuken voorzien van alle denkbare inbouwapparatuur en is er gekozen voor een kookeiland met een inductiekookplaat van het merk Bora, met geïntegreerde afzuiging. Verder is de keuken uitgevoerd met een combi-oven, koel-vriescombinatie en vaatwasser. De raampartijen zorgen voor een fijne, lichte sfeer in deze ruimte. Vanuit de keuken bereik je de centrale hal, waar zich een strak toilet bevindt. Vanaf de hal kom je ook in de woonkamer.

Deze beschikt over heerlijk veel lichtinval en het eetgedeelte bevindt zich aan de achterzijde van de woning. In de woonkamer is genoeg plek voor een comfortabele hoekbank en een sfeervolle zithoek. Centraal tussen de woonkamer en keuken bevindt zich het eetgedeelte. Hier is meer dan voldoende ruimte voor een eettafel met stoelen. Een fijne plek om met familie en/of vrienden te genieten van een hapje, drankje of een spelletje! De dubbele tuindeuren laten veel daglicht binnen en geven directe toegang tot de achtertuin. Tevens is een trapkast aanwezig.

Eenmaal teruggekomen in de hal heb je toegang tot de trapopgang naar de eerste verdieping.

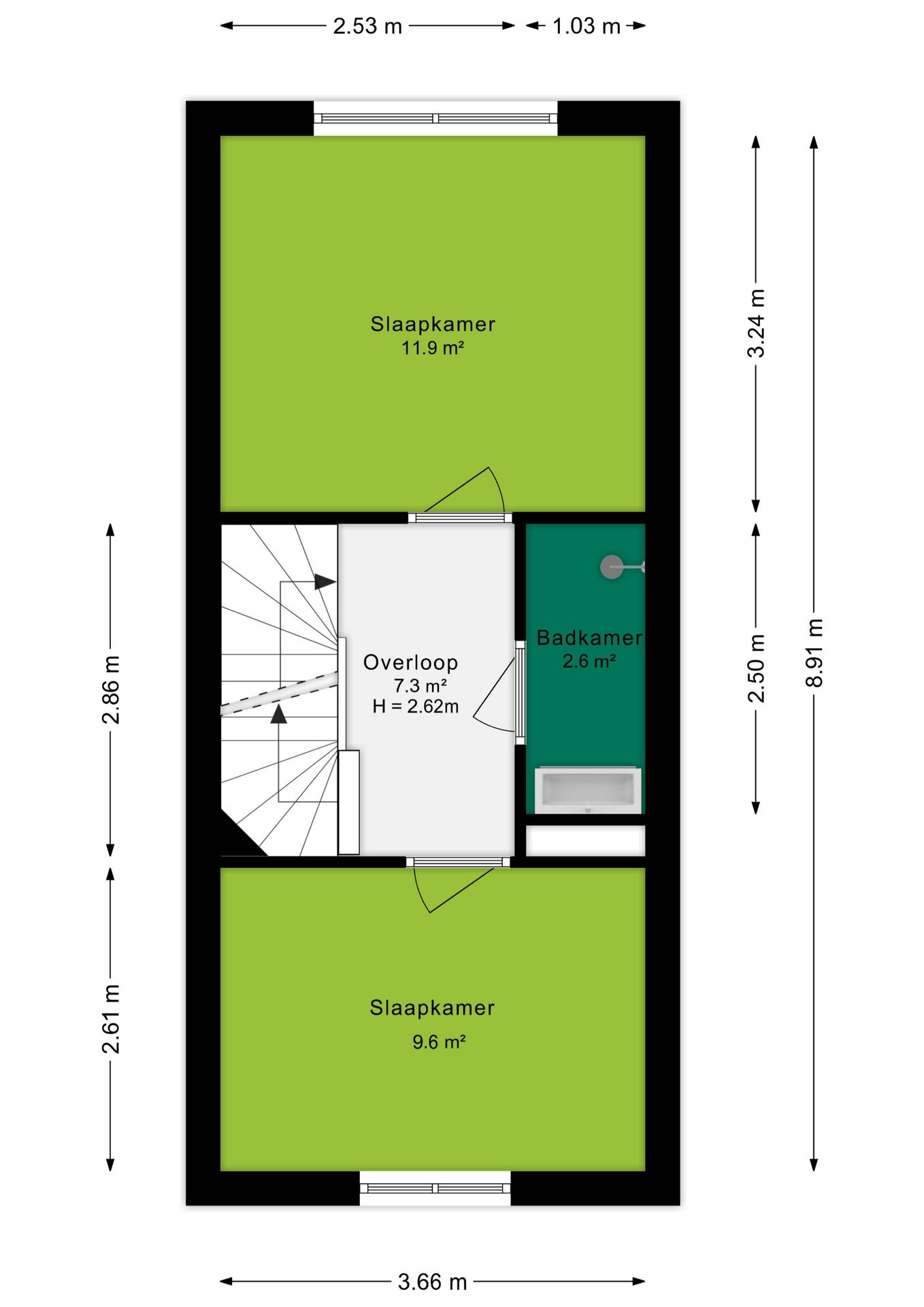
Eerste verdieping:
Via de vaste trap kom je op de eerste verdieping. Deze leidt je naar de overloop waar je twee royale en fijne slaapkamers van respectievelijk 11,9 m² en 9,6 m² terugvindt. Beide kamers hebben grote ramen die zorgen voor veel natuurlijk lichtinval. De badkamer is centraal tussen beide slaapkamers gelegen, modern ingericht met witte en antracietgrijze tegels en beschikt over een wastafelmeubel met enkele wastafel en een inloopdouche.

Tweede verdieping:
Je bereikt de tweede verdieping via de vaste trap. De zolder is een veelzijdige ruimte met een voorzolder/kamer van circa 13,2 m². Deze ruimte kan eenvoudig worden ingericht als derde slaapkamer, hobbyruimte of werkplek. Daarnaast is er een aparte wasruimte met aansluiting voor zowel een wasmachine als droger. De zolder is verder voorzien van praktische dakramen en biedt voldoende opbergruimte.

Tuin:
De achtertuin, gelegen op het noordoosten, is verzorgd aangelegd en biedt volop mogelijkheden om van het buitenleven te genieten. Er is ruimte voor een gezellige lounge set en een kinderspeelhoek. Verder vind je hier een handige berging van 5,9 m², ideaal voor het opbergen van fietsen, tuinspullen en gereedschap. De tuin is via achterom of het parkeerterrein te bereiken. Op het parkeerterrein zijn meer dan voldoende openbare parkeerplaatsen, waardoor er altijd een plekje vrij is om je auto te parkeren.

Bijzonderheden:
Verwarming: DEVO stadsverwarming, vloerverwarming met koelfunctie;
Warm water: DEVO stadsverwarming;
Isolatie: volledig geïsoleerd;
Tuinligging: noordoost;
Aanvaarding: in overleg.

Koopovereenkomst:
Koop je de woning zonder voorbehoud van financiering? Dan zullen wij een termijn hanteren van 6 weken na het opstellen van de koopovereenkomst voor het storten van de bankgarantie/waarborgsom.

Deze informatie is door ons met de nodige zorgvuldigheid samengesteld. Onzerzijds wordt echter geen enkele aansprakelijkheid aanvaard voor enige onvolledigheid, onjuistheid of anderszins, dan wel de gevolgen daarvan. Alle opgegeven maten en oppervlakten zijn indicatief.
+ toon meer
deze woning is Verkocht

Groenplaats 8 Veenendaal

Groenplaats 8

3907 KG, Veenendaal
Ditters open huis: 5 april 2025 10:00 - 12:00 uur
Landelijke Open Huizen Route NVM: 5 april 2025 11:00 uur - 15:00 uur
Vanaf€ 425.000 k.k.

Schakel een aankoopmakelaar in.

Snel handelen helpt je jouw droomhuis te bemachtigen. Zo vergroot je de kans dat je er op tijd bij bent.
Veenendaal
verkocht

Of maak vrijblijvend een zoekprofiel aan.

Vergelijkbare woningen

Hypotheken

Onafhankelijk hypotheekadvies

  • Ligt jouw droomhuis binnen handbereik?
  • Wil je jouw huidige hypotheek verhogen?
  • Is er hypotheekruimte voor verduurzaming?

Blijf op de hoogte

Ontvang als eerste updates over nieuw aanbod en mis geen enkele kans om jouw droomwoning te vinden.

Gratis waardebepaling of verkoopgesprek

Met de vrijblijvende waardecheck weet je snel waar je aan toe bent. Onze makelaars kijken naar de lokale markt en vergelijkbare woningen in jouw buurt om een goede schatting te geven.

Realiseer al jouw woondromen met Ditters

Wij zijn een team van gedreven vastgoedexperts met een passie voor het maken van verbindingen – tussen kopers en verkopers, huurders en verhuurders. Met een frisse kijk op de makelaardij combineren we expertise met creativiteit. Onze makelaars luisteren écht en nemen de tijd om jouw wensen te begrijpen.


Bij Ditters sta je er niet alleen voor. We denken met je mee, begeleiden je in elke stap en zijn altijd bereikbaar voor vragen. Neem gerust contact met ons op – we helpen je graag verder!