Omschrijving

Op een prachtige locatie, gelegen aan het water, bevindt zich deze royale eengezinswoning aan Kamgras 26 in Veenendaal. Deze fraaie woning is gelegen op een perceel van 205m² en de locatie is bijna perfect te noemen: de achterzijde ligt aan het water en de voorzijde aan een rustig hofje op loopafstand van het Winkelcentrum 't ronde erf.

De volgende aspecten van deze fraaie woning zullen je vast aanspreken: royale woonkamer met veel lichtinval, moderne woonkeuken met diverse inbouwapparatuur, 3 volwaardige slaapkamers, multifunctionele 2e verdieping met nog eens 2 slaapkamers en een zeer diepe (23m!) tuin op het zuidwesten met een ligging aan het water.

Gelegen in Dragonder Noord, in een prettige kindvriendelijke woonomgeving, omringd door groen bevindt zich deze ruime woning. Verder is de woning gelegen nabij scholen, bossen en buurtwinkelcentrum 'Het Erf'. Mede door de ruime opzet van dit gedeelte van de wijk maken dit tot een gewilde woonomgeving. De woning is zeer centraal gelegen, dichtbij station Veenendaal-De Klomp en nabij diverse belangrijke uitvalswegen zoals de A15, A30 en de A12.

Extra's:
- Royale eengezinswoning aan het water
- Fantastisch diepe tuin
- Moderne keuken (uit 2022) met inbouwapparatuur
- 5 volwaardige slaapkamers
- Voorzien van airconditioning
- Complete badkamer met douche en ligbad
- Op goede afstand van alle voorzieningen

Indeling:
Begane grond:
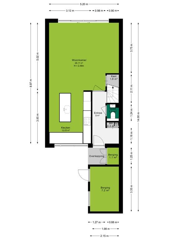
De woonkamer heeft een afmeting van ruim 25m² en is voorzien van een sfeervolle laminaatvloer en heerlijk veel lichtinval. Door de ruime afmeting is er plek genoeg voor een eetgedeelte en ontstaat er een gezellige verbinding tussen de woonkamer en de keuken. De recent vernieuwde (2022) open woonkeuken heeft een moderne kleurstelling en is voorzien van een vaatwasser, kookplaat, afzuigkap, oven, koel-vriescombinatie en een Quooker. Door de grote raampartijen is de woning aan beide zijde voorzien van veel lichtinval en een fantastisch vrij uitzicht. Via de hal, met meterkast en toilet, bereik je de trapopgang naar de verdieping

1e Verdieping:
Via de overloop is er toegang naar 3 volwaardige slaapkamers en de moderne badkamer. De slaapkamers hebben een afmeting van circa 12,5m², 11,5m² en 7m². De slaapkamers zijn voorzien van een laminaatvloer, neutrale wanden en voldoende lichtinval. De badkamer is betegeld in een moderne kleurstelling en beschikt over een ligbad, douche, toilet, wastafel en een raam om extra goed te kunnen ventileren. De eerste verdieping is tevens voorzien van 2 airco's.

2e Verdieping:
Via de vaste trap is de 2e verdieping bereikbaar. Deze verdieping telt de 4e en 5 slaapkamer. De kamers hebben een afmeting van ca. 6m² en 5,5m² en zijn voorzien van een nette vloer en voldoende lichtinval. Door deze ruime indeling kan de 2e verdieping multifunctioneel gebruikt worden, te denken valt aan een werkruimte, sportplek of slaapkamer. Verder bevindt zich op de ruime overloop de witgoedaansluiting en in de knieschotten is hier ook veel opbergruimte.

Tuin:
Wat een heerlijke diepe tuin! De tuin is gelegen op het zuidwesten en door de prettige ligging is er altijd wel een plekje in de zon of in de schaduw te vinden. De tuin biedt ruimte genoeg voor een gezellig terras, speelplekjes of groenstroken. Mede door de ligging aan het water kom je hier helemaal tot rust en kan je echt van het buitenleven genieten.

Bijzonderheden:
Verwarming: C.V.-combiketel (bouwjaar 2023)
Warm water: C.V.-combiketel (bouwjaar 2023)
Isolatie: dakisolatie, muurisolatie en dubbel glas
Bouwjaar: 1975
Tuinligging: zuidwesten
Aanvaarding: in overleg

Koopovereenkomst:
Bij de verkoop zal er een standaard NVM koopovereenkomst worden gehanteerd. Bij woningen welke ouder zijn dan 20 jaar, worden de volgende clausules opgenomen in de koopovereenkomst:
- Asbestclausule
- Ouderdomsclausule

Koop je de woning zonder voorbehoud van financiering? Dan zullen wij een termijn hanteren van 14 dagen na het opstellen van de koopovereenkomst voor het storten van de bankgarantie/waarborgsom.

Deze informatie is door ons met de nodige zorgvuldigheid samengesteld. Onzerzijds wordt echter geen enkele aansprakelijkheid aanvaard voor enige onvolledigheid, onjuistheid of anderszins, dan wel de gevolgen daarvan. Alle opgegeven maten en oppervlakten zijn indicatief.
+ toon meer
deze woning is Verkocht

Kamgras 26 Veenendaal

Kamgras 26

3902 BC, Veenendaal
Ditters open huis: 5 april 2025 10:00 - 12:00 uur
Landelijke Open Huizen Route NVM: 5 april 2025 11:00 uur - 15:00 uur
Vanaf€ 475.000 k.k.

Schakel een aankoopmakelaar in.

Snel handelen helpt je jouw droomhuis te bemachtigen. Zo vergroot je de kans dat je er op tijd bij bent.
Veenendaal
verkocht

Of maak vrijblijvend een zoekprofiel aan.

Vergelijkbare woningen

Hypotheken

Onafhankelijk hypotheekadvies

  • Ligt jouw droomhuis binnen handbereik?
  • Wil je jouw huidige hypotheek verhogen?
  • Is er hypotheekruimte voor verduurzaming?

Blijf op de hoogte

Ontvang als eerste updates over nieuw aanbod en mis geen enkele kans om jouw droomwoning te vinden.

Gratis waardebepaling of verkoopgesprek

Met de vrijblijvende waardecheck weet je snel waar je aan toe bent. Onze makelaars kijken naar de lokale markt en vergelijkbare woningen in jouw buurt om een goede schatting te geven.

Realiseer al jouw woondromen met Ditters

Wij zijn een team van gedreven vastgoedexperts met een passie voor het maken van verbindingen – tussen kopers en verkopers, huurders en verhuurders. Met een frisse kijk op de makelaardij combineren we expertise met creativiteit. Onze makelaars luisteren écht en nemen de tijd om jouw wensen te begrijpen.


Bij Ditters sta je er niet alleen voor. We denken met je mee, begeleiden je in elke stap en zijn altijd bereikbaar voor vragen. Neem gerust contact met ons op – we helpen je graag verder!