Omschrijving

Instapklaar wonen in de populaire wijk Veenendaal-Oost: stijlvolle en uitgebouwde 2-onder-1-kapwoning met o.a. energielabel A++. 12 zonnepanelen (geplaatst in 2023), 4 slaapkamers en luxe voorzieningen!

In de gewilde en kindvriendelijke wijk Veenendaal-Oost staat deze prachtige, uitgebouwde 2-onder-1-kapwoning te koop. Een woning die opvalt door zijn moderne uitstraling, duurzame voorzieningen en royale leefruimtes – hier voelt thuiskomen als een warme omhelzing! Tel daarbij de gunstige ligging nabij het groene wandelgebied De Groene Grens en alle gezinsvriendelijke voorzieningen op loopafstand, en je hebt de perfecte plek om je woonavontuur voort te zetten.

Ideale locatie: alles binnen handbereik
Veenendaal-Oost is niet zonder reden een van de meest populaire wijken van de omgeving. De wijk is overzichtelijk, verkeersveilig en buitengewoon kindvriendelijk. Daarnaast heb je tal van voorzieningen letterlijk op loopafstand: wijkwinkelcentrum Veenendaal-Oost biedt een Lidl, Albert Heijn en Kruidvat, terwijl gezondheidscentrum Kloppend Hart de thuisbasis is van een dierenarts, apotheek, fysiotherapeut en verloskundige. De centrale ligging maakt het plaatje helemaal compleet! In slechts enkele minuten rijd je de A12 op (Arnhem/ Utrecht) en het bruisende stadscentrum van Veenendaal ligt op fietsafstand. Voor natuurliefhebbers ligt het uitgestrekte wandelgebied De Groene Grens om de hoek – dé perfecte plek voor een wandeling, hardloopronde of frisse neus. Of je nu jong of oud bent, alleenstaand of met een gezin: dit is een plek waar iedereen zich thuis kan voelen.

Wonen:
Bij binnenkomst in de hal voel je direct de ruimte en lichtinval die deze woning te bieden heeft. Hier bevinden zich de meterkast, garderoberuimte en de toiletruimte met zwevend toilet en fonteintje. Via een mooie glazen deur, met rookglas, bereik je de leefruimte. De riante en tuingerichte woonkamer van bijna 44 m², met openslaande deuren naar de zonnige achtertuin, vormt het hart van het huis. Deze royale leefruimte biedt genoeg plek voor een grote zithoek en een gezellige eethoek, perfect voor het hele gezin én borrels met familie en/of vrienden. Vanuit de woonkamer heb je zicht op de brede en verzorgd aangelegde achtertuin.

Centraal tussen de woonkamer en keuken bevindt zich het eetgedeelte. Hier is meer dan voldoende ruimte voor een grote eettafel met stoelen. Een fijne plek om met familie en/of vrienden te genieten van een hapje, drankje en spelletje!

De L-vormige open keuken is gelegen aan de voorzijde van de woning en combineert stijl en functionaliteit. Uitgevoerd met antracieten fronten en voorzien van praktisch inbouwapparatuur zoals een inductiekookplaat met afzuigkap, een vaatwasser (vernieuwd in 2022), een combi-oven (vernieuwd in 2020) en een koel-vriescombinatie. Of je nu een snelle maaltijd bereidt of uitgebreid staat te koken, deze keuken maakt het een plezier!

De volledige begane grond is voorzien van een PVC vloer met vloerverwarming en vloerkoeling!

Slapen & ontspannen:
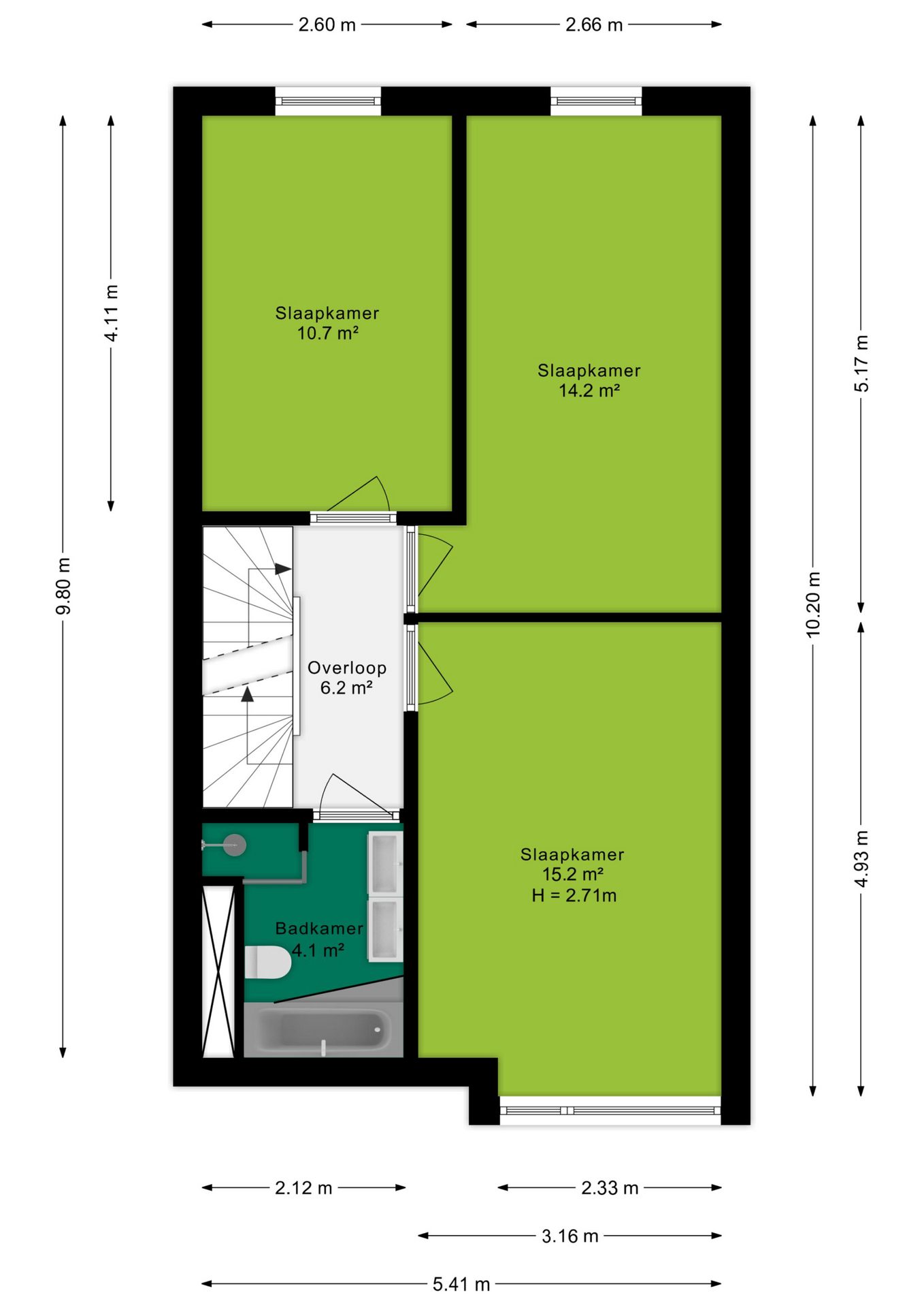
De eerste verdieping, te bereiken via de met tapijt bekleedde, brede, trap, biedt maar liefst drie royale slaapkamers (ca. 10,7 m², 14,2 m² en 15,2 m²). De strakke afwerking en de grote ramen maken elke kamer een fijne plek om te ontspannen. Deze verdieping is zowel aan de voorzijde als achterzijde voorzien van rolluiken, horren en raambekleding. De moderne badkamer is uitgerust met een ligbad, een inloopdouche, een dubbele wastafel met stijlvol wastafelmeubel, een designradiator en vloerverarming/koeling. Naast mechanische ventilatie is er ook een te openen raam voor de gewenste natuurlijke ventilatie. De donkere vloertegens en de witte wandtegels maken de badkamer modern, neutraal en tijdloos.

Ook de volledige 1e verdieping beschikt over vloerverwarming en vloerkoeling. Daarnaast hangt er in het trapgat richting de 2e verdieping een airconditioning die genoeg kracht heeft om de hele verdieping extra te koelen of te verwarmen.

De tweede verdieping is een open ruimte die zich moeiteloos laat omtoveren tot een of meerdere extra slaapkamers, kantoor of hobbyruimte – volledig naar jouw wensen in te richten. Op deze verdieping bevindt zich tevens de aansluitingen voor een wasmachine en/of droger en de box van de mechanische ventilatie. Het plaatsen van een dakkapel of extra dakramen behoort allemaal te de mogelijkheden.

Buitenleven:
De ruime en onderhoudsvriendelijk aangelegde achtertuin (9x9m²) biedt alles voor ontspanning en vermaak. Geniet van lange zomeravonden, of kom helemaal tot rust in de jacuzzi (ter overname).

De vrijstaande houten schuur en de aangebouwde overkapping biedt daarnaast volop opbergruimte voor fietsen en tuinspullen.

De stenen berging kan eventueel omgebouwd worden tot een eigen kantoor of bedrijf aan huis, met eigen ingang!

Dankzij de oprit en carport (dit is uniek in deze straat en is aangelegd in 2019) parkeer je je auto altijd veilig en droog op eigen terrein. Beschik jij over een elektrische auto? De voorbereidingen voor een laadpaal zijn al aanwezig!

Duurzaam en toekomstbestendig:
Deze woning is volledig geïsoleerd, beschikt over maar liefst 12 zonnepanelen (geplaatst in 2023) en heeft een energielabel A++ – een woning klaar voor de toekomst én met lage energiekosten!

Highlights op een rij:
- Royale, uitgebouwde 2-onder-1-kapwoning met oprit en carport
- Gelegen in Veenendaal-Oost, met wandelgebied De Groene Grens om de hoek
- Riante en tuingerichte woonkamer van 44 m² met openslaande tuindeuren
- Moderne open keuken en badkamer
- Ruime, zonnige achtertuin met veranda, overkapping, jacuzzi (ter overname) en schuur
- Volledig geïsoleerd, energielabel A++ en 12 zonnepanelen (2023)
- Centraal gelegen nabij wijkwinkelcentrum Veenendaal-Oost en snelweg A12
- Fietsafstand tot het stadscentrum van Veenendaal

Wordt dit jouw nieuwe droomhuis?
Plan snel een bezichtiging en laat je betoveren door deze schitterende woning – een plek waar je elke dag weer met plezier thuiskomt.

Bijzonderheden:
Verwarming: Stadsverwarming
Warmwater: Stadsverwarming
Isolatie: Volledig geïsoleerd
Aanvaarding: In overleg.

Koopt u de woning zonder voorbehoud van financiering? Dan zullen wij een termijn hanteren van 14 dagen na het opstellen van de koopovereenkomst voor het storten van de bankgarantie/waarborgsom.

Deze informatie is door ons met de nodige zorgvuldigheid samengesteld. Onzerzijds wordt echter geen enkele aansprakelijkheid aanvaard voor enige onvolledigheid, onjuistheid of anderszins, dan wel de gevolgen daarvan. Alle opgegeven maten en oppervlakten zijn indicatief
+ toon meer
deze woning is Verkocht

Klemstraat 5 Veenendaal

Klemstraat 5

3907 LK, Veenendaal
Ditters open huis: 5 april 2025 10:00 - 12:00 uur
Landelijke Open Huizen Route NVM: 5 april 2025 11:00 uur - 15:00 uur
Vanaf€ 750.000 k.k.

Schakel een aankoopmakelaar in.

Snel handelen helpt je jouw droomhuis te bemachtigen. Zo vergroot je de kans dat je er op tijd bij bent.
Veenendaal
verkocht

Of maak vrijblijvend een zoekprofiel aan.

Vergelijkbare woningen

Hypotheken

Onafhankelijk hypotheekadvies

  • Ligt jouw droomhuis binnen handbereik?
  • Wil je jouw huidige hypotheek verhogen?
  • Is er hypotheekruimte voor verduurzaming?

Blijf op de hoogte

Ontvang als eerste updates over nieuw aanbod en mis geen enkele kans om jouw droomwoning te vinden.

Gratis waardebepaling of verkoopgesprek

Met de vrijblijvende waardecheck weet je snel waar je aan toe bent. Onze makelaars kijken naar de lokale markt en vergelijkbare woningen in jouw buurt om een goede schatting te geven.

Realiseer al jouw woondromen met Ditters

Wij zijn een team van gedreven vastgoedexperts met een passie voor het maken van verbindingen – tussen kopers en verkopers, huurders en verhuurders. Met een frisse kijk op de makelaardij combineren we expertise met creativiteit. Onze makelaars luisteren écht en nemen de tijd om jouw wensen te begrijpen.


Bij Ditters sta je er niet alleen voor. We denken met je mee, begeleiden je in elke stap en zijn altijd bereikbaar voor vragen. Neem gerust contact met ons op – we helpen je graag verder!