Omschrijving

Op zoek naar een vrijstaande woning op een riant perceel van maar liefst 596m²? Kom dan snel kijken bij de Middellaan 102 te Veenendaal. Deze goed onderhouden woning is van binnen keurig onderhouden, is levensloopbestendig en heeft een zeer royale tuin op het zonnige zuidwesten. Ook is de woning al helemaal klaar voor de toekomst; volledig geïsoleerd, zonnepanelen en energielabel A.

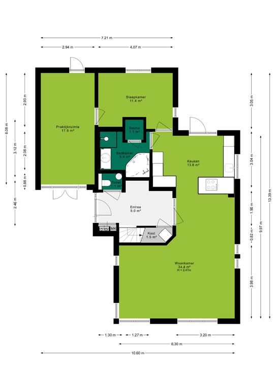
De volgende aspecten van deze fraaie woningen zullen je vast verrassen: royale woonkamer met veel lichtinval, moderne woonkeuken met diverse inbouwapparatuur, maar liefst 2 badkamers, slaapkamer op de begane grond, 3 slaapkamers op de 1e verdieping, meerdere parkeerplekken op eigen oprit, multifunctionele praktijkruimte en een royale tuin van wel 22m(!) diep.

De woning is gelegen in een kindvriendelijke wijk en op steenworpafstand van het bruisende centrum van Veenendaal en de woonboulevard. Op korte afstand vind je alle winkelvoorzieningen, restaurants, basisscholen, sportvelden of de uitgestrekte bossen van de Utrechtse Heuvelrug.

Indeling:
Begane grond:
Via de ruime oprit, waar je gemakkelijk meerdere auto's kan parkeren bereik je de woning. De entree met toilet en meterkast geeft toegang tot de woonkamer. De royale woonkamer heeft een afmeting van ca. 35m², is voorzien van een sfeervolle laminaatvloer, neutrale wanden en voldoende lichtinval. Door de prettige indeling is er ruimte genoeg voor een grote eettafel en ontstaat er een gezellig verbinding tussen de woonkamer en de keuken. De keuken heeft een lichte kleurstelling en is voorzien van diverse inbouwapparatuur, waaronder een kookplaat, afzuigkap, magnetron, oven, koelkast en vriezer.

De woning is zeker levensloopbestendig te noemen. Op de begane grond bevindt zich namelijk een slaapkamer van ca. 11,5m² en een moderne badkamer met douche en ligbad. Ook bevindt zich hier een multifunctionele praktijkruimte. Ideaal te gebruiken als kantoor, hobbyruimte of garage.

Eerste verdieping:
Door middel van de vaste trap kom je bij de overloop en zijn de 3 slaapkamers en de badkamer te bereiken. De slaapkamers hebben een afmeting van ca. 17m², 9,5m² en 8m². De kamers zijn voorzien van een sfeervolle laminaatvloer, neutrale wanden en voldoende lichtinval. De badkamer is betegeld in een moderne kleurstelling en beschikt over een inloopdouche, wastafel met wastafelmeubel, toilet en de witgoedaansluiting is hier aanwezig.

Vliering:
Via de vlizotrap is de vliering te bereiken. Ideaal voor het opslaan van spullen en als bergruimte te gebruiken.

Buiten:
Wat een fantastische tuin! De tuin is in zeer goede staat van onderhoud en bezit diverse beplanting, bomen en struiken en meerdere gezellig zitplekjes om van de tuin te kunnen genieten. Door de riante afmeting is er altijd wel een plekje in de zon of in de schaduw te vinden. Verder is er extra veel bergruimte door de 3 bergingen en een achterom.

Bijzonderheden
Verwarming C.V.-combiketel (bouwjaar 2022)
Warm water C.V.-combiketel (bouwjaar 2022)
Bouwjaar 1994
Isolatie Volledig geïsoleerd
Tuinligging zuidwesten
Aanvaarding In overleg

Extra's
- Royale vrijstaande woning op een riant perceel;
- Moderne keuken met diverse inbouwapparatuur
- Badkamer en slaapkamer op de begane grond;
- De woning beschikt over 4 volwaardige slaapkamers;
- 16 zonnepanelen en energielabel A;
- Multifunctionele praktijkruimte wat ook als garage gebruikt kan worden;
- Zeer royale tuin op het zonnige zuidwesten;
- Op goede afstand van alle voorzieningen.

Koopovereenkomst:
Bij de verkoop zal er een standaard NVM koopovereenkomst worden gehanteerd. Bij woningen welke ouder zijn dan 20 jaar, worden de volgende clausules opgenomen in de koopovereenkomst:
- Asbestclausule;
- Ouderdomsclausule.
Koopt u de woning zonder voorbehoud van financiering? Dan zullen wij een termijn hanteren van 14 dagen na het opstellen van de koopovereenkomst voor het storten van de bankgarantie/waarborgsom.

Deze informatie is door ons met de nodige zorgvuldigheid samengesteld. Onzerzijds wordt echter geen enkele aansprakelijkheid aanvaard voor enige onvolledigheid, onjuistheid of anderszins, dan wel de gevolgen daarvan. Alle opgegeven maten en oppervlakten zijn indicatief.
+ toon meer
deze woning is Verkocht

Middellaan 102 Veenendaal

Middellaan 102

3904 LK, Veenendaal
Ditters open huis: 5 april 2025 10:00 - 12:00 uur
Landelijke Open Huizen Route NVM: 5 april 2025 11:00 uur - 15:00 uur
Vanaf€ 885.000 k.k.

Schakel een aankoopmakelaar in.

Snel handelen helpt je jouw droomhuis te bemachtigen. Zo vergroot je de kans dat je er op tijd bij bent.
Veenendaal
verkocht

Of maak vrijblijvend een zoekprofiel aan.

Vergelijkbare woningen

Hypotheken

Onafhankelijk hypotheekadvies

  • Ligt jouw droomhuis binnen handbereik?
  • Wil je jouw huidige hypotheek verhogen?
  • Is er hypotheekruimte voor verduurzaming?

Blijf op de hoogte

Ontvang als eerste updates over nieuw aanbod en mis geen enkele kans om jouw droomwoning te vinden.

Gratis waardebepaling of verkoopgesprek

Met de vrijblijvende waardecheck weet je snel waar je aan toe bent. Onze makelaars kijken naar de lokale markt en vergelijkbare woningen in jouw buurt om een goede schatting te geven.

Realiseer al jouw woondromen met Ditters

Wij zijn een team van gedreven vastgoedexperts met een passie voor het maken van verbindingen – tussen kopers en verkopers, huurders en verhuurders. Met een frisse kijk op de makelaardij combineren we expertise met creativiteit. Onze makelaars luisteren écht en nemen de tijd om jouw wensen te begrijpen.


Bij Ditters sta je er niet alleen voor. We denken met je mee, begeleiden je in elke stap en zijn altijd bereikbaar voor vragen. Neem gerust contact met ons op – we helpen je graag verder!