Omschrijving

Gelegen aan de Narcisstraat 21 in Veenendaal biedt dit appartement alles wat je nodig hebt: een lichte woonkamer, moderne open keuken, een lichte slaapkamer, een multifunctionele tweede kamer en een ruime badkamer. In de tuin staat een handige houten berging. Bovendien zorgt de vloerverwarming voor extra comfort tijdens de koudere dagen.

De woning is gelegen in een prettige woonomgeving in Veenendaal. De ligging van de woning is optimaal. In de nabije omgeving vindt je onder andere de 'Prattenburgse' bossen waar heerlijk gewandeld of gefietst kan worden en op korte afstand van het winkelhart van Veenendaal. Tevens op korte afstand van zowel NS-station Veenendaal West en het centrum, maar ook het NS-station De Klomp is goed bereikbaar. Verder zijn de uitvalswegen naar de snelweg A12 en de A15 prima bereikbaar. Sport- en speelgelegenheden, binnen- en buitenzwembad, basisscholen en middelbaar en voortgezet onderwijs zijn in de directe omgeving te vinden. Op 300 meter afstand is een supermarkt gesitueerd. Kortom de ideale uitvalsbasis, gezien de centrale ligging, zowel binnen Veenendaal als binnen Nederland.

Indeling:
Begane grond
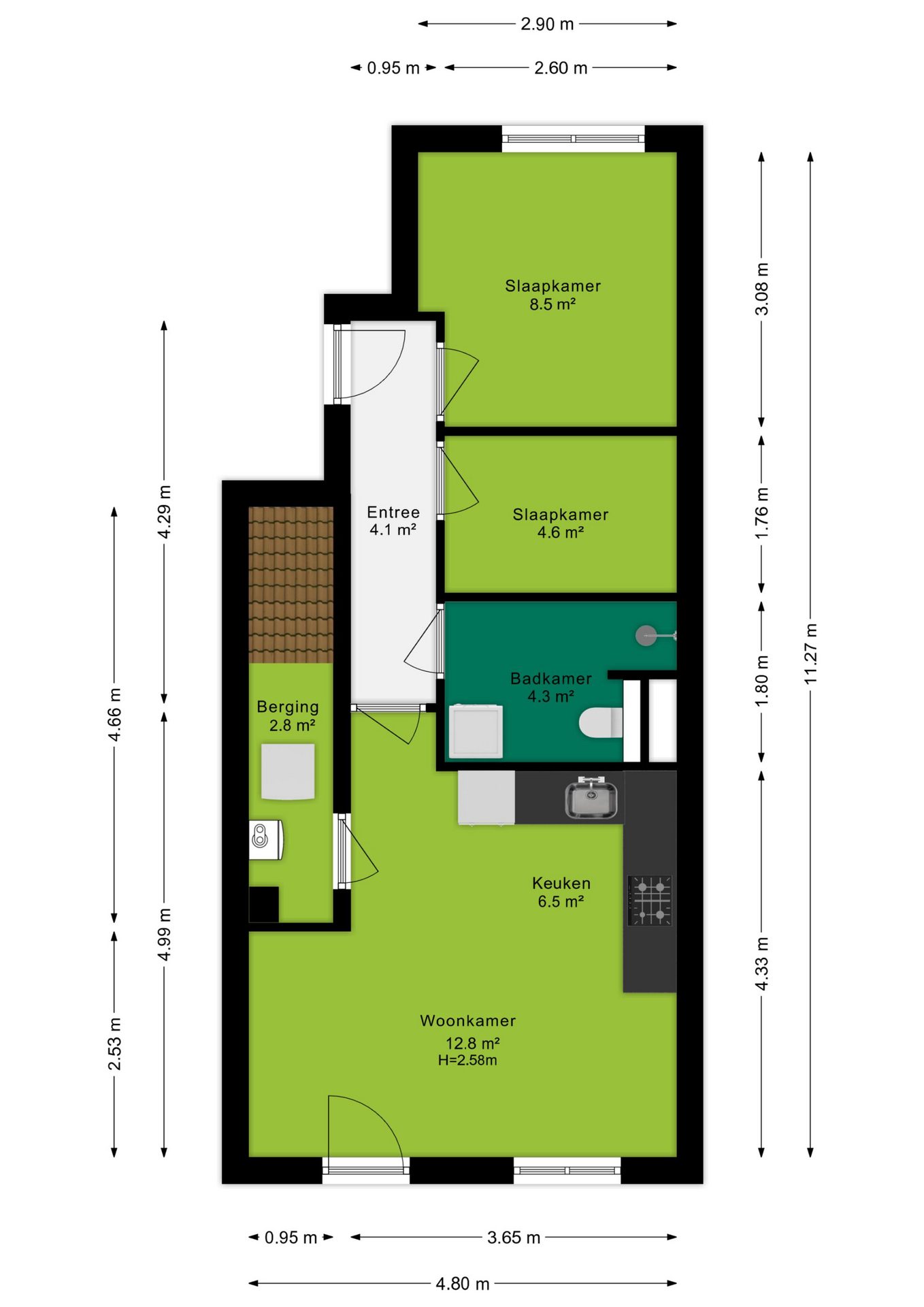
Via de entree van 4,1 m² bereik je de lichte woonkamer van 12,8 m². Deze ruimte biedt voldoende plek voor een comfortabele zithoek én een eettafel. Aansluitend bevindt zich de L-vormige open keuken van 6,5 m², uitgerust met diverse inbouwapparatuur zoals een gasfornuis, (recirculatie) afzuigkap, koelkast, afwasmachine en oven. Vanuit de woonkamer heb je tevens toegang tot de praktische inpandige berging van 2,8 m², ideaal voor het opbergen van extra spullen.

De entree geeft daarnaast toegang tot de ruime slaapkamer van 8,5 m², die dankzij het raampartij geniet van veel natuurlijk daglicht. De naastgelegen kamer van 4,6 m² wordt momenteel gebruikt als slaapkamer, maar is ook perfect in te richten als werk- of hobbyruimte.

De ruime badkamer van 4,3 m² is afgewerkt met witte wandtegels en een antracietgrijze vloer. De badkamer is voorzien van een wastafel, inloopdouche en toilet. Daarnaast vind je hier de aansluitingen voor de wasmachine en droger.


Patio en berging:
Via de tuin, die op het zuidoosten ligt en voldoende ruimte biedt voor een gezellige zithoek, bereik je tevens de vrijstaande houten berging van 5,4 m². Dit is een praktische plek voor het stallen van fietsen en het netjes opbergen van je spullen.

Kenmerken
- Woonoppervlakte: 46 m²
- Bouwjaar: 2014
- Energielabel: A
- Volledig geïsoleerd
- 1 slaapkamer en 1 extra werkkamer
- Vrijstaande houten berging (5,4 m²)
- Gelegen in rustige, kindvriendelijke wijk
- Nabij winkelcentrum, bossen, openbaar vervoer en uitvalswegen

Koopovereenkomst:
Bij de verkoop zal er een standaard NVM koopovereenkomst worden gehanteerd.

Koopt u de woning zonder voorbehoud van financiering? Dan zullen wij een termijn hanteren van 6 weken na het opstellen van de koopovereenkomst voor het storten van de bankgarantie/waarborgsom.

Deze informatie is door ons met de nodige zorgvuldigheid samengesteld. Onzerzijds wordt echter geen enkele aansprakelijkheid aanvaard voor enige onvolledigheid, onjuistheid of anderszins, dan wel de gevolgen daarvan. Alle opgegeven maten en oppervlakten zijn indicatief.
+ toon meer
deze woning is Verkocht

Narcisstraat 21 Veenendaal

Narcisstraat 21

3905 ZV, Veenendaal
Ditters open huis: 5 april 2025 10:00 - 12:00 uur
Landelijke Open Huizen Route NVM: 5 april 2025 11:00 uur - 15:00 uur
Vanaf€ 285.000 k.k.

Schakel een aankoopmakelaar in.

Snel handelen helpt je jouw droomhuis te bemachtigen. Zo vergroot je de kans dat je er op tijd bij bent.
Veenendaal
verkocht

Of maak vrijblijvend een zoekprofiel aan.

Vergelijkbare woningen

Hypotheken

Onafhankelijk hypotheekadvies

  • Ligt jouw droomhuis binnen handbereik?
  • Wil je jouw huidige hypotheek verhogen?
  • Is er hypotheekruimte voor verduurzaming?

Blijf op de hoogte

Ontvang als eerste updates over nieuw aanbod en mis geen enkele kans om jouw droomwoning te vinden.

Gratis waardebepaling of verkoopgesprek

Met de vrijblijvende waardecheck weet je snel waar je aan toe bent. Onze makelaars kijken naar de lokale markt en vergelijkbare woningen in jouw buurt om een goede schatting te geven.

Realiseer al jouw woondromen met Ditters

Wij zijn een team van gedreven vastgoedexperts met een passie voor het maken van verbindingen – tussen kopers en verkopers, huurders en verhuurders. Met een frisse kijk op de makelaardij combineren we expertise met creativiteit. Onze makelaars luisteren écht en nemen de tijd om jouw wensen te begrijpen.


Bij Ditters sta je er niet alleen voor. We denken met je mee, begeleiden je in elke stap en zijn altijd bereikbaar voor vragen. Neem gerust contact met ons op – we helpen je graag verder!