Omschrijving

Welkom op Raadhuisplein 13 F, een fijn appartement op een toplocatie in hartje centrum!

Hier woon je op loopafstand van alle voorzieningen die je maar kunt wensen. Van supermarkten en winkels tot gezellige restaurants, cafés en sportscholen – alles is binnen handbereik. Het maakt niet uit of je een snelle boodschap wilt doen, een avondje uit wilt gaan of een actieve workout wilt inplannen, het kan allemaal dicht bij huis.

Naast de centrale ligging in het bruisende stadsleven, bevindt de natuur zich ook verrassend dichtbij. Op korte afstand ligt de prachtige Utrechtse Heuvelrug, waar je heerlijk kunt wandelen, fietsen of gewoon kunt ontspannen in de rust van de natuur. Het is de perfecte plek om even te ontsnappen aan de drukte.

Bovendien is de ligging zeer gunstig voor reizigers. Veenendaal-Centrum ligt op loopafstand en de A12 en A30 zijn in enkele minuten te bereiken, waardoor je snel toegang hebt tot alle belangrijke verbindingen in Nederland. Of je nu voor werk reist of een weekendje weg wilt, deze ligging biedt ultiem gemak.

Raadhuisplein 13 F combineert de beste aspecten van stads wonen met de rust van de natuur en de uitstekende bereikbaarheid. Een fijne plek om volop te genieten van alle comfort en gemak die deze omgeving te bieden heeft!

Begane grond:
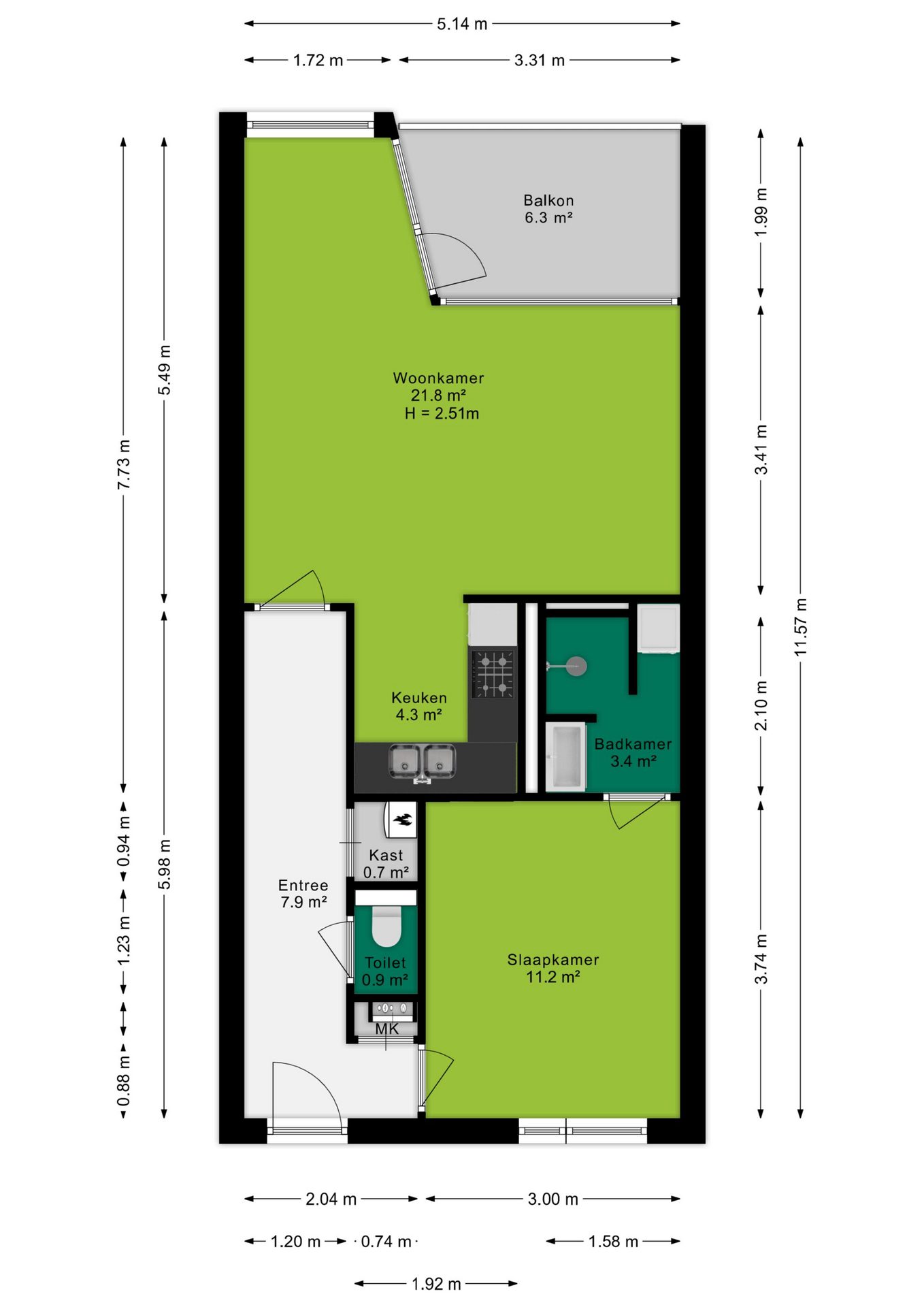
Via de gemeenschappelijke afgesloten entree, voorzien van brievenbussen, intercoms, een trappenhuis en een lift, kom je bij de ingang van het appartement, gelegen op de derde verdieping.

Derde verdieping:
Bij binnenkomst in het appartement betreed je een ruime hal met plaats voor een garderobe, toegang tot de meterkast, een apart toilet en twee deuren die leiden naar de slaapkamer en de rest van de woning. De woon- en eetkamer heeft een royale oppervlakte van 21,8 m² en biedt veel lichtinval. Er is voldoende ruimte voor een grote bank, een ruime eettafel en zelfs een extra gezellige zithoek of thuiswerkplek, tevens vindt je hier ook de toegang naar het balkon. De moderne keuken, voorzien van stijlvol tegelwerk en diverse inbouwapparatuur, is praktisch en esthetisch ingericht.

Aan de voorzijde van het appartement bevindt zich de slaapkamer van 11,2 m², voorzien van een grote raampartij en opbergruimte. Vanuit deze slaapkamer is ook de badkamer bereikbaar.

De badkamer is modern afgewerkt met antracietgrijze tegels en beschikt over een ruim wastafelmeubel en een inloopdouche. Hier bevinden zich tevens de aansluitingen voor de wasmachine en droger.

Het balkon gelegen op het zuidoosten, heeft een oppervlakte van 6,3 m² en biedt ruimte voor een gezellige zithoek. Een perfecte plek om van het buitenleven te genieten!

Bijzonderheden:
Verwarming: Cv-ketel
Warmwater: Cv-ketel
Isolatie: dakisolatie, muurisolatie, vloerisolatie, dubbel glas.
Bouwjaar: 1997
Balkonligging: west
Aanvaarding: In overleg.

Extra's:
- Ruim appartement;
- 1 slaapkamers;
- Energielabel A;
- Parkeren op het parkeerterrein aan de achterzijde en openbare parkeerplaatsen;
- Appartement beschikt over eigen inpandige berging;
- Maandelijkse bijdrage V.v.E. bedraagt: € 144,- per maand.

Koopovereenkomst:
Bij de verkoop zal er een standaard NVM koopovereenkomst worden gehanteerd.

Koopt u de woning zonder voorbehoud van financiering? Dan zullen wij een termijn hanteren van 6 weken na het opstellen van de koopovereenkomst voor het storten van de bankgarantie/waarborgsom.
+ toon meer
deze woning is Verkocht

Raadhuisplein 13 F Veenendaal

Raadhuisplein 13 F

3901 GA, Veenendaal
Ditters open huis: 5 april 2025 10:00 - 12:00 uur
Landelijke Open Huizen Route NVM: 5 april 2025 11:00 uur - 15:00 uur
Vanaf€ 309.000 k.k.

Schakel een aankoopmakelaar in.

Snel handelen helpt je jouw droomhuis te bemachtigen. Zo vergroot je de kans dat je er op tijd bij bent.
Veenendaal
verkocht

Of maak vrijblijvend een zoekprofiel aan.

Vergelijkbare woningen

Hypotheken

Onafhankelijk hypotheekadvies

  • Ligt jouw droomhuis binnen handbereik?
  • Wil je jouw huidige hypotheek verhogen?
  • Is er hypotheekruimte voor verduurzaming?

Blijf op de hoogte

Ontvang als eerste updates over nieuw aanbod en mis geen enkele kans om jouw droomwoning te vinden.

Gratis waardebepaling of verkoopgesprek

Met de vrijblijvende waardecheck weet je snel waar je aan toe bent. Onze makelaars kijken naar de lokale markt en vergelijkbare woningen in jouw buurt om een goede schatting te geven.

Realiseer al jouw woondromen met Ditters

Wij zijn een team van gedreven vastgoedexperts met een passie voor het maken van verbindingen – tussen kopers en verkopers, huurders en verhuurders. Met een frisse kijk op de makelaardij combineren we expertise met creativiteit. Onze makelaars luisteren écht en nemen de tijd om jouw wensen te begrijpen.


Bij Ditters sta je er niet alleen voor. We denken met je mee, begeleiden je in elke stap en zijn altijd bereikbaar voor vragen. Neem gerust contact met ons op – we helpen je graag verder!