Omschrijving

Speciaal voor starters: instapklare, uitgebouwde tussenwoning (1991) met 124 m² woonoppervlakte met 4 slaapkamers en een zonnige tuin op het zuidwesten. Rustige, kindvriendelijke woonwijk met vrij uitzicht aan zowel de voor- als achterzijde, op loop-/fietsafstand van centrum, NS-station en scholen. De Utrechtse Heuvelrug ligt om de hoek voor hardlopen, wandelen of fietsen.

Highlights

+ Ruim en licht wonen: uitgebouwde woonkamer van ca. 38.8 m² met openslaande deuren;
+ 4 volwaardige slaapkamers, ideaal voor thuiswerken en logees;
+ Zolderkamer met dakkapel aan de voorzijde een achterzijde;
+ Zonnige achtertuin (zuidwest) met groot terras, berging met overkapping en achterom;
+ Volledig geïsoleerd, parkeren voor de deur;
+ Speeltuintje direct achter het huis.

Op zoek naar een ruime, onderhoudsvriendelijke start in een topomgeving? Plan een bezichtiging en kom kijken!

Indeling:
Begane grond:
Via de ruime entree met modern toilet voorzien van een wandcloset en fonteintje en de trapopgang naar de eerste verdieping kom je in de royale, uitgebouwde living. Voorzien van een geoliede houten vloer, strakke wanden, elektrische screen en praktische trapkast. Er is volop plek voor een royale hoekbank. Centraal ligt het eetgedeelte, met aansluitend de open inbouwkeuken met hoogglans witte fronten met een inductiekookplaat, design afzuigkap, combi-oven, vaatwasser, koel-/vriescombi, veel bergruimte en licht composiet werkblad.

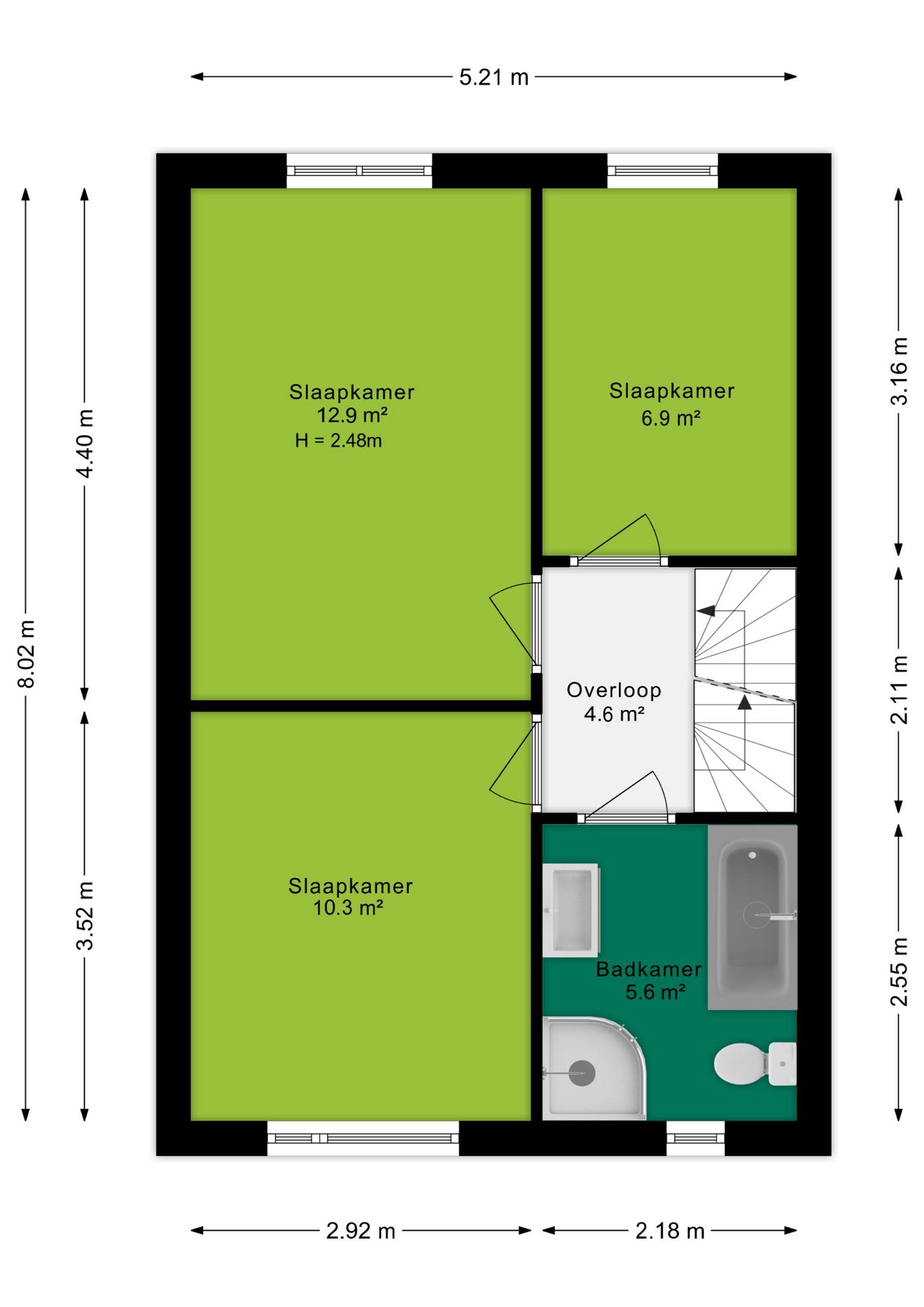
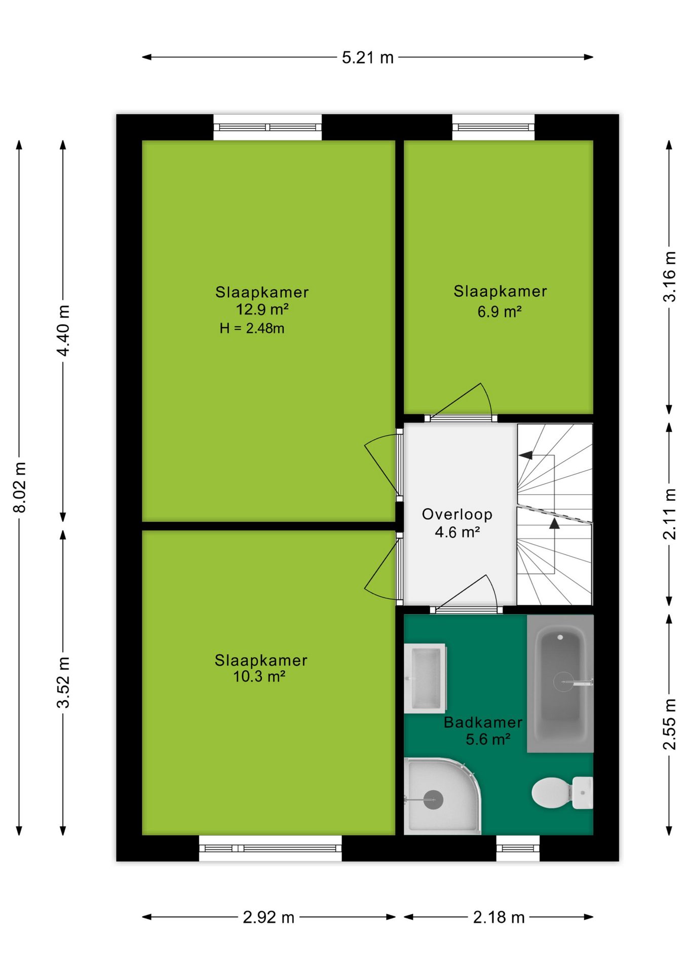
Eerste verdieping:
Via de vaste trap kom je bij de overloop welke toegang tot alle vertrekken. Er bevinden zich drie fijne slaapkamers van 12.9 m², 10.3 m² en 6.9 m². De slaapkamers aan de achterzijde zijn voorzien van screens en de slaapkamer aan de voorzijde met een rolluik.
De compleet ingerichte badkamer van 5.6 m² is voorzien van een ligbad, douchecabine (thermostaatkraan), tweede toilet, wastafelmeubel en designradiator.

Tweede verdieping:
Door middel van de vaste trap bereik je de voorzolder met wasmachineaansluiting, vaste kast met cv-combiketel (2005), bergruimte achter knieschotten en Velux dakraam met zonwering.
Tevens is hier een vierde slaapkamer van 16.2 m² aanwezig met dakkapel aan de voorzijde én aan de achterzijde voor extra ruimte en licht; ideaal. Deze kamer is ook uitstekend te gebruiken als sport- of werkkamer.

Buiten:
De fraaie en sfeervol aangelegde achtertuin op het zuidwesten beschikt over een royaal terras en sfeerverlichting onder het overstek van de uitbouw. Ook beschikt de tuin over een vrijstaande stenen berging met elektra, achterom met overkapping en royale vaste kast. Een kindvriendelijke speeltuin bevindt zich direct achter de woning.

Overig:
-Woonoppervlakte ca. 124 m², inhoud ca. 417 m³, perceel 137 m².
-Volledig geïsoleerd.
-Veel parkeergelegenheid in de straat; je auto staat vrijwel altijd voor de deur.
-Aanvaarding in overleg.

Koopovereenkomst:
Bij de verkoop zal er een standaard NVM koopovereenkomst worden gehanteerd.
Bij woningen welke ouder zijn dan 20 jaar, worden de volgende clausules opgenomen in de koopovereenkomst:
- Asbestclausule
- Ouderdomsclausule

Koop je de woning zonder voorbehoud van financiering? Dan zullen wij een termijn hanteren van 6 weken na het opstellen van de koopovereenkomst voor het storten van de bankgarantie/waarborgsom.
+ toon meer
deze woning is Verkocht

Spoorlaan 6 Veenendaal

Spoorlaan 6

3903 XA, Veenendaal
Ditters open huis: 5 april 2025 10:00 - 12:00 uur
Landelijke Open Huizen Route NVM: 5 april 2025 11:00 uur - 15:00 uur
Vanaf€ 450.000 k.k.

Schakel een aankoopmakelaar in.

Snel handelen helpt je jouw droomhuis te bemachtigen. Zo vergroot je de kans dat je er op tijd bij bent.
Veenendaal
verkocht

Of maak vrijblijvend een zoekprofiel aan.

Vergelijkbare woningen

Hypotheken

Onafhankelijk hypotheekadvies

  • Ligt jouw droomhuis binnen handbereik?
  • Wil je jouw huidige hypotheek verhogen?
  • Is er hypotheekruimte voor verduurzaming?

Blijf op de hoogte

Ontvang als eerste updates over nieuw aanbod en mis geen enkele kans om jouw droomwoning te vinden.

Gratis waardebepaling of verkoopgesprek

Met de vrijblijvende waardecheck weet je snel waar je aan toe bent. Onze makelaars kijken naar de lokale markt en vergelijkbare woningen in jouw buurt om een goede schatting te geven.

Realiseer al jouw woondromen met Ditters

Wij zijn een team van gedreven vastgoedexperts met een passie voor het maken van verbindingen – tussen kopers en verkopers, huurders en verhuurders. Met een frisse kijk op de makelaardij combineren we expertise met creativiteit. Onze makelaars luisteren écht en nemen de tijd om jouw wensen te begrijpen.


Bij Ditters sta je er niet alleen voor. We denken met je mee, begeleiden je in elke stap en zijn altijd bereikbaar voor vragen. Neem gerust contact met ons op – we helpen je graag verder!