Omschrijving

Heb je er altijd van gedroomd om in een instapklare nieuwbouwwoning te wonen? Dan is dit jouw kans!

Deze leuke (starters) tussenwoning in Veenendaal Oost, opgeleverd in 2021, biedt modern wooncomfort op een perceel van 103 m². De woning is smaakvol afgewerkt en van veel gemakken voorzien. Je vindt er twee slaapkamers, een nette achtertuin en een vrijstaande houten berging.
Veenendaal-Oost is een jonge en kindvriendelijke wijk die perfect gelegen is aan de 'Groene Grens', een uitnodigend natuurlijk recreatiegebied tussen de Dragonderweg en de Zuiderkade. Deze groene zone biedt volop mogelijkheden voor picknicken, barbecueën, joggen en fietsen, en vormt een natuurlijke buffer tussen Veenendaal en Ede, terwijl het de landschappelijke waarden van het Binnenveld behoudt.

In de directe omgeving van de wijk zijn alle benodigde voorzieningen te vinden, zoals twee supermarkten, drogist, horeca en scholen. Daarnaast zijn er diverse speeltuinen en sportfaciliteiten, waaronder voetbal- en hockeyvelden en nabijgelegen tennis- en padelbanen. Op slechts enkele kilometers afstand ligt een compleet sportpark, waardoor kinderen veilig met de fiets naar hun sportactiviteiten kunnen gaan.

De ligging van Veenendaal-Oost is strategisch ten opzichte van de A12 en A30, wat snelle toegang biedt tot steden als Utrecht, Arnhem en Amersfoort.

Enkele pluspunten van de woning:
+ Energielabel A+;
+ Moderne keuken;
+ Vloerverwarming en vloerkoeling op de begane grond en eerste verdieping;
+ Nette badkamer;
+ Twee slaapkamers;
+ Praktische wandkast in het trappengat;
+ Prima tuin met houten berging.

Indeling:
Begane grond:
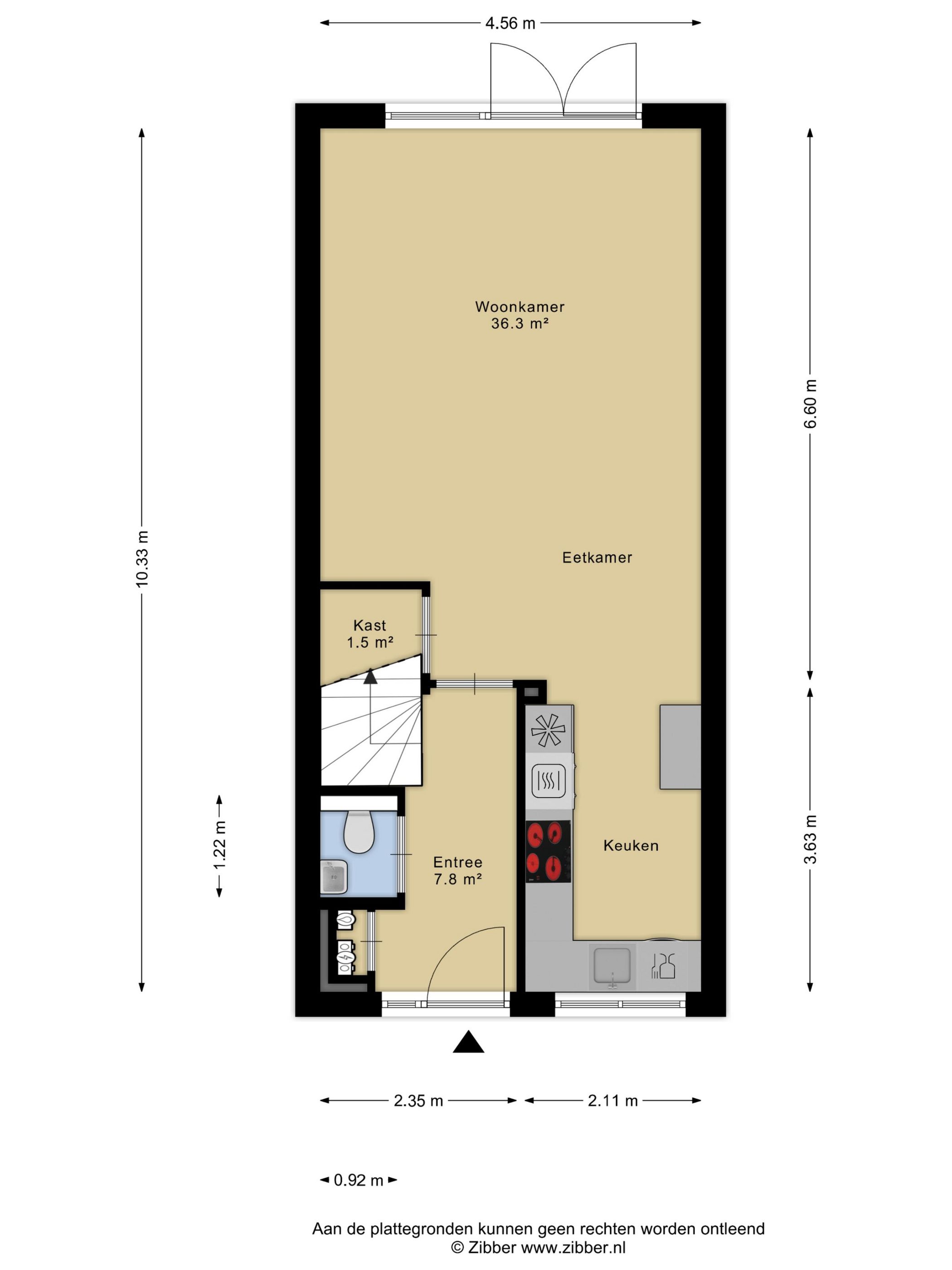
Wanneer je de woning binnenkomt, stap je in de entree, waar je ook de meterkast vindt. Direct naast de entree is er een keurig afgewerkt toilet met een fonteintje. Vanuit de entree leidt een trapopgang je naar de eerste verdieping.
De royale (uitgebouwde) woonkamer is echt een blikvanger dankzij de grote raampartijen, die zorgen voor een overvloed aan natuurlijk licht. Vanuit de woonkamer heb je via twee tuin deuren directe toegang tot de tuin, waardoor het binnen-buitenleven naadloos met elkaar verbonden wordt. Centraal tussen de woonkamer en keuken bevindt zich het eetgedeelte. Hier is voldoende ruimte voor een eettafel met stoelen. Een fijne plek om met familie en/of vrienden te genieten van een hapje, drankje en spelletje! Aangrenzend aan de woonkamer vind je de moderne keuken, uitgevoerd in een lichte kleurstelling.

Deze keuken is van alle gemakken voorzien en beschikt over diverse hoogwaardige inbouwapparatuur:
- Inductiekookplaat
- Afzuigkap (recirculatie)
- Combi-oven
- Koken water kraan
- Koel- vriescombinatie
- Vaatwasser

Eerste verdieping:
Door middel van de vaste trap kom je op de overloop en vindt je toegang tot verschillende ruimtes. De ruime ouderslaapkamer biedt een prachtig uitzicht op de achtertuin, wat zorgt voor een rustige en ontspannen sfeer, deze verdieping beschikt over nog een fijne slaapkamer. Tevens beschikt de woning over een handige berging met een aansluiting voor de wasmachine. De volledig betegelde badkamer is uitgerust met een toilet, een wastafel in praktisch meubel en een separate hoge kast en een comfortabele douchecabine.

Tuin:
Via de twee openslaande deur in de woonkamer stap je de tuin in. De tuin is praktisch aangelegd en beschikt over een grasperk, houten vlonderterras en plantenborders. Achterin de tuin bevindt zich een houten berging, ideaal voor het opbergen van fietsen of tuingereedschap. De tuin is tevens toegankelijk via een handige achterom.

Afmetingen
Perceeloppervlakte: 103 m²
Inhoud woning: 293 m³
Woonoppervlakte: 83 m²

Bijzonderheden
Verwarming: Stadsverwarming;
Warm water: Stadsverwarming;
Isolatie: Volledig geïsoleerd;
Bouwjaar: 2021;
Tuinligging: Noorden;
Aanvaarding: In overleg.

Koopovereenkomst:
Bij de verkoop zal er een standaard NVM koopovereenkomst worden gehanteerd.

Koop je de woning zonder voorbehoud van financiering? Dan zullen wij een termijn hanteren van 14 dagen na het opstellen van de koopovereenkomst voor het storten van de bankgarantie/waarborgsom.

Deze informatie is door ons met de nodige zorgvuldigheid samengesteld. Onzerzijds wordt echter geen enkele aansprakelijkheid aanvaard voor enige onvolledigheid, onjuistheid of anderszins, dan wel de gevolgen daarvan. Alle opgegeven maten en oppervlakten zijn indicatief.
+ toon meer
deze woning is Verkocht

Vogeltjesmarkt 71 Veenendaal

Vogeltjesmarkt 71

3907 KH, Veenendaal
Ditters open huis: 5 april 2025 10:00 - 12:00 uur
Landelijke Open Huizen Route NVM: 5 april 2025 11:00 uur - 15:00 uur
Vanaf€ 425.000 k.k.

Schakel een aankoopmakelaar in.

Snel handelen helpt je jouw droomhuis te bemachtigen. Zo vergroot je de kans dat je er op tijd bij bent.
Veenendaal
verkocht

Of maak vrijblijvend een zoekprofiel aan.

Vergelijkbare woningen

Hypotheken

Onafhankelijk hypotheekadvies

  • Ligt jouw droomhuis binnen handbereik?
  • Wil je jouw huidige hypotheek verhogen?
  • Is er hypotheekruimte voor verduurzaming?

Blijf op de hoogte

Ontvang als eerste updates over nieuw aanbod en mis geen enkele kans om jouw droomwoning te vinden.

Gratis waardebepaling of verkoopgesprek

Met de vrijblijvende waardecheck weet je snel waar je aan toe bent. Onze makelaars kijken naar de lokale markt en vergelijkbare woningen in jouw buurt om een goede schatting te geven.

Realiseer al jouw woondromen met Ditters

Wij zijn een team van gedreven vastgoedexperts met een passie voor het maken van verbindingen – tussen kopers en verkopers, huurders en verhuurders. Met een frisse kijk op de makelaardij combineren we expertise met creativiteit. Onze makelaars luisteren écht en nemen de tijd om jouw wensen te begrijpen.


Bij Ditters sta je er niet alleen voor. We denken met je mee, begeleiden je in elke stap en zijn altijd bereikbaar voor vragen. Neem gerust contact met ons op – we helpen je graag verder!