Omschrijving

Stijlvol herenhuis uit 1923 met dubbele entree, zonnige binnenplaats en dakterras — wonen aan de rand van de binnenstad van Amersfoort

Sfeervol, karakteristiek en verrassend veelzijdig — dat is wat Bekensteinselaan 23 je te bieden heeft. Dit prachtige geschakelde haf vrijstaande herenhuis uit 1923 combineert authentieke jaren ’20 details met hedendaags wooncomfort, een moderne afwerking en een indeling die zowel praktisch als flexibel is. Ideaal voor wie ruim wil wonen, werken aan huis wil combineren óf zoekt naar extra mogelijkheden zoals dubbele bewoning.

De woning is grotendeels gemoderniseerd, beschikt over een energielabel C en is voorzien van dakisolatie. Met een woonoppervlakte van ca. 125 m², een zonnige binnenplaats op het zuidwesten, twee entrees waardoor de bovenverdieping via een aparte entree bereikbaar is, en een heerlijk dakterras, is dit een huis dat zowel binnen als buiten alles te bieden heeft. Bovendien woon je hier op loopafstand van het sfeervolle stadscentrum van Amersfoort, met alle voorzieningen binnen handbereik en de natuur om de hoek.

Ligging
Bekensteinselaan 23 ligt in een rustige en geliefde buurt, direct aan de rand van de historische binnenstad van Amersfoort. Hier woon je met alles binnen handbereik: gezellige terrassen, winkels, scholen, sportvoorzieningen en culturele hotspots. Ook het Randenbroekerpark en natuurpark Elisabeth Groen liggen op korte afstand — ideaal voor een wandeling of een moment van rust in de natuur. Daarnaast zijn belangrijke uitvalswegen uitstekend bereikbaar, net als het openbaar vervoer, wat deze locatie praktisch en centraal maakt.

Interesse?
Ben jij op zoek naar een stijlvol, karakteristiek herenhuis met verrassend veel ruimte, flexibiliteit en buitenruimte op een toplocatie? Dan is Bekensteinselaan 23 in Amersfoort absoluut een bezoek waard. Laat je verrassen door de sfeer, de mogelijkheden en de unieke ligging van deze woning.

Maak snel een afspraak voor een bezichtiging — wij laten je dit bijzondere huis graag persoonlijk ervaren.

Wat deze woning écht uniek maakt:

+ Charmant herenhuis met authentieke uitstraling en moderne afwerking
+ Dubbele entree — ideaal voor praktijk aan huis, kantoor óf dubbele bewoning
+ Ruime, lichte binnenplaats op het zuidwesten met veel privacy
+ Zonnig dakterras op de tweede verdieping
+ Zij-ingang en praktische stenen berging voor fietsen of opslag
+ Royale woonkamer met karakteristieke details en veel lichtinval
+ Dak volledig geïsoleerd, energielabel C — comfortabel en toekomstgericht
+ 11 zonnepanelen aanwezig (2020)
+ in 2005 is de woning grotendeels gerenoveerd en geïsoleerd
+ Keuken vernieuwd (Bruynzeel onderwerper Piet Zwart) (2015)
+ buitenschilderwerk gedaan in 2023
+ elektra, gas, water en riool vernieuwd (2005)
+ badkamer vernieuwd (2005)
+ Rustige ligging in geliefde buurt, op steenworp afstand van de binnenstad en de natuur
+ Alle voorzieningen zoals winkels, horeca en OV binnen handbereik

Indeling
Begane grond

Je betreedt de woning via één van de twee entrees — een unieke mogelijkheid die ideaal is voor een praktijk aan huis, een eigen kantoor of voor wie flexibiliteit zoekt. Al bij aankomst valt de fraai aangelegde, natuurlijk beplante voortuin op, die niet alleen privacy biedt maar ook bijdraagt aan de charmante uitstraling van de woning. De woonkamer is ruim, licht en sfeervol, met behoud van authentieke elementen die de karakteristieke uitstraling van de woning onderstrepen.

De moderne keuken is van alle gemakken voorzien en staat in directe verbinding met de binnenplaats. Dankzij de ligging op het zuidwesten geniet je hier vanaf de middag tot in de avond van de zon. De zij-ingang en praktische berging maken het plaatje compleet: ideaal voor fietsen, tuinspullen of extra opslag.

Eerste verdieping
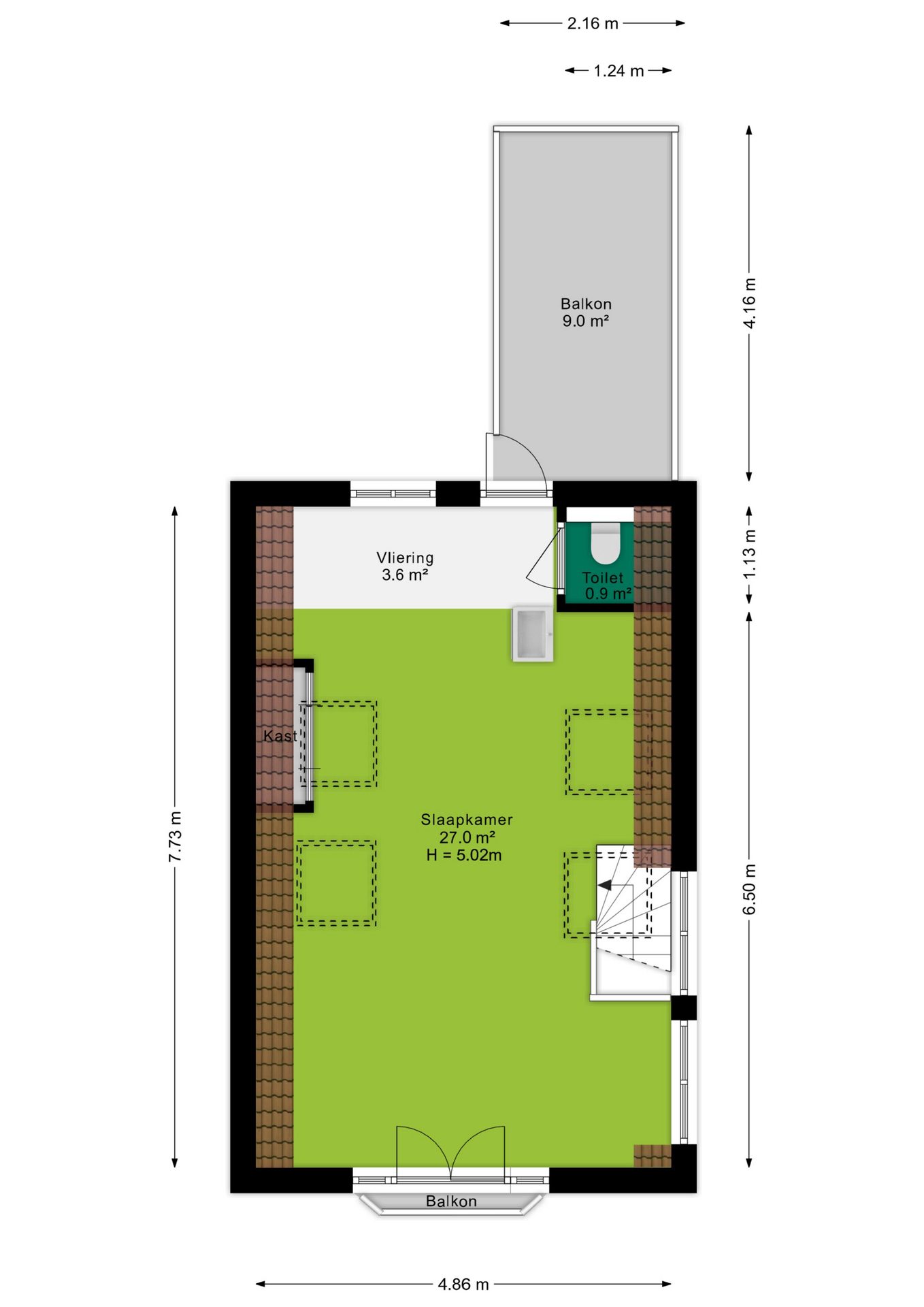
Op de eerste verdieping bevinden zich twee royale slaapkamers waarvan één met een zeer ruime vaste kast en een verzorgde badkamer met toilet. De indeling biedt volop mogelijkheden: creëer bijvoorbeeld een luxe ouderslaapkamer en een aparte werkkamer, hobbyruimte of logeerkamer.

Tweede verdieping
De vaste trap leidt naar de tweede verdieping, waar zich het zonnige dakterras bevindt. Deze verdieping doet momenteel dienst als atelier en is voorzien van een toilet en een wastafel. Het dakterras is een heerlijke plek om buiten te zitten, met vrij uitzicht en optimale privacy — perfect voor een kop koffie, een boek of een ontspannen avond.

Kelder
De kelder is ruim en volledig waterdicht gemaakt in 2025.

Buitenruimte
De zonnige binnenplaats op het zuidwesten is een unieke buitenruimte midden in de stad, waar je geniet van rust en privacy. Daarnaast biedt het dakterras nog een extra plek om buiten te ontspannen, met de vrijheid die je niet vaak vindt in een woning zo dicht bij het centrum.

Afmetingen
Perceeloppervlakte 124 m²
Inhoud woning 504 m³
Woonoppervlakte 127 m²

Bijzonderheden
Verwarming: CV-ketel (2022);
Isolatie: Dak,- muur- en vloerisolatie (gedeeltelijk), dubbel glas;
Energielabel: C;
Bouwjaar: 1922;
Aanvaarding: In overleg.

Koopovereenkomst:
Bij de verkoop zal er een standaard NVM koopovereenkomst worden gehanteerd. Bij woningen welke ouder zijn dan 20 jaar, worden de volgende clausules opgenomen in de koopovereenkomst:
- Asbestclausule;
- Ouderdomsclausule.

Koopt u de woning zonder voorbehoud van financiering? Dan zullen wij een termijn hanteren van 14 dagen na het opstellen van de koopovereenkomst voor het storten van de bankgarantie/waarborgsom.

Deze informatie is door ons met de nodige zorgvuldigheid samengesteld. Onzerzijds wordt echter geen enkele aansprakelijkheid aanvaard voor enige onvolledigheid, onjuistheid of anderszins, dan wel de gevolgen daarvan. Alle opgegeven maten en oppervlakten zijn indicatief.
+ toon meer
deze woning is Verkocht

Bekensteinselaan 23 Amersfoort

Bekensteinselaan 23

3817 AJ, Amersfoort
Ditters open huis: 5 april 2025 10:00 - 12:00 uur
Landelijke Open Huizen Route NVM: 5 april 2025 11:00 uur - 15:00 uur
Vanaf€ 795.000 k.k.

Schakel een aankoopmakelaar in.

Snel handelen helpt je jouw droomhuis te bemachtigen. Zo vergroot je de kans dat je er op tijd bij bent.
Amersfoort
verkocht

Of maak vrijblijvend een zoekprofiel aan.

Vergelijkbare woningen

Hypotheken

Onafhankelijk hypotheekadvies

  • Ligt jouw droomhuis binnen handbereik?
  • Wil je jouw huidige hypotheek verhogen?
  • Is er hypotheekruimte voor verduurzaming?

Blijf op de hoogte

Ontvang als eerste updates over nieuw aanbod en mis geen enkele kans om jouw droomwoning te vinden.

Gratis waardebepaling of verkoopgesprek

Met de vrijblijvende waardecheck weet je snel waar je aan toe bent. Onze makelaars kijken naar de lokale markt en vergelijkbare woningen in jouw buurt om een goede schatting te geven.

Realiseer al jouw woondromen met Ditters

Wij zijn een team van gedreven vastgoedexperts met een passie voor het maken van verbindingen – tussen kopers en verkopers, huurders en verhuurders. Met een frisse kijk op de makelaardij combineren we expertise met creativiteit. Onze makelaars luisteren écht en nemen de tijd om jouw wensen te begrijpen.


Bij Ditters sta je er niet alleen voor. We denken met je mee, begeleiden je in elke stap en zijn altijd bereikbaar voor vragen. Neem gerust contact met ons op – we helpen je graag verder!