Ruime Hoekwoning met tuin aan het water, garage en 16 zonnepanelen.
De Bekroning 7 – Amersfoort
Op zoek naar een ruime (gezins)woning met karakter, veel licht en een prachtige ligging aan het water? Deze hoekwoning aan De Bekroning 7 combineert moderne voorzieningen met een doordachte indeling. Met vier slaapkamers, een luxe woon-eetkeuken, een tuin, een vlonder aan het water en een vrijstaande stenen garage is dit een ideale woning voor mensen die comfort en duurzaamheid zoeken.
De woning ligt in de geliefde wijk Kattenbroek, bekend om zijn bijzondere architectuur en prettige leefomgeving. Alle voorzieningen zijn dichtbij: basisscholen, winkelcentrum Emiclaer, sportfaciliteiten en NS-stations Amersfoort Schothorst en Vathorst. Met de auto bereik je snel de uitvalswegen A1 en A28, waardoor ook Utrecht, Amsterdam en Zwolle uitstekend bereikbaar zijn.
Pluspunten van deze woning
+ Zeer rustig en gunstig gelegen ten opzichte van voorzieningen
+ Uniek door de ruime tuin aan de voorzijde en zijkant van de woning
+ Daarnaast is er een vlonder aan het water, los van de tuin
+ Hoge plafonds en grote raampartijen
+ Vrijstaande stenen garage
+ Energielabel A (deze is opgemaakt voor de plaatsing van de 16 zonnepanelen)
Recentelijk gemoderniseerd
+ Buitenzijde volledig geschilderd (2023)
+ Badkamer en toilet vernieuwd (2022)
+ Keuken vernieuwd (2022)
+ PVC vloer begane grond (2021)
+ Tuin aangelegd incl. verlichting & stroompunten (2022)
+ Nieuwe vlonderplanken (2023)
+ 16 zonnepanelen aanwezig (2023)
+ Vernieuwde meterkast inclusief 3-fase aansluiting (2023)
+ Ruime trapkast op maat gemaakt op 1e verdieping (2024)
+ Gedeeltelijk nieuwe kozijnen geplaatst op de 2e verdieping (2024)
Indeling
Begane grond
De entree biedt toegang tot de hal met toilet en meterkast. De luxe woon-eetkeuken is voorzien van een combimagnetron (2024), (stoom) oven, vaatwasser, koelkast, vriezer, inductiekookplaat met geïntegreerde afzuigkap en Quooker. De ruime woonkamer heeft een hoog plafond van circa 3,40 meter, een fraaie houtkachel en grote raampartijen met HR++ beglazing die zorgen voor veel lichtinval. Via de schuifpui loop je zo het zonneterras op en kijk je uit over het water.
Door het splitlevel krijgt de gehele begane grond een speelse indeling met veel lichtinval.
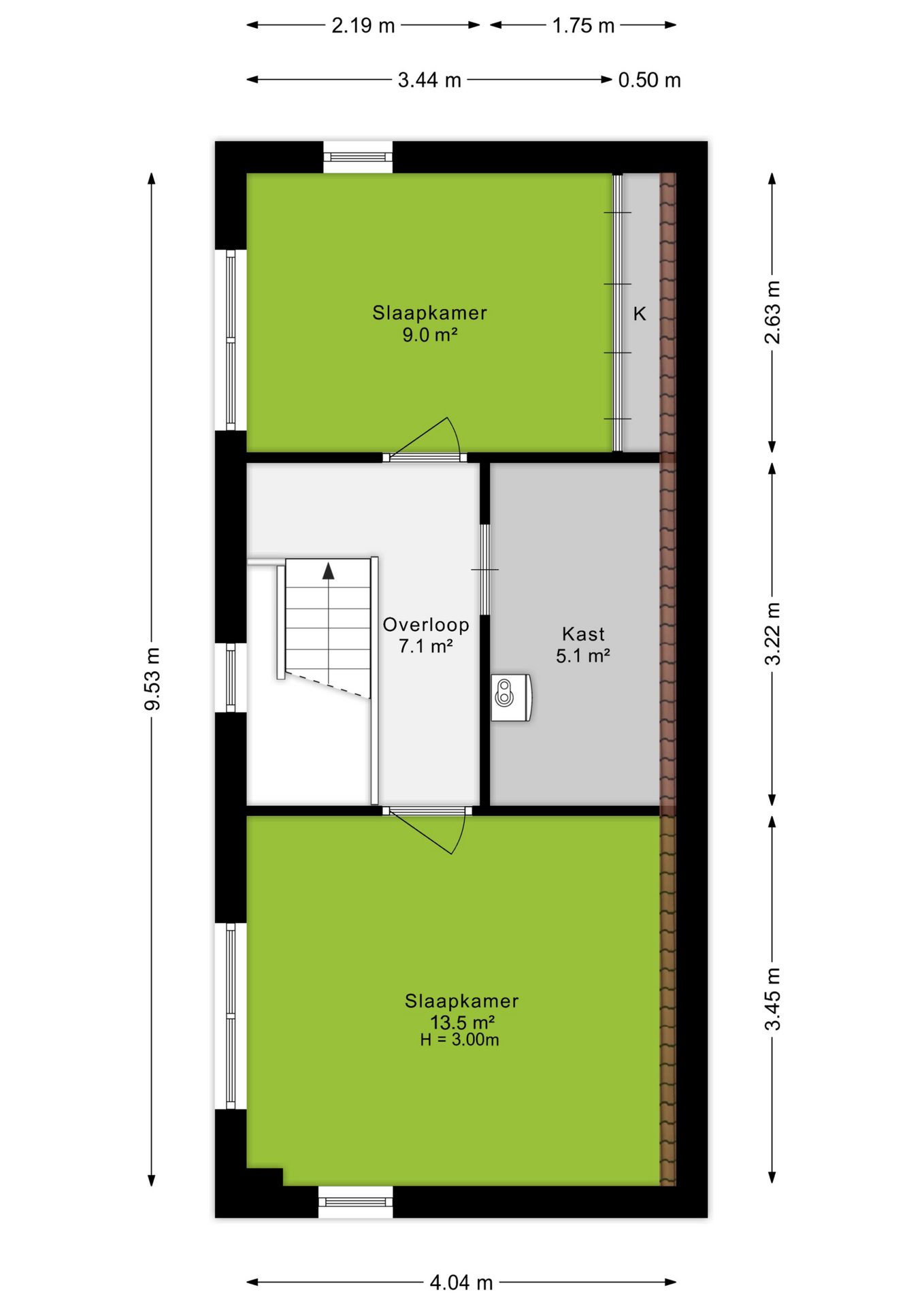
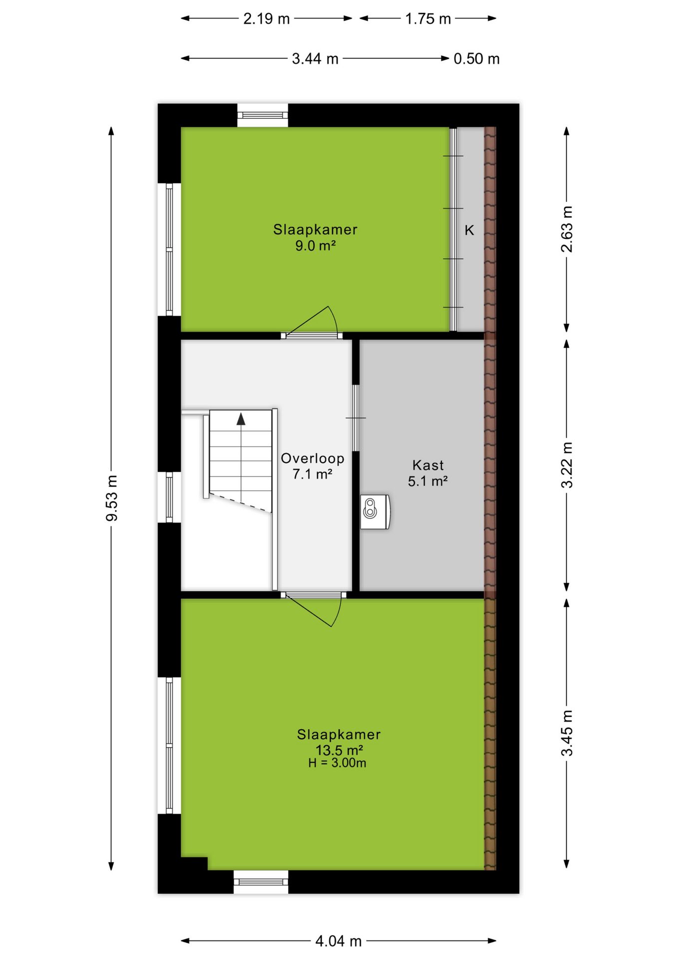
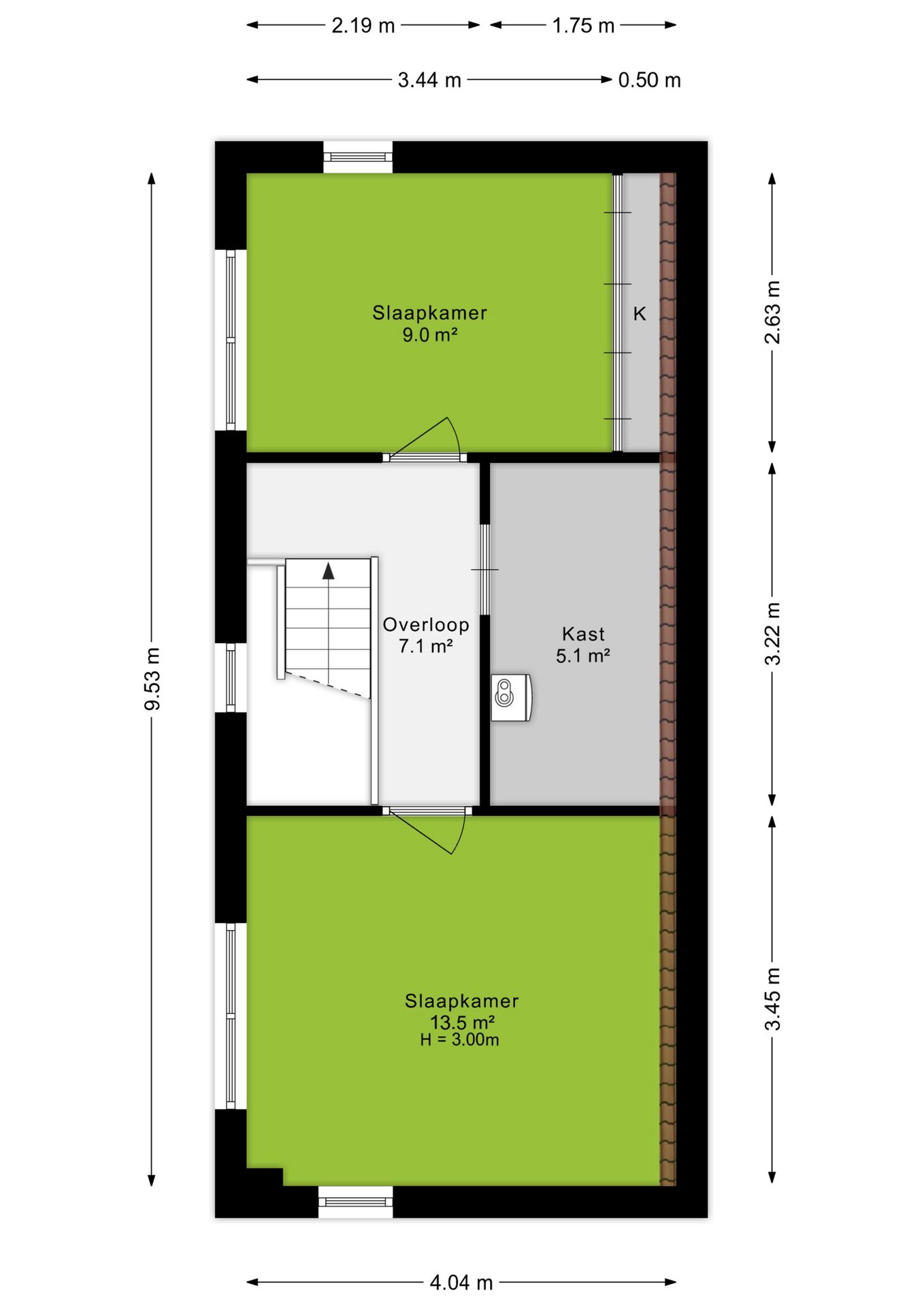
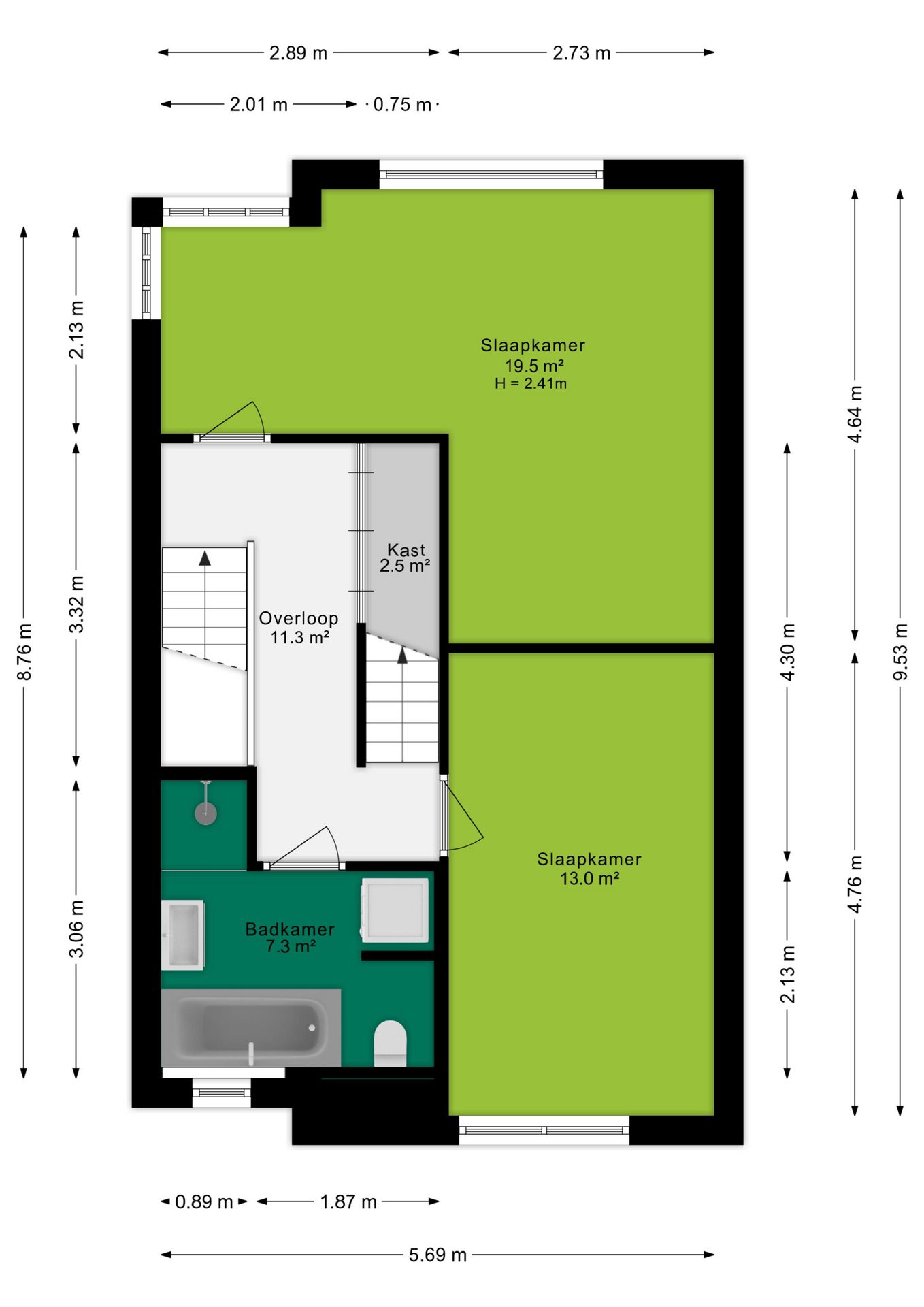
Eerste verdieping
Op de eerste verdieping vind je een lichte overloop met ruime op maat gemaakte inbouwkast onder de trap (2024), de ouderslaapkamer, een tweede slaapkamer en de badkamer. De badkamer is in 2022 vernieuwd en uitgevoerd met modern sanitair.
Tweede verdieping
De tweede verdieping biedt ruimte aan de derde en vierde slaapkamer en een praktische bergruimte. Dankzij het lessenaarsdak ogen de slaapkamers extra ruimtelijk. Op deze verdieping zijn bovendien de houten kozijnen gedeeltelijk vernieuwd (2024).
Buitenruimte
De woning beschikt over een vrij gelegen voor- en zijtuin en aan de achterkant van de woning een vlonder die direct aan het water grenst. De gehele tuin is in 2022 opnieuw professioneel aangelegd en voorzien van een groot terras. Een ideale plek om rustig te genieten. Aan ieder detail is gedacht: zo is de tuin voorzien van diverse stroompunten en sfeervolle verlichting. Daarnaast staat er een vrijstaande stenen garage die veel opbergmogelijkheden biedt.
De Bekroning 7 is een complete (gezins)woning met vier slaapkamers, veel lichtinval en een prachtige ligging aan het water. Dankzij de recente vernieuwingen, de duurzame voorzieningen en de ruime tuin met garage is dit een woning die direct instapklaar is en veel wooncomfort biedt.
Koopovereenkomst:
Bij de verkoop zal er een standaard NVM koopovereenkomst worden gehanteerd.
Bij woningen welke ouder zijn dan 20 jaar, worden de volgende clausules opgenomen in de koopovereenkomst:
- Asbestclausule;
- Ouderdomsclausule.
Koop je de woning zonder voorbehoud van financiering? Dan zullen wij een termijn hanteren van 6 weken na het opstellen van de koopovereenkomst voor het storten van de bankgarantie/waarborgsom.