Omschrijving

Karaktervolle gezinswoning met royale tuin in het geliefde Soesterkwartier. Een plek om verliefd op te worden.

Ben je op zoek naar een ruime, sfeervolle woning met authentieke charme, een diepe zonnige tuin én een uitstekende ligging? Deze prachtige woning in het gewilde Soesterkwartier in Amersfoort biedt het allemaal. Met een woonoppervlakte van maar liefst 168 m², vier ruime slaapkamers, een grote living en een heerlijke achtertuin op het westen is dit een thuis waar je jaren met plezier kunt wonen.

Deze woning bevindt zich in een sfeervolle straat en de woning wordt gekenmerkt als een beeldbepalend pand. De straat is onderdeel van een historisch stukje Amersfoort, met woningen die stuk voor stuk hun eigen verhaal vertellen. Dankzij de variatie in gevels en woningtypes ontstaat er een levendig straatbeeld met een warme, dorpsachtige sfeer. Aan beide uiteinden van de straat liggen uitnodigende hofjes, die zorgen voor een gevoel van rust en geborgenheid.

Veel van de woningen in deze straat zijn gemoderniseerd met behoud van originele elementen, waardoor de karakteristieke uitstraling behouden is gebleven. Ook deze woning is daar een prachtig voorbeeld van: stijlvol opgeknapt en instapklaar, maar met oog voor detail en historie.

De perfecte locatie voor gezinnen, forenzen en levensgenieters
Op slechts een paar minuten fietsen vind je zowel het bruisende historische centrum van Amersfoort als het Centraal Station. Ideaal voor wie dagelijks met het openbaar vervoer reist of graag geniet van het rijke aanbod aan winkels, horeca en cultuur. Ook scholen, supermarkten, sportverenigingen en andere voorzieningen zijn binnen handbereik, wat de wijk bijzonder geliefd maakt bij gezinnen en jonge stellen.

De unieke kenmerken van deze woning op een rij:


+ Keurig onderhouden en volledig instapklaar
+ Royale woonoppervlakte van ca. 168 m²
+ Zeer ruime woonkamer en moderne eetkeuken
+ Diepe, zonnige achtertuin van ca. 20 meter, gelegen op het westen
+ Vier ruime slaapkamers verdeeld over twee verdiepingen
+ Moderne badkamer met ligbad én inloopdouche
+ Veel natuurlijk lichtinval door grote ramen en dakramen
+ Extra bergruimte op zolder
+ Rustige ligging in een kindvriendelijke straat met hofjes
+ Slechts enkele minuten fietsen van Amersfoort Centraal en het centrum

Indeling
Begane grond

Via de charmante voordeur stap je binnen in een stijlvolle hal met een plavuizen vloer die direct de sfeer van de woning bepaalt: klassiek en verzorgd. In de hal vind je de meterkast en een modern toilet. Vanuit hier kom je in de ruime en lichte woonkamer met hoge plafonds, grote raampartijen en een prettig open karakter. Aan de achterzijde van de woning bevindt zich de open keuken met diverse inbouwapparatuur. De keuken is ruim genoeg voor een grote eettafel. De ideale plek voor gezellige diners of lange ontbijtjes met uitzicht op de tuin. Via de openslaande deuren loop je direct het buitenterras op, waar je het hele jaar door kunt genieten van het buitenleven.

Eerste verdieping
Op de eerste verdieping liggen twee ruime en goed ingedeelde slaapkamers, die dankzij de grote ramen heerlijk licht en uitnodigend aanvoelen. De kamers zijn beide voorzien van een prettige indeling, waardoor het inrichten met een bed, kledingkast en zelfs een bureau moeiteloos gaat. Of je de ruimtes nu gebruikt als kinderkamer, werkplek of logeerkamer, ze bieden volop comfort en flexibiliteit.

De badkamer is modern en praktisch: direct bij binnenkomst vind je twee grote wastafels, met daarachter een ligbad en een inloopdouche. Door de slimme indeling blijft de ruimte licht, overzichtelijk en comfortabel in gebruik.

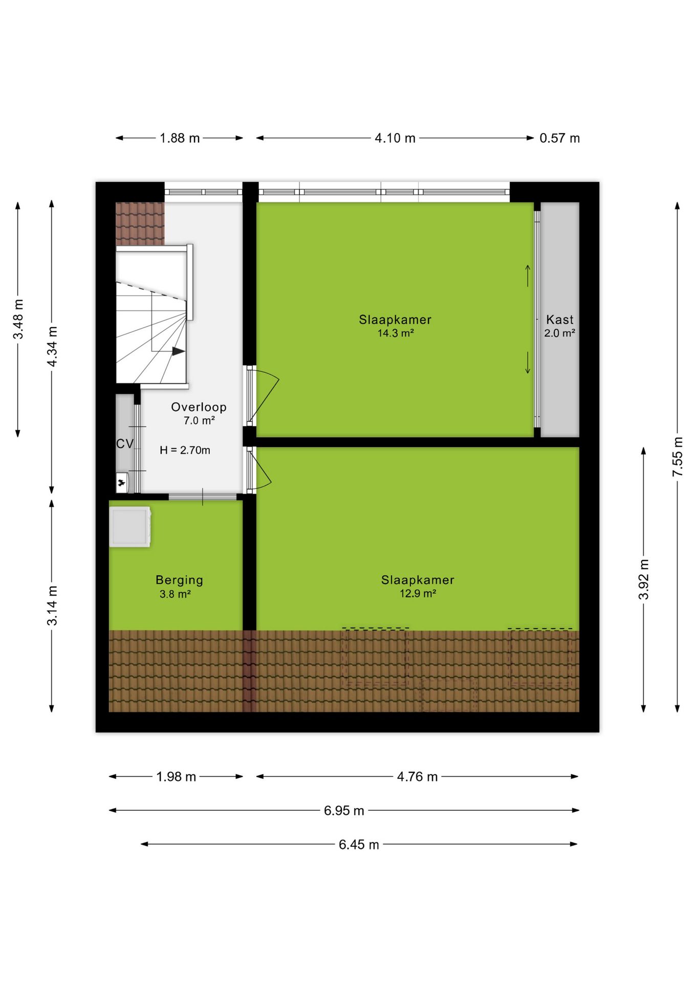
Tweede verdieping
Via een vaste trap bereik je de tweede verdieping. Hier zijn nog twee volwaardige slaapkamers te vinden, perfect als kinderkamer, logeerkamer of thuiswerkplek. Eén van de kamers is voorzien van een dakkapel over de breedte, wat zorgt voor extra ruimte en nog meer licht. De andere kamer heeft grote dakramen, waardoor de hele verdieping een prettige, lichte uitstraling heeft. Tot slot is er op deze verdieping extra bergruimte aanwezig altijd handig voor koffers, seizoensspullen of sportuitrusting.

Tuin
De zonnige, ca. 20 meter diepe achtertuin ligt op het westen, wat betekent dat je hier volop kunt genieten van de middag- en avondzon. De tuin is fraai aangelegd, biedt veel privacy en heeft meerdere terrassen en zitplekken. Er is ruimte voor een grote eettafel, een loungeset en zelfs een speelplek voor kinderen of een moestuin.

Is dit jouw droomhuis?

Deze woning is een unieke kans voor wie zoekt naar ruimte, sfeer en een uitstekende ligging. Hier woon je in een gezellige, kindvriendelijke buurt met een sterk gemeenschapsgevoel, terwijl je alle voorzieningen binnen handbereik hebt. Kom langs en ervaar zelf de ruimte, het licht en de charme van deze woning.

Maak snel een afspraak voor een bezichtiging, deze woning wil je niet missen!

Afmetingen
+ Woonoppervlakte: ca. 168 m²
+ Inhoud woning: ca. 565 m³

Kenmerken
+ Bouwjaar: 1927
+ Verwarming en warm water via cv-ketel (2023)
+ Vrijwel volledig geïsoleerd
+ Energielabel B

Belangrijke punten met betrekking tot de verkoop:
+ Er wordt gewerkt met een projectnotaris in verband met een nog op te nemen erfdienstbaarheden ter legalisering van de huidige situatie. De projectnotaris is Bolscher Brug Deijl uit Amersfoort.

Koopovereenkomst:
Bij de verkoop zal er een standaard NVM koopovereenkomst worden gehanteerd. Bij dit appartement worden onder andere de volgende clausules opgenomen in de koopovereenkomst:
- Ouderdomsclausule;
- Asbest clausule;
- Bouwkundige staat.

Koop je de woning zonder voorbehoud van financiering? Dan zullen wij een termijn hanteren van 14 dagen na het opstellen van de koopovereenkomst voor het storten van de bankgarantie/waarborgsom.

Deze informatie is door ons met de nodige zorgvuldigheid samengesteld. Onzerzijds wordt echter geen enkele aansprakelijkheid aanvaard voor enige onvolledigheid, onjuistheid of anderszins, dan wel de gevolgen daarvan. Alle opgegeven maten en oppervlakten zijn indicatief.
+ toon meer
deze woning is Verkocht

Palmstraat 304 Amersfoort

Palmstraat 304

3812 XN, Amersfoort
Ditters open huis: 5 april 2025 10:00 - 12:00 uur
Landelijke Open Huizen Route NVM: 5 april 2025 11:00 uur - 15:00 uur
Vanaf€ 695.000 k.k.

Schakel een aankoopmakelaar in.

Snel handelen helpt je jouw droomhuis te bemachtigen. Zo vergroot je de kans dat je er op tijd bij bent.
Amersfoort
verkocht

Of maak vrijblijvend een zoekprofiel aan.

Vergelijkbare woningen

Hypotheken

Onafhankelijk hypotheekadvies

  • Ligt jouw droomhuis binnen handbereik?
  • Wil je jouw huidige hypotheek verhogen?
  • Is er hypotheekruimte voor verduurzaming?

Blijf op de hoogte

Ontvang als eerste updates over nieuw aanbod en mis geen enkele kans om jouw droomwoning te vinden.

Gratis waardebepaling of verkoopgesprek

Met de vrijblijvende waardecheck weet je snel waar je aan toe bent. Onze makelaars kijken naar de lokale markt en vergelijkbare woningen in jouw buurt om een goede schatting te geven.

Realiseer al jouw woondromen met Ditters

Wij zijn een team van gedreven vastgoedexperts met een passie voor het maken van verbindingen – tussen kopers en verkopers, huurders en verhuurders. Met een frisse kijk op de makelaardij combineren we expertise met creativiteit. Onze makelaars luisteren écht en nemen de tijd om jouw wensen te begrijpen.


Bij Ditters sta je er niet alleen voor. We denken met je mee, begeleiden je in elke stap en zijn altijd bereikbaar voor vragen. Neem gerust contact met ons op – we helpen je graag verder!