Omschrijving

Op een fijne locatie in Amersfoort-Zuid staat dit goed onderhouden driekamerappartement met balkon. De woning is keurig onderhouden en zo te betrekken. 

Het Leusderkwartier, ten zuidoosten van de binnenstad van Amersfoort, is een vooroorlogse wijk met veel verschillende huizen en bouwstijlen. Kenmerkend zijn de rustige, boomrijke lanen met fraaie woningen: overal zijn originele details en typische stijlkenmerken uit de jaren ’30 te zien. De gezellige winkelstraat ‘Leusderweg’, met talloze grote en kleinere gespecialiseerde winkels én gratis parkeren, vormt het sfeervolle hart van de wijk. Verder vind je er diverse basisscholen, voortgezet onderwijs en sportclubs en –accommodaties. Daarnaast maken Leusderkwartiers vooral ’s zomers volop gebruik van de mooie parken, zoals het Julianapark. De wijk grenst bovendien aan bosrijke gebieden, zoals landgoed Den Treek, op de overgang van de Utrechtse Heuvelrug naar de Gelderse Vallei, en Bos Nimmerdor, met prachtige 17e eeuwse zichtlijnen. Veel inwoners van Amersfoort en omstreken wandelen en fietsen hier graag. Over fietsen gesproken, binnen 7 minuten ben je midden in de historische binnenstad en ook Dierenpark Amersfoort bevindt zich binnen fietsbereik. Het openbaar vervoer is in het Leusderkwartier prima geregeld: overal zijn bushaltes te vinden en ook het NS station is vlakbij. En voor de autorit naar de rest van Nederland zit je binnen 5 minuten op de A28 en de A1. Kortom alle voorzieningen binnen handbereik. 

Pluspunten van het appartement op een rij:

+ Gelegen op de eerste en tweede woonlaag;
+ Verrassende indeling;
+ Zeer ruim en veel lichtinval door de dakramen;
+ Grote, hoge vliering voor extra bergruimte;
+ Ruim appartement met 2 slaapkamers;
+ Heerlijk balkon op het oosten gelegen;
+ Keurig afgewerkt, hier kun je direct in;
+ Goede parkeermogelijkheden in de nabijheid (vrij parkeren);
+ Vernieuwde meterkast (2025);
+ Energielabel B.
+ aan rustige, doodlopende weg gelegen;
+ Zeer centrale ligging ten opzichte van stad en uitvalswegen;
+ Gelegen in het geliefde Leusderkwartier nabij de Leusderweg en de binnenstad van Amersfoort;
+ Nabij het bos Nimmerdor;

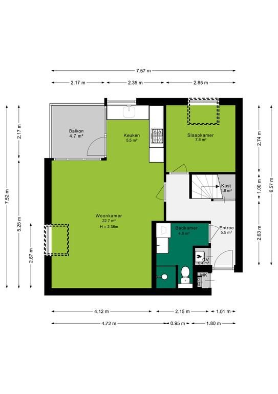
De indeling van het appartement is als volgt:
Vanuit de ruime hal is de meterkast, trapopgang naar de tweede verdieping, badkamer, slaapkamer en de woonkamer bereikbaar.
De warme kleur van de laminaatvloer en het grote dakraam, dat overvloedig natuurlijk licht binnenlaat, geven de woonkamer een gezellige uitstraling. Naast de woonkamer is de keuken, uitgevoerd in een hoekopstelling, die is voorzien van diverse inbouwapparatuur, waaronder begrepen: 
+ Kookplaat;
+ Afzuigkap;
+ Vaatwasser;
+ Koel-/vriescombinatie.

Vanuit de keuken is er toegang tot het gezellige balkon, waar je heerlijk vrij wegkijkt. Hier geniet je van optimale privacy.

De badkamer is vanuit de hal te bereiken. De badkamer is volledig betegeld in lichte kleurstelling en is voorzien van: 
+ Toilet;
+ Douche;
+ Wastafel;
+ Wastafelmeubel;
+ Aansluiting van de wasmachine.

Daarnaast vind je op deze verdieping een kleine slaapkamer, die tevens uitstekend te gebruiken is als werk- of hobbykamer.

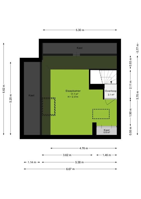
Via een vaste trap bereik je de grote tweede slaapkamer. Deze slaapkamer is keurig afgewerkt en heeft een vaste kast. Het dakraam zorgt voor voldoende daglicht. Tevens is hier een vlizo trap aanwezig naar de vliering die extra opslagruimte biedt.

Op de begane grond is een berging aanwezig. 

Afmetingen
Woonoppervlakte 73 m²
Inhoud woning 255 m³

Bijzonderheden
Verwarming: C.V.-ketel;
Isolatie: Volledig geïsoleerd;
Energielabel: B;
Bouwjaar: 1985;
Bijdrage VVE: € 172,00 per maand;
Aanvaarding: In overleg.

Koopovereenkomst:
Bij de verkoop zal er een standaard NVM koopovereenkomst worden gehanteerd. Bij woningen welke ouder zijn dan 20 jaar, worden de volgende clausules opgenomen in de koopovereenkomst:
- Asbestclausule;
- Ouderdomsclausule.

Koopt u de woning zonder voorbehoud van financiering? Dan zullen wij een termijn hanteren van 14 dagen na het opstellen van de koopovereenkomst voor het storten van de bankgarantie/waarborgsom.

Deze informatie is door ons met de nodige zorgvuldigheid samengesteld. Onzerzijds wordt echter geen enkele aansprakelijkheid aanvaard voor enige onvolledigheid, onjuistheid of anderszins, dan wel de gevolgen daarvan. Alle opgegeven maten en oppervlakten zijn indicatief.
+ toon meer
deze woning is Verkocht

Scheltemalaan 77 Amersfoort

Scheltemalaan 77

3817 KT, Amersfoort
Ditters open huis: 5 april 2025 10:00 - 12:00 uur
Landelijke Open Huizen Route NVM: 5 april 2025 11:00 uur - 15:00 uur
Vanaf€ 350.000 k.k.

Schakel een aankoopmakelaar in.

Snel handelen helpt je jouw droomhuis te bemachtigen. Zo vergroot je de kans dat je er op tijd bij bent.
Amersfoort
verkocht

Of maak vrijblijvend een zoekprofiel aan.

Vergelijkbare woningen

Hypotheken

Onafhankelijk hypotheekadvies

  • Ligt jouw droomhuis binnen handbereik?
  • Wil je jouw huidige hypotheek verhogen?
  • Is er hypotheekruimte voor verduurzaming?

Blijf op de hoogte

Ontvang als eerste updates over nieuw aanbod en mis geen enkele kans om jouw droomwoning te vinden.

Gratis waardebepaling of verkoopgesprek

Met de vrijblijvende waardecheck weet je snel waar je aan toe bent. Onze makelaars kijken naar de lokale markt en vergelijkbare woningen in jouw buurt om een goede schatting te geven.

Realiseer al jouw woondromen met Ditters

Wij zijn een team van gedreven vastgoedexperts met een passie voor het maken van verbindingen – tussen kopers en verkopers, huurders en verhuurders. Met een frisse kijk op de makelaardij combineren we expertise met creativiteit. Onze makelaars luisteren écht en nemen de tijd om jouw wensen te begrijpen.


Bij Ditters sta je er niet alleen voor. We denken met je mee, begeleiden je in elke stap en zijn altijd bereikbaar voor vragen. Neem gerust contact met ons op – we helpen je graag verder!