Omschrijving

Welkom in deze schitterende stadswoning aan de Spoorstraat 19 B!

Een unieke kans om te wonen op een toplocatie in Amersfoort, op slechts een steenworp afstand van het bruisende stadscentrum én het Centraal Station. Hier leef je midden in het hart van de stad, met alle voorzieningen binnen handbereik. De woning telt maar liefst drie verdiepingen, wat zorgt voor een zee aan ruimte. En dankzij de hoogwaardige afwerking kun je direct genieten van optimaal wooncomfort.

Deze woning ligt op een absolute A-locatie. Theater De Flint bevindt zich op loopafstand en biedt een gevarieerd programma aan voorstellingen en culturele evenementen. Ook het levendige Eemplein ligt om de hoek, met een breed scala aan winkels, sfeervolle eetgelegenheden, De Kunsthal én de Pathé bioscoop – ideaal voor een gezellige avond uit.
Het historische centrum van Amersfoort, beroemd om zijn pittoreske grachten, knusse cafés en unieke boetiekjes, is eenvoudig te voet bereikbaar. In de directe omgeving vind je werkelijk alles: supermarkten, scholen, sportfaciliteiten en medische zorg.

Qua bereikbaarheid zit je hier uitstekend. Met de auto ben je binnen enkele minuten op de A1 of A28. Liever met de trein? Dan sta je binnen drie minuten wandelen op Amersfoort Centraal. Dankzij de gunstige treinverbindingen ben je in no-time in andere steden: Utrecht Centraal in 12 minuten, Amsterdam Centraal in 33 minuten, Schiphol in 41 minuten en Ede-Wageningen in 37 minuten.

De woning is onderdeel van een vereniging van eigenaars. Deze bestaat uit 10 leden. Er zijn voor de VvE servicekosten verschuldigd ter hoogte van € 185,- per maand.

Pluspunten van de woning:
+ Unieke locatie nabij het centrum en Amersfoort Centraal;
+ Afgesloten binnenterrein met overdekte parkeerplaats en berging;
+ Één eigen parkeerplaats onder de woning. Alsmede één bezoekersparkeerplaats;
+ 8 zonnepanelen op de woning geplaatst in 2024 (nog uit te breiden naar 10). De zonnepanelen zijn eigendom van de woning zelf;
+ Dakbedekking is recent vervangen (2021)
+ Schilderwerk buitenzijde in 2023 gedaan;
+ Vloerverwarming op elke verdieping. Per verdieping is de temperatuur apart regelbaar;
+ Schuifpui naar het balkon vervangen in 2019 voor een kunststof schuifpui;
+ Keuken en badkamer uit 2018;
+ Energielabel A+.

Indeling
Begane grond
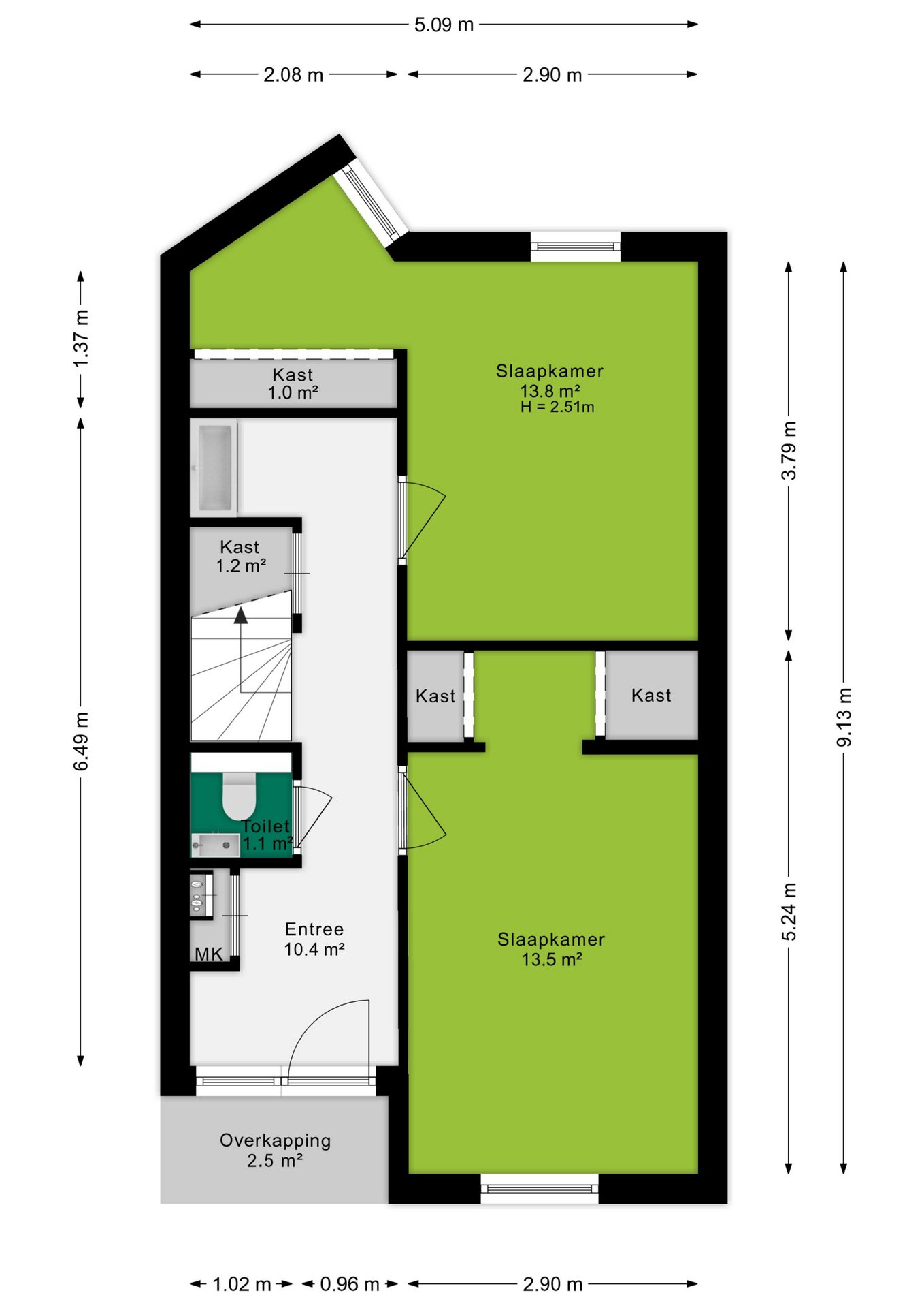
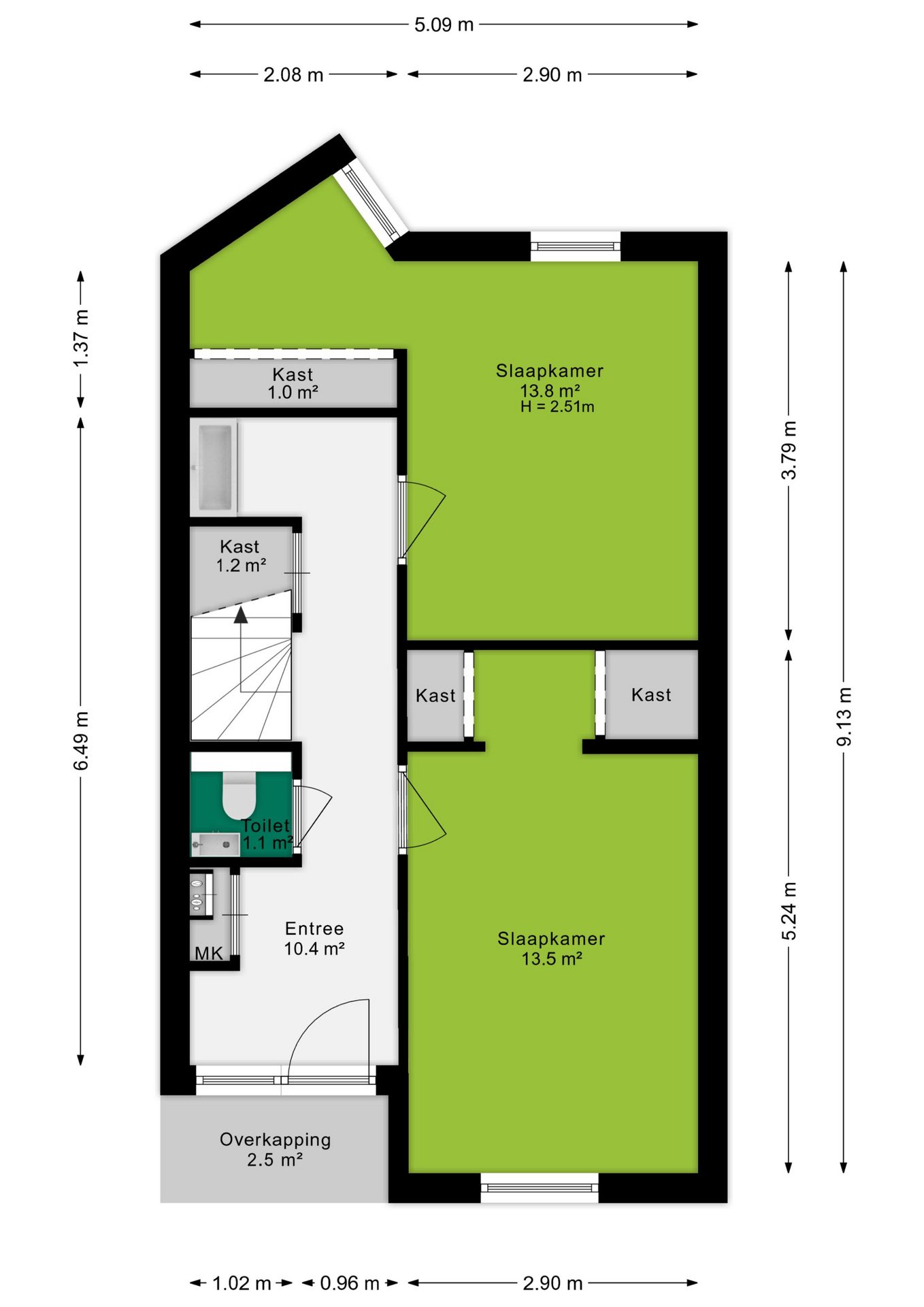
Een stijlvolle stadsentree met brede trap in moderne uitvoering verwelkomt je. Je komt binnen in een ruime hal met toegang tot de meterkast, bergkast en een toiletruimte met zwevend toilet en fonteintje. Achterin is een extra wastafel met meubel geplaatst. Op deze verdieping bevinden zich twee royale slaapkamers met vaste kasten. Dankzij de verhoogde ligging geniet je van privacy en rust, zonder inkijk vanaf de straat.

Eerste verdieping
Hier vind je de gezellige woonkamer aan de voorzijde, met grote ramen op het zuiden die zorgen voor een overvloed aan natuurlijk licht. Aan de achterzijde bevindt zich de moderne keuken, voorzien van alle inbouwapparatuur, te weten:
+ Combi-oven/stoomoven
+ Combi-oven/magnetron
+ Quooker
+ Afzuigkap
+ Vaatwasser
+ Kookplaat
+ Koelkast
+ Vriezer

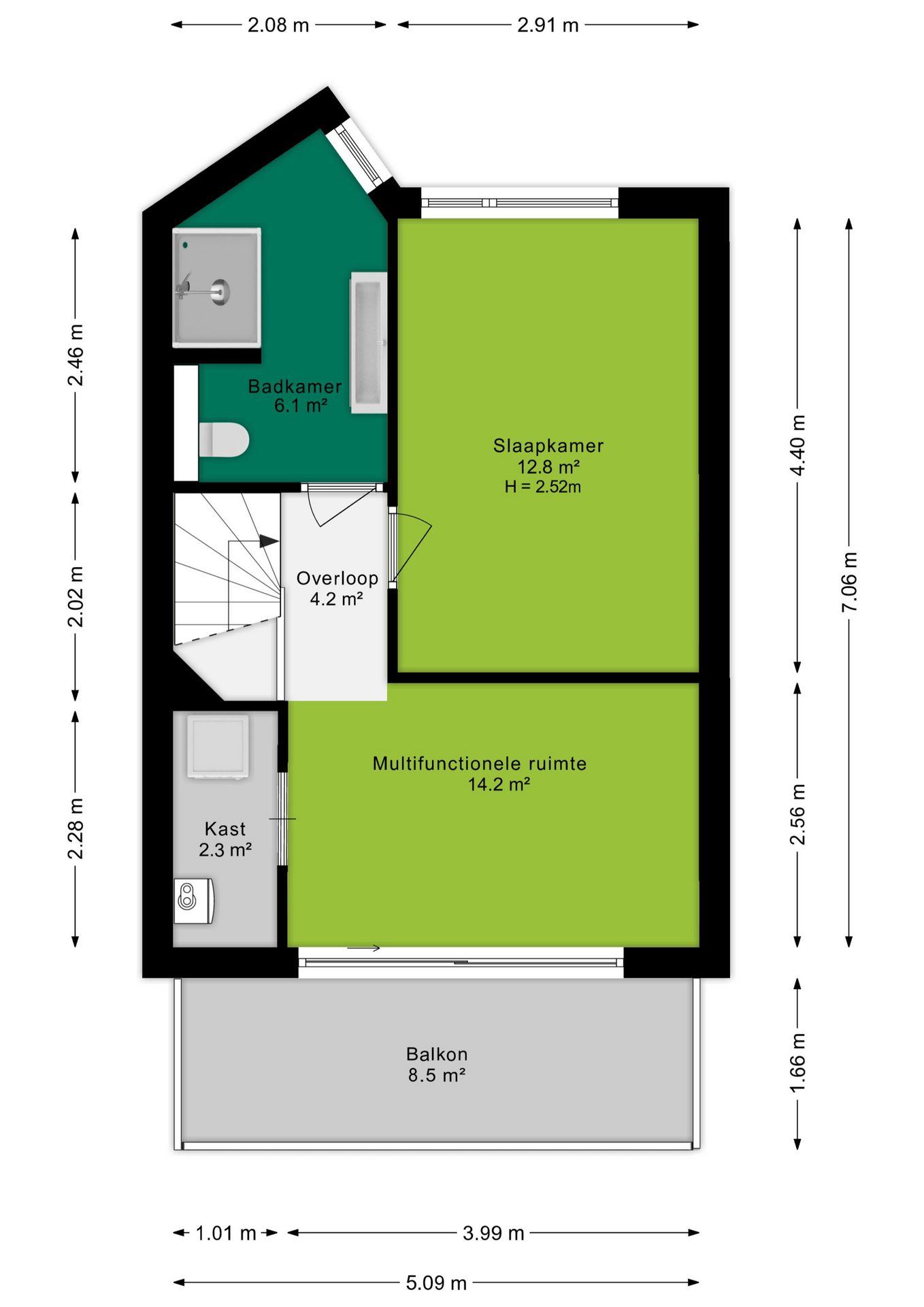
Tweede verdieping
De overloop geeft toegang tot twee slaapkamers, waarvan één met toegang tot het zonnige balkon. De luxe badkamer is eigentijds ingericht en voorzien van:
+ douche
+ tweede toilet
+ dubbele wastafel
+ wastafelmeubel

Daarnaast is er een aparte ruimte met aansluiting voor wasmachine/droger en de CV-ketel. De multifunctionele ruimte op de zolderverdieping is opgenomen in het aantal slaapkamers omdat hier met een deur direct een slaapkamer van kan worden gemaakt.

Buiten
Op het afgesloten binnenterrein vind je de overdekte privéparkeerplaats en een berging met elektra.

Afmetingen
Woonoppervlakte 129 m²
Inhoud woning 446 m³

Bijzonderheden
Verwarming C.V.-ketel
Warm water C.V.-ketel
Isolatie volledig geïsoleerd
Servicekosten per maand € 185,-
Bouwjaar 1998
Energielabel A+
Aanvaarding In overleg

Koopovereenkomst:
Bij de verkoop zal er een standaard NVM koopovereenkomst worden gehanteerd. Bij woningen welke ouder zijn dan 20 jaar, worden de volgende clausules opgenomen in de koopovereenkomst:
- Ouderdomsclausule.

Koopt u de woning zonder voorbehoud van financiering? Dan zullen wij een termijn hanteren van 14 dagen na het opstellen van de koopovereenkomst voor het storten van de bankgarantie/waarborgsom.

Deze informatie is door ons met de nodige zorgvuldigheid samengesteld. Onzerzijds wordt echter geen enkele aansprakelijkheid aanvaard voor enige onvolledigheid, onjuistheid of anderszins, dan wel de gevolgen daarvan. Alle opgegeven maten en oppervlakten zijn indicatief.
+ toon meer
deze woning is Verkocht

Spoorstraat 19 B Amersfoort

Spoorstraat 19 B

3811 MN, Amersfoort
Ditters open huis: 5 april 2025 10:00 - 12:00 uur
Landelijke Open Huizen Route NVM: 5 april 2025 11:00 uur - 15:00 uur
Vanaf€ 625.000 k.k.

Schakel een aankoopmakelaar in.

Snel handelen helpt je jouw droomhuis te bemachtigen. Zo vergroot je de kans dat je er op tijd bij bent.
Amersfoort
verkocht

Of maak vrijblijvend een zoekprofiel aan.

Vergelijkbare woningen

Hypotheken

Onafhankelijk hypotheekadvies

  • Ligt jouw droomhuis binnen handbereik?
  • Wil je jouw huidige hypotheek verhogen?
  • Is er hypotheekruimte voor verduurzaming?

Blijf op de hoogte

Ontvang als eerste updates over nieuw aanbod en mis geen enkele kans om jouw droomwoning te vinden.

Gratis waardebepaling of verkoopgesprek

Met de vrijblijvende waardecheck weet je snel waar je aan toe bent. Onze makelaars kijken naar de lokale markt en vergelijkbare woningen in jouw buurt om een goede schatting te geven.

Realiseer al jouw woondromen met Ditters

Wij zijn een team van gedreven vastgoedexperts met een passie voor het maken van verbindingen – tussen kopers en verkopers, huurders en verhuurders. Met een frisse kijk op de makelaardij combineren we expertise met creativiteit. Onze makelaars luisteren écht en nemen de tijd om jouw wensen te begrijpen.


Bij Ditters sta je er niet alleen voor. We denken met je mee, begeleiden je in elke stap en zijn altijd bereikbaar voor vragen. Neem gerust contact met ons op – we helpen je graag verder!