Omschrijving

Een heerlijk ruim en licht uitgebouwd gezinshuis met privé dakterras, een ruime woonkamer, twee grote slaapkamers, twee badkamers en een eigen parkeerplaats in het Oostelijk Havengebied.

Een unieke plek waar modern wonen en architectuur samenkomen. De locatie is uniek: zeer rustig en daardoor kindvriendelijk, maar met alle voorzieningen èn hartje Amsterdam om de hoek!

Parkeren is geen probleem; je parkeert de auto zo op eigen terrein onder de woning. Hier wil je wonen!

Omgeving
Het Oostelijk Havengebied staat bekend om de moderne architectuur, de ruimtelijkheid en natuurlijk het contact met het water. Kortom: een uniek stukje Amsterdam. Met de fiets ben je in 15 minuten in het centrum en in 10 minuten op CS. Er zijn goede OV verbindingen met Oost en West, en tram 7 of 26 brengt je in korte tijd naar het centrum of CS. Met het Oostveer heb je een zeer goede verbinding met Amsterdam-Noord (o.a. restaurants De Goudfazant en Hangar). Met de auto ben je via de Piet Heintunnel in enkele minuten op de A10.

Op loopafstand bevinden zich winkelcentrum Brazilië (o.a. Albert Heijn, Jumbo, Marqt, Odin, Grape District, apotheek, etc.), verschillende scholen, een traiteur, woonwinkels als Pol’s Potten en Sissy Boy Homeland, sportscholen, het Lloyd Hotel, Club Panama, HappyHappyJoyJoy, Anne & Max, Pata Negra, De Zuid, Bombarie en Roest. Ook de Javastraat en Czaar Peterstraat zijn op loopafstand, met veel hippe winkels en restaurants. Voor waterliefhebbers is er een buurthaventje, een jachthaven en een zeilschool, en daarnaast diverse steigers om je boot aan te leggen voordat je naar de grachten van Amsterdam vaart of voor een frisse duik.

Het voormalige haveneiland Sporenburg kenmerkt zich door voornamelijk laagbouw en autoluwe straten. Diagonaal over het eiland ligt het stadsparkje genaamd 'Keesje Brijdeplantsoen', een heerlijk groengebied.

Kortom: twee ruime slaapkamers, twee badkamers, parkeergemak, een heerlijk dakterras en een licht en bijzonder huis in het tot de verbeelding sprekende Oostelijk Havengebied, met smaak en oog voor detail afgewerkt.

Pluspunten van de woning
+ Uniek geheel woonhuis, verdeeld over drie woonlagen
+ Volledig vernieuwd eind 2019, van vloer- en wandafwerking tot sanitair en keuken
+ Alle verdiepingen zijn voorzien van een gietvloer met vloerverwarming (per verdieping separaat te regelen)
+ Alle wanden zijn voorzien van strak stucwerk
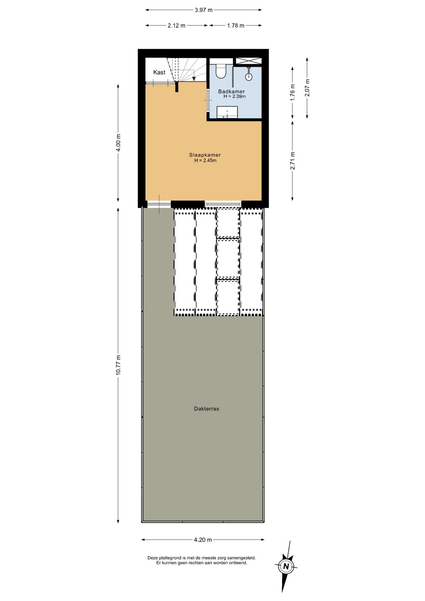
+ Schitterend dakterras met de hele dag zon
+ Binnenpatio betrokken bij het woonoppervlak
+ Parkeren op eigen terrein in carport
+ Plafondhoogte begane grond: 3,15 meter
+ Twee ruime slaapkamers (voorheen drie, er bestaat de mogelijkheid om deze derde slaapkamer weer terug te brengen)
+ Bouwjaar 1999/2000, geheel voorzien van dubbel glas en uiteraard goed geïsoleerd
+ Gemeentelijke erfpacht afgekocht tot en met 31 maart 2047
+ Actieve VvE

Indeling

Begane grond
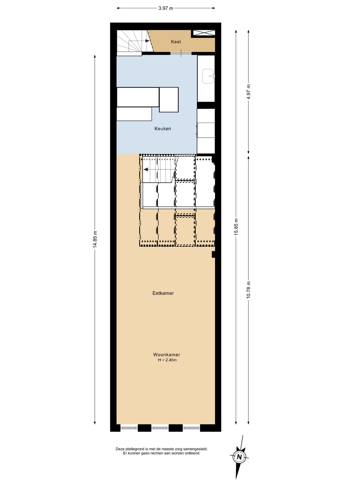
Middels een afsluitbaar hek betreed je de carport: je eigen parkeerplaats met veel bergruimte. Entree van de woning, ruime hal, toilet, inloopkast en toegang tot de hoofdslaapkamer met ensuite badkamer. De ensuite badkamer is voorzien van een inloopdouche en wastafel. In een aparte ruimte in de slaapkamer zijn de wasmachine en drogeraansluitingen aanwezig. De begane grond heeft een plafondhoogte van maar liefst 3,15 meter.

Eerste verdieping
Via een vaste trap met prachtige houten treden tref je op de eerste verdieping de ruime woonkamer met open keuken. De luxe open keuken beschikt over veel inbouwapparatuur, t.w.: inductiekookplaat, Quooker, vaatwasser, oven/magnetron, oven/stoomoven, koelkast en vriezer.

De ruime en lichte woonkamer (door de geplaatste lichtstraat in 2019) is voorzien van drie grote ramen. Dit resulteert in een heerlijk lichte en ruime kamer.

Onder de trap naar de tweede verdieping is opbergruimte aanwezig.

Tweede verdieping
Een ruimte die goed te gebruiken is als werkruimte, logeerkamer of tweede slaapkamer. Extra luxe is de tweede badkamer, uitgerust met een inloopdouche, toilet en wastafel. De slaapkamer grenst direct aan het grote dakterras.

Bijzonderheden
Verwarming Stadsverwarming
Warm water Stadsverwarming
Isolatie Volledig geïsoleerd
Servicekosten: de woning maakt onderdeel uit van een financieel gezonde VVE met professionele administrateur, servicekosten bedragen ca. € 140,- per maand.
Bouwjaar 1999
Energielabel A
Aanvaarding in overleg

Koopovereenkomst
Bij de verkoop zal een standaard NVM-koopovereenkomst worden gehanteerd. Bij woningen welke ouder zijn dan 20 jaar, worden de volgende clausules opgenomen in de koopovereenkomst:
- Ouderdomsclausule.

Bij aankoop zonder financieringsvoorbehoud geldt een termijn van zes weken na het opstellen van de koopovereenkomst voor het storten van de waarborgsom of bankgarantie.

Deze informatie is door ons met de nodige zorgvuldigheid samengesteld. Onzerzijds wordt echter geen enkele aansprakelijkheid aanvaard voor enige onvolledigheid, onjuistheid of anderszins, dan wel de gevolgen daarvan. Alle opgegeven maten en oppervlakten zijn indicatief.


English Translation

A wonderfully spacious and bright family home with an extended layout, a private roof terrace, a generous living room, two large bedrooms, two bathrooms, and a private parking space in the Eastern Docklands. A unique location where modern living and architecture come together. The setting is exceptional: very quiet and therefore child?friendly, yet all amenities and the heart of Amsterdam are just around the corner.

Parking is no issue; you can park your car on your own private spot beneath the house. This is where you want to live!

The Area
The Eastern Docklands is known for its modern architecture, spacious layout, and of course its connection to the water. In short: a unique part of Amsterdam. By bike, you can reach the city centre in 15 minutes and Central Station in 10 minutes. There are excellent public transport connections to both East and West, and tram 7 or 26 takes you to the centre or Central Station in no time. The Oostveer ferry provides a very convenient connection to Amsterdam?Noord (including restaurants De Goudfazant and Hangar). By car, you can reach the A10 within minutes via the Piet Hein Tunnel.

Within walking distance you will find the Brazilië shopping centre (including Albert Heijn, Jumbo, Marqt, Odin, Grape District, pharmacy, etc.), several schools, a delicatessen, interior design stores such as Pol’s Potten and Sissy?Boy Homeland, gyms, the Lloyd Hotel, Club Panama, HappyHappyJoyJoy, Anne & Max, Pata Negra, De Zuid, Bombarie, and Roest. The Javastraat and Czaar Peterstraat are also within walking distance, offering many trendy shops and restaurants. Water enthusiasts will enjoy the small local marina, a nearby harbour and sailing school, as well as various jetties where you can moor your boat before heading into the Amsterdam canals or taking a refreshing swim.

The former harbour island of Sporenburg is characterised by predominantly lowrise buildings and low?traffic streets. Diagonally across the island lies the small city park 'Keesje Brijdeplantsoen', a lovely green area.

In summary: two spacious bedrooms, two bathrooms, easy parking, a wonderful roof terrace, and a bright and distinctive home in the inspiring Eastern Docklands, finished with taste and attention to detail.

Highlights of the Property
+ Unique full townhouse spread over three floors
+ Completely renovated at the end of 2019, from flooring and wall finishes to sanitary fittings and kitchen
+ All floors feature a cast floor with underfloor heating (individually adjustable per floor)
+ All walls finished with smooth plasterwork
+ Stunning roof terrace with sun all day
+ Internal patio incorporated into the living space
+ Private parking in carport
+ Groundfloor ceiling height: 3.15 metres
+ Two spacious bedrooms (formerly three)
+ Built in 1999/2000, fully double?glazed and well insulated
+ Municipal leasehold paid off until 31 March 2047
+ Active homeowners’ association (VvE)

Layout
Ground Floor
Through a lockable gate you enter the carport: your private parking space with ample storage. Entrance to the house, spacious hallway, toilet, walk-in closet, and access to the main bedroom with ensuite bathroom. The ensuite bathroom features a walk?in shower and washbasin. A separate area in the bedroom houses the washing machine and dryer connections. The ground floor boasts an impressive ceiling height of 3.15 metres.

First Floor
A fixed staircase with beautiful wooden steps leads to the first floor, where you will find the spacious living room with open kitchen. The luxurious open kitchen is equipped with a wide range of built in appliances: induction cooktop, Quooker boiling water tap, dishwasher, oven/microwave, oven/steam oven, refrigerator and freezer.

The spacious and bright living room (enhanced by the skylight installed in 2019) features three large windows, resulting in a wonderfully light and airy space.

Storage space is available beneath the staircase to the second floor.

Second Floor
A versatile room that can be used as a workspace, guest room, or second bedroom. Adding to the comfort is the second bathroom, equipped with a walk?in shower, toilet, and washbasin. The bedroom has direct access to the large roof terrace.

Additional Information
Heating: district heating
Hot water: district heating
Insulation: fully insulated
Service charges: the property is part of a financially healthy homeowners’ association with a professional administrator; service charges are approx. € 140,- per month
Year of construction: 1999
Energy label: A
Transfer: in consultation

Purchase Agreement
A standard NVM purchase agreement will be used for the sale. For properties older than 20 years, the following clause will be included in the agreement:
– Age clause

For purchases without a financing contingency, a period of six weeks after signing the purchase agreement applies for depositing the security deposit or bank guarantee.

This information has been compiled with great care. However, we accept no liability for any incompleteness, inaccuracies, or consequences thereof. All stated measurements and surfaces are indicative.
+ toon meer
deze woning is Verkocht

Lampenistenstraat 115 Amsterdam

Lampenistenstraat 115

1019 TK, Amsterdam
Ditters open huis: 5 april 2025 10:00 - 12:00 uur
Landelijke Open Huizen Route NVM: 5 april 2025 11:00 uur - 15:00 uur
Vanaf€ 895.000 k.k.

Schakel een aankoopmakelaar in.

Snel handelen helpt je jouw droomhuis te bemachtigen. Zo vergroot je de kans dat je er op tijd bij bent.
Amsterdam
verkocht

Of maak vrijblijvend een zoekprofiel aan.

Vergelijkbare woningen

Hypotheken

Onafhankelijk hypotheekadvies

  • Ligt jouw droomhuis binnen handbereik?
  • Wil je jouw huidige hypotheek verhogen?
  • Is er hypotheekruimte voor verduurzaming?

Blijf op de hoogte

Ontvang als eerste updates over nieuw aanbod en mis geen enkele kans om jouw droomwoning te vinden.

Gratis waardebepaling of verkoopgesprek

Met de vrijblijvende waardecheck weet je snel waar je aan toe bent. Onze makelaars kijken naar de lokale markt en vergelijkbare woningen in jouw buurt om een goede schatting te geven.

Realiseer al jouw woondromen met Ditters

Wij zijn een team van gedreven vastgoedexperts met een passie voor het maken van verbindingen – tussen kopers en verkopers, huurders en verhuurders. Met een frisse kijk op de makelaardij combineren we expertise met creativiteit. Onze makelaars luisteren écht en nemen de tijd om jouw wensen te begrijpen.


Bij Ditters sta je er niet alleen voor. We denken met je mee, begeleiden je in elke stap en zijn altijd bereikbaar voor vragen. Neem gerust contact met ons op – we helpen je graag verder!