Omschrijving

Deze volledig instapklare, net gerenoveerde woning, is klaar voor nieuwe bewoners!

Bijna alles is in één keer aangepakt: fraaie nieuwe keuken, een moderne badkamer en toiletruimte, strakke wandafwerking, nieuwe vloeren op de begane grond, steellook tussendeur en nieuwe schuifpui naar de diepe achtertuin gelegen op het zuidoosten!

De ligging? Werkelijk ideaal. Niet midden in de drukte van de wijk Malburgen, maar juist aan de rustige, groene rand, direct aan de brug naar het centrum van Arnhem én de uiterwaarden langs de Rijn. Winkels, scholen, openbaar vervoer en uitvalswegen: alles ligt binnen handbereik. Hier woon je in een omgeving die perfect past bij starters, jonge gezinnen en iedereen die comfortabel en centraal wil wonen.

Kortom: een instapklare, vernieuwde woning op een toplocatie. Kom snel kijken!

Pluspunten
+ 4 slaapkamers;
+ Gelegen in Malburgen;
+ Nieuwe keuken;
+ Nieuwe badkamer;
+ Nieuwe toiletruimte;
+ Nieuwe schuifpui;
+ Nieuwe vloer begane grond;
+ Zonnig gelegen diepe achtertuin op het zuidoosten;
+ Balkon op het noordwesten;
+ Stenen berging in de tuin;
+ Centraal gelegen nabij centrum en uitvalswegen

Indeling

Begane grond
Via de hal heb je toegang tot de volledig nieuwe betegelde toiletruimte en zwevend toilet, de meterkast, de trapopgang naar de eerste verdieping en de woonkamer.

De doorzon woonkamer beschikt over grote raampartijen aan zowel de voor- als achterzijde van de woning, hierdoor is er veel lichtinval. Tevens biedt de woonkamer middels een schuifpui toegang tot de achtertuin welke op het zuidoosten is gelegen.

Vanuit de woonkamer is er toegang tot de nieuwe keuken die recent is vernieuwd en voorzien is van diverse inbouwapparatuur.

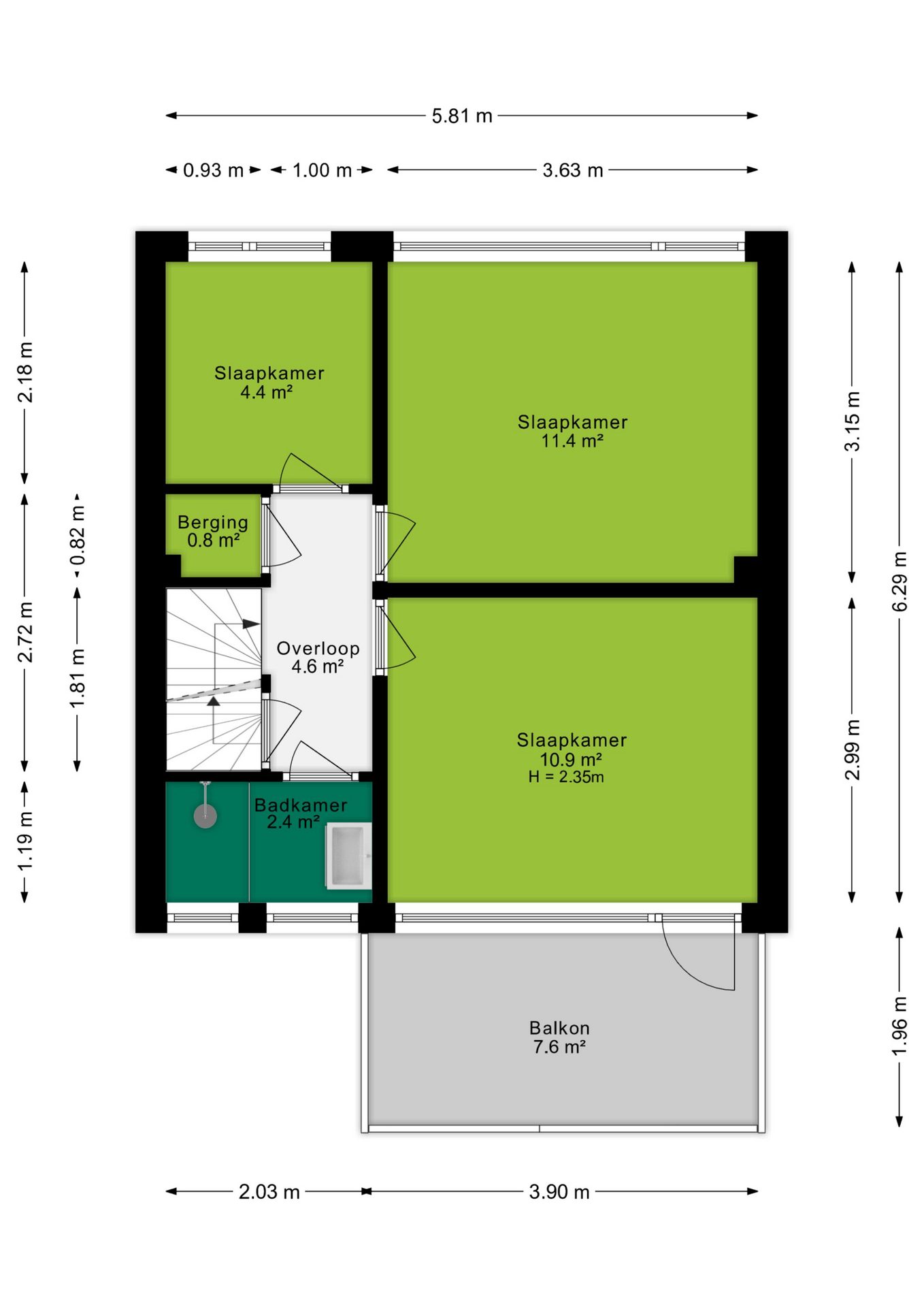
Eerste verdieping
De overloop geeft toegang tot drie slaapkamers en de badkamer.

De slaapkamer aan de voorzijde beschikt over een balkon op het noordwesten, een fijne plek om in de middag of avond even buiten te zitten. De overige slaapkamers zijn praktisch in te delen als slaap-, werk- of hobbykamer.

De moderne badkamer is volledig betegeld en voorzien van een douche, wastafel, en wastafelmeubel.

Tweede verdieping
Via een vaste trap bereik je de zolderverdieping. Hier vind je een voorzolder met de cv-opstelling en knieschotten voor extra bergruimte. Daarnaast is hier een vierde slaapkamer gerealiseerd, ideaal als extra slaapkamer, werkkamer of hobbyruimte.

Buitenruimte
De achtertuin biedt ruimte om een fijne plek te creëren. Daarnaast is er een stenen berging aanwezig, ideaal voor het stallen van fietsen en het opbergen van tuinspullen.

Afmetingen
+ Woonoppervlakte 91 m²
+ Inhoud woning 326 m³
+ Perceeloppervlakte 163 m²

Bijzonderheden
+ Verwarming C.V.-ketel
+ Warm water C.V.-ketel
+ Bouwjaar 1960
+ Energielabel C
+ Isolatie Dakisolatie en gedeeltelijk dubbel glas
+ Tuinligging Zuidoost
+ Aanvaarding in overleg

Omgeving
Deze eengezinswoning is zeer centraal gelegen, op steenworp afstand van het groen, de uiterwaarden en de Rijn. Scholen zijn op loopafstand gelegen en alle voorzieningen qua winkelaanbod en openbaar vervoer liggen op steenworp afstand. Ook het bruisende centrum van Arnhem is binnen 15 minuten te bereiken op loopafstand. Deze omgeving is zeer geschikt voor zowel gezinnen, starters en ouderen. Kinderen kunnen vrij spelen in de directe omgeving van de woning en op korte afstand is het openbaar vervoer en meerdere uitvalswegen.

Op korte afstand van winkelcentrum de Drieslag, waar je gemakkelijk je dagelijkse boodschappen kunt doen. In de directe omgeving vind je allerlei voorzieningen, zoals winkels, een huisartsenpraktijk, pizzeria, snackbar, scholen, peuterspeelzalen en sportverenigingen. Het zwembad de Grote Koppel en het multifunctionele centrum De Malburcht zijn beide vlakbij. Het centrum van Arnhem is binnen 10 minuten fietsen bereikbaar, ideaal voor een dagje winkelen of uitgaan.

Voor natuurliefhebbers zijn de uiterwaarden van de Rijn dichtbij, en ook het natuurgebied Meinerswijk biedt volop wandel- en fietsmogelijkheden.

Koopovereenkomst
Bij de verkoop zal een standaard NVM-koopovereenkomst worden gehanteerd. De volgende clausules worden opgenomen in de koopovereenkomst:
- Asbestclausule;
- Ouderdomsclausule;
- Niet bewoners clausule.

Bij aankoop zonder financieringsvoorbehoud geldt een termijn van zes weken na het opstellen van de koopovereenkomst voor het storten van de waarborgsom of bankgarantie.

Deze informatie is met zorg samengesteld. Er wordt geen aansprakelijkheid aanvaard voor eventuele onvolledigheden of onjuistheden. Alle opgegeven maten en oppervlakten zijn indicatief.
+ toon meer

Video

6833 AJ, Arnhem

Margrietstraat 63

Zaterdag 2 augustus 10:00 - 12:00 uur

€ 359.500 k.k.
ditters makelaars arnhem
Kopen

Wat is jouw woning écht waard bij Ditters?

Waardecheck

Wij combineren lokale marktkennis met actuele data en ons grote zoekersbestand in de regio.

Je krijgt niet alleen een waarde, maar inzicht in hoe je de maximale verkoopopbrengst kunt realiseren.

Onze aanpak is strategisch, transparant en volledig afgestemd op jouw situatie.

Goed om te weten: deze waardecheck is vrijblijvend en geheel kosteloos
Onafhankelijk

Hypotheekadvies

We helpen je met het vergelijken van aanbiedingen van verschillende banken, zodat je de beste deal krijgt. 
Wij staan klaar om je te begeleiden, zodat je met vertrouwen de juiste hypotheek kunt kiezen.
Goed om te weten: dit adviesgesprek is vrijblijvend en geheel kosteloos

Wij helpen jou bij de keuze van de juiste polis.

Bij een onbezorgde toekomst horen ook goede verzekeringen die uitkeren bij bijvoorbeeld ziekte, schade of diefstal. Onze assurantieadviseurs helpen je bij de keuze van de juiste polis. In heldere taal.

Diverse verzekeringen

  • Opstalverzekering
  • Aansprakelijkheidsverzekering
  • Zorgverzekering
  • Reisverzekering

Buurtinformatie

Arnhem, Groene Weide
Inwoners
Woningen
1.190
Inwoners
2.490
53
47
Koop / Huur
53% Huur47% Koop
Huishoudens
Eenpersoon
47.1%
Geen kinderen
23.2%
Met kinderen
29.3%
Leeftijdsopbouw in jaren
Buurt Landelijk
16.913.538.021.99.616.312.324.728.218.5

Locatie

Plattegronden

Klik op de plattegrond voor een grote weergave

Misschien interessant voor jou

Blijf op de hoogte

Ontvang als eerste updates over nieuw aanbod en mis geen enkele kans om jouw droomwoning te vinden.

Gratis waardebepaling of verkoopgesprek

Met de vrijblijvende waardecheck weet je snel waar je aan toe bent. Onze makelaars kijken naar de lokale markt en vergelijkbare woningen in jouw buurt om een goede schatting te geven.