Omschrijving

Ruime en sfeervolle benedenwoning met maar liefst 194m2 woonoppervlak gelegen in de geliefde Burgemeesterswijk, een van de meest karakteristieke en gewilde buurten van Arnhem. Deze bijzondere woning biedt alles wat je zoekt: voldoende slaapkamers, een zonnige tuin op het zuiden, charmante authentieke details en zelfs een mogelijkheid voor een praktijk- of kantoorruimte aan huis dankzij het souterrain op stahoogte met eigen entree.

De woning, gebouwd in 1906, bevindt zich aan een van de mooiste straten van de wijk en straalt warmte, karakter en klasse uit. De ruimtes zijn ruim opgezet en baden in het natuurlijke licht. Met drie royale slaapkamers verdeeld over de bovenverdiepingen (in de 'toren'), vormt deze woning een perfecte plek voor gezinnen, thuiswerkers of hobbyisten. De groene tuin met privacy is gelegen op het zonnige zuiden, een heerlijke plek om te ontspannen en te genieten van het buitenleven. Met een sfeervolle veranda, een praktische berging en achterom biedt de tuin volop mogelijkheden voor gezellige zomerse avonden.

Een groot pluspunt van deze prachtige woning is de perfecte combinatie van authentieke charme en moderne gemakken. Met kenmerken zoals de kamer-en-suite met authentieke schuifdeuren en een sfeervolle houtkachel straalt de woning karakter uit, terwijl voorzieningen als HR-glas en gedeeltelijke vloerverwarming zorgen voor comfort.

De locatie is absoluut ideaal. In de Burgemeesterswijk woon je op een centrale en groene plek, met alle voorzieningen binnen handbereik. Op loopafstand vind je het Park Sonsbeek en Park Zypendaal, waar je heerlijk kunt wandelen, sporten of picknicken. Ook diverse scholen, sportclubs, winkels, gezellige horecagelegenheden en het bruisende stadscentrum van Arnhem zijn vlakbij. Bovendien is de bereikbaarheid uitstekend dankzij de korte afstand tot het NS Station Arnhem Centraal en goede verbindingen met uitvalswegen.

Maak snel een afspraak voor een bezichtiging en ervaar zelf de ruimte, sfeer en het karakter van dit prachtige huis.

Highlights van deze woning:
- Zeer ruime benedenwoning van 194m² op toplocatie
- Maar liefst 5 slaapkamers en moderne badkamer
- Sfeervolle kamer-en-suite en serre
- Mogelijkheid voor een praktijk- of kantoorruimte aan huis met eigen entree
- Zonnige tuin op het zuiden met veranda en berging
- HR-glas, vloerisolatie en zonnepanelen
- Vloerverwarming in souterrain, keuken en badkamer
- Authentieke details: ornamentenplafonds, kamer-en-suite met schuifdeuren en fraaie paneeldeuren
- Op loopafstand van alle voorzieningen die je maar kunt wensen

Indeling
Begane grond:
Bij binnenkomst betreed je de entree met hoge plafonds en stijlvolle paneeldeuren, die toegang biedt tot de kamer-en-suite, keuken, toiletruimte en trapopgang naar de verdieping. De kamer-en-suite ademt sfeer en karakter, mede dankzij authentieke details zoals hoge ornamentenplafonds, en-suite deuren met bijbehorende kastenwand en een charmante houtkachel. Zelfs zonder meubels straalt de ruimte al warmte en stijl uit. De huidige bewoners hebben de kamer-en-suite ingericht met een gezellige woonkamer aan de voorzijde en een sfeervolle eetkamer aan de achterzijde.

Grenzend aan de kamer-en-suite bevindt zich de serre, die is voorzien van glas-in-lood ramen (met voorzetramen) en openslaande deuren naar de achtertuin. Deze lichte ruimte leent zich perfect als leeshoek of speelkamer. Vanuit de hal bereik je de keuken, die ruim is opgezet met een hoekopstelling en diverse inbouwapparatuur. De keuken functioneert, maar is wel toe aan vernieuwing. Ook is er plek voor een eettafel, waardoor de keuken een fijne, praktische leefruimte vormt. Via de keuken is er toegang naar de tussenhal en de souterrain. De tussenhal biedt toegang naar de badkamer en achtertuin. De badkamer is voorzien van inloopdouche, wastafelmeubel, handdoekradiator en een praktische badkamerkast

1e Verdieping:
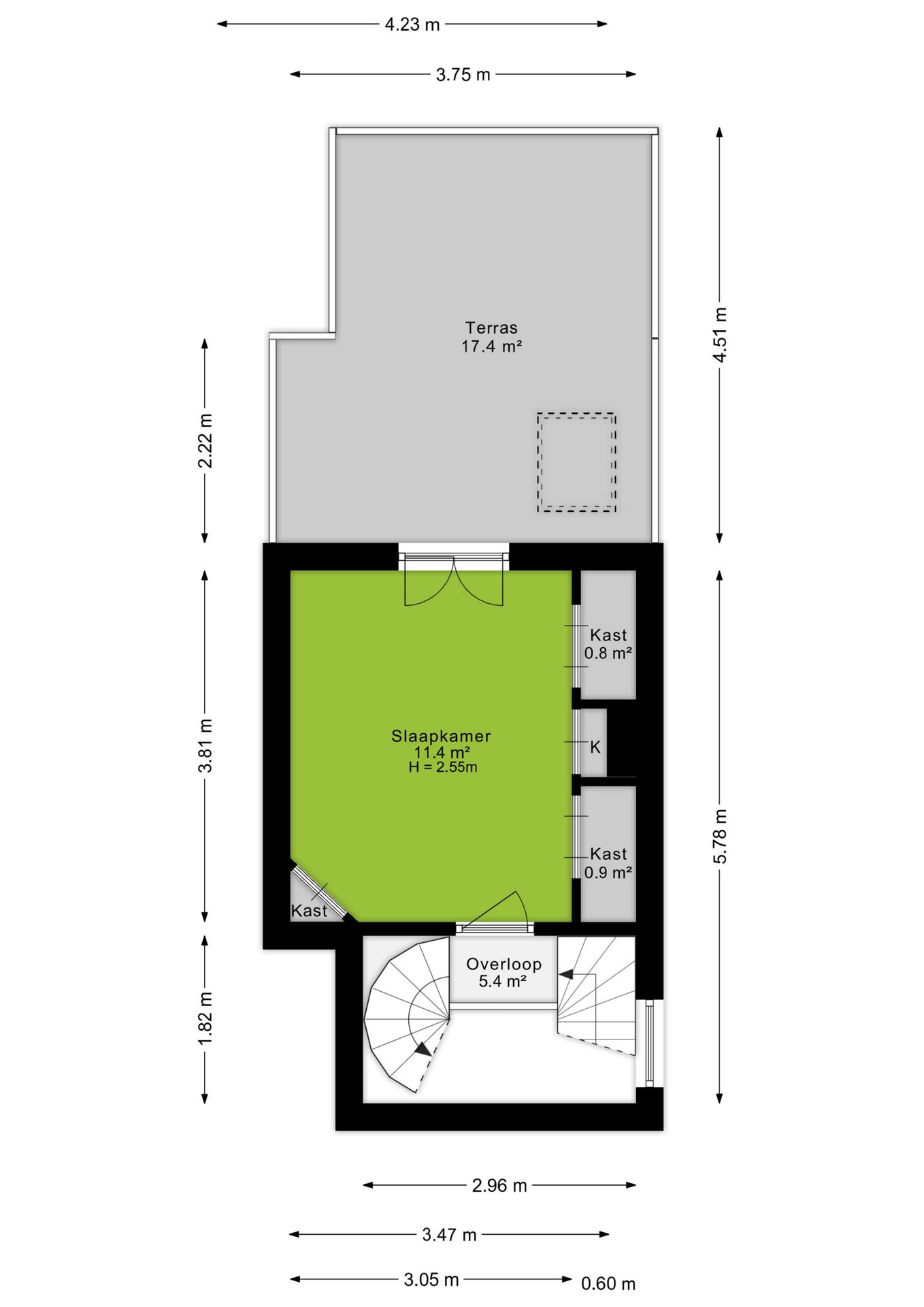
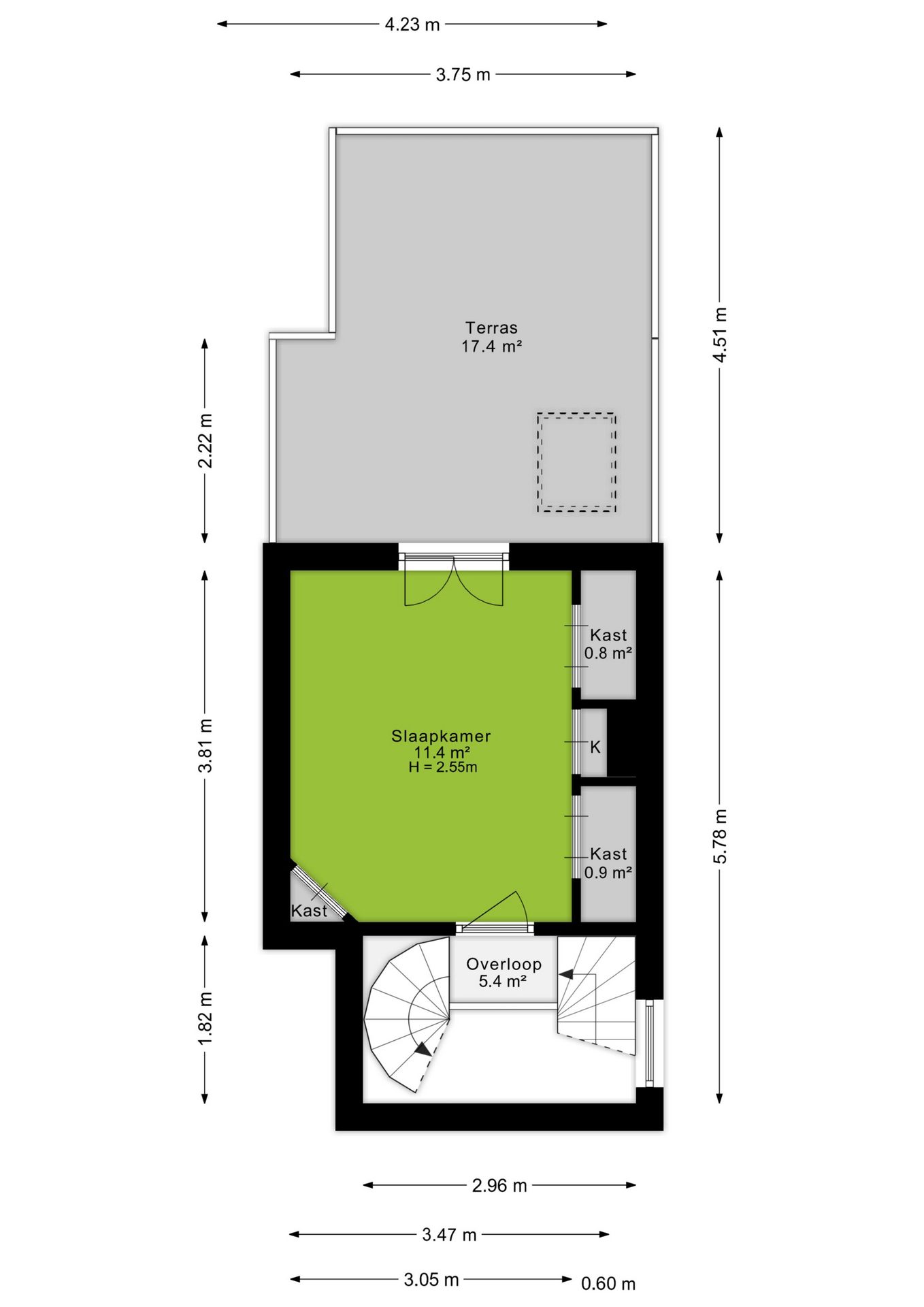
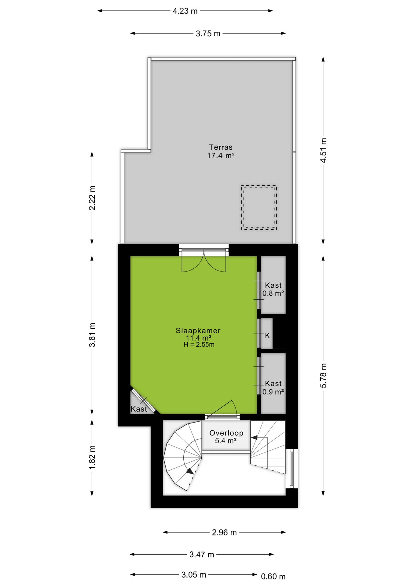
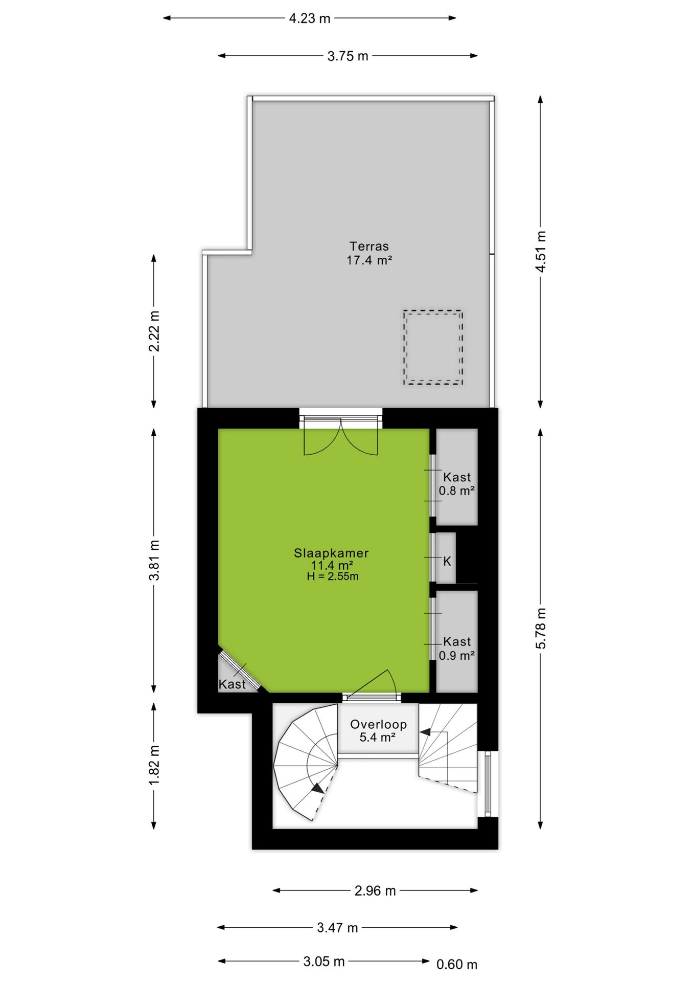
Op de eerste verdieping vind je een slaapkamer van circa 11 m², die is voorzien van een sfeervolle houten vloer en een praktische ingebouwde kastenwand. De ruimte wordt extra bijzonder door de dubbele deuren die toegang bieden tot het terras, waardoor binnen en buiten prachtig in elkaar overlopen. Het hoge plafond versterkt het gevoel van ruimte en draagt bij aan de charmante uitstraling van de kamer.

2e Verdieping:
Op deze verdieping tref je een tweede slaapkamer van circa 14m² met laminaatvloer en wastafelmeubel.

3e Verdieping:
De derde verdieping geeft via de overloop toegang naar de derde slaapkamer, welke eveneens circa 14m² groot is en voorzien is van een laminaatvloer. Vanuit de overloop is er tevens toegang tot een vaste bergkast.

Souterrain:
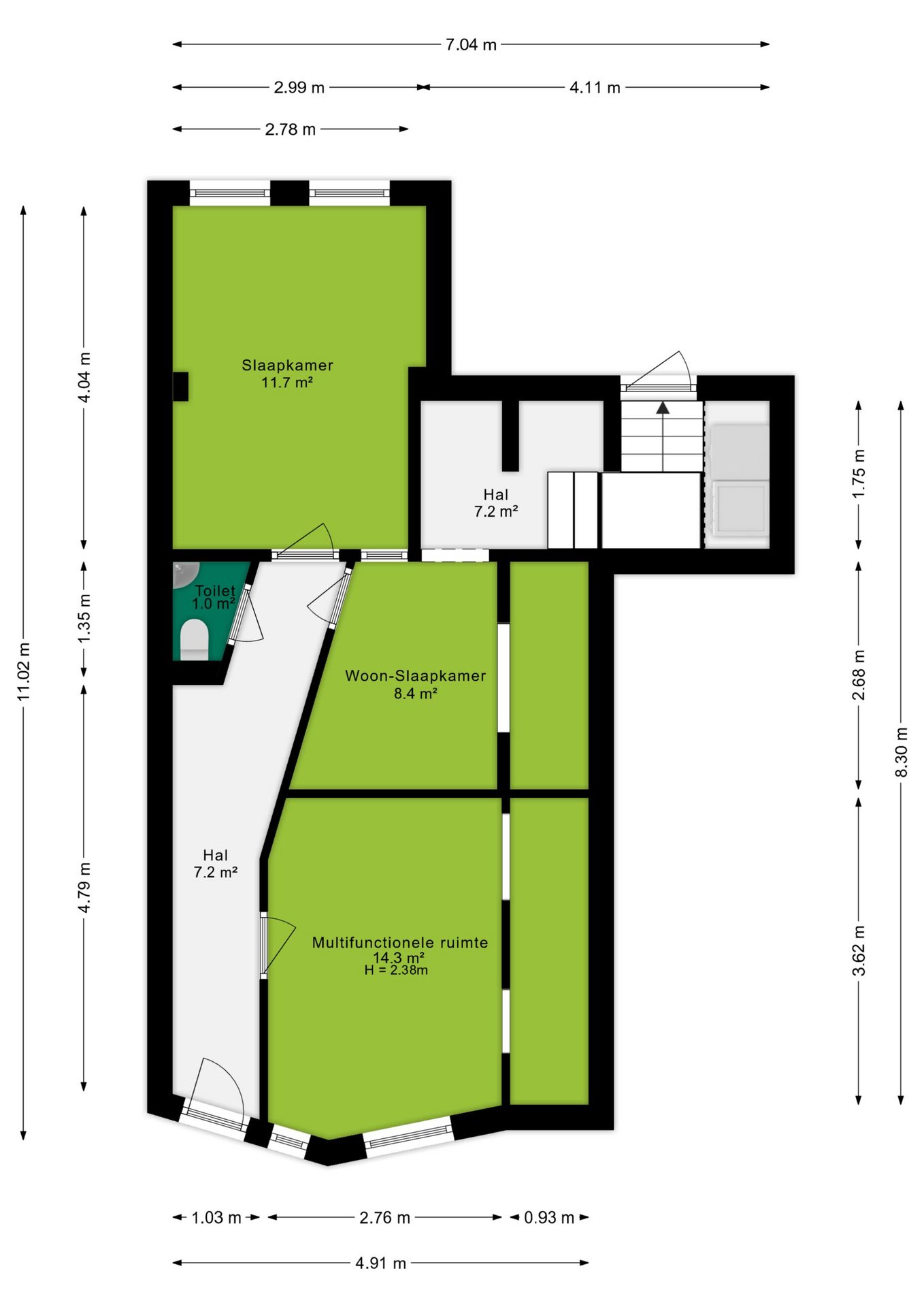
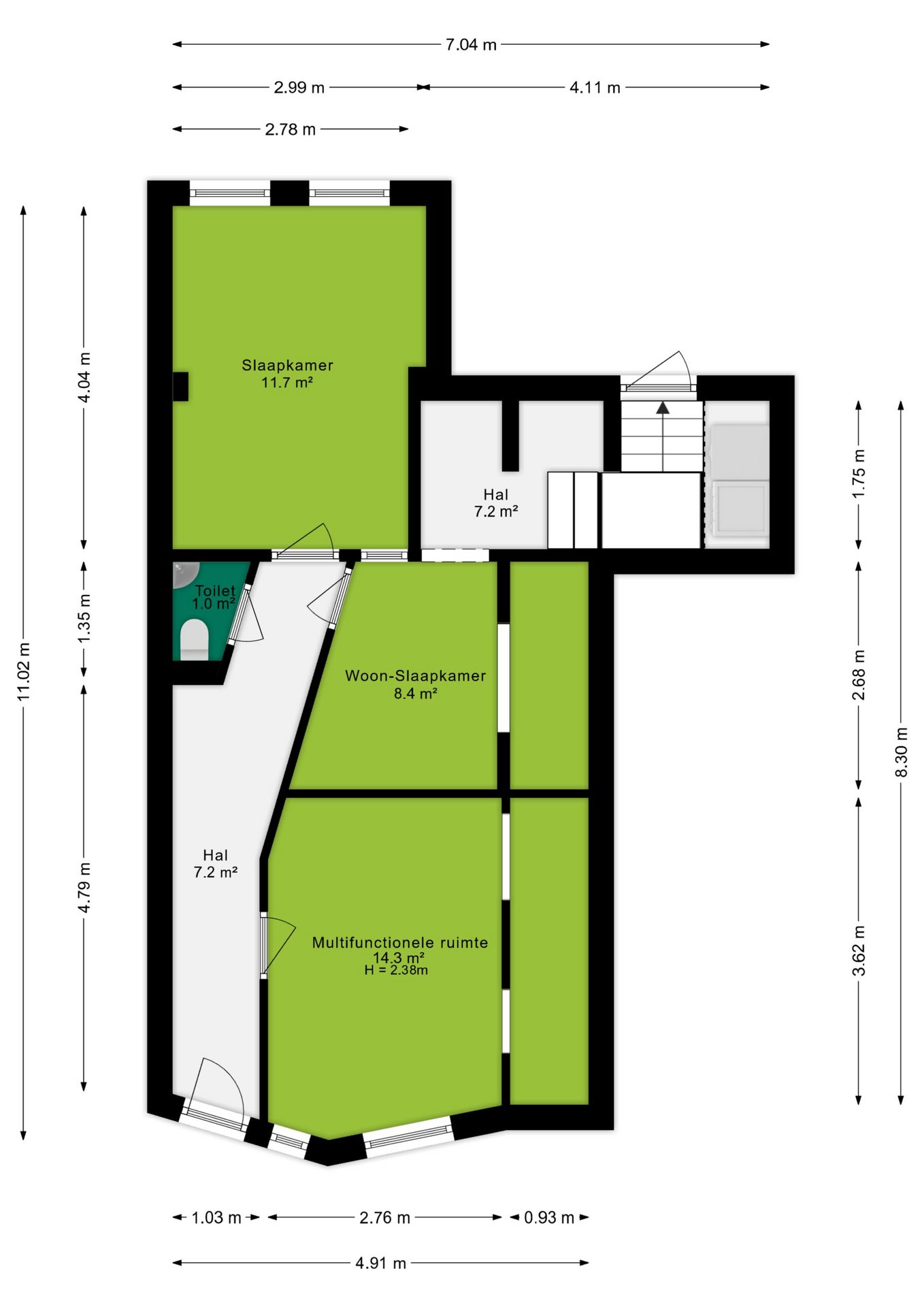
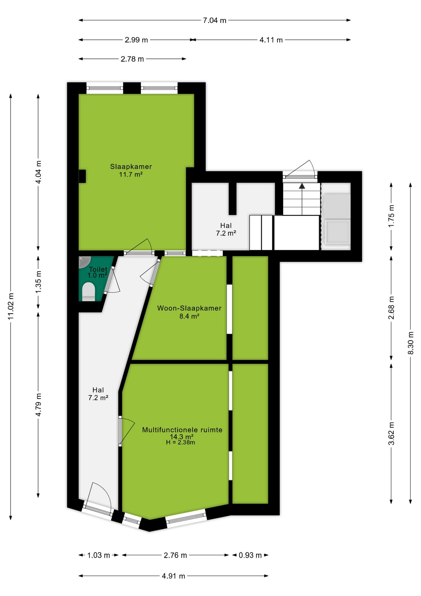
Het souterrain, met een eigen entree en toiletruimte, is ideaal te gebruiken als praktijkruimte of kantoor aan huis. Vanuit de hal zijn alle kamers en de toiletruimte eenvoudig toegankelijk. Een kamer van circa 8 m² biedt toegang tot de tussenhal, die via het trappenhuis leidt naar zowel de wasruimte als de keuken. Deze multifunctionele ruimte biedt talloze mogelijkheden en is niet alleen geschikt als werkruimte, maar ook perfect in te richten als atelier of speelkamer. Het souterrain is voorzien van vloerverwarming.

Tuin:
De achtertuin is een groene oase die volop privacy biedt. Dankzij de gunstige ligging op het zonnige zuiden kun je kiezen voor een plek in de zon of juist in de schaduw. Onder de sfeervolle veranda geniet je van lange, zwoele zomeravonden in alle rust. De praktische berging biedt voldoende ruimte voor het opbergen van tuingereedschap, kussens en andere spullen, en is ook ideaal voor het stallen van fietsen. Daarnaast is de tuin voorzien van een handige achterom, wat extra gemak toevoegt.

Koopovereenkomst:
Bij de verkoop zal er een standaard NVM koopovereenkomst worden gehanteerd. Bij woningen welke ouder zijn dan 20 jaar, worden de volgende clausules opgenomen in de koopovereenkomst:
- Asbestclausule
- Ouderdomsclausule

Koop je de woning zonder voorbehoud van financiering? Dan zullen wij een termijn hanteren van 14 dagen na het opstellen van de koopovereenkomst voor het storten van de bankgarantie/waarborgsom.

Deze informatie is door ons met de nodige zorgvuldigheid samengesteld. Onzerzijds wordt echter geen enkele aansprakelijkheid aanvaard voor enige onvolledigheid, onjuistheid of anderszins, dan wel de gevolgen daarvan. Alle opgegeven maten en oppervlakten zijn indicatief.
+ toon meer

Video

6814 GM, Arnhem

Van Pallandtstraat 39

Zaterdag 2 augustus 10:00 - 12:00 uur

€ 850.000 k.k.
ditters makelaars arnhem
Kopen

Wat is jouw woning écht waard bij Ditters?

Waardecheck

Wij combineren lokale marktkennis met actuele data en ons grote zoekersbestand in de regio.

Je krijgt niet alleen een waarde, maar inzicht in hoe je de maximale verkoopopbrengst kunt realiseren.

Onze aanpak is strategisch, transparant en volledig afgestemd op jouw situatie.

Goed om te weten: deze waardecheck is vrijblijvend en geheel kosteloos
Onafhankelijk

Hypotheekadvies

We helpen je met het vergelijken van aanbiedingen van verschillende banken, zodat je de beste deal krijgt. 
Wij staan klaar om je te begeleiden, zodat je met vertrouwen de juiste hypotheek kunt kiezen.
Goed om te weten: dit adviesgesprek is vrijblijvend en geheel kosteloos

Wij helpen jou bij de keuze van de juiste polis.

Bij een onbezorgde toekomst horen ook goede verzekeringen die uitkeren bij bijvoorbeeld ziekte, schade of diefstal. Onze assurantieadviseurs helpen je bij de keuze van de juiste polis. In heldere taal.

Diverse verzekeringen

  • Opstalverzekering
  • Aansprakelijkheidsverzekering
  • Zorgverzekering
  • Reisverzekering

Buurtinformatie

Arnhem, Burgemeesterswijk
Inwoners
Woningen
1.374
Inwoners
2.850
40
60
Koop / Huur
40% Huur60% Koop
Huishoudens
Eenpersoon
56.0%
Geen kinderen
26.0%
Met kinderen
17.7%
Leeftijdsopbouw in jaren
Buurt Landelijk
11.614.024.428.621.116.312.324.728.218.5

Locatie

Plattegronden

Klik op de plattegrond voor een grote weergave

Misschien interessant voor jou

Blijf op de hoogte

Ontvang als eerste updates over nieuw aanbod en mis geen enkele kans om jouw droomwoning te vinden.

Gratis waardebepaling of verkoopgesprek

Met de vrijblijvende waardecheck weet je snel waar je aan toe bent. Onze makelaars kijken naar de lokale markt en vergelijkbare woningen in jouw buurt om een goede schatting te geven.