Omschrijving

Deze aantrekkelijke tussenwoning beschikt over een lichte woonkamer, twee ruime slaapkamers en een grote zolder die eenvoudig kan worden omgevormd tot een derde slaapkamer. Daarnaast biedt de op het zuiden gelegen tuin met achterom volop zon. Ideaal voor starters of stellen die willen wonen in een groene, rustige en centraal gelegen wijk van Arnhem-Zuid. Met de recent vernieuwde badkamer en toilet en de slimme indeling is de woning instapklaar.

De woning ligt in de groene, vriendelijke en ruim opgezette wijk Elderhof, een geliefde buurt in Arnhem-Zuid. Binnen enkele minuten bereik je de binnenstad en op loopafstand vind je het winkelcentrum Elderhof, diverse basisscholen, sportfaciliteiten en openbaar vervoer.
Ook liggen Meinerswijk, Steenen Kamer en recreatieplas Rijkerswoerd dichtbij, perfect voor wandelingen, sport of ontspanning in de natuur. Bovendien is de bereikbaarheid uitstekend: binnen enkele minuten ben je bij het NS-station Arnhem-Zuid en liggen de uitvalswegen A325, A15, A50 en de Pleyroute in de nabijheid.

Alle kenmerken op een rij:
+ Vernieuwde badkamer en toilet (2024)
+ Twee ruime slaapkamers
+ Grote zolder met mogelijkheid tot een derde slaapkamer
+ Airconditioning aanwezig op de 1e verdieping
+ Zonnige tuin op het zuiden met achterom
+ Stenen berging met bergzolder
+ Voorzien van energielabel B
+ 9 stuks zonnepanelen aanwezig

Indeling
Begane grond
Bij binnenkomst in de entree vind je direct de meterkast. De lichte woonkamer valt meteen op door de grote ramen en het vele daglicht. Er is voldoende ruimte voor een zit- en eethoek. Aan de achterzijde ligt de hal met modern toilet en trapopgang naar de eerste verdieping.
De keuken bevindt zich eveneens aan de achterzijde en is voorzien van diverse inbouwapparatuur, waaronder een gasfornuis, oven, koel-vriescombinatie en vaatwasser. Vanuit hier kijk je fijn uit op de tuin.

Eerste verdieping
De eerste verdieping biedt twee ruime slaapkamers van circa 15 m² en 13 m². De kamer aan de voorzijde beschikt over opbergruimte achter de knieschotten. De vernieuwde badkamer uit 2024 van circa 5 m² groot is uitgerust met een inloopdouche, wastafelmeubel en toilet.

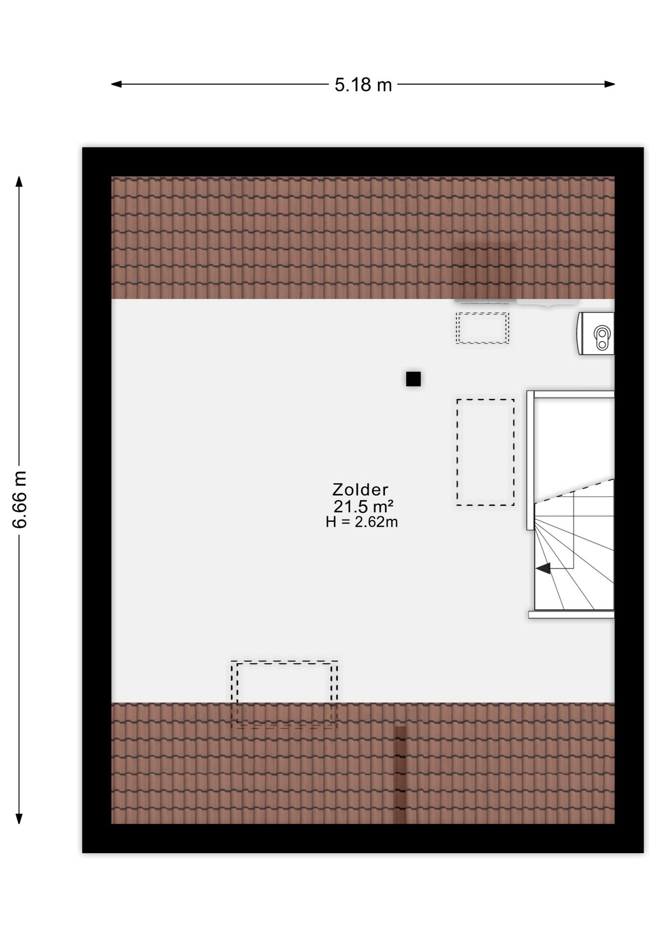
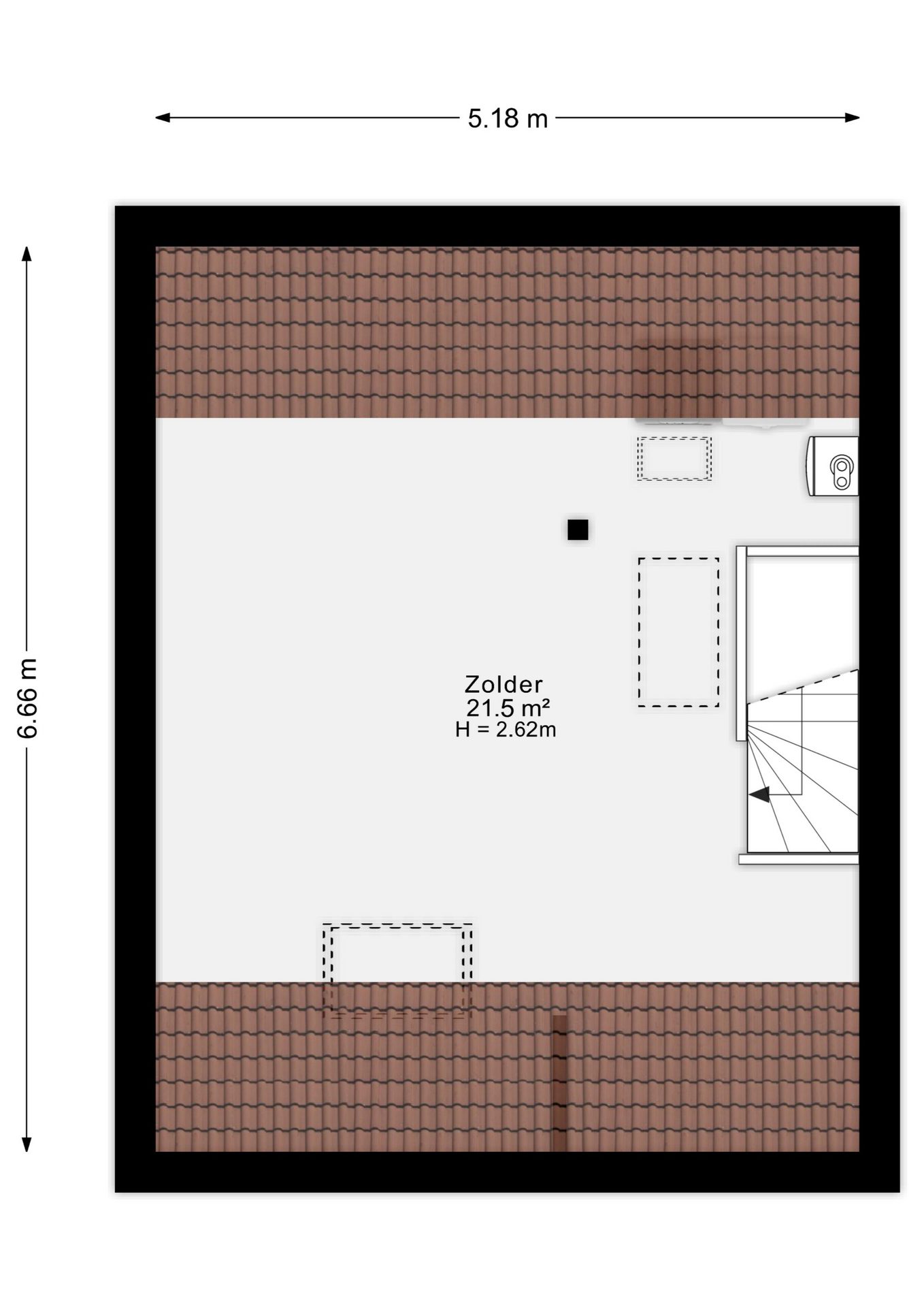
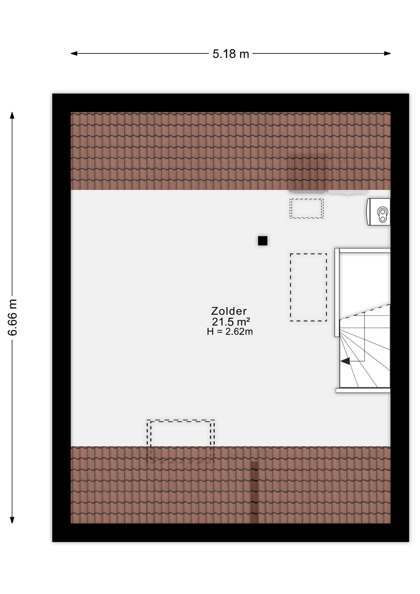
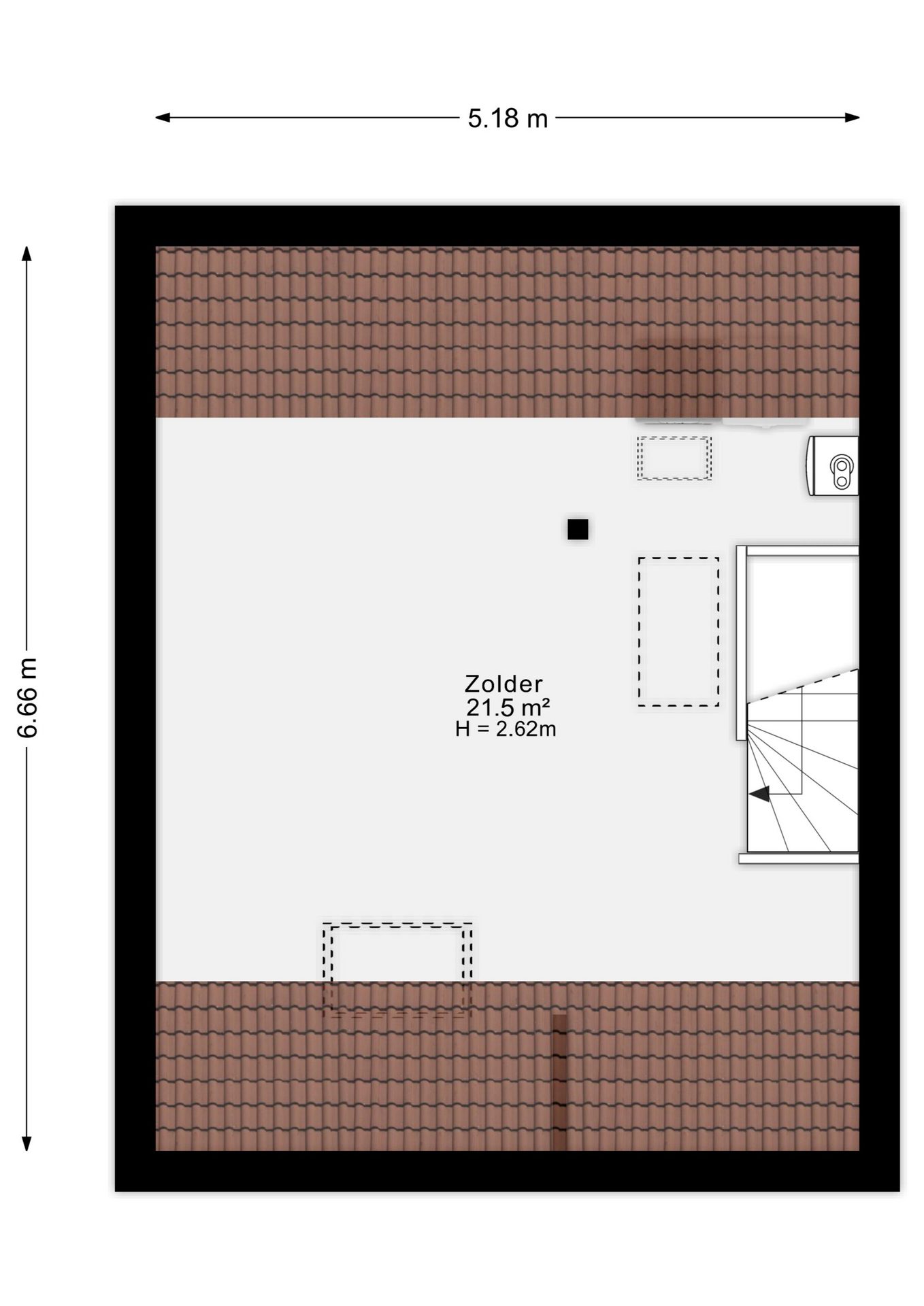
Tweede verdieping
De tweede verdieping bestaat uit een ruime zolder met dakramen, cv-installatie en wasmachineaansluiting. Deze ruimte kan eenvoudig worden ingericht als extra slaapkamer, werkplek of hobbykamer.

Buitenruimte
De achtertuin ligt op het zuiden en is via een achterom bereikbaar. Er is een zonnescherm aanwezig voor schaduw op warme dagen. Achterin de tuin staat een stenen berging van circa 6 m², voorzien van een kleine zolder voor extra opslag. De tuin biedt voldoende ruimte voor een terras en buitenleven.

Bijzonderheden
+ Bouwjaar 1982
+ Woonoppervlakte 104 m²
+ Perceeloppervlakte 157 m²

Koopovereenkomst:
Bij de verkoop zal er een standaard NVM-koopovereenkomst worden gehanteerd.
Bij woningen ouder dan 20 jaar worden de volgende clausules opgenomen:
- Asbestclausule
- Ouderdomsclausule

Koop je de woning zonder voorbehoud van financiering? Dan hanteren wij een termijn van zes weken na het opstellen van de koopovereenkomst voor het storten van de waarborgsom of bankgarantie.

Deze informatie is met zorg samengesteld. Er wordt geen aansprakelijkheid aanvaard voor onvolledigheden of onjuistheden. Alle opgegeven maten en oppervlakten zijn indicatief.
+ toon meer
deze woning is Verkocht

Alkmaarsingel 238 Arnhem

Alkmaarsingel 238

6843 WR, Arnhem
Ditters open huis: 5 april 2025 10:00 - 12:00 uur
Landelijke Open Huizen Route NVM: 5 april 2025 11:00 uur - 15:00 uur
Vanaf€ 395.000 k.k.

Schakel een aankoopmakelaar in.

Snel handelen helpt je jouw droomhuis te bemachtigen. Zo vergroot je de kans dat je er op tijd bij bent.
Arnhem
verkocht

Of maak vrijblijvend een zoekprofiel aan.

Vergelijkbare woningen

Hypotheken

Onafhankelijk hypotheekadvies

  • Ligt jouw droomhuis binnen handbereik?
  • Wil je jouw huidige hypotheek verhogen?
  • Is er hypotheekruimte voor verduurzaming?

Blijf op de hoogte

Ontvang als eerste updates over nieuw aanbod en mis geen enkele kans om jouw droomwoning te vinden.

Gratis waardebepaling of verkoopgesprek

Met de vrijblijvende waardecheck weet je snel waar je aan toe bent. Onze makelaars kijken naar de lokale markt en vergelijkbare woningen in jouw buurt om een goede schatting te geven.

Realiseer al jouw woondromen met Ditters

Wij zijn een team van gedreven vastgoedexperts met een passie voor het maken van verbindingen – tussen kopers en verkopers, huurders en verhuurders. Met een frisse kijk op de makelaardij combineren we expertise met creativiteit. Onze makelaars luisteren écht en nemen de tijd om jouw wensen te begrijpen.


Bij Ditters sta je er niet alleen voor. We denken met je mee, begeleiden je in elke stap en zijn altijd bereikbaar voor vragen. Neem gerust contact met ons op – we helpen je graag verder!