Gelegen binnen de geliefde wijk 'De Laar West' bevindt zich deze fantastische eengezinswoning met energielabel B en met een heerlijk diepe tuin op een riant perceel van maar liefst 158 m². De ligging van deze woning is ideaal te noemen; aan de achterzijde heerlijk vrij gelegen en in een rustige straat met alleen bestemmingsverkeer. Ook van binnen is deze woning echt een plaatje om te zien!
De volgende aspecten van deze fantastische woning spreken je ook vast aan: een sfeervolle woonkamer met heerlijk veel lichtinval, keuken voorzien van diverse inbouwapparatuur, een praktische bijkeuken met wasmachine- en drogeraansluiting, een luxe badkamer (2018), voorzien van 4 volwaardige (slaap)kamers, kunststof kozijnen met HR++ beglazing, een diepe tuin met veel privacy en parkeergelegenheid op eigen terrein. Daarnaast is de meterkast en de C.V.-ketel in 2023 vernieuwd. Plan gauw een bezichtiging in, wij laten je de woning graag zien!
De woning is gelegen in de kindvriendelijke woonwijk "De Laar West" (Arnhem-Zuid). Op slechts 10 minuten loopafstand bent u bij de Rijkerswoerdse Plassen. Daarnaast is het op enkele minuten gelegen van belangrijke uitvalswegen zoals de A12, A325, A15 en de A50, het openbaar vervoer, winkelcentrum Kronenburg, de woonboulevard en het centrum van Arnhem. In de wijk zelf is voldoende parkeergelegenheid. Kortom, een ideale rustige ligging met alle voorzieningen, meerdere parken en waterpartijen in de nabije omgeving.
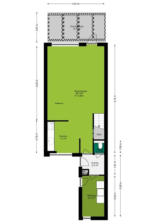
Begane grond
Via een eigen oprit, waar je gemakkelijk je auto kunt parkeren, bereik je de woning. De entree met hal, vernieuwde meterkast (2023) en toilet geven toegang tot alle vertrekken. De sfeervolle en ruime woonkamer heeft een afmeting van 35m², is voorzien van een nette vloer en heerlijk veel lichtinval. Door de prettige afmeting is er ruimte genoeg voor een grote eettafel. De keuken is opgesteld in een lichte kleurstelling en voorzien van diverse inbouwapparatuur, te weten: een kookplaat (2023), afzuigkap en een koelkast. Ook is er nog een ideale trapkast aanwezig. De bijkeuken is zowel van binnen als buiten te bereiken en hier is de wasmachine- en drogeraansluiting aanwezig.
Eerste verdieping
De overloop met extra hal geeft toegang tot drie slaapkamers en de badkamer. De slaapkamers hebben goede afmetingen van 10,9 m², 12,2 m² en 7 m², zijn voorzien van een nette vloer en voldoende lichtinval. Een van deze slaapkamers is voorzien van een handige kast. De badkamer is opgesteld in een moderne kleurstelling en is geplaatst in 2018. De badkamer is voorzien van een inloopdouche, wastafel met wastafelmeubel, toilet en een raam om te kunnen ventileren.
Tweede verdieping
Via een vaste trap bereik je de volwaardig 2e verdieping. In 2022 is deze verdieping verbouwd en is er een extra (slaap)kamer gecreëerd. Deze (slaap)kamer heeft een afmeting van 10,9m², is eveneens voorzien van een nette vloer en voldoende lichtinval. Op de overloop staat de C.V.-ketel (2023) opgesteld en ook is er veel opbergruimte aanwezig.
Tuin/ berging
De heerlijk diepe achtertuin is gelegen op het noordoosten en door de fijne afmeting is er altijd wel een plekje in het zonnetje of de schaduw te vinden. Door de diepte van de tuin en de gezellige veranda kan je hier fijn van het buitenleven genieten. Aan de achterzijde is de woning vrij gelegen waardoor je hier veel rust en privacy ervaart. Daarnaast is er een handig tuinhuis en een achterom aanwezig.
Kenmerken:
Verwarming: C.V.-combiketel (bouwjaar 2023)
Warm water: C.V.-combiketel (bouwjaar 2023)
Bouwjaar: 1979
Tuinligging: noordoost
Isolatie: dakisolatie, muurisolatie en dubbel glas
Aanvaarding: in overleg
Pluspunten van de woning:
+ Ruime eengezinswoning op een groot perceel;
+ Aan de achterzijde vrij gelegen;
+ Gelegen aan een rustige straat met enkel bestemmingsverkeer;
+ Sfeervolle woonkamer met veel lichtinval;
+ Keuken voorzien van diverse inbouwapparatuur;
+ Voorzien van 4 volwaardige (slaap)kamers;
+ Moderne badkamer;
+ Voorzien van kunststof kozijnen met HR++ beglazing;
+ Parkeergelegenheid op eigen terrein;
+ Gelegen in de geliefde wijk 'De Laar-West' nabij diverse voorzieningen en uitvalswegen.
Koopovereenkomst:
Bij de verkoop zal er een standaard NVM koopovereenkomst worden gehanteerd. Bij woningen welke ouder zijn dan 20 jaar, worden de volgende clausules opgenomen in de koopovereenkomst:
- Asbestclausule;
- Ouderdomsclausule.
Koopt u de woning zonder voorbehoud van financiering? Dan zullen wij een termijn hanteren van 14 dagen na het opstellen van de koopovereenkomst voor het storten van de bankgarantie/waarborgsom.
Deze informatie is door ons met de nodige zorgvuldigheid samengesteld. Onzerzijds wordt echter geen enkele aansprakelijkheid aanvaard voor enige onvolledigheid, onjuistheid of anderszins, dan wel de gevolgen daarvan. Alle opgegeven maten en oppervlakten zijn indicatief.