Omschrijving

Gelegen aan de rand van de wijk in een heerlijke groene omgeving bevindt zich deze karakteristieke jaren '30 bovenwoning. Met een balkon waar je kan genieten van het buitenleven en een eigen berging voor het stallen van je fiets. De woning is gedateerd, behoeft modernisatie en is hierdoor naar eigen smaak in te richten.

Wanneer je door de huidige inrichting kijkt, zie je de talloze verborgen mogelijkheden die deze bovenwoning te bieden heeft. Denk bijvoorbeeld aan een sfeervolle woonkamer met een open keuken. Als je bereid bent om de handen uit de mouwen te steken, kun je de authentieke charme van deze woning behouden en een unieke woonplek creëren. Met drie slaapkamers, allen van een goed formaat en met recht opgetrokken muren, en een badkamer is de tweede verdieping praktisch ingedeeld. De bergvliering, bereikbaar via de vlizo trap, biedt daarnaast de nodige bergruimte.

Deze karakteristieke bovenwoning is centraal maar rustig gelegen in de wijk, met een groenstrook aan de voorzijde. Op korte afstand gelegen van alle dagelijkse voorzieningen. Zo tref je op loopafstand van de woning de Albert Heijn en diverse andere winkels op de Middelgraaflaan. Ook het bruisende centrum van Arnhem is in circa 10 minuten fietsen te bereiken. Met het openbaar vervoer en de uitvalswegen in de buurt heb je alles wat je nodig hebt op korte afstand gelegen. Ga je liever even de natuur in? Dan loop je zo naar de uiterwaarden en de Rijn. Ook niet geheel onbelangrijk, er is voldoende en gratis parkeergelegenheid voor de deur!

Alle feiten op een rij:
- Bovenwoning met balkon en drie slaapkamers
- Gelegen in een groene en waterrijke woonomgeving
- Vrij uitzicht op de groenstrook aan de voorzijde
- Balkon gelegen op het zonnige zuidoosten
- Ideale bergvliering met veel opbergruimte en een eigen berging voor het stallen van de fiets
- Binnen 15 minuten fietsen is het bruisende centrum van Arnhem te bereiken
- Maandelijkse VvE bijdrage bedraagt € 150,- per maand
- De VvE is actief en gezond

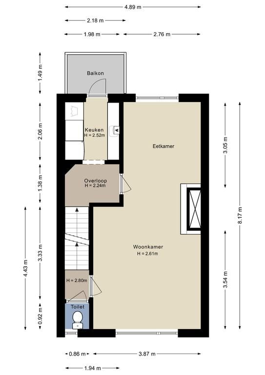
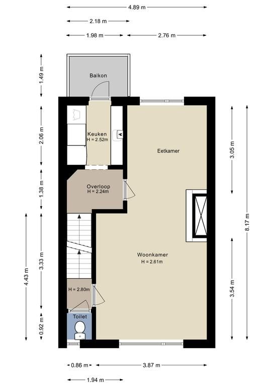
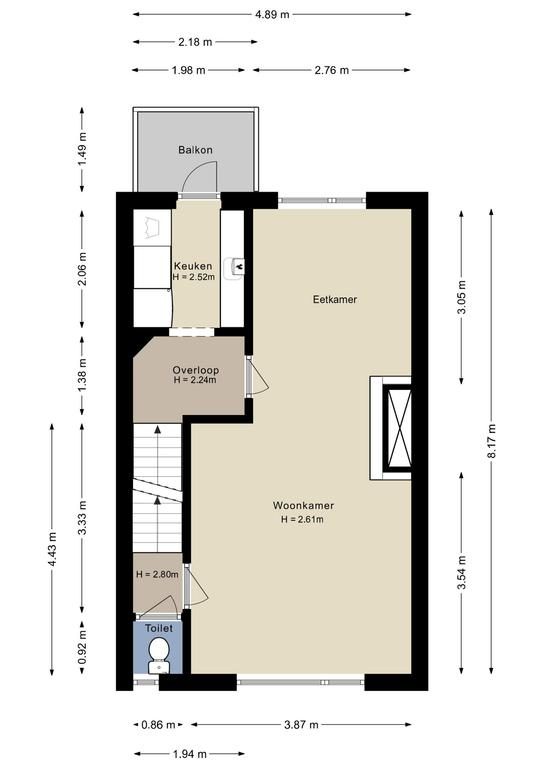
Indeling
Begane grond
Via een eigen entree is de trapopgang naar de eerste verdieping.

Eerste verdieping
De woon-eetkamer is gelegen aan de voorzijde van de woning. Vanuit de woonkamer is er een fijn vrij uitzicht op de groenstrook. De gaskachel zorgt voor de nodige warmte en sfeer. Aan de achterzijde is de gesloten keuken opgesteld. De keuken is eenvoudig, voorzien van een geiser ook de witgoedaansluiting bevindt zich hier. Vanuit de keuken is er toegang naar het balkon, welke is gelegen op het zonnige zuidoosten.

Tweede verdieping
De overloop geeft toegang tot de 3 slaapkamers en de badkamer. De slaapkamers zijn goed bemeten en hebben allen recht opgetrokken muren, daarnaast zijn er ook vaste kasten aanwezig. De badkamer is eenvoudig en voorzien van een douche en een raam om te kunnen ventileren.

Vliering
Vanaf de overloop is de vliering bereikbaar middels een vlizotrap. Op de bergvliering beschik je over veel bergruimte.

Balkon en berging
Het balkon is gelegen aan de achterzijde van de woning, op het zonnige zuidoosten. Het appartement beschikt over een eigen stenen berging voor het stallen van de fiets.

Kenmerken:
Verwarming: Gaskachel
Warm water: Geiser
Bouwjaar: 1936
Balkonligging: Zuidoost
Isolatie: Dubbel glas, muurisolatie, dakisolatie
Aanvaarding: in overleg

Koopovereenkomst:
Bij de verkoop zal er een standaard NVM koopovereenkomst worden gehanteerd. De volgende clausules worden opgenomen in de koopovereenkomst:
- Asbestclausule
- Ouderdomsclausule
- Niet bewoningsclausule

Koopt u de woning zonder voorbehoud van financiering? Dan zullen wij een termijn hanteren van 14 dagen na het opstellen van de koopovereenkomst voor het storten van de bankgarantie/waarborgsom.

Deze informatie is door ons met de nodige zorgvuldigheid samengesteld. Onzerzijds wordt echter geen enkele aansprakelijkheid aanvaard voor enige onvolledigheid, onjuistheid of anderszins, dan wel de gevolgen daarvan. Alle opgegeven maten en oppervlakten zijn indicatief.
+ toon meer
deze woning is Verkocht

Groene Weide 101 Arnhem

Groene Weide 101

6833 BC, Arnhem
Ditters open huis: 5 april 2025 10:00 - 12:00 uur
Landelijke Open Huizen Route NVM: 5 april 2025 11:00 uur - 15:00 uur
Vanaf€ 229.500 k.k.

Schakel een aankoopmakelaar in.

Snel handelen helpt je jouw droomhuis te bemachtigen. Zo vergroot je de kans dat je er op tijd bij bent.
Arnhem
verkocht

Of maak vrijblijvend een zoekprofiel aan.

Vergelijkbare woningen

Hypotheken

Onafhankelijk hypotheekadvies

  • Ligt jouw droomhuis binnen handbereik?
  • Wil je jouw huidige hypotheek verhogen?
  • Is er hypotheekruimte voor verduurzaming?

Blijf op de hoogte

Ontvang als eerste updates over nieuw aanbod en mis geen enkele kans om jouw droomwoning te vinden.

Gratis waardebepaling of verkoopgesprek

Met de vrijblijvende waardecheck weet je snel waar je aan toe bent. Onze makelaars kijken naar de lokale markt en vergelijkbare woningen in jouw buurt om een goede schatting te geven.

Realiseer al jouw woondromen met Ditters

Wij zijn een team van gedreven vastgoedexperts met een passie voor het maken van verbindingen – tussen kopers en verkopers, huurders en verhuurders. Met een frisse kijk op de makelaardij combineren we expertise met creativiteit. Onze makelaars luisteren écht en nemen de tijd om jouw wensen te begrijpen.


Bij Ditters sta je er niet alleen voor. We denken met je mee, begeleiden je in elke stap en zijn altijd bereikbaar voor vragen. Neem gerust contact met ons op – we helpen je graag verder!