Omschrijving

Deze ruime gezinswoning van 121m² ligt vrij aan de achterzijde, zodat je volop kunt genieten van het groene en het waterrijke uitzicht. De woning bevindt zich in de geliefde wijk 'Laar-West' en beschikt over een voortuin op het zonnige zuiden, terwijl de achtertuin met overkapping uitnodigt om altijd van het buitenleven te genieten. Gelegen in een groene en kindvriendelijke omgeving, is dit goed onderhouden huis bovendien voorzien van energielabel B.

Enkele hoogtepunten van deze woning: een lichte woonkamer, een ruime U-vormige keuken met diverse inbouwapparatuur, maar liefst vier slaapkamers, een moderne badkamer uit 2022, een voortuin op het zonnige zuiden en een achtertuin met overkapping die uitzicht biedt op groen en water. Maak snel een afspraak en ontdek deze bijzondere woning!

De woning is gelegen in de kindvriendelijke woonwijk 'De laar-West' (Arnhem-Zuid). De woning is centraal gelegen ten opzichte van (internationale) scholen, kinderopvang, sportvoorzieningen, busverbindingen, dichtbij NS-station Arnhem-Zuid, het bruisende winkelcentrum en diverse uitvalswegen zoals de A325, A12, A15 en A50. Kortom, een ideale rustige ligging met alle voorzieningen, meerdere parken en wandelgebieden in de nabije omgeving.

Alle kenmerken op een rij:
- Lichte eengezinswoning gelegen in een geliefde omgeving
- Ruime U vormige keuken met diverse inbouwapparatuur
- Voorzien van 4 slaapkamers
- Moderne badkamer uit 2022
- Vrije ligging aan de achterzijde
- Een heerlijke voortuin op het zonnige zuiden en een diepe achtertuin met overkapping
- Praktische (fietsen) berging en eigen parkeerplaats
- Verwarming en warm water via C.V. - ketel (huur voor € 39,54 per maand, overname verplichting door koper)
- Op korte afstand van diverse winkels en diverse voorzieningen

Indeling

Begane grond
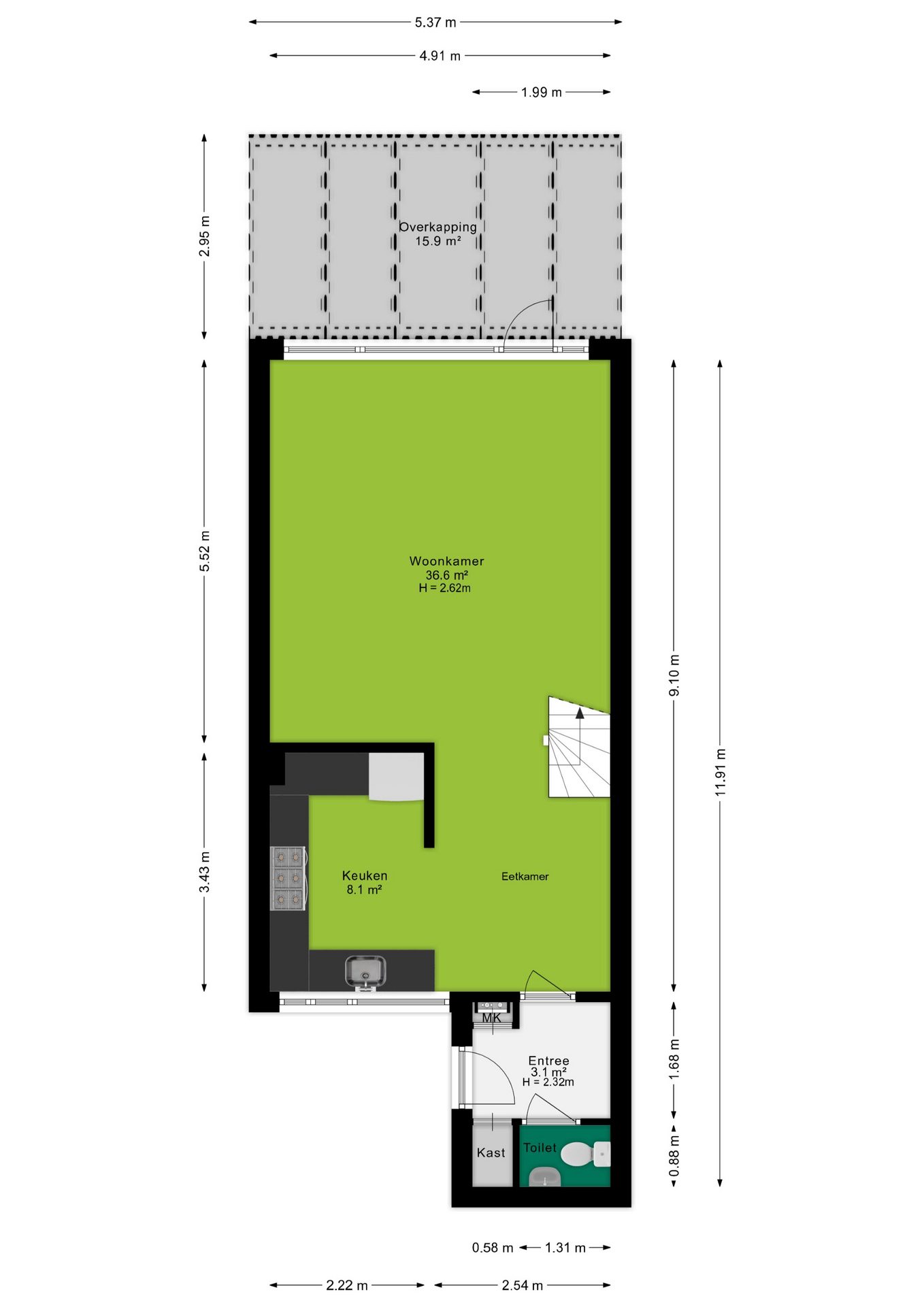
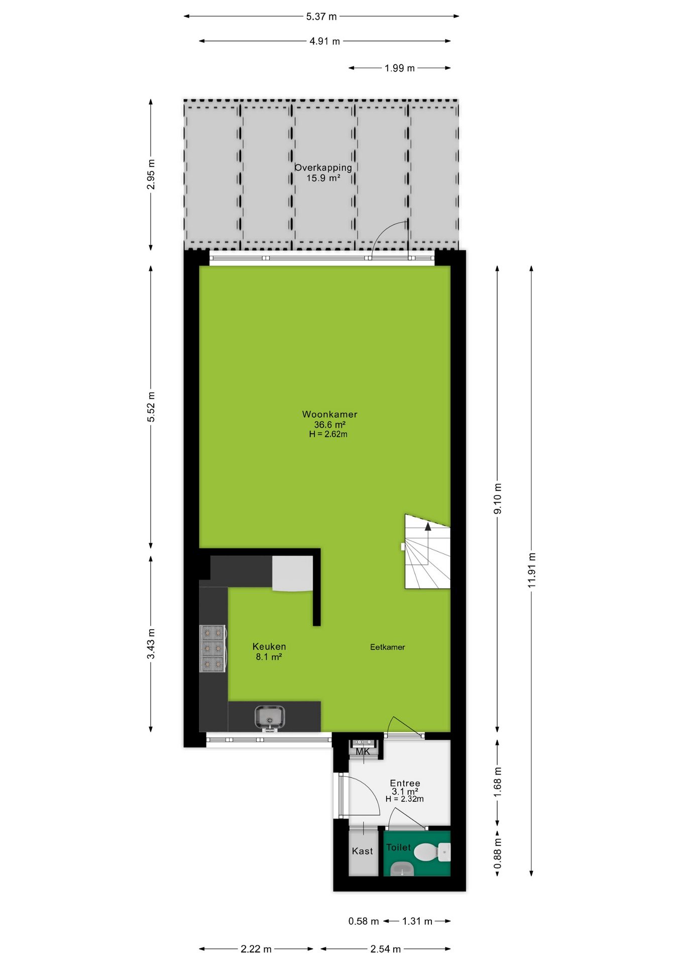
Via een ruime voortuin met eigen parkeerplaats en berging bereik je de woning. De hal met meterkast, berging en toilet geeft je toegang tot de keuken en woonkamer. De tuingerichte woonkamer heeft een oppervlakte van circa 37m², is voorzien van een laminaatvloer en heerlijk veel lichtinval door het grote raampartij. Via de tuindeur stap je de overkapping in, een ware verlenging van de woonkamer. De keuken in U vormige opstelling is voorzien van diverse gemakken, te weten: een 5 pits kookplaat, koel-vriescombinatie, oven en een vaatwasser.

Eerste verdieping
De overloop geeft toegang tot drie slaapkamers en de badkamer. De slaapkamers hebben goede afmetingen van circa 13m², 12m² en 7m² en zijn eveneens voorzien van een laminaatvloer. De grootste slaapkamer is gelegen aan de voorzijde van de woning en over de gehele breedte van de woning. De moderne badkamer (2022) is voorzien van een inloopdouche, wastafel en toilet.

Tweede verdieping
Via een vaste trap bereik je de volwaardig tweede verdieping. Deze verdieping is voorzien van een ruime overloop (17m²) waar de C.V.-ketel staat opgesteld en de witgoed-aansluiting is. Tevens tref je op deze verdieping een vierde slaapkamer. Deze slaapkamer heeft een afmeting van circa 9m² en is voorzien van een groot dakraam.

Buitenleven
De ruime en diepe tuin is georiënteerd op het noorden en biedt zowel zonnige plekjes als koele, schaduwrijke hoekjes. In de achtertuin kun je onder de overkapping heerlijk in de schaduw ontspannen, terwijl je in de voortuin volop van de zon kunt genieten. Ook in de achtertuin vind je ideale plekjes om in de zon ter genieten. Er is volop ruimte om diverse zit- en speelplekken in te richten en te genieten van een uitzicht op groen. Bovendien tref je in de voortuin een praktische (fietsen)berging en eigen parkeergelegenheid.

Kenmerken:
Verwarming: Huur C.V.-combiketel (bouwjaar 2023)
Warm water: Huur C.V.-combiketel (bouwjaar 2023)
Isolatie: dakisolatie, muurisolatie, en dubbel glas
Bouwjaar: 1976
Tuinligging: noorden (achtertuin) en zuiden (voortuin)
Aanvaarding: in overleg

Koopovereenkomst:
Bij de verkoop zal er een standaard NVM koopovereenkomst worden gehanteerd. Bij woningen welke ouder zijn dan 20 jaar, worden de volgende clausules opgenomen in de koopovereenkomst:
- Asbestclausule
- Ouderdomsclausule

Koopt u de woning zonder voorbehoud van financiering? Dan zullen wij een termijn hanteren van 14 dagen na het opstellen van de koopovereenkomst voor het storten van de bankgarantie/waarborgsom.

Deze informatie is door ons met de nodige zorgvuldigheid samengesteld. Onzerzijds wordt echter geen enkele aansprakelijkheid aanvaard voor enige onvolledigheid, onjuistheid of anderszins, dan wel de gevolgen daarvan. Alle opgegeven maten en oppervlakten zijn indicatief.
+ toon meer
deze woning is Verkocht

Helmondstraat 136 Arnhem

Helmondstraat 136

6843 SJ, Arnhem
Ditters open huis: 5 april 2025 10:00 - 12:00 uur
Landelijke Open Huizen Route NVM: 5 april 2025 11:00 uur - 15:00 uur
Vanaf€ 395.000 k.k.

Schakel een aankoopmakelaar in.

Snel handelen helpt je jouw droomhuis te bemachtigen. Zo vergroot je de kans dat je er op tijd bij bent.
Arnhem
verkocht

Of maak vrijblijvend een zoekprofiel aan.

Vergelijkbare woningen

Hypotheken

Onafhankelijk hypotheekadvies

  • Ligt jouw droomhuis binnen handbereik?
  • Wil je jouw huidige hypotheek verhogen?
  • Is er hypotheekruimte voor verduurzaming?

Blijf op de hoogte

Ontvang als eerste updates over nieuw aanbod en mis geen enkele kans om jouw droomwoning te vinden.

Gratis waardebepaling of verkoopgesprek

Met de vrijblijvende waardecheck weet je snel waar je aan toe bent. Onze makelaars kijken naar de lokale markt en vergelijkbare woningen in jouw buurt om een goede schatting te geven.

Realiseer al jouw woondromen met Ditters

Wij zijn een team van gedreven vastgoedexperts met een passie voor het maken van verbindingen – tussen kopers en verkopers, huurders en verhuurders. Met een frisse kijk op de makelaardij combineren we expertise met creativiteit. Onze makelaars luisteren écht en nemen de tijd om jouw wensen te begrijpen.


Bij Ditters sta je er niet alleen voor. We denken met je mee, begeleiden je in elke stap en zijn altijd bereikbaar voor vragen. Neem gerust contact met ons op – we helpen je graag verder!