Omschrijving

"Instapklare en fraai afgewerkte eengezinswoning met luxe tuinkamer (2021), moderne keuken en zonnige tuin op het zuiden gelegen in het geliefde Vestingstad’’

In de sfeervolle en kindvriendelijke Vestingstad, onderdeel van Schuytgraaf, staat deze instapklare en moderne woning. De ligging is ideaal: voor en achter vrij uitzicht, direct grenzend aan een parkeerhofje en voorzien van een praktische achterom. Bovendien beschikt de woning over een zonnige achtertuin op het zuiden, waar je de hele dag heerlijk kunt genieten.

Deze woning voelt modern en compleet, met duurzaamheid en een hoogwaardige afwerking. Zo is de woning voorzien van energielabel A, volledig geïsoleerd, 8 zonnepanelen, airconditioning en een luxe tuinkamer die kan dienen als tweede woonkamer.

Pluspunten van deze woning
• Gelegen in het geliefde Vestingstad, onderdeel van Schuytgraaf
• Voor- en achter vrij uitzicht, ligging aan parkeerhofje
• Tuin op het zuiden
• Volledig geïsoleerd met energielabel A
• 8 zonnepanelen
• Luxe tuinkamer (tweede woonkamer)
• Airco
• Nieuwe keuken (2021) v.v. inbouwapparatuur
• Moderne badkamer met ruim ligbad en tweede toilet
• Fraaie afwerking, o.a. nieuwe binnendeuren beneden
• 4 slaapkamers + extra kamers op zolder
• 2e verdieping met 2 (slaap)kamers, wasruimte en vliering met bergruimte
• Houten schuur en achterom

Indeling

Begane grond
Bij binnenkomst valt direct de moderne afwerking op, waaronder de recent vernieuwde binnendeuren op de begane grond. Hier kom je in de hal met toegang tot een modern toilet en de trap naar de eerste verdieping. De woonkamer is licht en ruim, met aansluitend de luxe tuinkamer (2021) die een prachtige extra leefruimte vormt. De luxe tuinkamer (2021) is direct verbonden met een groene achtertuin op het zuiden, een houten berging en een achterom die direct uitkomt bij het parkeerhofje, met volop parkeergelegenheid.

Aan de voorzijde van de woning bevindt zich aan de de keuken. De keuken, vernieuwd in 2021, is modern en voorzien van diverse inbouwapparatuur.

Eerste verdieping
Op de eerste verdieping bevinden zich twee ruime slaapkamers en een moderne badkamer. De grootste slaapkamer ligt aan de achterzijde en is circa 17 m². Aan de voorzijde bevindt zich nog een ruime slaapkamer van 14 m². De fraai afgewerkte en comfortabele badkamer is voorzien van een royaal ligbad en tweede toilet.

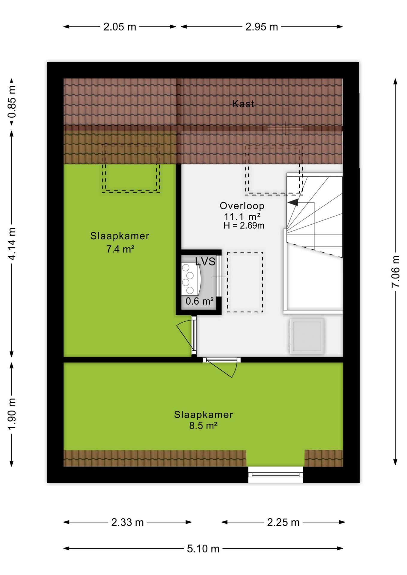
Tweede verdieping
De tweede verdieping is slim ingedeeld: hier is een grote overloop en zijn nog twee extra (slaap)kamers en een praktische wasruimte gecreëerd. Daarnaast is er via een vlizotrap toegang tot de vliering, die volop bergruimte biedt.

Buitenruimte
De woning beschikt over een zonnige achtertuin op het zuiden met een gezellige loungehoek, groene borders en een luxe tuinkamer (2021) die het buitenleven verlengt. De tuin is onderhoudsvriendelijk en sfeervol ingericht, ideaal voor lange zomeravonden of een barbecue met familie en vrienden. Achterin de tuin bevindt zich een houten berging, praktisch voor het opbergen van fietsen, tuinspullen en kinderspeelgoed. Via de achterom kom je direct uit bij het parkeerhofje met volop parkeergelegenheid.

Omgeving
Schuytgraaf ligt op korte afstand van de bruisende binnenstad en beschikt over diverse voorzieningen, zoals: meerdere basisscholen, een internationale school, sportcomplexen, horecagelegenheden en supermarkten. Tevens door het openbare vervoer (station Arnhem-Zuid) en de uitvalswegen A50 en A325 is de woning ideaal gelegen. Verder is de woning gelegen binnen een rustige straat en zijn er diverse speelplekjes en groenstroken in de nabije omgeving.

Koopovereenkomst:
Bij de verkoop zal er een standaard NVM koopovereenkomst worden gehanteerd.

Koop je de woning zonder voorbehoud van financiering? Dan zullen wij een termijn hanteren van 6 weken na het opstellen van de koopovereenkomst voor het storten van de bankgarantie/waarborgsom.

Deze informatie is door ons met de nodige zorgvuldigheid samengesteld. Onzerzijds wordt echter geen enkele aansprakelijkheid aanvaard voor enige onvolledigheid, onjuistheid of anderszins, dan wel de gevolgen daarvan. Alle opgegeven maten en oppervlakten zijn indicatief.
+ toon meer
deze woning is Verkocht

Hoedenmakersveste 22 Arnhem

Hoedenmakersveste 22

6846 BG, Arnhem
Ditters open huis: 5 april 2025 10:00 - 12:00 uur
Landelijke Open Huizen Route NVM: 5 april 2025 11:00 uur - 15:00 uur
Vanaf€ 485.000 k.k.

Schakel een aankoopmakelaar in.

Snel handelen helpt je jouw droomhuis te bemachtigen. Zo vergroot je de kans dat je er op tijd bij bent.
Arnhem
verkocht

Of maak vrijblijvend een zoekprofiel aan.

Vergelijkbare woningen

Hypotheken

Onafhankelijk hypotheekadvies

  • Ligt jouw droomhuis binnen handbereik?
  • Wil je jouw huidige hypotheek verhogen?
  • Is er hypotheekruimte voor verduurzaming?

Blijf op de hoogte

Ontvang als eerste updates over nieuw aanbod en mis geen enkele kans om jouw droomwoning te vinden.

Gratis waardebepaling of verkoopgesprek

Met de vrijblijvende waardecheck weet je snel waar je aan toe bent. Onze makelaars kijken naar de lokale markt en vergelijkbare woningen in jouw buurt om een goede schatting te geven.

Realiseer al jouw woondromen met Ditters

Wij zijn een team van gedreven vastgoedexperts met een passie voor het maken van verbindingen – tussen kopers en verkopers, huurders en verhuurders. Met een frisse kijk op de makelaardij combineren we expertise met creativiteit. Onze makelaars luisteren écht en nemen de tijd om jouw wensen te begrijpen.


Bij Ditters sta je er niet alleen voor. We denken met je mee, begeleiden je in elke stap en zijn altijd bereikbaar voor vragen. Neem gerust contact met ons op – we helpen je graag verder!