Omschrijving

Op een geliefde plek dichtbij het winkelcentrum bevindt zich dit sfeervolle 3-kamerappartement met balkon op het zonnige zuidwesten. De ligging is perfect te noemen; gelegen op de derde etage en heerlijk vrij aan de achterzijde. Kortom een ideaal en rustige plekje!

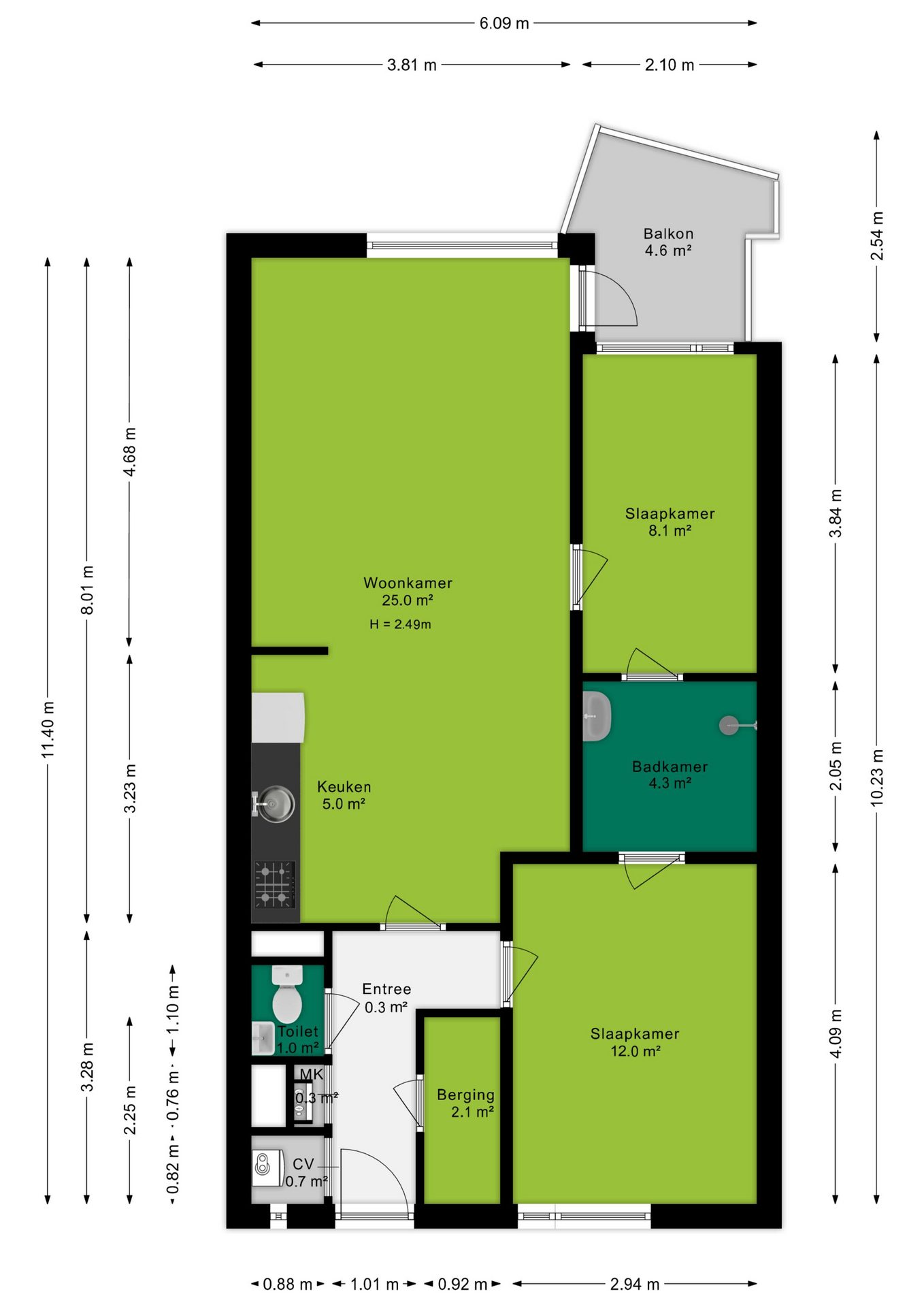
De volgende kenmerken van dit appartement spreken je vast aan: woonkamer met heerlijk veel lichtinval, open keuken voorzien van eenvoudige keuken, badkamer van circa 4m² bereikbaar vanaf 2 goed bemeten slaapkamers en daarnaast is er een heerlijk balkon op het zonnige zuidwesten. Plan gauw een afspraak in, wij laten je het appartement graag zien!

Het appartementencomplex is gelegen in de geliefde wijk 'De Laar Oost' en ligt bij het winkelcentrum 'De Laar', het openbaar vervoer, scholen, sportfaciliteiten en diverse uitvalswegen. Bij het winkelcentrum 'De Laar' tref je o.a. een supermarkt, drogist, bakker, kapper en snackbar. Aan de voorzijde van het appartement bevindt zich een ruim parkeerterrein.

Kenmerken:
+ 3-kamer appartement met balkon op het zuidwesten
+ Gelegen op geliefde locatie nabij winkelcentrum
+ Woonkamer met heerlijk veel lichtinval en vrij uitzicht
+ Fijne berging in het appartement en een berging in de onderbouw
+ Voorzien van 2 goed bemeten slaapkamers
+ Het complex is voorzien van een intercom en lift
+ Actieve Vereniging van Eigenaren, maandelijkse bijdrage bedraagt € 140,95 per maand
+ Gelegen nabij diverse dagelijkse voorzieningen en uitvalswegen

Indeling
Het appartement:
Via de entree met hal, bergruimte, meterkast en toilet bereik je het appartement. De woonkamer is voorzien van een laminaatvloer en met groen en vrij uitzicht kijk je heerlijk weg door de grote raampartij. Met een oppervlakte van ongeveer 25m² biedt de woonkamer voldoende ruimte voor zowel een zithoek als een eettafel.

De open keuken is opgesteld in een lichte kleurstelling, voorzien van een gedeelte vinyl vloer met tegelmotief en de volgende apparatuur: gas kookplaat, oven, afzuigkap en een losse koel-/vriescombinatie. Het appartement telt 2 slaapkamers, voorzien van dezelfde laminaatvloer als in de woonkamer, circa 12m² en 8m² groot en beide voorzien van directe toegang naar de badkamer. De badkamer is getegeld in een lichte kleurstelling en voorzien van douche, wastafel en witgoed aansluiting.

Balkon/berging
Het balkon is gelegen op het zonnige zuidwesten, hier kan je fijn van het buitenleven en het zonnetje genieten. In de onderbouw bevindt zich nog een berging, ideaal voor het stallen van je fiets en het opslaan van spullen.

Koopovereenkomst:
Bij de verkoop zal er een standaard NVM koopovereenkomst, met aanvullend een niet bewonersclausule, worden gehanteerd. Bij woningen welke ouder zijn dan 20 jaar, worden de volgende clausules opgenomen in de koopovereenkomst:
- Asbestclausule
- Ouderdomsclausule

Koop je de woning zonder voorbehoud van financiering? Dan zullen wij een termijn hanteren van 6 weken na het opstellen van de koopovereenkomst voor het storten van de bankgarantie/waarborgsom.

Deze informatie is door ons met de nodige zorgvuldigheid samengesteld. Onzerzijds wordt echter geen enkele aansprakelijkheid aanvaard voor enige onvolledigheid, onjuistheid of anderszins, dan wel de gevolgen daarvan. Alle opgegeven maten en oppervlakten zijn indicatief.
+ toon meer
deze woning is Verkocht

Oostburgwal 67 Arnhem

Oostburgwal 67

6845 CW, Arnhem
Ditters open huis: 5 april 2025 10:00 - 12:00 uur
Landelijke Open Huizen Route NVM: 5 april 2025 11:00 uur - 15:00 uur
Vanaf€ 259.500 k.k.

Schakel een aankoopmakelaar in.

Snel handelen helpt je jouw droomhuis te bemachtigen. Zo vergroot je de kans dat je er op tijd bij bent.
Arnhem
verkocht

Of maak vrijblijvend een zoekprofiel aan.

Vergelijkbare woningen

Hypotheken

Onafhankelijk hypotheekadvies

  • Ligt jouw droomhuis binnen handbereik?
  • Wil je jouw huidige hypotheek verhogen?
  • Is er hypotheekruimte voor verduurzaming?

Blijf op de hoogte

Ontvang als eerste updates over nieuw aanbod en mis geen enkele kans om jouw droomwoning te vinden.

Gratis waardebepaling of verkoopgesprek

Met de vrijblijvende waardecheck weet je snel waar je aan toe bent. Onze makelaars kijken naar de lokale markt en vergelijkbare woningen in jouw buurt om een goede schatting te geven.

Realiseer al jouw woondromen met Ditters

Wij zijn een team van gedreven vastgoedexperts met een passie voor het maken van verbindingen – tussen kopers en verkopers, huurders en verhuurders. Met een frisse kijk op de makelaardij combineren we expertise met creativiteit. Onze makelaars luisteren écht en nemen de tijd om jouw wensen te begrijpen.


Bij Ditters sta je er niet alleen voor. We denken met je mee, begeleiden je in elke stap en zijn altijd bereikbaar voor vragen. Neem gerust contact met ons op – we helpen je graag verder!