Omschrijving

"Instapklare twee-onder-een-kapwoning met energielabel A, vier slaapkamers, zes zonnepanelen en een royale garage in het geliefde Schuytgraaf – De Waarden"

Gelegen in de geliefde en kindvriendelijke wijk Schuytgraaf in Arnhem-Zuid bevindt zich deze fantastische en royale 2-onder-1-kapwoning met een woonoppervlakte van 130m². De ligging van de woning is ook nog eens perfect te noemen: aan de rand van de wijk De Waarden met vrij uitzicht, direct grenzend aan het groen en nabij het water. Daarnaast is de woning ook nog eens klaar voor de toekomst: voorzien van stadsverwarming, zes zonnepanelen en energielabel A.

De volgende aspecten van deze fantastische woning zullen je ook verrassen: een sfeervolle en royale woonkamer met heerlijk veel lichtinval, een woonkeuken met diverse inbouwapparatuur, voorzien van vier slaapkamers, een aparte wasruimte, een ruime badkamer én een heerlijk achtertuin gelegen op het noorden waar je elk moment van de dag kan genieten van de zon.

Schuytgraaf ligt op korte afstand van de bruisende binnenstad en beschikt over diverse voorzieningen, zoals: meerdere basisscholen, een internationale school, sportcomplexen, horecagelegenheden en supermarkten. Tevens door het openbare vervoer (station Arnhem-Zuid) en de uitvalswegen A50 en A325 is de woning ideaal gelegen. Verder is de woning gelegen binnen een rustige straat en zijn er diverse speelplekjes en groenstroken in de nabije omgeving.

Pluspunten
+ Fantastische 2-onder-1-kapwoning
+ Gelegen aan de rand van de woonwijk met vrij uitzicht, direct grenzend aan het groen en nabij water
+ Energielabel A
+ Zes zonnepanelen
+ Volledig geïsoleerd en voorzien HR++ glas
+ Woonkeuken voorzien van diverse inbouwapparatuur
+ Voorzien van vier goed bemeten slaapkamers
+ Fraai aangelegde tuin op het noorden
+ Grote garage (17,5 m²)
+ Instapklaar
+ Gelegen nabij diverse voorzieningen

Indeling
Begane grond
Via de overkapping stap je binnen in de ruime entree met toegang tot het toilet (met fonteintje), trapopgang en alle vertrekken op deze verdieping. De woonkamer van bijna 28 m² is heerlijk licht dankzij de grote raampartijen en staat in open verbinding met de ruime keuken van ruim 15 m². Deze is uitgerust met een inductiekookplaat, combi-oven, koelkast, vriezer en vaatwasser. Daarnaast bevindt zich in de woonkamer nog en handige berging van ca. 3 m², ideaal voor voorraad.

Eerste verdieping
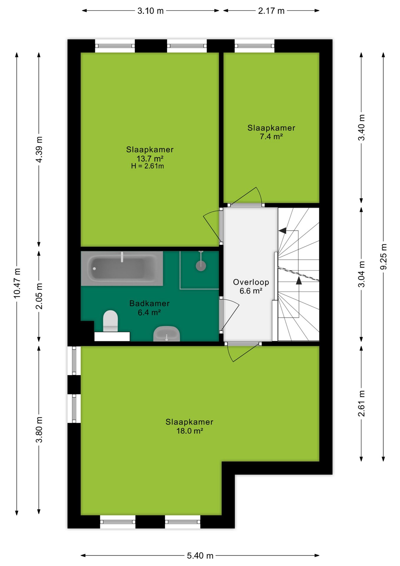
Een royale overloop (6,6 m²) geeft toegang tot drie slaapkamers: een ruime kamer aan de voorzijde (18 m²) met veel lichtinval, en twee kamers aan de achterzijde (14 m² en 7 m²). De badkamer is compleet uitgerust met ligbad, douche, wastafel en een tweede (zwevend) toilet.

Tweede verdieping
Via een vaste trap bereik je de tweede verdieping. Hier bevindt zich een grote overloop (9 m²) met wasmachine- en drogeraansluiting. Daarnaast bevindt zich hier ook nog een volwaardige vierde slaapkamer (12,4 m²), perfect als ouderslaapkamer, werkkamer of hobbyruimte.

Buitenruimte
De fraai aangelegde tuin ligt op het noorden, met een oppervlakte van 72 m². Dankzij de slimme indeling en het open karakter van de straat ervaar je hier toch volop zon. De tuin biedt een royaal terras en toegang tot de ruime garage van 17,5 m².

Laat je verrassen door de ruimte, de afwerking en de ligging. Maak snel een afspraak voor een bezichtiging van deze complete en duurzame gezinswoning!

Kenmerken:
Verwarming: Stadsverwarming
Warm water: Stadsverwarming
Isolatie: Volledig geïsoleerd
Bouwjaar: 2008
Tuinligging: Noorden
Aanvaarding: In overleg

Koopovereenkomst:
Bij de verkoop zal er een standaard NVM koopovereenkomst worden gehanteerd. Bij woningen welke ouder zijn dan 20 jaar, worden de volgende clausules opgenomen in de koopovereenkomst:
- Asbestclausule;
- Ouderdomsclausule.

Koop je de woning zonder voorbehoud van financiering? Dan zullen wij een termijn hanteren van 6 weken na het opstellen van de koopovereenkomst voor het storten van de bankgarantie/waarborgsom.
+ toon meer
deze woning is Verkocht

Pachterwaard 39 Arnhem

Pachterwaard 39

6846 ES, Arnhem
Ditters open huis: 5 april 2025 10:00 - 12:00 uur
Landelijke Open Huizen Route NVM: 5 april 2025 11:00 uur - 15:00 uur
Vanaf€ 599.500 k.k.

Schakel een aankoopmakelaar in.

Snel handelen helpt je jouw droomhuis te bemachtigen. Zo vergroot je de kans dat je er op tijd bij bent.
Arnhem
verkocht

Of maak vrijblijvend een zoekprofiel aan.

Vergelijkbare woningen

Hypotheken

Onafhankelijk hypotheekadvies

  • Ligt jouw droomhuis binnen handbereik?
  • Wil je jouw huidige hypotheek verhogen?
  • Is er hypotheekruimte voor verduurzaming?

Blijf op de hoogte

Ontvang als eerste updates over nieuw aanbod en mis geen enkele kans om jouw droomwoning te vinden.

Gratis waardebepaling of verkoopgesprek

Met de vrijblijvende waardecheck weet je snel waar je aan toe bent. Onze makelaars kijken naar de lokale markt en vergelijkbare woningen in jouw buurt om een goede schatting te geven.

Realiseer al jouw woondromen met Ditters

Wij zijn een team van gedreven vastgoedexperts met een passie voor het maken van verbindingen – tussen kopers en verkopers, huurders en verhuurders. Met een frisse kijk op de makelaardij combineren we expertise met creativiteit. Onze makelaars luisteren écht en nemen de tijd om jouw wensen te begrijpen.


Bij Ditters sta je er niet alleen voor. We denken met je mee, begeleiden je in elke stap en zijn altijd bereikbaar voor vragen. Neem gerust contact met ons op – we helpen je graag verder!