Omschrijving

Gelegen in de geliefde wijk Rijkerswoerd bevindt zich deze duurzame eengezinswoning welke is voorzien van maar liefst 23 zonnepanelen, een warmtepomp, volledige isolatie en energielabel A! De woning is volledig energieneutraal en gasloos. Klaar voor de toekomst en lage energielasten.

De volgende kenmerken van deze duurzame woning spreken je vast aan: woonkamer met heerlijk veel lichtinval door de grote raampartijen, open keuken voorzien van diverse inbouwapparatuur, voorzien van 3 royale slaapkamers, moderne badkamer en een heerlijk diepe achtertuin gelegen op het noordwesten. Daarnaast is iedere verdieping voorzien van airconditioning, welke kan koelen en verwarmen.

De woning is volledig gasloos en beschikt over een geavanceerde warmtepomp met LTV-radiatoren met DBE's (Dynamic Boost Effect) en vloerverwarming. Dit systeem zorgt voor een efficiënte en gelijkmatige verwarming van de woning. Daarnaast is er een 200-liter vat voor warm water aanwezig, zodat je altijd voldoende warm water hebt. Het energielabel is op dit moment A maar met de aanpassingen die gedaan zijn in de woning kan het een A+++ label worden.

De gevelbekleding van de woning is voorzien van Trespa, een duurzaam en onderhoudsarm materiaal dat de woning niet alleen een moderne uitstraling geeft, maar ook zorgt voor een lange levensduur en eenvoudige reiniging.

De woning ligt in de geliefde wijk 'Rijkerswoerd'. Deze wijk ligt in Arnhem-Zuid en heeft een zeer gunstige ligging. De woonwijk wordt gekenmerkt door haar moderne architectuur en ruime opzet. Met 15 minuten ben je in de binnenstad van Arnhem! Op korte loopafstand zijn het winkelcentrum, scholen, kinderopvang, openbaar vervoersvoorzieningen en diverse wandelgebieden aanwezig. De belangrijke uitvalswegen waaronder de Pleyroute naar Arnhem Noord, A15, de A325 en de A50 zijn ook snel te bereiken.

Pluspunten van de woning
+ Duurzame eengezinswoning op een groot perceel;
+ Gelegen in de geliefde wijk Rijkerswoerd;
+ Volledig energieneutraal en gasloos;
+ Woonkamer met heerlijk veel lichtinval;
+ Open keuken voorzien van diverse apparatuur;
+ Voorzien van 3 royale slaapkamers;
+ Moderne badkamer;
+ Heerlijke diepe achtertuin;
+ Onderhoudsvriendelijke afwerking van de gevel;
+ In 2016 gerenoveerd;
+ Voorzien van 23 zonnepanelen;
+ Voorzien van airconditioning op elke verdieping;
+ Gelegen nabij diverse voorzieningen en uitvalswegen

Indeling

Begane grond
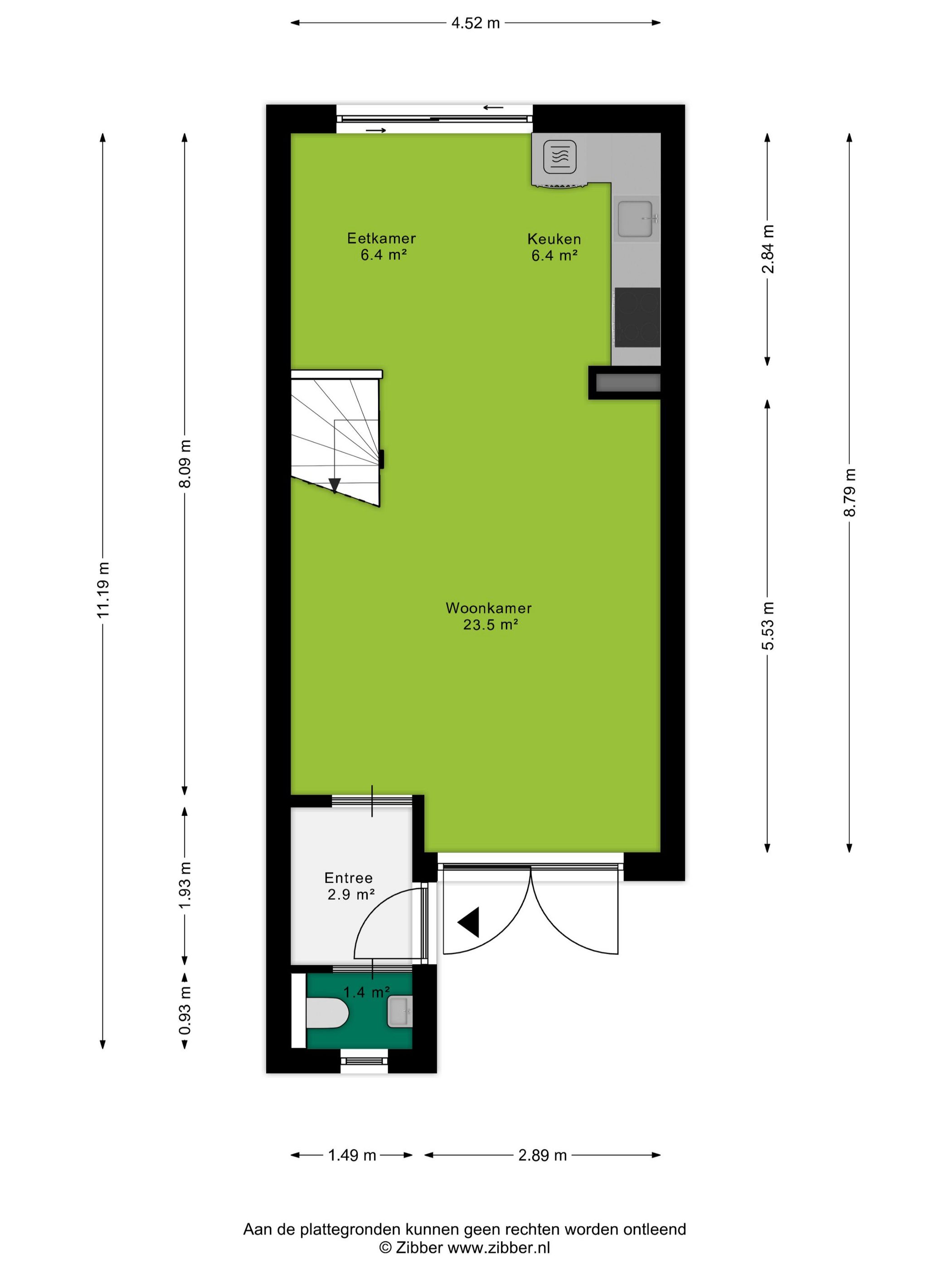
Via de entree met hal en modern toilet bereik je de woning. De woonkamer is goed bemeten, is voorzien van een keramische tegelvloer en heerlijk veel lichtinval door de vele raampartijen. De keuken bevindt zich aan de achterzijde van de woning en is opgesteld in een witte kleurstelling. De keuken heeft een composiet werkblad en is voorzien van diverse inbouwapparatuur, te weten: een kookplaat, afzuigkap, combi-oven/magnetron, koelkast en een vaatwasser. Door de goede afmeting in de keuken is er ruimte genoeg voor een eettafel. De gehele begane grond is voorzien van vloerverwarming.

Eerste verdieping
Via de overloop bereik je de eerste 2 slaapkamers en de badkamer. De slaapkamers hebben royale afmetingen van 17,1m² en 12,9m², zijn voorzien van een PVC-vloer en veel lichtinval. De moderne badkamer is opgesteld in een moderne kleurstelling en voorzien van een ruime inloopdouche (regendouche), wastafel met wastafelmeubel en een toilet.

Tweede verdieping
Via een vaste trap bereik je de volwaardig 2e verdieping. Hier bevindt zich de 3e slaapkamer met een afmeting van 21m² en ook hier is veel lichtinval aanwezig door de dakramen. Tevens is er een bergruimte aanwezig waar de wasmachine-aanwezig is en de warmtepomp staat opgesteld.

Tuin
De heerlijk diepe tuin is gelegen op het noordwesten en door de prettige afmeting is er altijd wel een plekje in het zonnetje of de schaduw te vinden. De tuin is fraai aangelegd en hier kan je optimaal van het buitenleven genieten. Achterin is nog een ideale berging aanwezig, handig voor het opslaan van je spullen of het stallen van je fiets. Tevens is er nog een achterom aanwezig.

Kenmerken
Verwarming: vloerverwarming (begane grond) en warmtepomp
Warm water: elektrische boiler (eigendom)
Bouwjaar: 1999
Isolatie: volledig geïsoleerd
Tuinligging: noordwesten
Aanvaarding: in overleg

Koopovereenkomst:
Bij de verkoop zal er een standaard NVM koopovereenkomst worden gehanteerd. Bij woningen welke ouder zijn dan 20 jaar, worden de volgende clausules opgenomen in de koopovereenkomst:
- Asbestclausule;
- Ouderdomsclausule.

Koop je de woning zonder voorbehoud van financiering? Dan zullen wij een termijn hanteren van 14 dagen na het opstellen van de koopovereenkomst voor het storten van de bankgarantie/waarborgsom.

Deze informatie is door ons met de nodige zorgvuldigheid samengesteld. Onzerzijds wordt echter geen enkele aansprakelijkheid aanvaard voor enige onvolledigheid, onjuistheid of anderszins, dan wel de gevolgen daarvan. Alle opgegeven maten en oppervlakten zijn indicatief.
+ toon meer
deze woning is Verkocht

Peppelenwei 65 Arnhem

Peppelenwei 65

6836 EN, Arnhem
Ditters open huis: 5 april 2025 10:00 - 12:00 uur
Landelijke Open Huizen Route NVM: 5 april 2025 11:00 uur - 15:00 uur
Vanaf€ 419.500 k.k.

Schakel een aankoopmakelaar in.

Snel handelen helpt je jouw droomhuis te bemachtigen. Zo vergroot je de kans dat je er op tijd bij bent.
Arnhem
verkocht

Of maak vrijblijvend een zoekprofiel aan.

Vergelijkbare woningen

Hypotheken

Onafhankelijk hypotheekadvies

  • Ligt jouw droomhuis binnen handbereik?
  • Wil je jouw huidige hypotheek verhogen?
  • Is er hypotheekruimte voor verduurzaming?

Blijf op de hoogte

Ontvang als eerste updates over nieuw aanbod en mis geen enkele kans om jouw droomwoning te vinden.

Gratis waardebepaling of verkoopgesprek

Met de vrijblijvende waardecheck weet je snel waar je aan toe bent. Onze makelaars kijken naar de lokale markt en vergelijkbare woningen in jouw buurt om een goede schatting te geven.

Realiseer al jouw woondromen met Ditters

Wij zijn een team van gedreven vastgoedexperts met een passie voor het maken van verbindingen – tussen kopers en verkopers, huurders en verhuurders. Met een frisse kijk op de makelaardij combineren we expertise met creativiteit. Onze makelaars luisteren écht en nemen de tijd om jouw wensen te begrijpen.


Bij Ditters sta je er niet alleen voor. We denken met je mee, begeleiden je in elke stap en zijn altijd bereikbaar voor vragen. Neem gerust contact met ons op – we helpen je graag verder!