Omschrijving

Deze ruime hoekwoning uit 2009 biedt maar liefst 163 m² woonoppervlakte verdeeld over vier woonlagen. Met een speelse indeling, vier slaapkamers, veel leefruimte en een zonnige tuin is dit een ideale gezinswoning. Dankzij energielabel A en stadsverwarming woon je hier bovendien duurzaam en comfortabel.

De woning ligt in de groene wijk Presikhaaf, in de buurt Blauwe Weide. Hier woon je rustig, maar met alle voorzieningen dichtbij: een klein en groot winkelcentrum, scholen, sportfaciliteiten en een gezondheidscentrum. Ook station Presikhaaf en diverse busverbindingen liggen op loopafstand. Met de auto bereik je snel de A12 en A50.

De wijk kenmerkt zich door veel groen, waterpartijen en speelvoorzieningen. Voor kinderen zijn er speeltuinen en een kinderboerderij dichtbij. Ook de binnenstad van Arnhem en winkelcentrum Presikhaaf zijn eenvoudig te bereiken.

Pluspunten van deze woning
+ 163 m² woonoppervlakte verdeeld over vier woonlagen
+ Speelse indeling met veel leefruimte
+ Vier ruime slaapkamers en voldoende bergruimte
+ Woonkeuken met inbouwapparatuur en directe toegang tot de tuin
+ Royale woonverdieping op de eerste etage met groen uitzicht
+ Tuin op het zuidoosten

Indeling
Begane grond
De entree geeft toegang tot de hal met toilet en trapopgang. De woonkeuken in hoekopstelling is voorzien van diverse inbouwapparatuur en biedt ruimte voor een eettafel. Via de deur stap je direct de tuin in. Daarnaast is er een berging aanwezig voor extra opslag.

Eerste verdieping
Op de eerste verdieping bevindt zich de royale woonkamer van circa 41 m² met laminaatvloer. Grote raampartijen aan beide zijden zorgen voor veel lichtinval. Ook geniet je hier van vrij en groen uitzicht. Aan de achterzijde is een klein balkon aanwezig.

Tweede verdieping
De tweede verdieping biedt een overloop met toegang tot twee slaapkamers van circa 14 m² en 13 m², een badkamer en een separaat toilet. De badkamer is uitgerust met een ligbad, douche, wastafel en handdoekradiator.

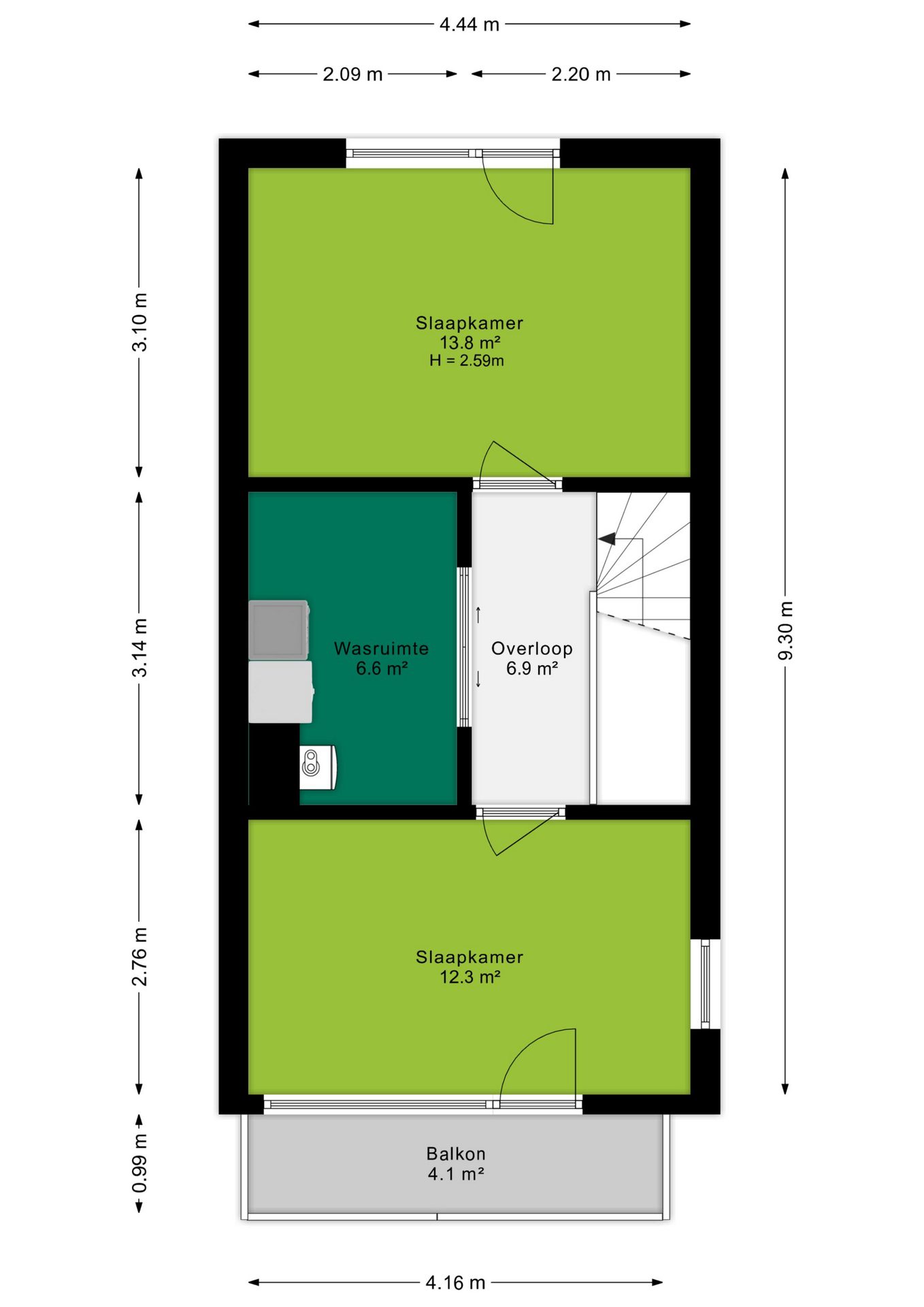
Derde verdieping
Hier vind je nog eens twee slaapkamers van circa 14 m² en 12 m², een was-/bergruimte van ca. 6 m² en een klein balkon aan de achterzijde. Indien gewenst kan in de wasruimte een tweede badkamer gerealiseerd worden.

Buitenruimte
De tuin is gelegen op het zuidoosten en voorzien van bestrating, borders, een overkapping en een berging met achterom.

Samenvatting
Zoomstraat 13 is een moderne en speels ingedeelde hoekwoning met veel ruimte, licht en comfort. Dankzij de vier woonlagen, woonkeuken en tuin op het zuidoosten is dit een ideaal huis voor gezinnen of voor wie thuis wil werken of hobbyen.

Koopovereenkomst:
Bij de verkoop zal er een standaard NVM koopovereenkomst worden gehanteerd.

Koop je de woning zonder voorbehoud van financiering? Dan zullen wij een termijn hanteren van 6 weken na het opstellen van de koopovereenkomst voor het storten van de bankgarantie/waarborgsom.
+ toon meer
deze woning is Verkocht

Zoomstraat 13 Arnhem

Zoomstraat 13

6826 BS, Arnhem
Ditters open huis: 5 april 2025 10:00 - 12:00 uur
Landelijke Open Huizen Route NVM: 5 april 2025 11:00 uur - 15:00 uur
Vanaf€ 569.500 k.k.

Schakel een aankoopmakelaar in.

Snel handelen helpt je jouw droomhuis te bemachtigen. Zo vergroot je de kans dat je er op tijd bij bent.
Arnhem
verkocht

Of maak vrijblijvend een zoekprofiel aan.

Vergelijkbare woningen

Hypotheken

Onafhankelijk hypotheekadvies

  • Ligt jouw droomhuis binnen handbereik?
  • Wil je jouw huidige hypotheek verhogen?
  • Is er hypotheekruimte voor verduurzaming?

Blijf op de hoogte

Ontvang als eerste updates over nieuw aanbod en mis geen enkele kans om jouw droomwoning te vinden.

Gratis waardebepaling of verkoopgesprek

Met de vrijblijvende waardecheck weet je snel waar je aan toe bent. Onze makelaars kijken naar de lokale markt en vergelijkbare woningen in jouw buurt om een goede schatting te geven.

Realiseer al jouw woondromen met Ditters

Wij zijn een team van gedreven vastgoedexperts met een passie voor het maken van verbindingen – tussen kopers en verkopers, huurders en verhuurders. Met een frisse kijk op de makelaardij combineren we expertise met creativiteit. Onze makelaars luisteren écht en nemen de tijd om jouw wensen te begrijpen.


Bij Ditters sta je er niet alleen voor. We denken met je mee, begeleiden je in elke stap en zijn altijd bereikbaar voor vragen. Neem gerust contact met ons op – we helpen je graag verder!