Omschrijving

Op een fantastisch perceel van 409m², nabij diverse dagelijkse voorzieningen bevindt zich deze royale 2-onder-1-kapwoning met garage. De woning is goed geïsoleerd, voorzien van 12 stuks zonnepanelen en heeft een energielabel A!

De volgende aspecten van deze woning spreken je vast aan: royale woonkamer van maar liefst 36m², moderne badkamer, 4 volwaardige slaapkamers, een garage, parkeergelegenheid op eigen terrein en een heerlijke diepe tuin van 11 meter.

Deze 2-onder-1-kapwoning ligt in een populaire wijk in een kindvriendelijke buurt met meerdere speelgelegenheden. Diverse voorzieningen zoals basisscholen (Het Klokhuis, het Veer en kinderopvang) zijn net als de supermarkt, op zeer korte afstand. Duiven is een zeer geliefde woonplaats met tal van faciliteiten zoals diverse sportaccommodaties, NS station, winkels, horeca en basisscholen/voortgezet onderwijs.

Kortom: de combinatie van de groene woonomgeving, de royale afmetingen en de nabijheid van diverse voorzieningen maakt dit woonhuis een ideale eengezinswoning!

Alle feiten op een rij:
+ Ruime 2-onder-kap woning met garage en eigen parkeergelegenheid voor meerdere auto's
+ Maar liefst 130m² woonoppervlakte en 4 volwaardige slaapkamers
+ Diepe tuin gelegen op het zonnige zuiden
+ Volledig geïsoleerd, 12 stuks zonnepanelen en energielabel A
+ Buiten schilderwerk is in 2022 uitgevoerd
+ Gelegen in een gewilde woonwijk met dagelijkse voorzieningen in de buurt

Indeling

Begane grond
Vanaf de hal, waar zich tevens een toilet, meterkast en trapopgang bevinden, betreed je de woonkamer. Deze ruimte is voorzien van een PVC vloer in een lichte houtlook, wat zorgt voor een warme en uitnodigende sfeer om met het gezin te ontspannen of samen een film te kijken. De eetkamer vormt het hart van de woning en biedt een naadloze verbinding met zowel de woonkamer als de half open keuken. Vanuit de eetkamer is er middels de schuifpui toegang naar de achtertuin. De keuken, gelegen aan de achterzijde, heeft een hoekopstelling en is uitgerust met diverse inbouwapparaten en bovenkasten voor extra bergruimte. De praktische bijkeuken beschikt over aansluitingen voor het witgoed, een uitstortgootsteen en toegang naar zowel de tuin als de inpandige garage.

Eerste verdieping
De overloop leidt naar twee slaapkamers, een handige bergkast en de badkamer. De grootste slaapkamer, met een oppervlakte van ongeveer 19 m², beschikt over een airco, vaste kastenwand en kan indien gewenst worden opgedeeld in twee aparte slaapkamers. De tweede slaapkamer, circa 8 m² groot, heeft een dakraam dat zorgt voor extra lichtinval. De moderne badkamer is uitgerust met vloerverwarming, een ruime douche, een wastafelmeubel en een toilet. Dankzij het aanwezige dakraam geniet je hier van veel natuurlijk daglicht, en naast de mechanische ventilatie is er ook de mogelijkheid tot natuurlijke ventilatie.

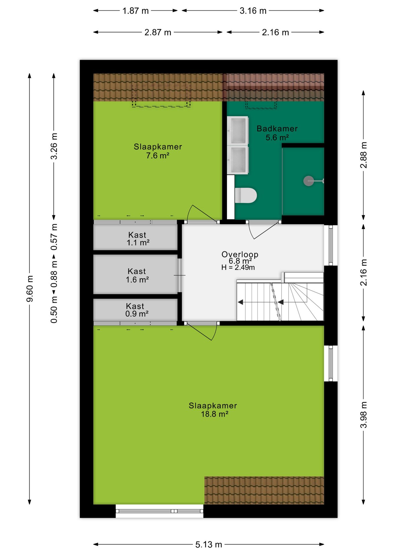
Tweede verdieping
Via de vaste trap bereik je de tweede verdieping met twee ruime slaapkamers van circa 14m² en 10m². De vaste bergkast biedt een fijne extra bergruimte. Deze slaapkamers zijn multifunctioneel en kunnen gebruikt worden als werk-, hobby- of logeerkamer.

Buitenruimte
De tuin is gelegen op het zonnige zuiden en heeft een diepte van circa 11 m². Dankzij de ligging naast de keuken aan de achterzijde is dit de perfecte plek voor gezellige barbecues met familie en vrienden. Bovendien is de tuin gemakkelijk bereikbaar via de achterom. De garage biedt veel bergruimte en is ideaal voor het stallen van fietsen, een motor of tuingereedschap, en kan vanuit de bijkeuken inpandig worden benaderd.

Koopovereenkomst:
Bij de verkoop zal er een standaard NVM koopovereenkomst worden gehanteerd.
Bij woningen welke ouder zijn dan 20 jaar, worden de volgende clausules opgenomen in de koopovereenkomst:
- Asbestclausule
- Ouderdomsclausule

Koop je de woning zonder voorbehoud van financiering? Dan zullen wij een termijn hanteren van 6 weken na het opstellen van de koopovereenkomst voor het storten van de bankgarantie/waarborgsom.
+ toon meer
deze woning is Verkocht

Bellefleur 99 Duiven

Bellefleur 99

6922 AJ, Duiven
Ditters open huis: 5 april 2025 10:00 - 12:00 uur
Landelijke Open Huizen Route NVM: 5 april 2025 11:00 uur - 15:00 uur
Vanaf€ 549.000 k.k.

Schakel een aankoopmakelaar in.

Snel handelen helpt je jouw droomhuis te bemachtigen. Zo vergroot je de kans dat je er op tijd bij bent.
Duiven
verkocht

Of maak vrijblijvend een zoekprofiel aan.

Vergelijkbare woningen

Hypotheken

Onafhankelijk hypotheekadvies

  • Ligt jouw droomhuis binnen handbereik?
  • Wil je jouw huidige hypotheek verhogen?
  • Is er hypotheekruimte voor verduurzaming?

Blijf op de hoogte

Ontvang als eerste updates over nieuw aanbod en mis geen enkele kans om jouw droomwoning te vinden.

Gratis waardebepaling of verkoopgesprek

Met de vrijblijvende waardecheck weet je snel waar je aan toe bent. Onze makelaars kijken naar de lokale markt en vergelijkbare woningen in jouw buurt om een goede schatting te geven.

Realiseer al jouw woondromen met Ditters

Wij zijn een team van gedreven vastgoedexperts met een passie voor het maken van verbindingen – tussen kopers en verkopers, huurders en verhuurders. Met een frisse kijk op de makelaardij combineren we expertise met creativiteit. Onze makelaars luisteren écht en nemen de tijd om jouw wensen te begrijpen.


Bij Ditters sta je er niet alleen voor. We denken met je mee, begeleiden je in elke stap en zijn altijd bereikbaar voor vragen. Neem gerust contact met ons op – we helpen je graag verder!