Omschrijving

In de populaire wijk Kernhem staat deze instapklare tussenwoning met maar liefst vijf slaapkamers, een zonnige achtertuin op het westen en een ruime garage met vliering. Met een woonoppervlakte van circa 131 m² biedt deze woning volop ruimte voor gezinnen die comfortabel willen wonen. De moderne keuken (2020), de praktische indeling en de royale slaapkamers maken dit een woning waar je zo in kunt trekken.

De woning ligt in de geliefde en kindvriendelijke wijk Kernhem in Ede. In de directe omgeving bevinden zich diverse speelplekken, scholen en sportvoorzieningen. Voor de dagelijkse boodschappen zijn winkels en supermarkten op loopafstand goed bereikbaar.
Daarnaast ligt het centrum van Ede op korte afstand en zijn uitvalswegen richting onder andere de A30 en A12 eenvoudig te bereiken. Ook natuurliefhebbers zitten hier goed: binnen enkele minuten bereik je de uitgestrekte bossen en heidevelden rondom Ede.

Belangrijkste kenmerken op een rij:
- Instapklare tussenwoning in de wijk Kernhem
- Maar liefst vijf slaapkamers
- Moderne keuken vernieuwd in 2020
- Zonnige achtertuin op het westen
- Garage met vliering
- Dakkapel over de gehele lengte van de woning
- Energielabel A
- Elektrische installatie in de schuur vernieuwd in 2024
- Gelegen aan een groot grasveld: autoluw, groen, ruim en met vrij uitzicht

Indeling
Begane grond
Via de entree kom je binnen in de hal met meterkast en toegang tot het toilet.
Vanuit hier loop je de leefruimte in voorzien van een eikenhouten vloer. Aan de achterzijde van de woning vind je de ruime woonkamer met openslaande deuren naar de tuin. Dit is een fijne, uitnodigende plek waar je heerlijk op de bank kunt neerploffen.

De keuken bevindt zich aan de voorzijde van de woning en is vernieuwd in 2020. De keuken is uitgerust met onder andere een inductiekookplaat, afzuigkap, oven, koel-vriescombinatie, vaatwasser en een Quooker. Onder de trap bevindt zich bovendien extra opbergruimte, ideaal voor huishoudelijke spullen.
Vanuit de woonkamer bereik je een hal aan de achterzijde van de woning. Vanuit deze hal heb je toegang tot de tuin en de trap naar de eerste verdieping.

Eerste verdieping
Op de eerste verdieping bevinden zich drie slaapkamers van circa 16 m², 12 m² en 9 m². De kamers zijn prettig ingedeeld en dankzij de ramen voorzien van een fijne hoeveelheid natuurlijk daglicht, waardoor ze licht en comfortabel aanvoelen. De ruimtes lenen zich uitstekend als slaapkamers, maar kunnen natuurlijk ook prima worden gebruikt als werk-, hobby- of logeerkamer. De badkamer is compleet uitgevoerd en voorzien van een ligbad, douche, toilet en een wastafel, waardoor alle dagelijkse voorzieningen hier praktisch zijn samengebracht.

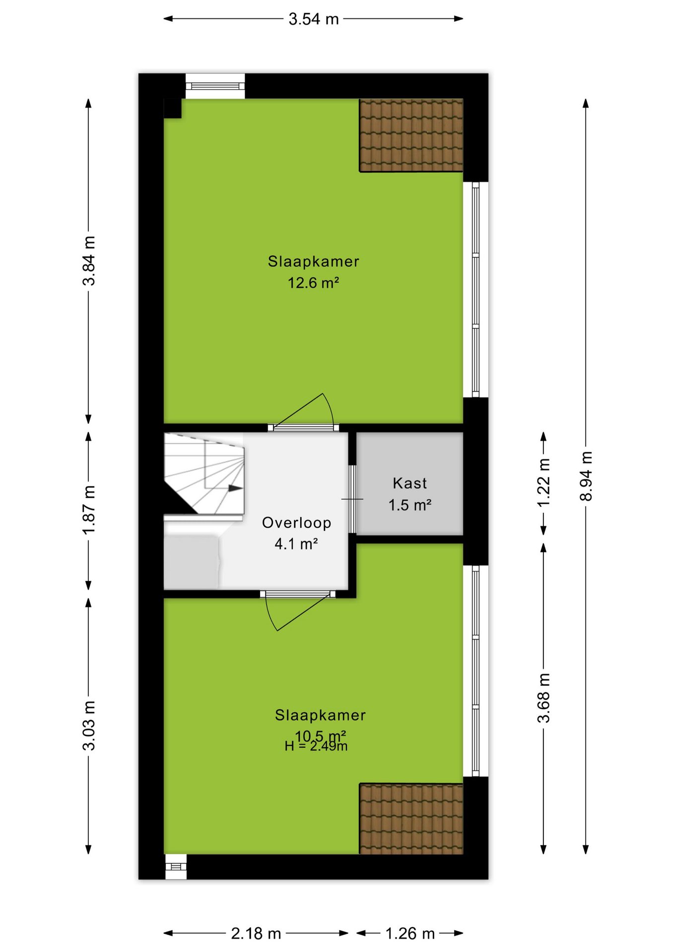
Tweede verdieping
Op de tweede verdieping bevinden zich nog twee ruime slaapkamers van circa 13 m² en 11 m². Dankzij de grote dakkapel over de volledige lengte van de woning voelen deze kamers licht en verrassend ruim aan. Hierdoor zijn het volwaardige kamers die zich uitstekend lenen als slaapkamer, werkruimte of logeerkamer.
Op de overloop vind je de aansluiting voor de wasmachine en een vaste kast, ideaal voor het opbergen van bijvoorbeeld seizoensspullen of huishoudelijke benodigdheden. Hierdoor blijft de verdieping praktisch en overzichtelijk ingedeeld.

Buitenruimte
De achtertuin ligt op het westen, waardoor je hier heerlijk kunt genieten van de middag- en avondzon. De tuin is groen aangelegd en biedt ruimte om verschillende zitplekken te creëren.

Aan de garage is een overkapping geplaatst waar je beschut buiten kunt zitten. Daarnaast is er nog een tweede overkapping die ideaal is voor bijvoorbeeld het stallen van fietsen of om te klussen.
Een groot pluspunt van deze woning is de garage met vliering. Deze ruimte biedt volop mogelijkheden: van het stallen van een motor of auto tot het inrichten van een hobbyruimte of werkplaats. Dankzij de vliering beschik je bovendien over extra opbergruimte.

Koopovereenkomst
Bij de verkoop zal een standaard NVM-koopovereenkomst worden gehanteerd.
Bij woningen ouder dan 20 jaar worden de volgende clausules opgenomen:
- Ouderdomsclausule

Bij aankoop zonder financieringsvoorbehoud geldt een termijn van zes weken na het opstellen van de koopovereenkomst voor het storten van de waarborgsom of bankgarantie.

Deze informatie is met zorg samengesteld. Er wordt geen aansprakelijkheid aanvaard voor eventuele onvolledigheden of onjuistheden. Alle opgegeven maten en oppervlakten zijn indicatief.
+ toon meer

Video

6718 GH, Ede

Grote Houtplein 9

Zaterdag 2 augustus 10:00 - 12:00 uur

€ 509.000 k.k.
ditters makelaars ede
Kopen

Wat is jouw woning écht waard bij Ditters?

Waardecheck

Wij combineren lokale marktkennis met actuele data en ons grote zoekersbestand in de regio.

Je krijgt niet alleen een waarde, maar inzicht in hoe je de maximale verkoopopbrengst kunt realiseren.

Onze aanpak is strategisch, transparant en volledig afgestemd op jouw situatie.

Goed om te weten: deze waardecheck is vrijblijvend en geheel kosteloos
Onafhankelijk

Hypotheekadvies

We helpen je met het vergelijken van aanbiedingen van verschillende banken, zodat je de beste deal krijgt. 
Wij staan klaar om je te begeleiden, zodat je met vertrouwen de juiste hypotheek kunt kiezen.
Goed om te weten: dit adviesgesprek is vrijblijvend en geheel kosteloos

Wij helpen jou bij de keuze van de juiste polis.

Bij een onbezorgde toekomst horen ook goede verzekeringen die uitkeren bij bijvoorbeeld ziekte, schade of diefstal. Onze assurantieadviseurs helpen je bij de keuze van de juiste polis. In heldere taal.

Diverse verzekeringen

  • Opstalverzekering
  • Aansprakelijkheidsverzekering
  • Zorgverzekering
  • Reisverzekering

Buurtinformatie

Ede, De Bossen
Inwoners
Woningen
873
Inwoners
2.645
16
83
Koop / Huur
16% Huur83% Koop
Huishoudens
Eenpersoon
20.9%
Geen kinderen
20.9%
Met kinderen
58.2%
Leeftijdsopbouw in jaren
Buurt Landelijk
27.613.026.827.85.316.312.324.728.218.5

Locatie

Plattegronden

Klik op de plattegrond voor een grote weergave

Belangrijke documenten

Meetrapport

Brochure

Vragenlijst deel C

Lijst van zaken

Vragenlijst deel B

Misschien interessant voor jou

Blijf op de hoogte

Ontvang als eerste updates over nieuw aanbod en mis geen enkele kans om jouw droomwoning te vinden.

Gratis waardebepaling of verkoopgesprek

Met de vrijblijvende waardecheck weet je snel waar je aan toe bent. Onze makelaars kijken naar de lokale markt en vergelijkbare woningen in jouw buurt om een goede schatting te geven.