Omschrijving

Karakter en comfort in één: vrijstaande woning met royale tuin en bijgebouw.

Deze charmante woning uit 1924 staat op een ruim perceel van 415 m² en biedt een unieke combinatie van sfeer en modern gemak. Met drie slaapkamers, een eigentijdse badkamer, een grote tuin met overkapping en een veelzijdig bijgebouw is dit een plek met eindeloze mogelijkheden. Dankzij de eigen oprit is er ruimte om meerdere auto’s te parkeren op eigen terrein. Een ideale woning voor wie vrij wil wonen, op korte afstand van het centrum van Veenendaal.

De woning ligt op een gunstige locatie, op korte afstand van het levendige centrum van Veenendaal. Hier vind je een uitgebreid aanbod aan winkels, supermarkten en gezellige horecagelegenheden. In de directe omgeving bevinden zich diverse basisscholen, sportfaciliteiten en de prachtige bossen van de Utrechtse Heuvelrug. Bovendien zijn de uitvalswegen naar de A12, A15 en A30 snel bereikbaar, waardoor je een uitstekende verbinding hebt met de omliggende steden.

Belangrijkste kenmerken op een rij:
+ Karakteristieke, vrijstaande woning met veel charme
+ Ruim bijgebouw met talloze gebruiksmogelijkheden
+ De begane grond is in 2025 voorzien van nieuwe houten kozijnen
+ Moderne badkamer voorzien van ligbad én inloopdouche
+ Eigen oprit met plaats voor meerdere auto’s
+ Royale tuin op het noordoosten
+ Gezellige overkapping achter in de tuin
+ Energielabel D, de woning is voorzien van HR++ glas, muur- en dakisolatie
+ Voorbereiding voor zonnepanelen op de overkapping door middel van een lege doorvoerbuis naar de meterkast in kelder
+ Op korte afstand van het centrum van Veenendaal

Indeling
Begane grond
Via de entree kom je binnen in de hal met trapopgang naar de eerste verdieping. Zodra je de woonkamer betreedt, valt direct het vele daglicht op, samen met de authentieke details zoals de karakteristieke ramen en de houten balken. De zit- en eethoek lopen naadloos in elkaar over, waardoor er een fijne, open sfeer ontstaat. De eethoek bevindt zich aan de achterzijde van de woning in een sfeervolle erker.
Halverwege de ruimte vind je de royale woonkeuken, compleet met een stijlvol spoeleiland en een gezellige bar. De keuken is uitgerust met diverse inbouwapparatuur, waaronder een inductiekookplaat, afzuigkap, combi-oven, koel-vriescombinatie en vaatwasser.
Vanuit de keuken heb je toegang tot een tweede hal, waar zich het toilet en een vaste kast met wasmachineaansluiting bevinden. Vanuit deze hal stap je zo de royale tuin in.

Eerste verdieping
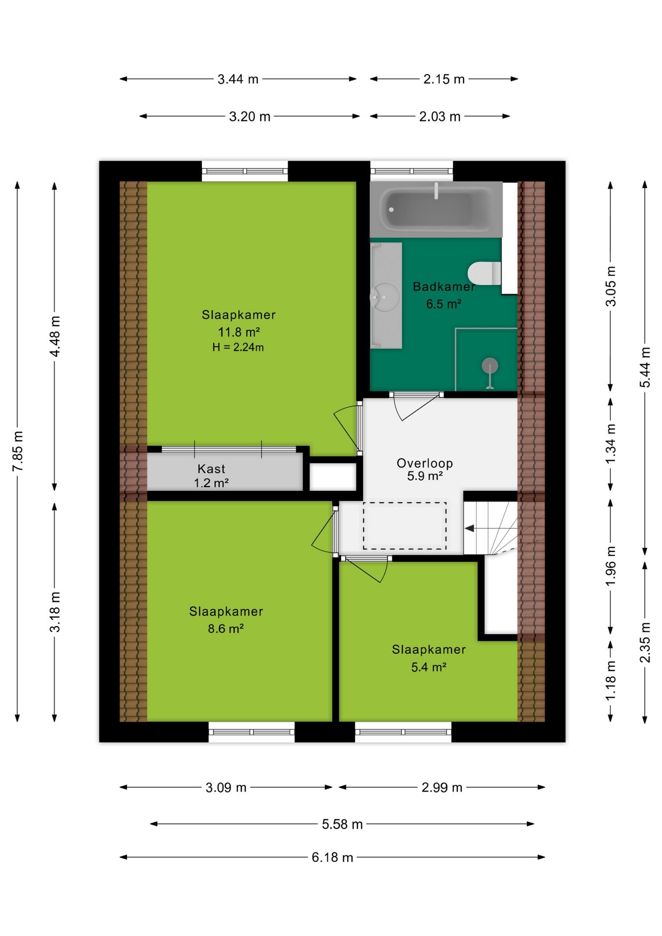
Op de eerste verdieping bevinden zich drie slaapkamers met een praktische indeling en een prettige lichtinval dankzij de grote ramen. De kamers hebben een oppervlakte van circa 12 m², 9 m² en 5 m². De masterbedroom is bovendien voorzien van een vaste inbouwkast.
De badkamer, volledig vernieuwd in 2018, straalt een moderne en frisse uitstraling uit. Hier geniet je van optimaal comfort met een inloopdouche, een ligbad voor ontspanning en een stijlvol wastafelmeubel met royaal opberggedeelte.
Extra handig is de vliering, bereikbaar vanaf de overloop, waardoor je altijd voldoende bergruimte hebt.

Bijgebouw
Dit bijgebouw biedt volop kansen om jouw wensen werkelijkheid te maken. Of je nu denkt aan een mantelzorgwoning, een B&B, een kantoor of praktijkruimte aan huis, hier kun je alle kanten op.
Via de trap kom je op de zolder, een praktische ruimte die zich uitstekend leent voor het opbergen van spullen of het creëren van extra mogelijkheden.

Buitenruimte
De ruime tuin ligt op het noordoosten en is eenvoudig bereikbaar via de brede oprit, waardoor je gemakkelijk langs de woning naar achteren loopt. De tuin is groen ingericht en biedt zelfs ruimte voor een eigen moestuin. Dankzij de royale opzet vind je altijd een plekje in de zon en is er voldoende ruimte voor meerdere zitgedeeltes.
Achter in de tuin bevindt zich een sfeervolle overkapping, zodat je ook bij minder mooi weer comfortabel buiten kunt genieten.

Koopovereenkomst
Bij de verkoop zal een standaard NVM-koopovereenkomst worden gehanteerd.
Bij woningen ouder dan 20 jaar worden de volgende clausules opgenomen:
- Asbestclausule
- Ouderdomsclausule

Bij aankoop zonder financieringsvoorbehoud geldt een termijn van zes weken na het opstellen van de koopovereenkomst voor het storten van de waarborgsom of bankgarantie.

Deze informatie is met zorg samengesteld. Er wordt geen aansprakelijkheid aanvaard voor eventuele onvolledigheden of onjuistheden. Alle opgegeven maten en oppervlakten zijn indicatief.
+ toon meer

Video

3902 ZB, Veenendaal

Valleistraat 99

Zaterdag 2 augustus 10:00 - 12:00 uur

€ 639.500 k.k.
ditters makelaars veenendaal
Kopen
Financiële mogelijkheden

Waardecheck

Onze makelaars kijken naar de lokale markt en vergelijkbare woningen in jouw buurt om een goede schatting te geven.
Onze makelaars kijken naar de lokale markt en vergelijkbare woningen in jouw buurt om een goede schatting te geven.
Goed om te weten: deze waardecheck is vrijblijvend en geheel kosteloos
Onafhankelijk

Hypotheekadvies

We helpen je met het vergelijken van aanbiedingen van verschillende banken, zodat je de beste deal krijgt. 
Wij staan klaar om je te begeleiden, zodat je met vertrouwen de juiste hypotheek kunt kiezen.
Goed om te weten: dit adviesgesprek is vrijblijvend en geheel kosteloos

Wij helpen jou bij de keuze van de juiste polis.

Bij een onbezorgde toekomst horen ook goede verzekeringen die uitkeren bij bijvoorbeeld ziekte, schade of diefstal. Onze assurantieadviseurs helpen je bij de keuze van de juiste polis. In heldere taal.

Diverse verzekeringen

  • Opstalverzekering
  • Aansprakelijkheidsverzekering
  • Zorgverzekering
  • Reisverzekering

Locatie

Plattegronden

Klik op de plattegrond voor een grote weergave

Belangrijke documenten

Meetrapport

Alle afmetingen van de woning duidelijk op een rij, inclusief totale oppervlakte.

Brochure

Bekijk hier alle details van de woning, compleet met foto's en beschrijvingen.

Kadastrale kaart

Vragenlijst deelb.

Hier deelt de verkoper belangrijke informatie over de staat en bijzonderheden van de woning.

Vragenlijst deelc.

Hier deelt de verkoper belangrijke informatie over de staat en bijzonderheden van de woning.

Lijst van zaken

Overzicht van de zaken die achterblijven of worden meegenomen door de huidige bewoners.

Misschien interessant voor jou

Blijf op de hoogte

Ontvang als eerste updates over nieuw aanbod en mis geen enkele kans om jouw droomwoning te vinden.

Gratis waardebepaling of verkoopgesprek

Met de vrijblijvende waardecheck weet je snel waar je aan toe bent. Onze makelaars kijken naar de lokale markt en vergelijkbare woningen in jouw buurt om een goede schatting te geven.