Omschrijving

Ben jij op zoek naar een ruime twee-onder-een-kapwoning aan de Dissel in Veenendaal en zijn jouw wensen o.a. 5 slaapkamers, een riante U-vormige begane grond, een garage met eigen oprit en een ruime en bovenal zonnige tuin op het westen?

Dan is deze twee-onder-een-kapwoning wellicht jouw nieuwe plek!

Belangrijkste kenmerken:
- Energielabel C
- Deels kunststof en deels houten kozijnen met HR en HR++ glas
- 5 slaapkamers
- Diepe en zonnige achtertuin op het westen
- Garage met voorgelegen eigen oprit

Locatie:
De woning is gelegen in de populaire wijk Dragonder-Noord. Op loopafstand bevinden zich het Dragonderpark, een Jumbo supermarkt, een basisschool en diverse andere voorzieningen. Het centrum van Veenendaal is binnen vijf minuten per fiets bereikbaar en biedt een uitgebreid aanbod aan winkels, horeca en overige faciliteiten. Daarnaast zijn zowel de A20 als station Veenendaal-De Klomp eenvoudig en snel te bereiken; het treinstation ligt op circa tien minuten fietsen.

Indeling:
Begane grond:
Via de entree, waar zich het toilet, de trapopgang en een handige opbergkast bevinden, kom je in de royale U-vormige living met aan de voorzijde de woonkamer van maar liefst 38,6 m². Hier is volop ruimte voor een comfortabele zithoek én een gezellig lees- of speelhoekje. De grote raampartij aan de voorzijde zorgt voor een prettige lichtinval en fijn en vrij uitzicht de straat in.

Aan de achterzijde van de woning bevindt zich het eetgedeelte, dat dankzij de schuifpui direct in verbinding staat met de zonnige en diepe achtertuin. Aansluitend ligt de L-vormige keuken van 7,6 m², uitgevoerd met crèmekleurige keukenkastjes en een licht werkblad. De keuken is voorzien van diverse inbouwapparatuur, waaronder een inductiekookplaat, afzuigkap, combimagnetron, koelkast en vaatwasser. Vanuit de keuken is tevens de praktische bijkeuken van 6,1 m² bereikbaar.

Eerste verdieping:
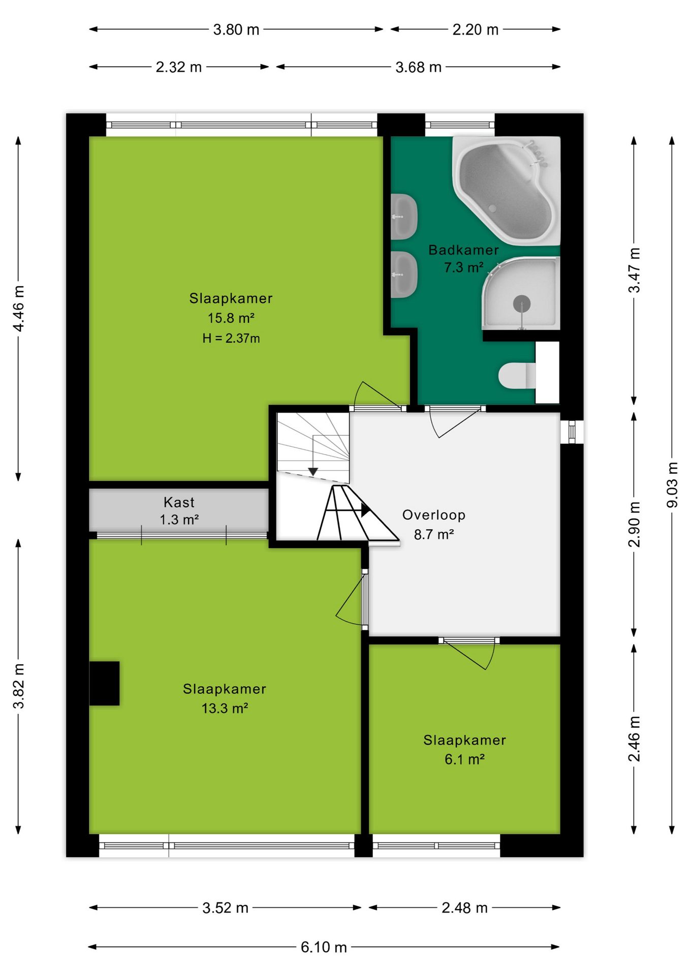
Door middel van de vaste trap kom je op de eerste verdieping welke toegang geeft tot de overloop en alle vertrekken. Hier bevinden zich drie slaapkamers met afmetingen van 15,8 m², 13,3 m² en 6,1 m². De slaapkamer van 13,3 m² beschikt over een inbouwkast en alle kamers genieten van grote raampartijen en veel daglichttoetreding. De rolluiken op de eerste verdieping zijn elektrisch bedienbaar door een afstandsbediening.

De badkamer is met 7,3 m² van een zeer prettig formaat en uitgerust met een dubbele wastafel, ligbad, douche en 2e toilet. Dankzij het te openen raam is er naast mechanische ventilatie ook natuurlijke ventilatie aanwezig.

Tweede verdieping:
Via een vaste trap bereik je de tweede verdieping met nog eens twee slaapkamers van 13,8 m² en 12,1 m². Beide kamers zijn voorzien van een dakkapel, wat zorgt voor extra ruimte en wederom zeer veel daglicht. Op de overloop bevinden zich de aansluitingen voor wasmachine en droger en is er voldoende bergruimte aanwezig. De rolluiken op de tweede verdieping zijn ook elektrisch bedienbaar.

Buitenruimte:
De diepe en zonnige achtertuin, welke op het westen gelegen is, biedt volop mogelijkheden voor meerdere zithoekjes en een fijne speelplek voor kinderen. Vanuit de tuin is de garage van 20,3 m² bereikbaar, ideaal voor het stallen van fietsen of extra opslag. Daarnaast is er een aangebouwde berging, perfect voor tuingereedschap en containers.

Bijzonderheden:
Verwarming: CV ketel Atag P35c cw5 (2025)
Warm water: CV-ketel Atag P35c cw5 (2025)
Isolatie: Dakisolatie, muurisolatie, HR-glas en HR++glas
Energielabel: C
Bouwjaar: 1975
Tuinligging: West
Aanvaarding In overleg, voorkeur eind juli 2026

Koopovereenkomst:
Bij de verkoop zal er een standaard NVM koopovereenkomst worden gehanteerd. Bij woningen welke ouder zijn dan 20 jaar, worden de volgende clausules opgenomen in de koopovereenkomst:
- Asbestclausule;
- Ouderdomsclausule.

Koopt u de woning zonder voorbehoud van financiering? Dan zullen wij een termijn hanteren van 14 dagen na het opstellen van de koopovereenkomst voor het storten van de bankgarantie/waarborgsom.

Deze informatie is door ons met de nodige zorgvuldigheid samengesteld. Onzerzijds wordt echter geen enkele aansprakelijkheid aanvaard voor enige onvolledigheid, onjuistheid of anderszins, dan wel de gevolgen daarvan. Alle opgegeven maten en oppervlakten zijn indicatief.
+ toon meer

Video

3902 GL, Veenendaal

Dissel 10

Zaterdag 2 augustus 10:00 - 12:00 uur

€ 649.000 k.k.
ditters makelaars veenendaal
Kopen
Financiële mogelijkheden

Waardecheck

Onze makelaars kijken naar de lokale markt en vergelijkbare woningen in jouw buurt om een goede schatting te geven.
Onze makelaars kijken naar de lokale markt en vergelijkbare woningen in jouw buurt om een goede schatting te geven.
Goed om te weten: deze waardecheck is vrijblijvend en geheel kosteloos
Onafhankelijk

Hypotheekadvies

We helpen je met het vergelijken van aanbiedingen van verschillende banken, zodat je de beste deal krijgt. 
Wij staan klaar om je te begeleiden, zodat je met vertrouwen de juiste hypotheek kunt kiezen.
Goed om te weten: dit adviesgesprek is vrijblijvend en geheel kosteloos

Wij helpen jou bij de keuze van de juiste polis.

Bij een onbezorgde toekomst horen ook goede verzekeringen die uitkeren bij bijvoorbeeld ziekte, schade of diefstal. Onze assurantieadviseurs helpen je bij de keuze van de juiste polis. In heldere taal.

Diverse verzekeringen

  • Opstalverzekering
  • Aansprakelijkheidsverzekering
  • Zorgverzekering
  • Reisverzekering

Locatie

Plattegronden

Klik op de plattegrond voor een grote weergave

Belangrijke documenten

Brochure

Bekijk hier alle details van de woning, compleet met foto's en beschrijvingen.

Vragenlijst

Hier deelt de verkoper belangrijke informatie over de staat en bijzonderheden van de woning.

Lijst van zaken

Overzicht van de zaken die achterblijven of worden meegenomen door de huidige bewoners.

Vragenlijst c

Hier deelt de verkoper belangrijke informatie over de staat en bijzonderheden van de woning.

Misschien interessant voor jou

Blijf op de hoogte

Ontvang als eerste updates over nieuw aanbod en mis geen enkele kans om jouw droomwoning te vinden.

Gratis waardebepaling of verkoopgesprek

Met de vrijblijvende waardecheck weet je snel waar je aan toe bent. Onze makelaars kijken naar de lokale markt en vergelijkbare woningen in jouw buurt om een goede schatting te geven.