Omschrijving

Stationsstraat 71 – Veenendaal

Royaal geschakeld herenhuis met 6 slaapkamers, warmtepomp, 39 zonnepanelen en een A+++ energielabel!

Ben je op zoek naar een woning die écht klaar is voor de toekomst? Dit geschakelde herenhuis aan de Stationsstraat is een zeldzame vondst. Met een woonoppervlakte van 154 m², maar liefst zes slaapkamers en een extreem hoog duurzaamheidsniveau (A+++), biedt dit huis alles wat een groot gezin zich kan wensen. Dankzij de 39 zonnepanelen, een warmtepompboiler en twee thuisbatterijen is de woning nagenoeg energieneutraal. Comfortabel wonen met lage energielasten; hier kan het.

De plek
De woning ligt aan een verkeersluw gedeelte van de Stationsstraat, richting De Klomp. Dit betekent dat je geniet van een rustige woonomgeving met enkel bestemmingsverkeer, terwijl alle voorzieningen binnen handbereik liggen. Het gezellige centrum van Veenendaal, buurtwinkels in winkelcentrum 'Aller Erf' en diverse scholen zijn binnen enkele minuten bereikbaar. Ook de uitvalswegen en het NS-station Veenendaal-De Klomp liggen zeer gunstig, waardoor je snel in Utrecht of Arnhem bent.

Belangrijkste kenmerken op een rij:
- Bijzonder royaal geschakeld herenhuis (154 m²) met 6 slaapkamers
- Energielabel A+++: nagenoeg energieneutraal wonen
- 39 zonnepanelen (opbrengst ca. 9.200 kWh p/j) en twee sessy thuisbatterijen(In totaal 11 kWh)
- Sfeervolle en-suite woonkamer en een riante woonkeuken
- Diepe tuin op het zuidwesten met luxe veranda en plantenkas
- Stenen garage met bergzolder (vaste trap) en eigen oprit .
- Gelegen aan een rustige, verkeersluwe straat

Toekomstbestendig en duurzaam:
Dit huis loopt voorop in de energietransitie. Met 39 zonnepanelen en twee Sessy-thuisbatterijen wordt de opgewekte energie optimaal benut, ook wanneer de zon niet schijnt. Het jaarverbruik ligt hierdoor erg laag. Bovendien is de woning met minimale aanpassingen (zoals elektrisch koken) volledig gasvrij te maken.

Kortom: Een uniek, riant en uiterst duurzaam gezinshuis op een fantastische, rustige locatie. Zien we je bij de bezichtiging?

Binnenkijken:
Begane grond:
Door de ruime oprit kom je bij de entree. Je komt binnen in een lichte hal met de meterkast en trapopgang. De woonkamer aan de voorzijde straalt karakter uit dankzij de authentieke en-suite deuren. De straatgerichte zithoek is voorzien van een sfeer haard op gas en airconditioning voor de warme zomerdagen. Via de en-suite deuren bereik je de riante woonkeuken aan de achterzijde. Dit is de plek waar geleefd wordt. De robuuste inbouwkeuken is een droom voor elke kookliefhebber, uitgerust met een groot fornuis voorzien van vijf gaspitten, twee ovens, grill en een bakplaat. Uiteraard zijn ook een vaatwasser, koelkast en afzuigkap aanwezig. Door de uitbouw op de begane grond is er volop ruimte voor een grote eettafel.

Eerste verdieping:
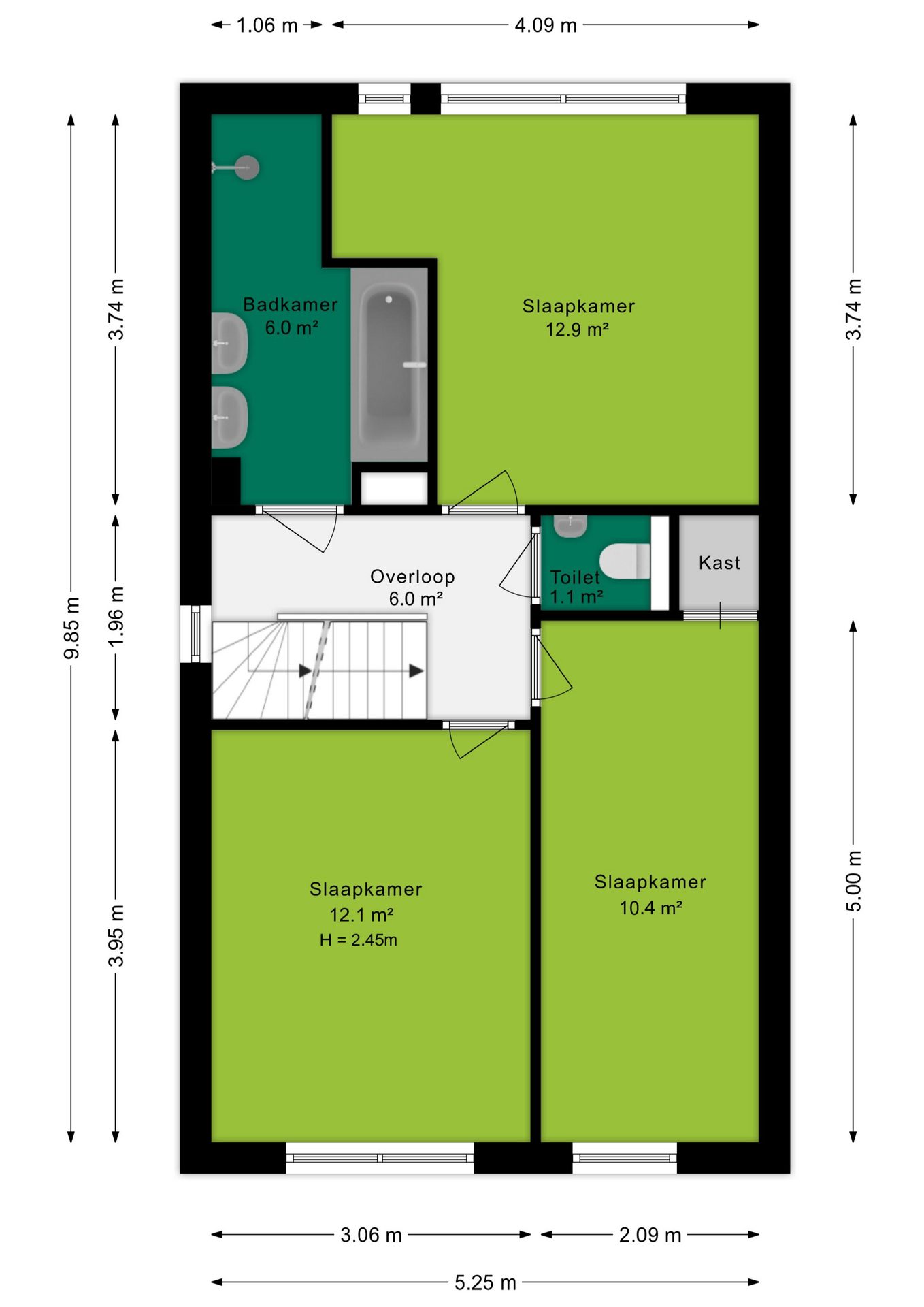
Door middel van de vaste trap kom je op de eerste verdieping. De overloop op de eerste verdieping biedt toegang tot drie royale slaapkamers. Elke kamer is prettig licht en biedt meer dan genoeg ruimte voor een volwaardig bed en een kastenwand. De badkamer is een plek waar je echt tot rust komt; deze is zeer compleet uitgevoerd met zowel een heerlijk ligbad als een aparte inloopdouche. Met het dubbele wastafelmeubel is er voor iedereen genoeg ruimte tijdens de drukke ochtendspits. Erg praktisch: op deze verdieping bevindt zich een separaat toilet, wel zo prettig voor de privacy in de badkamer.

Tweede verdieping:
Via de vaste trap bereik je de tweede verdieping, die dankzij de plaatsing van een dakkapel verrassend ruim en licht is. Je vindt hier nog eens drie volwaardige slaapkamers, wat het totaal in deze woning op maar liefst zes brengt! Of je nu extra kamers nodig hebt voor een groot gezin, een luxe thuiswerkplek of een eigen sportruimte; de mogelijkheden zijn eindeloos. Daarnaast bevindt zich op deze verdieping de technische ruimte. Hier is de geavanceerde installatie ondergebracht.

Tuin en bijgebouwen:
De tuin is een paradijs voor de buitenliefhebber. Gelegen op het zonnige zuidwesten en verzorgd aangelegd met een gazon, diverse beplantingen en een eigen beregeningsinstallatie met bron. De absolute blikvanger is de luxe veranda waar je tot laat in de avond heerlijk beschut kunt zitten. Voor de tuinliefhebber is er zelfs een eigen plantenkas.
De stenen garage is voorzien van een elektrische kanteldeur en een ruime bergzolder die via een vaste trap bereikbaar is — ideaal als extra hobbyruimte of opslag. Op de eigen oprit is plek voor meerdere auto's.

Koopovereenkomst:
Bij de verkoop zal er een standaard NVM koopovereenkomst worden gehanteerd. Bij woningen welke ouder zijn dan 20 jaar, worden de volgende clausules opgenomen in de koopovereenkomst:
- Asbestclausule (woningen voor 1994);
- Ouderdomsclausule (20 jaar).

Bij aankoop zonder financieringsvoorbehoud geldt een termijn van zes weken na het opstellen van de koopovereenkomst voor het storten van de waarborgsom of bankgarantie.

Deze informatie is met zorg samengesteld. Er wordt geen aansprakelijkheid aanvaard voor eventuele onvolledigheden of onjuistheden. Alle opgegeven maten en oppervlakten zijn indicatief.
+ toon meer

Video

3905 JH, Veenendaal

Stationsstraat 71

Zaterdag 2 augustus 10:00 - 12:00 uur

€ 775.000 k.k.
ditters makelaars veenendaal
Kopen

Wat is jouw woning écht waard bij Ditters?

Waardecheck

Wij combineren lokale marktkennis met actuele data en ons grote zoekersbestand in de regio.

Je krijgt niet alleen een waarde, maar inzicht in hoe je de maximale verkoopopbrengst kunt realiseren.

Onze aanpak is strategisch, transparant en volledig afgestemd op jouw situatie.

Goed om te weten: deze waardecheck is vrijblijvend en geheel kosteloos
Onafhankelijk

Hypotheekadvies

We helpen je met het vergelijken van aanbiedingen van verschillende banken, zodat je de beste deal krijgt. 
Wij staan klaar om je te begeleiden, zodat je met vertrouwen de juiste hypotheek kunt kiezen.
Goed om te weten: dit adviesgesprek is vrijblijvend en geheel kosteloos

Wij helpen jou bij de keuze van de juiste polis.

Bij een onbezorgde toekomst horen ook goede verzekeringen die uitkeren bij bijvoorbeeld ziekte, schade of diefstal. Onze assurantieadviseurs helpen je bij de keuze van de juiste polis. In heldere taal.

Diverse verzekeringen

  • Opstalverzekering
  • Aansprakelijkheidsverzekering
  • Zorgverzekering
  • Reisverzekering

Locatie

Plattegronden

Klik op de plattegrond voor een grote weergave

Belangrijke documenten

Brochure

Bekijk hier alle details van de woning, compleet met foto's en beschrijvingen.

Vragenlijst

Hier deelt de verkoper belangrijke informatie over de staat en bijzonderheden van de woning.

Lijst van zaken

Overzicht van de zaken die achterblijven of worden meegenomen door de huidige bewoners.

Vragenlijst c

Hier deelt de verkoper belangrijke informatie over de staat en bijzonderheden van de woning.

Misschien interessant voor jou

Blijf op de hoogte

Ontvang als eerste updates over nieuw aanbod en mis geen enkele kans om jouw droomwoning te vinden.

Gratis waardebepaling of verkoopgesprek

Met de vrijblijvende waardecheck weet je snel waar je aan toe bent. Onze makelaars kijken naar de lokale markt en vergelijkbare woningen in jouw buurt om een goede schatting te geven.