Omschrijving

Een karaktervolle 2-onder-1-kapwoning met veel ruimte én een topligging!
Ben je op zoek naar een royale, karaktervolle woning met verrassend veel ruimte, een diepe zonnige tuin en volop opbergmogelijkheden? Dan is Julianalaan 13 in Ede precies wat je zoekt! Deze charmante 2-onder-1-kapwoning biedt maar liefst 177 m² woonoppervlak, een perceel van 353 m², vier ruime slaapkamers en een grote kelder onder de garage. Hier woon je comfortabel, centraal én sfeervol.

Wonen op een toplocatie in Ede
Julianalaan 13 ligt in een rustige en prettige straat op loopafstand van station Ede-Wageningen en op slechts een paar minuten van winkelcentrum Spindop aan de Parkweg — ideaal voor je dagelijkse boodschappen. De A12 en A30 liggen op korte rijafstand, waardoor je binnen no-time richting Arnhem, Utrecht of Amersfoort bent. Ook zijn er diverse scholen, sportclubs en horecagelegenheden in de directe omgeving. Kortom: een centrale locatie met alles binnen handbereik!

Pluspunten op een rij:
+ Royale woonoppervlakte van ca. 177 m²
+ Grote woonkamer met open haard
+ Vier slaapkamers en meerdere opbergmogelijkheden
+ Diepe en zonnige tuin op het oosten
+ Kelder van 25 m² onder de bijkeuken
+ Eigen oprit met plaats voor drie auto's
+ Gelegen nabij station, winkels en uitvalswegen

Indeling
Begane grond
Bij binnenkomst valt direct de royale woonkamer op van maar liefst 53 m², met grote raampartijen en een gezellige open haard als warme blikvanger. De openslaande deuren geven toegang tot de diepe tuin, ideaal voor lange zomerdagen of een goed glas wijn in de avondzon. De hoekkeuken is compleet uitgerust met onder andere een inductieplaat, oven, koelkast, vaatwasser en veel werkruimte. De praktische bijkeuken, met een aansluiting voor de wasmachine, geeft toegang tot een royale kelder van 25 m² — perfect voor opslag of een wijncollectie. Vanuit de bijkeuken heb je rechtstreeks toegang tot het achterterras en de tuin.

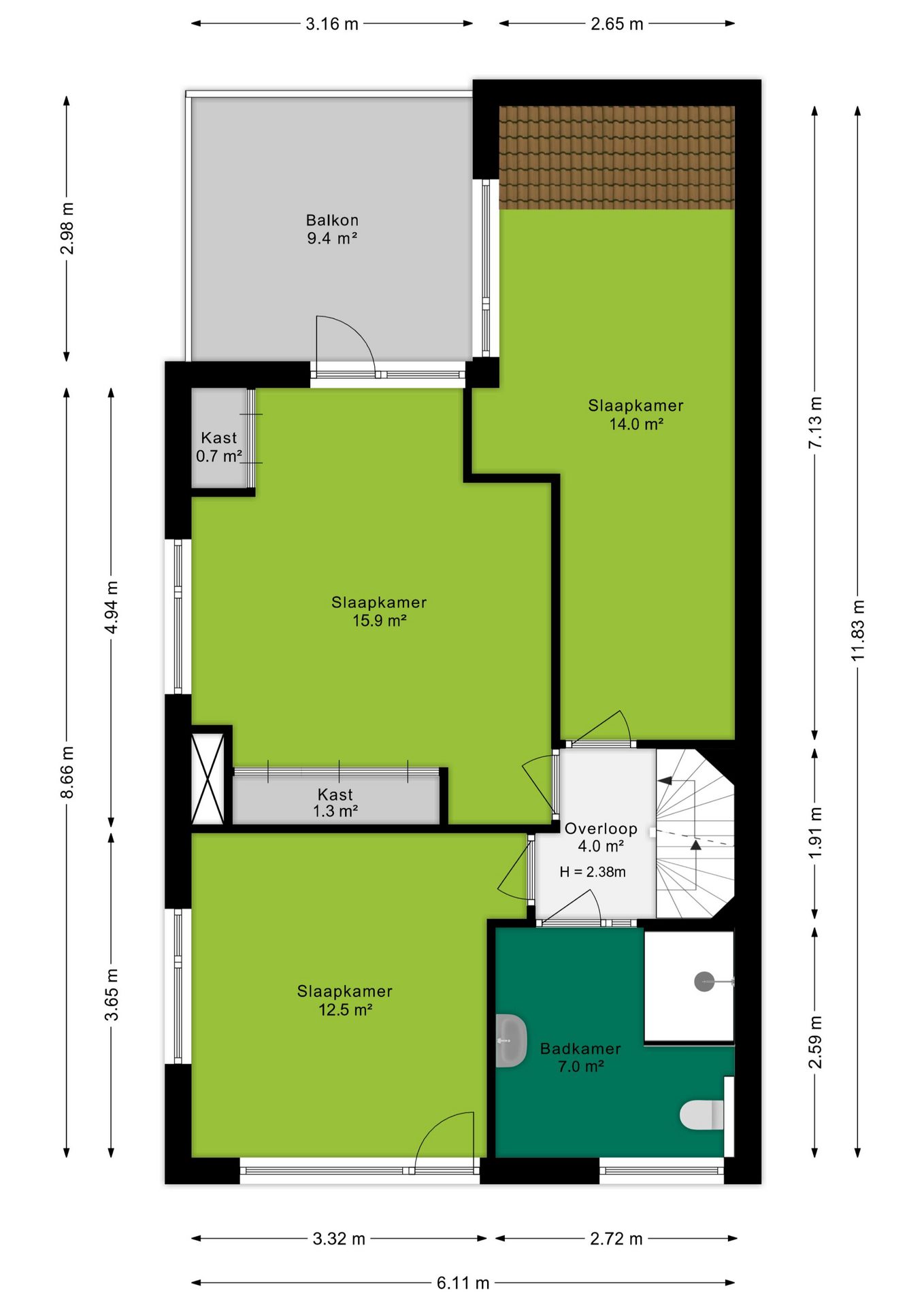
Eerste verdieping
Drie grote slaapkamers, waarvan één met vaste kasten en toegang tot een ruim balkon van 9 m². De overige kamers zijn ca. 14 m² en 13 m² groot — ideaal voor gezinsgebruik of thuiswerken.
De badkamer is uitgerust met een douche, wastafel, toilet, designradiator en vloerverwarming.

Tweede verdieping
Een ruime overloop en een vierde slaapkamer van 12 m² maken deze verdieping perfect voor logés, hobbyruimte of extra werkplek. Daarnaast biedt de overloop toegang tot een kastruimte waar de cv-ketel is geïnstalleerd.
Tuin
Met een diepte van ca. 18 meter en een breedte van 9 meter is de oostelijk gelegen tuin een absolute troef. Achterin de tuin vind je een ruime overkapping waar je tot laat in de avond beschut buiten zit. Daarnaast is er een stenen berging aanwezig voor al je tuingereedschap, fietsen of klussen.

Nieuwsgierig geworden?
Deze woning wacht op een nieuwe eigenaar die ruimte, karakter en comfort weet te waarderen. Neem snel contact met ons op voor een bezichtiging — we laten je deze woning met plezier zien!

Koopovereenkomst:
- Bij de verkoop zal er een standaard NVM koopovereenkomst worden gehanteerd. Bij woningen welke ouder zijn dan 20 jaar, worden de volgende clausules opgenomen in de koopovereenkomst:
- Asbestclausule;
- Ouderdomsclausule.

Koop je de woning zonder voorbehoud van financiering? Dan zullen wij een termijn hanteren van 14 dagen na het opstellen van de koopovereenkomst voor het storten van de bankgarantie/waarborgsom.
+ toon meer

Video

6717 JK, Ede

Julianalaan 13

Zaterdag 2 augustus 10:00 - 12:00 uur

€ 795.000 k.k.
ditters makelaars ede
Kopen

Wat is jouw woning écht waard bij Ditters?

Waardecheck

Wij combineren lokale marktkennis met actuele data en ons grote zoekersbestand in de regio.

Je krijgt niet alleen een waarde, maar inzicht in hoe je de maximale verkoopopbrengst kunt realiseren.

Onze aanpak is strategisch, transparant en volledig afgestemd op jouw situatie.

Goed om te weten: deze waardecheck is vrijblijvend en geheel kosteloos
Onafhankelijk

Hypotheekadvies

We helpen je met het vergelijken van aanbiedingen van verschillende banken, zodat je de beste deal krijgt. 
Wij staan klaar om je te begeleiden, zodat je met vertrouwen de juiste hypotheek kunt kiezen.
Goed om te weten: dit adviesgesprek is vrijblijvend en geheel kosteloos

Wij helpen jou bij de keuze van de juiste polis.

Bij een onbezorgde toekomst horen ook goede verzekeringen die uitkeren bij bijvoorbeeld ziekte, schade of diefstal. Onze assurantieadviseurs helpen je bij de keuze van de juiste polis. In heldere taal.

Diverse verzekeringen

  • Opstalverzekering
  • Aansprakelijkheidsverzekering
  • Zorgverzekering
  • Reisverzekering

Buurtinformatie

Ede, Reehorst
Inwoners
Woningen
1.557
Inwoners
3.595
37
63
Koop / Huur
37% Huur63% Koop
Huishoudens
Eenpersoon
46.6%
Geen kinderen
27.1%
Met kinderen
25.8%
Leeftijdsopbouw in jaren
Buurt Landelijk
14.918.624.825.916.316.312.324.728.218.5

Locatie

Plattegronden

Klik op de plattegrond voor een grote weergave

Belangrijke documenten

brochure

Kadastrale kaart

Vragenlijst deel B

Vragenlijst deel C

Lijst van zaken

Misschien interessant voor jou

Blijf op de hoogte

Ontvang als eerste updates over nieuw aanbod en mis geen enkele kans om jouw droomwoning te vinden.

Gratis waardebepaling of verkoopgesprek

Met de vrijblijvende waardecheck weet je snel waar je aan toe bent. Onze makelaars kijken naar de lokale markt en vergelijkbare woningen in jouw buurt om een goede schatting te geven.