Omschrijving

Op een perceel van 273 m² staat deze royale 2-onder-1 kapwoning. Met een woonoppervlakte van 157 m², zes slaapkamers, parkeerplaats op eigen terrein, een garage, een multifunctioneel bijgebouw en een heerlijke tuin op het noordwesten biedt deze woning ruimte en mogelijkheden voor het hele gezin. Dankzij 15 zonnepanelen, energielabel A en een houtkachel woon je hier bovendien comfortabel.

De woning ligt in een rustige straat dicht bij het centrum van Ede. Diverse voorzieningen zoals scholen, winkels en NS-station Ede-Centrum zijn in de directe nabijheid. Ook de bossen en Huize Kernhem liggen op loopafstand. Belangrijk om te weten: de gemeente Ede heeft besloten de hoogspanningsleidingen en -masten in dit gebied te verwijderen. De kabels zullen ondergronds worden gebracht en daarna volgen de masten.

Slunterweg 10 is een royale en energiezuinige 2-onder-1 kapwoning met zes slaapkamers, een diepe tuin en praktische extra's zoals een garage en multifunctioneel bijgebouw. Dankzij de ligging nabij het centrum, de scholen en de natuur biedt deze woning volop mogelijkheden voor comfortabel en veelzijdig wonen.

Pluspunten van deze woning
+ 2-onder-1 kapwoning op ruim perceel met garage en multifunctioneel bijgebouw
+ Oprit met eigen parkeerplaats met laadpaal en achtertuin op het noordwesten
+ 15 zonnepanelen en energielabel A
+ Gelegen in rustige straat nabij centrum van Ede
+ Multifunctioneel bijgebouw geschikt voor diverse doeleinden, bijvoorbeeld kantoor-/ hobbyruimte, praktijkruimte, atelier, kapsalon of schoonheidssalon

Indeling
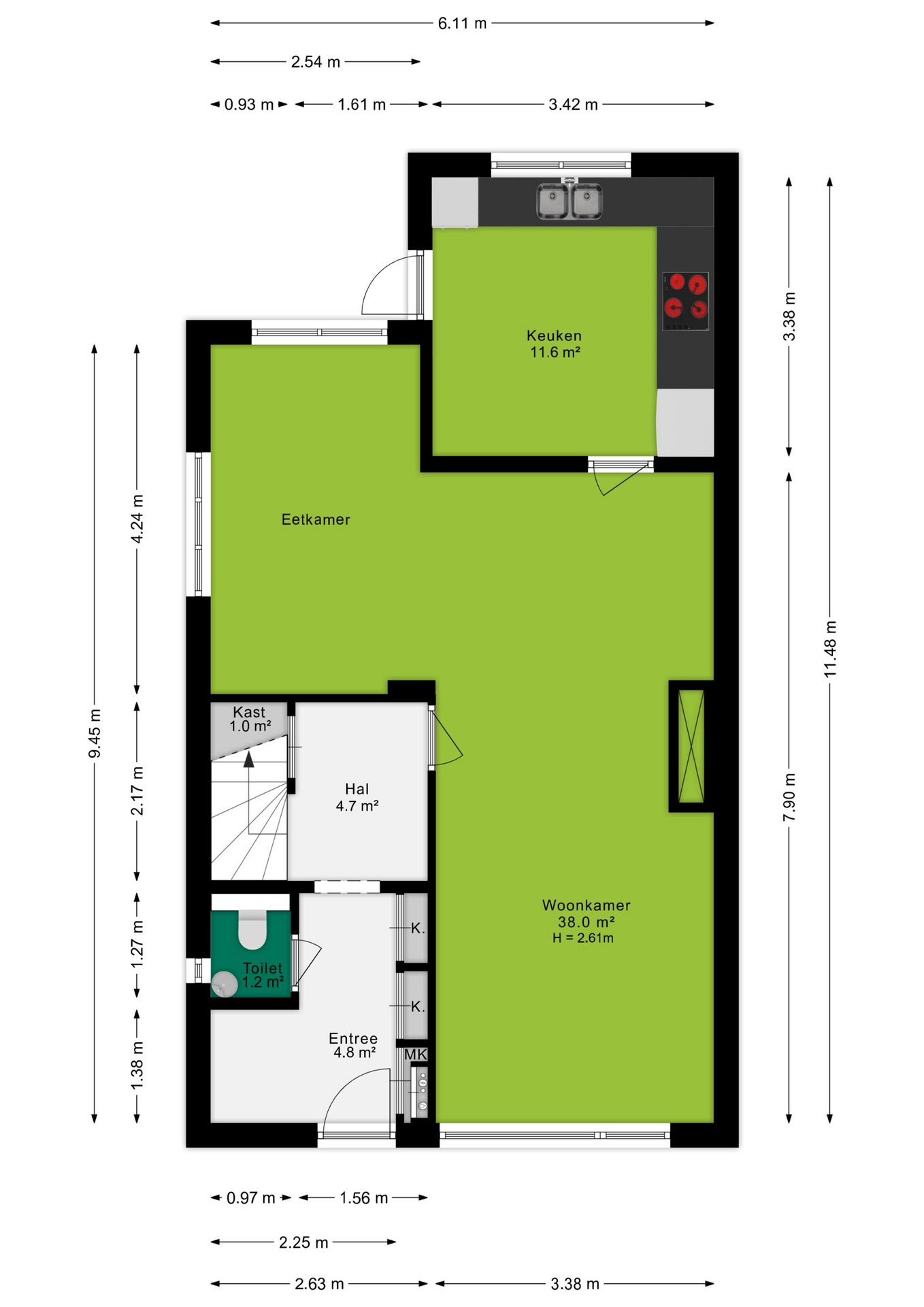
Begane grond
Ruime welkomsthal met toilet en tussenhal met trapopgang en trapkast, ideaal voor extra bergruimte. De woonkamer met sfeervolle vloer en open haard is gelegen aan de voorzijde van de woning. Een knusse zithoek waar je heerlijk kunt ontspannen. Tussen de woonkamer en keuken in tref je de eetkamer waar voldoende ruimte is voor het plaatsen van een ruime eettafel. De keuken is gelegen aan de achterzijde van de woning, en is voorzien van diverse inbouwapparatuur. In 2023 is de vaatwasser vernieuwd en in 2022 is, naast de oorspronkelijke oven, een combi-stoomoven met magnetronfunctie geplaatst. Tevens biedt de keuken toegang tot de achtertuin.

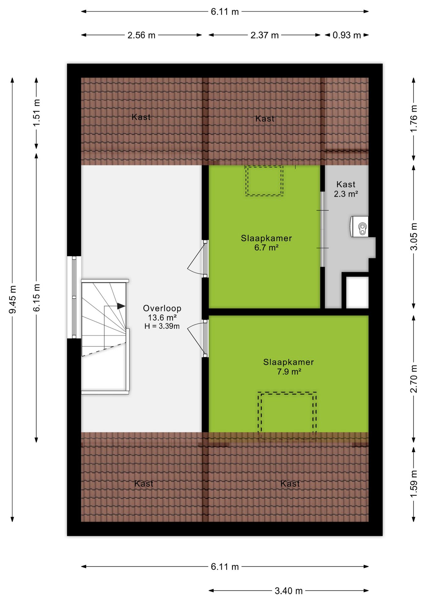
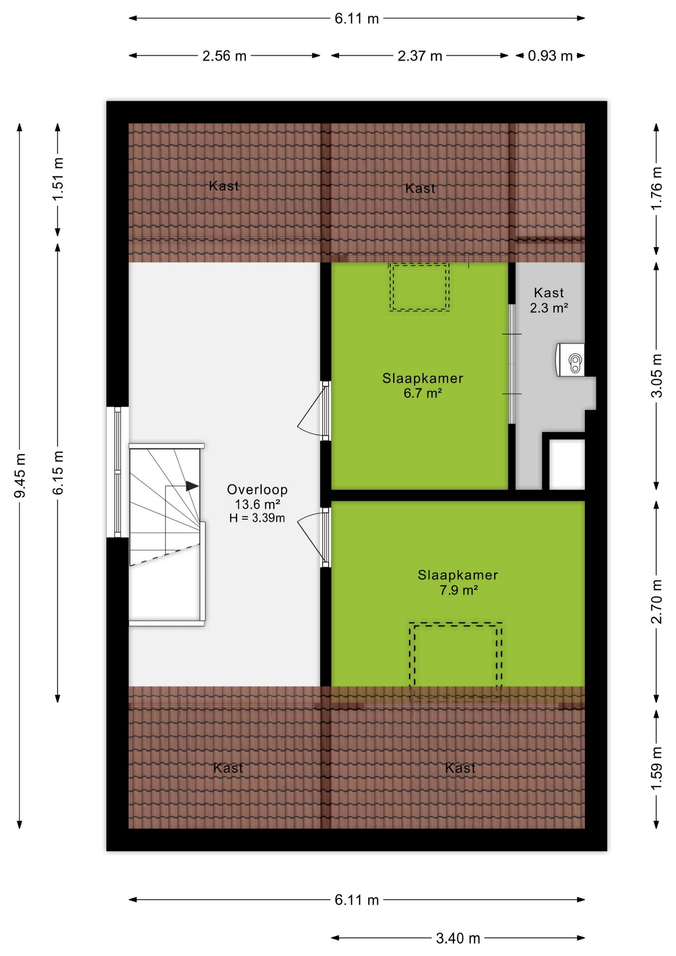
Eerste verdieping
Overloop met toegang tot maar liefst vier slaapkamers en de badkamer. De slaapkamers zijn circa 14 m², 10 m², 9 m² en 7 m². In de slaapkamers en op de overloop tref je een lichte laminaatvloer. De badkamer, in lichte kleuropstelling, is uitgerust met een ligbad, inloopdouche, wastafel en toilet.

Tweede verdieping
Ruime overloop met bergruimte én plaats voor een thuiswerkplek. Tevens vind je hier nog een twee slaapkamers, waarvan één met toegang tot een bergruimte met cv-opstelling.

Buitenruimte
De achtertuin op het noordwesten is 13,5m diep en biedt altijd wel een plek in de zon of schaduw. Er is ruimte voor een terras, speelplekken en beschikt over een groenstrook, ideaal om te genieten van het buitenleven. Daarnaast beschikt de woning over een garage en een multifunctioneel bijgebouw. Diverse mogelijkheden om het multifunctionele bijgebouw in te richten, bijvoorbeeld kantoor-/ hobbyruimte, praktijkruimte, atelier, kapsalon of schoonheidssalon. Aan de voorzijde van de woning beschik je over een eigen parkeerplaats met laadpaal.

Koopovereenkomst:
Bij de verkoop zal er een standaard NVM koopovereenkomst worden gehanteerd.
Bij woningen welke ouder zijn dan 20 jaar, worden de volgende clausules opgenomen in de koopovereenkomst:
- Asbestclausule
- Ouderdomsclausule

Koop je de woning zonder voorbehoud van financiering? Dan zullen wij een termijn hanteren van 6 weken na het opstellen van de koopovereenkomst voor het storten van de bankgarantie/waarborgsom.

Deze informatie is door ons met de nodige zorgvuldigheid samengesteld. Onzerzijds wordt echter geen enkele aansprakelijkheid aanvaard voor enige onvolledigheid, onjuistheid of anderszins, dan wel de gevolgen daarvan. Alle opgegeven maten en oppervlakten zijn indicatief.
+ toon meer

Video

6712 BV, Ede

Slunterweg 10

Zaterdag 2 augustus 10:00 - 12:00 uur

€ 695.000 k.k.
ditters makelaars ede
Kopen

Wat is jouw woning écht waard bij Ditters?

Waardecheck

Wij combineren lokale marktkennis met actuele data en ons grote zoekersbestand in de regio.

Je krijgt niet alleen een waarde, maar inzicht in hoe je de maximale verkoopopbrengst kunt realiseren.

Onze aanpak is strategisch, transparant en volledig afgestemd op jouw situatie.

Goed om te weten: deze waardecheck is vrijblijvend en geheel kosteloos
Onafhankelijk

Hypotheekadvies

We helpen je met het vergelijken van aanbiedingen van verschillende banken, zodat je de beste deal krijgt. 
Wij staan klaar om je te begeleiden, zodat je met vertrouwen de juiste hypotheek kunt kiezen.
Goed om te weten: dit adviesgesprek is vrijblijvend en geheel kosteloos

Wij helpen jou bij de keuze van de juiste polis.

Bij een onbezorgde toekomst horen ook goede verzekeringen die uitkeren bij bijvoorbeeld ziekte, schade of diefstal. Onze assurantieadviseurs helpen je bij de keuze van de juiste polis. In heldere taal.

Diverse verzekeringen

  • Opstalverzekering
  • Aansprakelijkheidsverzekering
  • Zorgverzekering
  • Reisverzekering

Buurtinformatie

Ede, Indische buurt
Inwoners
Woningen
975
Inwoners
2.225
47
53
Koop / Huur
47% Huur53% Koop
Huishoudens
Eenpersoon
38.2%
Geen kinderen
29.4%
Met kinderen
31.9%
Leeftijdsopbouw in jaren
Buurt Landelijk
16.013.725.227.418.216.312.324.728.218.5

Locatie

Plattegronden

Klik op de plattegrond voor een grote weergave

Misschien interessant voor jou

Blijf op de hoogte

Ontvang als eerste updates over nieuw aanbod en mis geen enkele kans om jouw droomwoning te vinden.

Gratis waardebepaling of verkoopgesprek

Met de vrijblijvende waardecheck weet je snel waar je aan toe bent. Onze makelaars kijken naar de lokale markt en vergelijkbare woningen in jouw buurt om een goede schatting te geven.