Omschrijving

Een nieuwbouwwoning met karakter! Deze instapklare en energiezuinige woning met maar liefst 5 slaapkamers staat in de groene wijk Kernhem.

De begane grond van deze unieke witte woning heeft een verrassende indeling. De woonkamer is aan de voorzijde van de woning en het kookeiland is aan de tuinzijde gerealiseerd. Hierdoor is een royale fijne woonkeuken ontstaan met uitzicht op de tuin op het zuiden. Omdat deze woning aan een parkeerhaven ligt, heeft deze vrij zicht achter. Het hoge afwerkingsniveau valt ook gelijk op als je de woning binnenkomt.

Kernhem is een populaire maar ook moderne woonwijk die bijzonder geliefd is bij gezinnen. De wijk biedt diverse basisscholen, buitenschoolse opvang (BSO) en kinderdagverblijven. In de wijk zijn er tal van speeltuinen en sportvelden waar kinderen volop kunnen spelen en sporten. Voor de dagelijkse boodschappen kun je terecht in het nabijgelegen winkelcentrum Parkweide, diverse andere winkels en een gezondheidscentrum. Het centrum van Ede, met een nog breder aanbod aan winkels, boetiekjes en eetgelegenheden, is ook eenvoudig te bereiken.

Op ongeveer 10 minuten fietsen ligt het prachtige Edese Bos waar je kunt genieten van rust en natuur. Dit bos is ideaal voor wandelingen, een picknick met het gezin of een sportieve hardloopsessie. Maar ook de wijk zelf ligt in het groen en heeft diverse wandelpaden. De wijk is gunstig gelegen nabij belangrijke uitvalswegen zoals de A12 en A30, waardoor je snel en gemakkelijk naar steden als Utrecht, Arnhem en Amsterdam kunt reizen.

Bijzonderheden:
- Uitstekend onderhouden moderne woning;
- Buitenwerk is recent (2024) geschilderd;
- 'Jonge' kindvriendelijke woonwijk;
- Volledig geïsoleerd. Energielabel: A;
- 10 zonnepanelen aanwezig;
- 5 slaapkamers;
- Unieke indeling met kookeiland;
- Woning voorzien van elektrische rolluiken en zonnescherm;
- Begane grond is voorzien van vloerverwarming;
- Nabij scholen en diverse uitvalswegen;
- Kortom: maak snel een afspraak en kom kijken!

Indeling:
Begane grond:
Via de entree bereik je de hal met toegang tot het moderne en volledig betegelde toilet met fontein de meterkast en de trapopgang naar de eerste verdieping.

Vanuit de bouw is de indeling van de begane grond gewijzigd, het woonkamer gedeelte is aan de voorzijde gesitueerd. De royale woonkeuken is gelegen aan de achterzijde van de woning met meer dan genoeg ruimte voor een uitgebreide eettafel en stoelen of bank. De twee openslaande deuren met daarnaast twee hoge ramen tot de vloer, geven je toegang tot het zonnige terras.

De eetkeuken is voorzien van een fraai kook- spoeleiland met veel praktische werk- en bergruimte en diverse inbouwapparatuur (o.a. inductiekookplaat, afzuigkap, combi-oven/magnetron, vaatwasser, koelkast en vriezer. Overigens op de gehele begane grond afgewerkt met een eiken lamel parket vloer met comfortabele vloerverwarming.

Eerste verdieping:
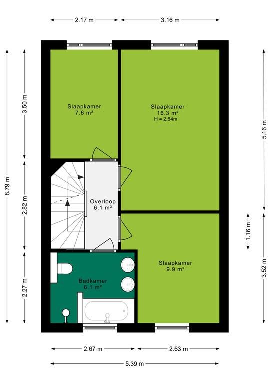
Via de vaste trap kom je bij de overloop welke toegang geeft tot de 3 ruime slaapkamers en moderne en sfeervolle badkamer. Ook hier is weer het hoge afwerkingsniveau te zien. De slaapkamers zijn ruim te noemen en beschikken over afmetingen van ca. 16.3m², 10m² en 8m². De (slaap)kamers kunnen gebruikt worden als slaapkamer maar ook prima geschikt als werkruimte of als hobbykamer. Op de eerste verdieping zijn alle ramen voorzien van inzethorren en de slaapkamers aan de achterzijde van het huis van een elektrisch rolluik. De sfeervolle en moderne badkamer is voorzien van een inloopdouche, ligbad, wastafelmeubel met twee waskommen en wandcloset. Tevens is de badkamer voorzien van een raam waardoor er natuurlijke ventilatie is. De wanden zijn tot plafondhoogte in een grijze kleurstelling betegeld. Samen met de mechanische ventilatie zorgt dit voor een optimaal klimaat in de badkamer.

Tweede verdieping:
Door middel van de trap kom je bij de tweede verdieping. Op deze verdieping is een fraaie indeling gemaakt. Er is een praktische kamer met de opstelling van de was apparatuur met daarboven een houten werkblad met een wastafel en stromend water. Daarnaast zijn er twee extra slaapkamers gerealiseerd. Waarvan een van de kamers uitgerust met een dakkapel en de andere voorzien is van een dakraam. Verder is er op deze verdieping veel praktische bergruimte achter de knieschotten en is via de overloop een vliering bereikbaar voor nog meer bergruimte. De ramen van de zolder zijn ook voorzien van inzethorren.

Tuin/Berging:
De woning beschikt over een verzorgd aangelegde voor- en achtertuin.

De op het zuiden gelegen achtertuin is de hoofdtuin en aangelegd met een mix van groen, beukenhagen, gazons en twee terrassen en een pergola waar een Blauweregen over groeit.
Achter in de tuin staat een houten berging en een overdekte fietsenstalling. De kliko’s zijn uit het zicht geplaatst in een houten ombouw die ook als buitenkeuken gebruikt kan worden.

Afmetingen:
Woonkamer, keuken ca. 37.3m²
Slaapkamer 1 ca. 16.3m²
Slaapkamer 2 ca. 9.9m²
Slaapkamer 3 ca. 7.6m²
Badkamer ca. 6.1m²
Slaapkamer 4 ca. 11.4 m²
Slaapkamer 5 ca. 6.9m²
Inpandige berging ca. 4.9m²
Externe berging ca. 11.4m²

Bouwjaar: 2017
Isolatie: Volledig en optimaal geïsoleerd
Verwarming en warmwater: Stadsverwarming
Tuinligging: Zuiden
Aanvaarding: In overleg (voorkeur verkopers eind april 2025)

Bij de verkoop zal er een standaard NVM koopovereenkomst worden gehanteerd.

Koop je de woning zonder voorbehoud van financiering? Dan zullen wij een termijn hanteren van 14 dagen na het opstellen van de koopovereenkomst voor het storten van de bankgarantie/waarborgsom.

Deze informatie is door ons met de nodige zorgvuldigheid samengesteld. Onzerzijds wordt echter geen enkele aansprakelijkheid aanvaard voor enige onvolledigheid, onjuistheid of anderszins, dan wel de gevolgen daarvan. Alle opgegeven maten en oppervlakten zijn indicatief.
+ toon meer
deze woning is Verkocht

Bosveen 3 Ede

Bosveen 3

6718 MX, Ede
Ditters open huis: 5 april 2025 10:00 - 12:00 uur
Landelijke Open Huizen Route NVM: 5 april 2025 11:00 uur - 15:00 uur
Vanaf€ 550.000 k.k.

Schakel een aankoopmakelaar in.

Snel handelen helpt je jouw droomhuis te bemachtigen. Zo vergroot je de kans dat je er op tijd bij bent.
Ede
verkocht

Of maak vrijblijvend een zoekprofiel aan.

Vergelijkbare woningen

Hypotheken

Onafhankelijk hypotheekadvies

  • Ligt jouw droomhuis binnen handbereik?
  • Wil je jouw huidige hypotheek verhogen?
  • Is er hypotheekruimte voor verduurzaming?

Blijf op de hoogte

Ontvang als eerste updates over nieuw aanbod en mis geen enkele kans om jouw droomwoning te vinden.

Gratis waardebepaling of verkoopgesprek

Met de vrijblijvende waardecheck weet je snel waar je aan toe bent. Onze makelaars kijken naar de lokale markt en vergelijkbare woningen in jouw buurt om een goede schatting te geven.

Realiseer al jouw woondromen met Ditters

Wij zijn een team van gedreven vastgoedexperts met een passie voor het maken van verbindingen – tussen kopers en verkopers, huurders en verhuurders. Met een frisse kijk op de makelaardij combineren we expertise met creativiteit. Onze makelaars luisteren écht en nemen de tijd om jouw wensen te begrijpen.


Bij Ditters sta je er niet alleen voor. We denken met je mee, begeleiden je in elke stap en zijn altijd bereikbaar voor vragen. Neem gerust contact met ons op – we helpen je graag verder!